-
申弘电动方形百叶阀FDBD
详细信息| 询价留言FDBD电动方形多叶阀 产品说明
电动矩形百叶阀FDBD本阀门安装在钢铁冶金系统的热风炉、加热炉、换热器、除尘器等系统的冷风、煤气、空气及烟气管道上,起到调节介质流量的作用。也可以起到大面积截断介质、降低介质压力的作用。当挡板在90℃行程内开度变化时,通过管路中的工质流量和压头也相应呈线性改变,风门的线性调节特性优良,运行稳定可靠。

电动矩形百叶阀FDBD电动百叶阀特点:
电动高温蝶阀 百叶、多轴式的结构、轴座采用组装式结构、便于维修。密封填料采用柔性石黑,密封比压可调,阀板流线结构,流阻小,流动均匀,启闭力矩小,动作灵敏,性能可靠。电动矩形百叶阀FDBD电动倾斜百叶阀工作原理:电动执行器通过曲柄,连杆带动各阀叶轴同步旋转达到控制阀门开度,调节管路流量。FDBD电动方形多叶阀主要技术指标
1、输入信号:Ⅱ型0-10mA DC;Ⅲ型4-20mA DC
2、输入通道:三个
3、输入通道阻抗:Ⅱ型200Ω;Ⅲ型250Ω
4、基本误差限:±2.5%
5、回差:≤1.5%
6、死区:≤3%
7、特性:≤3次半周期
8、电源:单相电压220V(+10%,-15%)频率50Hz
9、使用环境温度:执行机构-25~+70℃ 放大器0~50℃电动矩形百叶阀FDBD
产品特点:1、本产品结构合理,生产工艺及质量管理严格,保证执行机构可靠性高,平均无故障时间MBTF>25000小时。
2、位置发送器转换电路坑感应电压能力强,其性能超过国内外同类产品。
3、行程控制凸轮能各自独立的调整而互不影响,调整简单方便。
4、大力矩执行机构采用交流单相电机,给自控系统的使用带来方便。
5、电机制动轮采用特制材料,其特点是制动可靠,使用寿命长,优于同类产品。
型 号
输入信号
输出扭矩 N.m
全行程时间 S
Ⅱ型
DKJ-210M
0~10mADC
100
25
DKJ-310M
0~10mA DC
250
25
DKJ-410M
0~10mA DC
600
25
DKJ-510M
0~10mA DC
1600
25
DKJ-610AM
0~10mA DC
2500
40
DKJ-610M
0~10mA DC
4000
60
DKJ-710M
0~10mA DC
6000
60
DKJ-810M
0~10mA DC
10000
100
Ⅲ型
DKJ-2100M
4~20mADC
100
25
DKJ-3100M
4~20mA DC
250
25
DKJ-4100M
4~20mA DC
600
25
DKJ-5100M
4~20mA DC
1600
25
DKJ-6100AM
4~20mA DC
2500
40
DKJ-6100M
4~20mA DC
4000
60
DKJ-7100M
4~20mA DC
6000
60
DKJ-8100M
4~20mA DC
10000
100
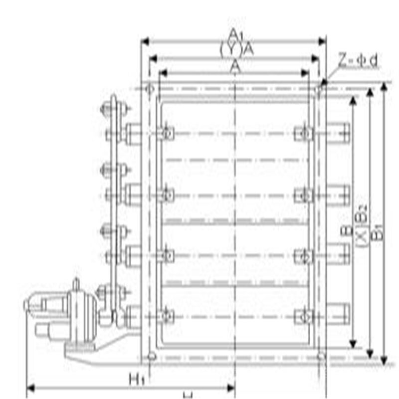
三、FDBD电动方形多叶阀工作原理及结构特点
该阀是垂直百叶板式具有调节特性的阀门,由阀体、百叶板、阀轴、联动机构、电动装置等主要部件组成,全部为焊接结构,轴端采用柔性石墨编织填料密封,耐高温。百叶板的启闭靠手轮或电机驱动Z系列电动装置,电动装置的输出经过一级蜗轮传动装置将*终输出力矩传动给阀轴,靠阀轴的转动驱动联动机构,使多个百叶板同步旋转,用以改变管道内截面积,以达到调节介质流量、大面积截断介质或降低介质压力的作用,调节角度为0-90°。

四、FDBD电动方形多叶阀主要零部件材料
适用温度(℃)
≤300
≤500
主要材料
阀体
Q235焊接
16Mn焊接
百叶板
Q235焊接
16Mn焊接
阀轴
45
40Cr
FDBD电动方形多叶阀外型尺寸
A*C A1*n1 C1*n2 A2*n2 L n-d H1 H 电动型号 H 手动 160*200 100*2 120*3 226*386 210 10--12 240 890 ZKJ-210 610 手柄式 200*320 120*2 120*3 266*386 210 10--12 240 890 610 200*400 120*2 110*4 266*466 210 12--12 280 930 690 200*500 120*2 135*4 266*566 210 12--12 330 1020 790 250*250 145*2 145*2 316*316 210 8--12 210 830 550 250*320 145*2 120*3 316*386 210 10--12 240 890 610 250*400 145*2 115*4 316*466 210 12--12 280 930 690 250*500 145*2 135*4 316*565 210 12--12 330 1020 790 250*630 145*2 138*5 316*696 210 14--15 395 1150 820 320*320 120*3 120*3 386*386 210 12--12 240 890 610 400*320 147*3 120*3 466*386 210 12--12 280 890 610 400*400 147*3 147*3 466*466 210 12--12 240 930 690 S01 500*320 135*4 120*3 566*386 210 14--12 280 890 610 500*400 135*4 147*3 566*466 210 14--12 310 930 690 500*500 135*4 135*4 566*566 210 16--12 240 1020 820 630*320 138*5 127*3 719*409 220 16--12 280 890 690 630*400 138*5 115*4 719*489 220 18--12 375 1045 860 630*500 138*5 140*4 728*598 220 18--15 440 1245 980 630*630 138*5 138*5 728*728 220 20--15 240 1375 1110 800*320 123*7 138*5 898*418 210 20--15 280 890 690 800*400 123*7 127*3 898*498 210 22--15 330 930 860 800*500 123*7 140*4 898*598 210 22--15 440 1245 ZKJ-310 960 800*430 123*7 138*5 898*728 210 24--15 475 1375 1180 800*700 123*7 127*6 898*798 210 26--15 525 1590 1280 S02 800*800 123*7 127*6 898*898 210 28--15 545 1690 1380 960*840 128*8 123*7 1058*938 210 30--15 285 1735 1420 1000*320 133*8 129*7 1098*398 210 22--15 325 1065 700 S01 1000*400 133*8 127*3 1098*498 210 24--15 375 1145 780 1000*500 133*8 120*4 1098*598 210 24--15 440 1245 ZKJ-410 880 1000*630 133*8 140*4 1098*728 210 26--15 525 1520 1200 S02 1000*800 133*8 138*5 1098*898 210 30--15 625 1690 1370 1000*1000 133*8 123*7 1100*1100 210 32--15 325 1890 ZKJ-310 1570 1250*400 131*10 133*8 1348*498 220 28--15 375 1290 910 S03 1250*500 131*10 115*4 1348*598 220 28--15 440 1390 1010 1250*630 131*10 140*4 1348*728 220 30--15 525 1520 ZKJ-410 1140 1250*800 131*10 138*5 1348*898 220 34--15 525 1690 1310 1250*1000 131*10 123*7 1348*1098 220 36--15 625 1890 1510 1280*1120 134*10 131*9 1380*1220 220 38--18 685 2010 1630 1280*1400 134*10 133*11 1380*1500 220 42--18 625 2090 1910 1600*500 139*12 140*4 1710*600 220 32--15 375 1390 1010 1600*630 139*12 138*5 1710*730 220 34--15 440 1520 1140 1600*800 139*12 123*7 1710*900 220 38--18 525 1690 1310 1600*1000 139*12 133*8 1710*1100 220 40--18 625 1990 ZKJ-510 1560 S04 1600*1250 139*12 131*10 1710*1350 220 44--18 750 2240 1810 1600*1280 139*12 134*10 1710*1380 220 44--18 765 2270 1840 1800*1300 135*14 139*10 1960*1460 220 48--18 775 2290 ZKJ-610 1870 S05 2000*800 129*16 123*7 2100*900 220 46--18 525 1790 1360 2000*1000 129*16 133*8 2100*1100 220 48--18 625 1990 1560 2000*1250 129*16 131*10 2100*1350 220 52--18 750 2240 1810 2000*1200 129*16 129*10 2160*1360 220 52--18 725 2190 1760 2000*1400 129*16 136*11 2160*1560 220 54--18 850 2440 2010 2250*1600 129*16 139*11 2410*1760 220 54--18 950 2860 2280 2400*1800 131*16 135*14 2560*1960 220 64--18 1050 3060 2480 2520*1800 133*16 135*14 2680*1960 220 64--18 1050 3060 2480 A×B
A1×B1
A2×B2
L
L1
H1
H
b
Z-Фd
X
Y
320×180
375×105
400×240
180
245
580
735
8
16-14
5
3
320×250
375×395
400×330
180
245
625
825
8
16-14
5
3
400×200
455×255
500×330
200
245
610
805
8
16-18
5
3
400×320
455×375
500×420
200
245
870
915
8
16-18
5
3
500×200
555×255
600×300
220
245
610
805
8
16-18
5
3
500×400
555×455
600×500
220
245
370
915
8
20-18
5
5
630×320
685×375
730×420
220
245
610
805
10
20-18
7
3
630×400
685×455
730×500
220
245
710
995
10
24-18
7
5
800×400
855×455
900×500
240
300
670
945
10
24-18
7
5
800×630
855×685
900×730
240
300
710
995
10
28-18
7
7
1000×500
1070×570
1130×830
260
300
790
1075
10
24-23
7
5
1000×800
1070×870
1130×930
260
300
905
1270
10
28-23
7
7
1250×630
1320×700
1380×760
280
300
1005
1505
10
32-23
9
7
1250×1000
1320×1070
1380×1130
280
300
1105
1705
10
32-23
9
7
1400×800
1470×870
1530×930
300
385
1075
1575
10
36-23
11
7
1400×1250
1470×1320
1530×1380
300
385
1300
2025
10
40-23
11
9
1600×1000
1670×1070
1730×1130
320
385
1175
1775
10
36-23
11
7
1600×1250
1670×1320
1730×1380
320
385
1300
2025
10
40-23
11
9
1800×1250
1870×1320
1930×1380
340
420
1450
2175
10
44-23
13
9
1800×1400
1870×1470
1930×1530
340
420
1525
2325
10
48-23
13
11
2000×1250
2070×1320
2130×1380
360
420
1450
2175
10
48-23
15
9
2000×1800
2070×1670
2130×1730
360
420
1620
2520
12
52-23
15
11
2500×1800
2570×1870
2630×1730
420
450
1695
2595
12
56-23
17
11
2500×2000
2570×2070
2630×2130
420
450
1895
2995
12
64-23
17
15
2800×2500
2870×2570
2930×2630
440
450
2145
3195
12
72-23
19
17
3200×2800
3270×2870
3330×2930
480
480
2325
3825
12
80-23
21
19
3600×3200
3670×3270
3730×3330
520
480
2525
4225
12
88-23
23
21
4000×3600
4070×4670
4130×4730
560
480
2725
4825
12
100-23
27
23
结构比较短小,占用空间小,安装的时候先用对夹式蝶阀专用法兰将其固定,然后将固定好的对夹式法兰放入管道两端法兰中间,用螺栓穿过对夹式蝶阀专用法兰和管道法兰将其固定。
具体安装步骤流程如下:
1、将对夹式蝶阀放置于预安装的两片对夹蝶阀专用法兰之间,注意将法兰螺栓孔与蝶阀阀体圆孔对齐。
2、将螺栓和螺母插入法兰孔将阀体与法兰连接,校正一下法里面的平整度,但注意不要把螺栓螺母拧的过紧。
3、将法兰焊接在管道上,这一步要采用点焊的方式。
4、先把对夹式蝶阀取下移出。
5、再将两片法兰完全焊在管道上,完成固定。
6、等法兰与管道的焊接处冷却之后,再讲对夹式蝶阀安装进去。此时注意要将蝶板打开一些。
7、再一次对蝶阀的安装位置做一个校正,拧紧螺栓,但要注意不要拧的过紧。
8、将蝶阀蝶板完全打开,保证蝶阀的蝶板可以自由启闭,能自由开闭。
9、再一次将螺栓交叉,均衡的拧紧;
10、以上步骤完成,再一次对蝶阀的启闭做一个测试,确保阀门可以自由的开关。

法兰式蝶阀安装方法
法兰蝶阀自带法兰,安装时候无需再专门配备法兰片,直接将阀体上的法兰与管道法兰用螺栓连接起来即可。但法兰蝶阀安装时要注意几点:
1.在安装时,蝶阀阀体法兰与管道上法兰之间的端面要平行,不能出现歪斜的情况,否则可能会因为螺栓拧不紧造成法兰连接处泄漏。
2.法兰蝶阀在管道上安装时候要在管道两端法兰与阀体法兰之间加入垫片,但不能用双垫片。
3.紧螺栓时要对称进行,两端法兰连接各个螺栓拧紧力要均匀且一致。
4.在安装时,要先安装蝶阀上定位孔的螺栓,将蝶阀位置对中固定,另外,在紧固法兰螺栓时,要对称交替拧紧,不要依次单独紧固螺栓。
相比对夹蝶阀,法兰蝶阀的密封性能更好,更适合做大口径阀门。但是使用成本和价格也会更高。法兰蝶阀的结构更长,占用的管道安装空间更大。

法兰蝶阀安装方法:
1、法兰蝶阀安装前检查气动蝶阀各部分部件无缺失,型号无误,检查阀体内无杂物,电磁阀和消音器内无阻塞。
2、将阀门和汽缸均置于关闭状态。
3、将汽缸撞到阀门上,(安装方向与阀体平行或垂直都可以),再看螺丝孔是否对正,不会有太大偏差,如有少许偏差,将气缸体转动一点就可以了,然后将螺丝紧固。
4、安装完毕后,对气动蝶阀进行调试(正常情况下供气压力为0.4~0.6MPa),调试运行时须手动操作电磁阀启闭(将电磁阀线圈失电后手动操作方可有效),观察气动蝶阀的启闭情况。如果在调试运行过程中发现阀门在启闭过程初始时有些吃力,之后正常,则需要将气缸行程调小(把气缸两端行程调节螺丝同时往里调一点,调整时需将阀门运行到开位置,然后将气源关掉再调),直至阀门启闭动作顺滑且关闭无泄漏。还需要注意的是,可调型消音器可以调节阀门的启闭速度,但不可调得过小,否则可能引起阀门不动作。
5、得发在安装前应保持干燥,不可露天存放。
6、安装蝶阀前要检查管道,确保管道内无焊渣等异物。
7、蝶阀阀体手动启闭阻力适中,蝶阀扭矩与所选执行器扭矩匹配。
8、蝶阀连接用法兰规格正确,管道对夹法兰与蝶阀法兰标准相符。建议使用蝶阀专用法兰,不得使用平焊法兰。
9、确认法兰焊接无误,蝶阀安装完毕后不得再焊接法兰,以免烫伤橡胶件。
10、装好的管道法兰要进行对中,并与放入的蝶阀进行对中。
11、装上所有的法兰螺栓,并用手拧紧,将确认蝶阀与法兰已然对中,然后小心的启闭蝶阀,确保启闭灵活。
12、将阀门完全开启,用扳手按照对角线次序将螺栓拧紧,无需垫圈,切勿将螺栓拧的过紧,以防造成阀圈的严重变形,启闭扭矩过大。

订货须知:
一、产品名称与型号口径是否带附件以便我们的为您正确选型使用压力使用介质的温度。
二、若已经由设计单位选定公司的放料阀型号,请型号直接向我司销售部订购。
三、当使用的场合非常重要或环境比较复杂时,请您尽量提供设计图纸和详细参数,由我们的阀门公司专家为您审核把关。如有疑问:请:我们一定会尽心尽力为您提供优质的服务。
-
联系方式
- 联系人:申弘阀门
- 电 话:021-59260058
- 手 机:15901754341
- 传 真:86-021-31662735
- 邮 箱:494522509@qq.com
- 邮 编:201718
- 地 址:上海市青浦区金泽工业园区
- 网 址: https://bengye.cn.goepe.com/
http://www.021-fm.com
-
产品搜索






