-
Q941F电动软密封球阀申弘
详细信息| 询价留言Q941F电动软密封球阀产品说明
本实用新型公开了浮动球阀阀座结构,其包括两个间隔设置的阀座以及设在两个阀座之间的球体,两个阀座上均设有内球面与球体连接,所述阀座内球面的小头端上设有一圈以上的开槽结构,该开槽结构为环形槽或由多个间隔且在一个同心圆上的弧形槽组成。采用以上结构,在不提高碟簧预紧力的情况下,通过改变阀座结构来实现高低压密封分离,低压时保证低压密封区有更加充分的密封比压,高压时保证有足够的密封面宽度满足材料许用比压要求。适用于两位切断、调节的场合。阀与执行机构的连接采用直连方式,电动执行机构内置伺服系统,无须另配伺服放大器,输入4-20mA信号及220VAC电源即可控制运转。具有连线简单,结构紧凑、尺寸小、重量轻、阻力小、动作等优点。

阀体通道和连接管径相等并成一直径,介质流通性能好。电动法兰球阀适用于两位切断、调节的场合。主要分为两大类:电动软密封球阀和电动硬密封球阀,电动软密封球阀主要适用于温度低于250度以内的介质。电动硬密封球阀主要适用于250度以上的介质。电动阀门密封性能优良、流通能力大、装卸维护方便、流阻小、密封好,易切断。电动法兰球阀体积小、重量轻、推力大、伺服放大器内装、操作方便,球阀与执行器采用直连方式,内置伺服系统,不用另配伺服放大器,输入输出信号4-20mA及220VAC电源可控制运转。
中小口径浮动球阀目前广泛应用于石油、化工、市政、电力等领域,具有体积小、维修简单、操作方便等优点。随着科学技术的发展和工业技术的日益提高,对球阀的耐久性和可靠性提出了更高要求,泄漏是不耐久和不可靠的主要表现形式。对于浮动式阀门,低压阀座密封泄漏则是阀门泄漏及不可靠的主要原因。为提高阀门使用寿命,目前国内外浮动球大多采用补偿式阀座设计来保证球阀可靠密封。在低压情况下,密封由阀座碟簧加载阀座获得。在高压情况下,阀球在介质作用下向下游移动,使下游阀座挠曲并增强密封。此类结构虽有较好的磨损耐久性,但仍有很大的提高空间.

Q941F电动软密封球阀主要问题有:
(I)由于高压阀门软性阀座具有较高的刚度以至于碟簧初始预紧力没能很好的通过变形阀座作用于阀球密封面上,低压情况下容易产生微漏,大大减低阀座磨损寿命;
(2)为保证阀座材质的许用密封比压,阀座设计必须有一定密封受压宽度,密封宽度越大,密封比压越小,容易导致泄漏;
(3)个别厂商为提高低压密封,不断提高碟簧初始预紧力,*后导致阀门操作转矩增大,还可能出现阀座将阀球“扼死”现象,导致启闭失灵,甚至损坏阀座。

为了解决现有技术中的不足,本实用新型的目的在于提供一种不提高碟簧预紧力的情况下,改变阀座结构来实现高低压密封分离,低压时保证低压密封区有更加充分的密封比压,高压时保证有足够的密封面宽度满足材料许用比压要求的浮动球阀阀座结构。
Q941F电动软密封球阀产品特点
(1)流体阻力小、球阀是阀门中流体阻力很小的一种,即使是缩径球阀,其流体阻力也相当小。
(2)止推轴承减小阀杆摩擦力矩,可使阀杆长期操作平衡灵活。
(3)阀座密封性能好,采用聚四氟乙烯等材料制成的密封圈,结构易于密封,而且球阀的阀封能力随着介质压力的增设而增大。
(4)阀杆密封性能好,由于阀杆只作旋转运动而不做升降运动,阀杆的填料密封不易破坏,且密封能力随着介质的压力增设而增大。
(5)由于聚四氟乙烯等材料具有良好的自润滑性,与球体的摩擦损失小。
(6)下装式阀杆和阀杆头部凸阶防止阀杆喷出,如火灾造成阀杆密封破坏,凸阶与阀体间还可形成金属接触,维持阀杆密封。

Q941F电动软密封球阀主要设计标准
设计与制造 GB12237-89、API608、API 6D、JPI 7S-48、BS5351、DIN3357 法兰尺寸 JB/T74~90、GB9112~9131、HGJ44~76、SH3406、ANSI B16.5、JIS B2212~2214、DIN2543 结构长度 GB12221-89、ANSI B16.10、JIS B2002、NF E29-305、DIN3202 检验与试验 JB/T 9092、API 598、GB/T13927 四、主要技术参数及性能
公称通径DN(mm) 15 20 25 32 40 50 65 80 100 125 150 200 额定流量系数KV 21 38 72 112 170 273 384 512 940 1452 2222 3589 公称压力(MPa) PN1.6、2.5、4.0、6.4 MPa;ANSI 150、300LB 允许压差(MPa) ≤公称压力 阀体形式 两段式铸造球阀 连接形式 法兰式、焊接式、螺纹式 阀芯形式 "O"型球形阀芯 密封填料 V型聚四氟乙烯填料、柔性石墨填料等 流量特性 近似快开型 动作范围 0~90° 泄露量Q 按GB/T4213-92,小于额定KV0.01% 基本误差 ±1% 回差 ±1% 死区 ≤1%(可调) 可调范围 250:1 350:1 配置执行机构 可配PSQ、HQ、UNIC、361RS、
HR等系列角行程电动执行机构控制方式 开关到位灯(开关两位控制)、
无源触点信号、
1/5K电位计、
智能调节(4~20mA模拟量信号控制)
五、执行器技术参数电源电压 AC220/380V,50/60Hz 输出力矩 50N·M~2000N·M 动作范围 0~90° 0~360° 动作时间 15秒/30秒/60秒 保护装置 过热保护 环境温度 -30°~60° 手动操作 同附带手柄操作 限位 电气、机械二重限位 防护等级 相当于IP-65 防爆等级 ExdII BT4;特殊要求可定制ExdII BT6 位置测量 可选装开关或电位计 驱动电机 8W/E 进线接口 PE1/2〞进线线锁 六、主要零件材料
零件名称 材料 阀体、阀盖 WCB 304(CF8) 316(CF8M) 316L(CF3M) 球体 2Cr13+氮化处理 304 316 316L 阀杆 2Cr13 304 316 316L 阀座密封圈 PTFE、碳素纤维+PTFE、对位聚苯 填料 V型PTFE、柔性石墨 
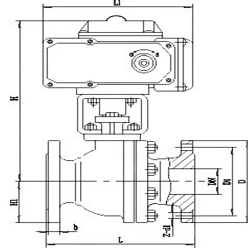
七、主要性能规范公称通径DN(mm) DN15-300 公称压力 PN(MPa) 1.0 1.6 2.5 4.0 6.4 试验压力 强度试验 1.5 2.4 3.75 6.0 9.60 密封试验 1.1 1.76 2.75 4.4 7.04 低压气密试验 0.5~0.7 适用介质 水、油、蒸气、硝酸类(温度≤200℃)、醋酸类(温度≤200℃) 八、 外形图

九、Q941F电动软密封球阀安装连接尺寸公称通径 DN(mm) 15 20 25 32 40 50 65 80 100 125 150 200 250 300 L 130 140 150 165 180 200 220 250 280 320 360 400 630 750 H 配HR 275 280 287 312 312 325 335 365 400 420 440 470 545 580 配HQ 360 370 380 392 392 415 425 445 490 510 530 560 635 670 W 157 157 157 157 208 208 256 256 256 256 256 256 380 380 PN1.6MPa法兰连接尺寸 D 95 105 115 140 150 165 185 200 220 250 285 340 405 460 D1 65 75 85 100 110 125 145 160 180 210 240 295 355 410 D2 46 56 65 76 84 99 118 132 156 184 211 266 319 370 n-φd 4-14 4-14 4-14 4-18 4-18 4-18 4-18 8-18 8-18 8-18 8-22 12-22 12-26 12-26 PN2.5MPa法兰连接尺寸 D 95 105 115 140 150 165 185 200 235 270 300 360 425 485 D1 65 75 85 100 110 125 145 160 190 220 250 310 370 430 D2 46 56 65 76 84 99 118 132 156 184 211 274 330 389 n-φd 4-14 4-14 4-14 4-18 4-18 4-18 8-18 8-18 8-22 8-26 8-26 12-26 12-30 16-30 PN4.0MPa法兰连接尺寸 D 95 105 115 140 150 165 185 200 235 270 300 375 450 515 D1 65 75 85 100 110 125 145 160 190 220 250 320 385 450 D6 40 51 58 66 76 88 110 121 150 176 204 260 313 364 n-φd 4-14 4-14 4-14 4-18 4-18 4-18 8-18 8-18 8-22 8-26 8-26 12-30 12-22 16-33 PN6.3MPa法兰连接尺寸 D 105 130 140 155 170 180 205 215 250 295 345 415 470 530 D1 75 90 100 110 125 135 160 170 200 240 280 345 400 460 D6 40 51 58 66 76 88 110 121 150 176 204 260 313 364 n-φd 4-14 4-18 4-18 4-22 4-22 4-22 8-22 8-22 8-26 8-30 8-33 12-36 12-36 16-36 
浮动球阀阀座结构,包括两个间隔设置的阀座以及设在两个阀座之间的球体,两个阀座上均设有内球面与球体连接,所述阀座内球面的小头端上设有一圈以上的开槽结构,该开槽结构为环形槽或由多个间隔且在一个同心圆上的弧形槽组成。所述阀座为PEEK材料成型。所述球体为不锈钢成型。阀与执行机构的连接采用直连方式,由 DCL 系列精小型电动执行器(也可根据用户要求配置不同型号电子式电动执行机构或气活塞式执行机构)与超短球阀组成。电动执行机构内置伺服系统,无须另配伺服放大器,输入 4-20mA 信号及 220V AC 电源即可控制运转。和普通电动球阀相比具有结构紧凑,体积小,重量轻,阀座与端面法兰距离近,物料滞留少,密封性能优越等特点。

Q941F电动软密封球阀的安装和维护步骤:
1.1安装前的准备
(1)球阀前后管线已准备好。前后管道应同轴,两法兰密封面应平行。管道应能承受球阀的重量,否则管道上必须配有适当的支撑。
(2)把阀前后管线吹扫干净,清除掉管道内的油污、焊渣和一切其它杂质。
(3)核对球阀的标志,查明球阀完好无损。将阀全开全闭数次证实其工作正常。
(4)拆去球阀两端连接法兰上的保护件。
(5)检查阀孔清除可能有的污物,然后清洗阀孔。阀座与球之间即使仅有微小颗粒的异物也可能会损伤阀座密封面。

1.2安装
(1)把阀装上管线。阀的任何一端都可装在上游端。用手柄驱动的阀可安装在管道上的任意位置。但带有齿轮箱或气动驱动器的球阀应直立安装,即安装在水平管道上,且驱动装置处于管道上方。
(2)阀法兰与管线法兰间按管路设计要求装上密封垫。
(3)法兰上的螺栓需对称、逐次、均匀拧紧。
(4)连接气动管线(采用气动驱动器时)。
1.3安装后的检查
(1)操作驱动器启、闭球阀数次,应灵活无滞涩,证实其工作正常。
(2)按管路设计要求对管道与球阀间的法兰结合面进行密封性能检查。

订货须知:
一、①产品名称与型号②口径③是否带附件以便我们的为您正确选型④的使用压力⑤的使用介质的温度。
二、若已经由设计单位选定公司的型号,请按型号直接向我司销售部订购。
三、当使用的场合非常重要或环境比较复杂时,请您尽量提供设计图纸和详细参数,由我们的阀门公司专家为您审核把关。如有疑问:请:我们一定会尽心尽力为您提供优质的服务。提供全面、阀门系统解决方案",也十分愿意帮助用户解决生产中所遇到的难题。 -
联系方式
- 联系人:申弘阀门
- 电 话:021-59260058
- 手 机:15901754341
- 传 真:86-021-31662735
- 邮 箱:494522509@qq.com
- 邮 编:201718
- 地 址:上海市青浦区金泽工业园区
- 网 址: https://bengye.cn.goepe.com/
http://www.021-fm.com
-
产品搜索





