-
Q941H电动金属硬密封球阀申弘
详细信息| 询价留言Q941H电动金属硬密封球阀产品说明
电动硬密封球阀适用于两位切断、调节的场合。球阀与执行机构的连接采用直连方式。电动金属密封球阀主要适用于温度高温250 度以上的工况场合。电动金属密封球阀主要分为两种密封结构:即单向密封和双向密封;单向密封:只能在规定的方向即球阀标示的密封方向密封;双向密封:在两 个方向上都能密封;电动硬密封球阀的结构形式分为浮动球式和固定球式;连接形式为法兰连接、焊接连接及螺纹连接。电动执行机构内置伺服系统,无须另配伺服 放大器,输入4-20mA信号及220VAC/380V电源即可控制运转。电动硬密封球阀具有连线简单,结构紧凑、尺寸小、重量轻、阻力小、动作稳定可靠 等优点。

一种金属硬密封浮动球阀,具有阀体、阀座、阀杆和阀盖,阀体内设有球体,在阀体与阀盖的连接处设有金属缠绕垫片,金属缠绕垫片的轴向方向两侧面分别与阀盖和阀体的端面抵接。在径向方向上,所述阀体与阀盖抵接;在轴向方向上,所述阀体与阀盖之间具有间隙。球体的球面表面与阀盖之间、球面表面与阀体之间均有间隙。阀杆内设置有防静电装置,防静电装置的一端与阀杆接触,另一端与球体和阀体接触。本实用新型的球阀可以保证在高温下不会被涨死,能够在高温下灵活启闭和保持良好的密封性。并且具有独特的防吹出机构,可防止阀杆吹出;防静电装置可以消除静电。整个结构设计合理,组装拆卸方便,简化了结构又便于维护。
本实用新型涉及一种耐高压硬密封球阀,包括阀体、阀座及阀芯,阀芯与阀座密封配合面采用超音速喷涂形成的高强度硬质金属碳化钨层结构的金属硬密封面,阀体包括筒状中间阀体和两端连接体,连接体上具有插接端头和安装法兰,插接端头插装于中间阀体的端口内,中间阀体的轴向端部与安装法兰经螺栓锁固,连接体的内端口内设环形阀座装配槽,阀座装配槽内焊接固定防护环,防护环外径侧设有与环形阀座装配槽径向壁之间形成有阀座滑槽的台阶槽,阀座滑动配合于阀座滑槽内,阀座的轴向外端抵接有驱动阀座上金属硬密封面压向阀芯的金属弹性元件,金属弹性元件安装在台阶槽内。其适应高温、高压、高磨损工况,具有加工方便,阀座装配方便及密封可靠的优点。

Q941H电动金属硬密封球阀主要特点:
(1)金属硬密封球阀采用偏心结构,在关闭过程中,阀座与球芯间的密封比压能增加,从而了密封副的密封。当阀门开启时,阀座与球体能脱离,减小了操作力矩,并使阀座表面与球面之间的控伤可能性降到小。
(2)金属硬密封浮动球阀(如图)采用了弹性加载结构,在正常关闭情况下了球体密封面与阀座密封之间的接触,在高温工况下,能补偿内件受热膨胀,避免因高温而导致的卡阻,适合于中小口径高温使用场合。
(3)金属硬密封固定球阀除金属硬密封偏心球阀的偏心特点外,其它优点在此也具务,此外,它可双向使用,且不易在中腔沉积污物,根据用户工况条件,也可在中腔设置排污口。
(4)金属硬密封球阀的球体表面采用硬化处理,阀座整体用硬质材料或局部堆焊硬质材料,密封副之间的有合适的硬度差。
(5)由于球体表面采用的表面硬化处理,阀座采用堆焊硬质合金,所以在阀门的启闭过程中能经受介质冲刷,适合于固体颗粒和磨料介质。
(6)除球体表面和阀座表面的表面处理外,在其它密封材料方面采用柔性石墨、金属缠绕式垫片等,故能用于高温、高压工况,并具耐火烧功能。

Q941H电动金属硬密封球阀性能规范
设计依据 国标系列 美标系列 设计标准
GB/T12237
AP16D
ANSI B16.34
法兰连接结构长度
GB/T12221
AP16D
ANSI B16.10
结构长度(焊接)
GB/T15188.1
AP16D
ANSI B16.10
连接法兰
GB/T9113
JB/T79
Hg20592ANSI B16.5、B16.47
对焊端
GB/T12224
ANSI B16.25
试验和检验
GB/T9092
AP16D
AP1598
压力范围
压力等级 试验压力(MPa) 公称压力(PN)
磅级(Class)
壳体试验
密封试验
1.0
-
1.5
1.1
1.6
-
2.5
1.76
2.5
-
3.8
2.75
4.0
-
6.0
4.4
6.4
-
9.6
7.04
-
150
3.0
2.2
-
300
7.6
5.6
-
600
15.0
11.0
-
10K
2.4
1.5
-
20K
5.8
4.0
主要零件材料
材料
标准 零件名称材料牌号 序
号材料
标准 零件名称材料牌号 碳钢 不锈钢 碳钢 不锈钢 GB ASTM GB ASTM GB ASTM GB ASTM 阀体 WCB A216-WCB ZG1Cr18Ni9Ti
ZG1Cr18Ni12Mo2TiCF8/CF8M/
CF3/CF3M10 阀座密封圈 石墨 阀盖 WCB A216-WCB ZG1Cr18Ni9Ti
ZG1Cr18Ni12Mo2TiCF8/CF8M/
CF3/CF3M11 阀杆 2Cr13 A276-410 1Cr18Ni9Ti
1Cr18Ni12Mo2TiF304/F316
/F304L/F316L双头螺柱 35CrMoA A193-B7 1Cr17Ni2 A193-B8M 12 止推轴承 金属夹PTFE 螺母 45 A194-2H 0Cr18Ni A194-8M 13 阀杆填料 石墨 垫圈 金属夹石墨 14 填料压环 2Cr13 A276-410 1Cr18Ni9Ti
1Cr18Ni12Mo2TiF304/F316
/F304L/F316L球体 2Cr13渗氮 A276-410渗氮 1Cr18Ni9Ti
1Cr18Ni12Mo2Ti渗氮F304/F316
/F304L/F316L
渗氮15 填料压盖 WCB A216-WCB ZG1Cr18Ni9Ti
ZG1Cr18Ni12Mo2TiCF8/CF8M/
CF3/CF3M阀座 2Cr13渗氮 A276-410渗氮 1Cr18Ni9Ti
1Cr18Ni12Mo2Ti渗氮F304/F316
/F304L/F316L
渗氮16 螺钉 35CrMoA A193-B7 1Cr17Ni2 A193-B8M 阀座支承圈 2Cr13 A276-410 1Cr18Ni9Ti
1Cr18Ni12Mo2TiF304/F316
/F304L/F316L17 定位板 2Cr13 A276-410 1Cr18Ni9Ti 304 阀座弹簧 17-7PH 17-7PH 17-7PH 17-7PH 
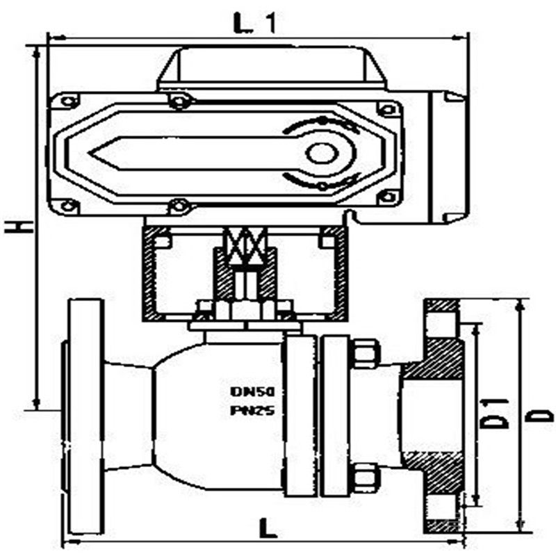
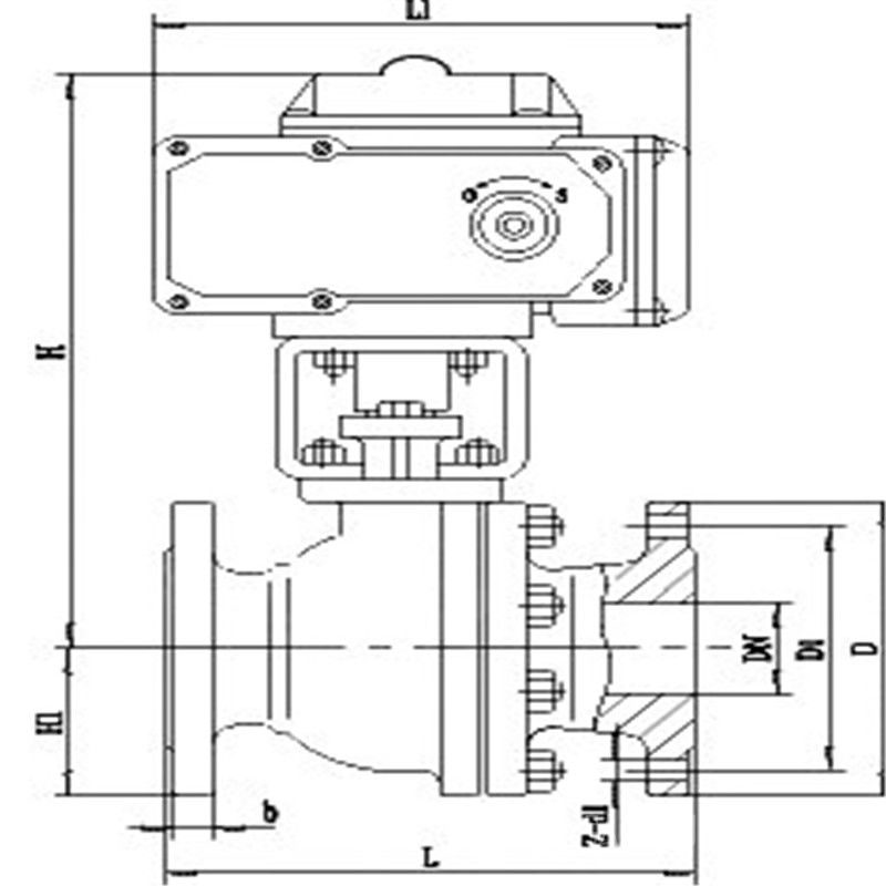
主要技术参数公称通径(mm) 15 20 25 32 40 50 65 80 100 125 150 200 250 300 流量系数Kv 21 38 72 112 170 273 384 512 940 1452 2222 3589 5128 7359 公称压力(MPa) PN1.6、2.5、4.0、6.4MPa 泄漏量 硬密封:≤额定流量的10-5 阀体形式 两段式阀体(浮动球体) 两段式阀体(固定球体) 阀芯形式 “O”型球形阀芯 密封填料 聚四氟乙烯(PTFE)、金属石墨缠绕垫片 连接形式 法兰、焊接、螺纹 流量特性 近似快开特性 可调范围 DN15-65 DN80-300 250:1 350:1 基本误差 ±1% 死区 ≤1% 回差 ≤1% 适用温度 密封面 硬密封≤450℃ 配置执行机构 可配PSQ、HQ、UNIC、361RS、JO等系列角行程电动执行机构 控制方式 开关到位灯(开关两位控制)、智能调节(4~20mA模拟量信号控制) 执行器技术参数执行器类别 引进型JO系列执行器参数 引进型3610R系列执行器参数 引进型HQ系列执行器参数 电源电压 标准:220V AC单相 可选:110V AC 单相、380/440V AC 三相、24V/110V/220V AC 输出力矩 50N·M~2000N·M 50N·M~1500N·M 50N·M~3000N·M 动作范围 0~90° 0~360° 0~90° 0~90°、0°~270°可选 控制方式 开关到位灯(开关两位控制)、无源触点信号、1/5K电位计、智能调节(4~20mA模拟量信号控制) 动作时间 15秒/30秒/60秒 10秒/15秒/30秒 18S~112S 保护装置 过热保护 过载保护 内置过热保护、过载保护 环境温度 -30°~60° -30°~60° -20℃~+70℃ 手动操作 同附带手柄操作 同附带手柄操作 机械离合机构,配手轮操作 机械限位 电气、机械二重限位 电气、机械二重限位 2个外部调整螺栓 防护等级 IP65 IP55 IP65、IP67、可定制IP68 防爆等级 无防爆 ExdⅡ BT4 ExdⅡ BT4,ExdⅡ CT6 位置测量 可选装开关或电位计 比例控制单元 电位计、比例控制单元 驱动电机 8W/E AC可逆电机 鼠笼式异步电机 进线接口 PE1/2〞进线线锁 2-PF 1/2〞进线线锁 2个 PF 3/4” 壳体材料 铝合金 钢,铝合金 钢,铝合金,铝青铜,聚碳酸脂 外涂层 干粉,环氧聚酯,具有超强防腐功能 采用独特的电制动线路,因而定位精度高,执行机构灵敏,启动停止迅速,运行平稳。同时具有抗干扰、抗浪涌电压、防击穿能力强的特点 适用于动作频繁的调节回路,当接通持续率为25%时,每小时动作次数可达630-1200次 PN1.6 MPa主要连接尺寸及重量
公称通径DN 15 20 25 32 40 50 65 80 100 125 150 200 L 130 140 150 165 180 200 220 250 280 320 360 400 H 59 63 75 105 95 107 142 152 178 252 272 342 W 130 130 160 180 230 230 400 400 650 1050 1050 1410 Wt(㎏) 2.5 3 5 6 7 10 15 19 33 58 93 160 PN2.5 MPa主要连接尺寸及重量
公称通径DN 15 20 25 32 40 50 65 80 100 125 150 200 L 130 140 150 165 180 200 220 250 280 320 360 400 H 59 63 75 105 95 107 142 152 178 252 272 342 W 130 130 160 180 230 230 400 400 650 1050 1050 1410 Wt(㎏) 2.5 3 5 6.5 9 12 20 25 44 75 105 200 PN4.0 MPa主要连接尺寸及重量
公称通径DN 15
20
25
32
40
50
65
80
100
125
150
200
L 130
140
150
180
200
220
250
280
320
400
400
400
H 59
63
75
85
95
107
142
152
178
252
272
342
W 130
130
160
230
230
400
400
700
1100
1100
1500
1500
Wt(㎏) 3
4
5
7
9
12
18
28
46
75
106
190
PN6.4 MPa主要连接尺寸及重量
公称通径DN 15
20
25
32
40
50
65
80
100
125
150
200
L 165
190
216
229
241
292
330
356
432
508
559
660
H 59
63
75
97
107
142
152
178
252
272
305
398
W 130
130
160
230
230
400
400
700
1100
1100
1500
1800
Wt(㎏) 6.5
7
8
12
14
18
28
40
65
98
140
250
PN10.0 MPa主要连接尺寸及重量
公称通径DN 15
20
25
32
40
50
65
80
100
125
150
200
L 165
190
216
229
241
292
330
356
432
508
559
660
H 59
63
75
97
107
142
152
178
252
272
305
398
W 130
130
160
230
230
400
400
700
1100
1100
1500
1800
Wt(㎏) 6.5
7
10
15
18
25
32
46
75

电动球阀安装与维护:
1、电动球阀在关闭状态下,阀体内部依旧存在受压流体;
2、维修前,解除管线压力并使阀门处于打开位置;断开电源或气源;将执行机构与支架脱离;
3、必须先查明电动球阀上、下游管道确已卸除压力后,才能进行拆卸分解操作;
4、分解及再装配时必须小心防止损伤零件的密封面,特别是非金属零件,取出O型圈时宜使用专用工具;
5、装配时法兰上的螺栓必须对称、逐步、均匀地拧紧;
6、清洗剂应与球阀中的橡胶件、塑料件、金属件及工作介质(例如燃气)等均相容。工作介质为燃气时,可用汽油(GB484-89)清洗金属零件。非金属零件用纯净水或酒精清洗;
7、分解下来的单个零件可以用浸洗方式清洗。尚留有未分解下来的非金属件的金属件可采用干净的细洁的浸渍有清洗剂的绸布(为避免纤维脱落粘附在零件上)擦洗。清洗时须去除一切粘附在壁面上的油脂、污垢、积胶、灰尘等;
8、非金属零件清洗后应立即从清洗剂中取出,不得长时间浸泡;
9、清洗后需待被洗壁面清洗剂挥发后(可用未浸清洗剂的绸布擦)进行装配,但不得长时间搁置,否则会生锈、被灰尘污染;
10、新零件在装配前也需清洗干净;
11、使用润滑脂润滑。润滑脂应与球阀金属材料、橡胶件、塑料件及工作介质均相容。工作介质为燃气时,可用例如特221润滑脂。在密封件安装槽的表面上涂一薄层润滑脂,在橡胶密封件上涂一薄层润滑脂,阀杆的密封面及摩擦面上涂一薄层润滑脂;
12、装配时应不允许有金属碎屑、纤维、油脂(规定使用的除外)灰尘及其它杂质、异物等污染、粘附或停留在零件表面上或进入内腔。

订货须知:
一、①产品名称与型号②口径③是否带附件以便我们的为您正确选型④的使用压力⑤的使用介质的温度。
二、若已经由设计单位选定公司的型号,请按型号直接向我司销售部订购。
三、当使用的场合非常重要或环境比较复杂时,请您尽量提供设计图纸和详细参数,由我们的阀门公司专家为您审核把关。如有疑问:请:我们一定会尽心尽力为您提供优质的服务。提供全面、阀门系统解决方案",也十分愿意帮助用户解决生产中所遇到的难题。 -
联系方式
- 联系人:申弘阀门
- 电 话:021-59260058
- 手 机:15901754341
- 传 真:86-021-31662735
- 邮 箱:494522509@qq.com
- 邮 编:201718
- 地 址:上海市青浦区金泽工业园区
- 网 址: https://bengye.cn.goepe.com/
http://www.021-fm.com
-
产品搜索





