-
Q9B41F防爆型电动球阀申弘
详细信息| 询价留言Q9B41F防爆型电动球阀产品说明
本发明属于阀门密封领域,具体讲是涉及软硬双密封球阀。主要由防爆执行机构与球阀组合而成,是一种专门应用于易燃易爆工况的电动防爆阀门。防爆电动球阀上的电气元件要求都做防火、防静电处理,且都达到防爆标准,防爆等级为ExdⅡBT4(CT6)、防护等级为IP67。电动防爆球阀输入相关电源信号即可控制阀门开关,输入4-20mA信号及220V电源即可控制球阀运转进行比例调节,达到对管路中介质流量大小、压力、温度等参数的自动化控制,广泛应用于天然气、污水、燃气、煤矿、化工等防爆场合。

防爆电动球阀是指球阀上的电动执行器达到防爆的标准,使用在要求防爆的场合中,如液体或气体等化工行业易燃易爆的地方,用于阀门的开启、关闭或调节。防爆阀门可分为有本安型和隔爆型两种,本安型用的是直流电机,防爆型用的交流电机,操作人员既能在控制室内远距离对阀门进行控制,也能在现场进行操作。
球阀主要是通过一个有孔的球体,在阀杆的控制下作90°旋转,使阀门开启或关闭,由于其通道直径等于或小于管道内径,流体阻力小,开关迅速、方便,寿命长、可靠性高,得到了广泛的应用。传统的球阀一般为硬密封浮动阀座,软密封固定阀座,保证阀门在运行时的密封,但阀门长期运行时,特别是在某一阀位不动的情况下,硬密封浮动阀座的阀门会抱死,导致阀门卡湿,而软密封固定阀座的阀门会出现内漏的情况。是一种球体绕垂直于通道轴旋转90°的阀门,其由回转型防爆角行程电动执行器和O型阀结构组成,属旋转类型高性能调节或开关阀类,接受工业自动化控制(DCS、PLC系统)仪表来源的电流信号或电压信号的输入输出,可实现对工艺管路中流体介质的比例调节或二位开关控制,从而达到对流体介质的流量、压力、温度、液位等参数的自动化控制。

Q9B41F防爆型电动球阀产品特点
1、防爆型电动球阀流体阻力小,是所有阀类中流体阻力*小的一种,以AC 220V、AC 380V或DC 24V电源电压作动力,接受(4-20mA、0-10mA或1-5VDC)电流信号或电压信号,即可控制运转,以角行程输出的扭矩转动球体0~90°,就能完成启闭动作或调节动作。
2、全电子式电动执行机构,采有机电一体化结构,具有机内伺服操作和开度信号位置反馈、位置指示、手动操作等功能,功能强、性能可靠、连线简单,通过输入电流信号或电压信号,改变球芯的旋转角度(0-90°任意角度),实现比例调节动作。
3、球芯通道平整光滑,不易沉积介质,可以进行管线式通球。结构简单、重量轻、密封性能好。 特别适用于要求零泄漏率的场合。

【Q9B41F防爆型电动球阀发明内容】
为了解决上述问题,本发明提供了一种软硬双密封球阀,可以有效防止球阀的抱死、卡涩问题。随着各类工业设备的自动化,执行器这种在工业设备中较为重要的设备的技术水平和质量也在稳定提升。而精小型防爆电动执行器作为执行器中的一大分支,其安全、稳定、质量、精度等方面也越来越受到各类厂家和用户的关注。除上述几个方面之外,执行器生产厂家的口碑、规模和技术实力也成为了买家决定的要点。
所以,目前能在市场上去有一定发展空间的精小型防爆电动执行器,一般会具有质量和品牌两方面的优势。而随着执行器的智能化水平越来越高,一些老旧、传统的精小型电动执行器也会一步步地被市场淘汰。精小型电动执行器技术的逐渐发展和完善,也使得其在各大行业中越来越受到重视。就目前来看,小型电动执行器的发展前景的还是一片良好的。
软硬双密封球阀,包括阀座、阀体、弹簧及球形阀芯,阀座设置在阀体流道口与球形阀芯之间,阀座的密封面的形状与其所对应的球形阀芯的圆弧面一致,在硬密封阀座上设置环形槽,并在槽中镶嵌软密封,阀座的密封面包括软密封密封面和硬密封阀座密封面,阀座密封面与球形阀芯完全接触,弹簧设置在阀体与阀座之间。槽设置在硬密封阀座外缘或内缘,槽的夹角为锐角。软密封材料为四氟材料。
本发明的有益效果是:当球阀关闭时,阀座上硬密封与软密封共同作用;当阀座上软密封与硬密封磨损时,弹簧弹力使阀座密封面贴紧球形阀芯;当阀门长期不动时,依靠软密封的柔韧度,硬密封阀座不会将阀门阀球抱死,同样,阀门不会如全软密封的阀门一样内漏

【主权项】
1.软硬双密封球阀,包括阀座、阀体、弹簧及球形阀芯,其特征在于:所述阀座设置在阀体流道口与球形阀芯之间,阀座的密封面的形状与其所对应的球形阀芯的圆弧面一致,在硬密封阀座上设置环形槽,并在槽中镶嵌软密封,阀座的密封面包括软密封密封面和硬密封阀座密封面,阀座密封面与球形阀芯完全接触,弹簧设置在阀体与阀座之间。
2.根据权利要求1所述的软硬双密封球阀,其特征在于:所述槽设置在硬密封阀座外缘或内缘,槽的夹角为锐角。
3.根据权利要求1所述的软硬双密封球阀,其特征在于:所述软密封材料为四氟材料。

Q9B41F防爆型电动球阀主要技术参数1、阀体
阀体形式 两段式铸造球型阀 公称通径 DN15~300mm 公称压力 PN1.6、2.5、4.0、6.4 MPa;ANSI 150、300LB ;JIS 10、20、30K 法兰标准 GB/T9113、 JB/T79、HG20594及其他标准 连接形式 法兰(FF RF RTJ)、焊接(SW BW)、螺纹(锥螺纹、管螺纹) 阀盖形式 整体式 压盖型式 螺栓压紧式 密封填料 V型聚四氟乙烯填料、含浸聚四氟乙烯填料、石棉编织填料、柔性石墨 阀体材料 铸钢(WCB)、不锈钢(CF8、CF8M、CF3、CF3M)、铬钼钢、铸钢衬四氟(WCB+F46) 2、阀内件
阀芯形式 O型球体阀芯+电子抛光 流量特性 近似快开特性 阀芯材料 不锈钢(CF8、CF8M、CF3、CF3M)+氮化处理 3、执行器
执行器型号 CHR、3810R、DZW、HQ、PSQ 主要技术参数 电源电压:220V/50Hz、380V/50Hz、输入信号:4-20mA或1-5V·DC、输出信号:4-20mA·DC 防护等级:相当IP65(或IP67)、隔爆标志:ExdⅡBT4(CT5)、手操功能:手柄、手轮 环境温度:-25~+70℃、环境湿度:≤95% 
三、Q9B41F防爆型电动球阀主要性能指标公称通径 DN(mm) 15 20 25 32 40 50 65 80 100 125 150 200 250 300 额定流量系数KV 21 38 72 112 170 273 384 512 940 1452 2222 3589 5128 7359 允许压差(MPa) ≤ 公称压力 动作范围 0~90°、0~360° 泄露量Q 按GB/T4213-92,小于额定KV0.01% 基本误差 ±1% 回差 ±1% 死区 ≤1% 可调范围 250:1 350:1 四、电动防爆球阀 主要性能规范
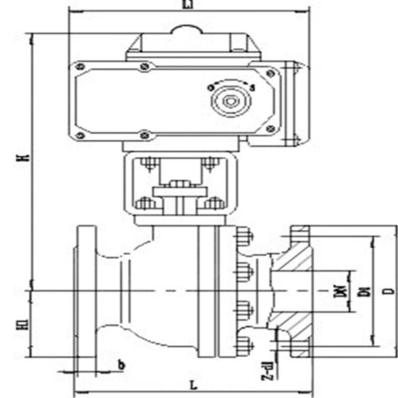
试验压力(MPa) 公称压力(MPa) 压力级(class) JIS(K) 压力等级 1.6 2.5 4.0 6.4 10.0 150 300 600 10K 20K 强度试验 2.4 3.75 6.0 9.6 15.0 3.0 7.5 16.5 2.4 3.8 密封试验 1.76 2.75 4.4 7.04 11.0 2.2 5.5 12.1 1.5 2.8 气密试验 0.5~0.7MPa 五、外形尺寸图

六、Q9B41F防爆型电动球阀外形连接尺寸公称通径DN(mm) 15 20 25 32 40 50 65 80 100 125 150 200 250 300 L 130 140 150 165 180 200 220 250 280 320 360 400 630 750 H 44.5 49 55 65 65 75 90 95 115 127 140 172.5 310 350 H1、H3、A、A2 根据所配气动执行机构而定 PN1.6MPa法兰连接尺寸 D 95 105 115 140 150 165 185 200 220 250 285 340 405 460 D1 65 75 85 100 110 125 145 160 180 210 240 295 355 410 D2 46 56 65 76 84 99 118 132 156 184 211 266 319 370 n-Φd 4-14 4-14 4-14 4-18 4-18 4-18 4-18 8-18 8-18 8-18 8-22 12-22 12-26 12-26 PN2.5MPa法兰连接尺寸 D 95 105 115 140 150 165 185 200 235 270 300 360 425 485 D1 65 75 85 100 110 125 145 160 190 220 250 310 370 430 D2 46 56 65 76 84 99 118 132 156 184 211 274 330 389 n-Φd 4-14 4-14 4-14 4-18 4-18 4-18 8-18 8-18 8-22 8-26 8-26 12-26 12-30 16-30 PN4.0MPa法兰连接尺寸 D 95 105 115 140 150 165 185 200 235 270 300 375 450 515 D1 65 75 85 100 110 125 145 160 190 220 250 320 385 450 D6 40 51 58 66 76 88 110 121 150 176 204 260 313 364 n-Φd 4-14 4-14 4-14 4-18 4-18 4-18 8-18 8-18 8-22 8-26 8-26 12-30 12-22 16-33 PN6.3MPa法兰连接尺寸 D 105 130 140 155 170 180 205 215 250 295 345 415 470 530 D1 75 90 100 110 125 135 160 170 200 240 280 345 400 460 D6 40 51 58 66 76 88 110 121 150 176 204 260 313 364 n-Φd 4-14 4-18 4-18 4-22 4-22 4-22 8-22 8-22 8-26 8-30 8-33 12-36 12-36 16-36 注:表中尺寸为不带标准附件数据。另由于产品改进技术创新参数可能有一定变化,请咨询公司技术部门索取*新数据。

由O型球阀与YXQ、381RSB防爆电动执行器构成,以220V交流单相电源作为驱动电源,接受来自计算机调节器或操作器的4-20mADC,或者1-5VDC输入信号来控制阀门开度,或者通过220V电源信号来直接驱动的运转的电动阀,防爆等级为ExdIIBT4也可以做ExdIICT6。电动防爆球阀球体密封圈采用了特殊的加工工艺和*新密封材料,使球体表面粗糙度和圆度达到标准要求,从而提高了密封性能和使用寿命、耐高温的能力。顺时板动手柄带动阀杆驱动球体旋转,使介质顺利通过。
因此在设计的时候需要遵循以下的一些要求:

1.防爆电动执行器在低温环境中要具备长时间工作的能力,一般情况下使用周期要达到10年左右。
2.防爆电动执行器不应该成为低温环境下的一个显著的热源,这是因为防爆系列产品虽然防爆但是流量的流入和降低阀门的效率外,还会对管道产生异常压差,容易造成危险。
3.在低温环境下不应该对阀门设置手轮操作。
4.和低温介质接触的防爆电动执行器组合件要具有防爆和防火的结构。
5.在低温环境下的电动执行机构无法使用润滑油,在安装的时候要采取必要措施
是电动球阀的一种;
①壳体为硬质铝合金材料,经阳极氧化处理和聚酯粉末涂层,耐腐蚀性强,防护等级为IP67。
②电机:全封闭式鼠笼式电机,绝缘等级为F级,内置热保护开关,可防止损坏电机。
③手轮:断电后,扳动离合器手柄可进行手动操作。通电时,离合器自动复位。
④指示器安装在中心轴上,透镜采用凸出镜设计,可以观察阀门位置。
⑤干燥器:有效控制湿度,防止执行器内部水分凝结,保证电气元件的干燥。
⑥限位开关:机械、电子双重限位。机械限位螺钉可调;电子限位开关由凸轮机构来控制,简单的调整机构能精确并方便地设定位置。
⑦扭距开关:可提供过载保护(FH-010除外),防止损坏电机。
⑧自锁:精密的双蜗轮蜗杆机构可高效传输大扭距,效率高,噪音低(*大50分贝),寿命长有自锁功能,防止反转。
⑨安装符合ISO5211国际标准,可以垂直安装,也可以水平安装。
⑩控制线路符合单相或三相电源标准,接线端子可有效满足各种附加功能的要求。

订货须知:
一、①产品名称与型号②口径③是否带附件以便我们的为您正确选型④的使用压力⑤的使用介质的温度。
二、若已经由设计单位选定公司的型号,请按型号直接向我司销售部订购。
三、当使用的场合非常重要或环境比较复杂时,请您尽量提供设计图纸和详细参数,由我们的阀门公司专家为您审核把关。如有疑问:请:我们一定会尽心尽力为您提供优质的服务。提供全面、阀门系统解决方案",也十分愿意帮助用户解决生产中所遇到的难题。 -
联系方式
- 联系人:申弘阀门
- 电 话:021-59260058
- 手 机:15901754341
- 传 真:86-021-31662735
- 邮 箱:494522509@qq.com
- 邮 编:201718
- 地 址:上海市青浦区金泽工业园区
- 网 址: https://bengye.cn.goepe.com/
http://www.021-fm.com
-
产品搜索





