-
PLC远程控制电动球阀申弘
详细信息| 询价留言PLC远程控制电动球阀产品说明
一种强制密封球阀,所述阀芯底部设有转柱,所述转柱能够支撑阀芯转动。采用一体化结构,与DTR电动执行机构相配,有输入控制信号(4~20mADC或1-5VDC)及单相电源可控制运转,具有功能强、体积小、轻便宜人、性能好、配套简单、流通能力大、适合于介质是粘稠,含颗粒,纤维性质的场合。目前该阀应用于食品、轻工、石油、造纸、化工、教学和科研设备、电力等行业的工业自动控制系统中。由于上述结构,阀芯底部的转柱能够支撑阀芯自转,同时转柱还能够支撑阀芯以转柱为圆心的转动,当阀芯与阀座形成强制密封面时,转柱提供给阀芯支撑力的作用。

一种强制密封球阀,所述阀体内设有阀座,所述阀座为铜材质,所述阀座与阀芯相互配合而形成密封面。本实用新型公开了一种可远程操控阀门的电动执行器,包括箱体,所述箱体的上端固定安装有控制箱,所述控制箱的上端固定安装有显示屏,所述控制箱上端的前方固定安装有控制按钮,试试箱体的左端固定安装有储电箱,所述箱体的前端固定安装有连接板,所述连接板的前端的中部固定安装有转轮口,所述箱体的上端固定安装有凹槽,所述凹槽的中部固定安装有主传动柱,所述主传动柱穿过箱体连接到内部.该一种可远程操控阀门的电动执行器,通过安装连接杆,使得手轮与副传动柱连接,使得手轮可以控制阀门的转动,同时起到了手动控制的作用,当如果远程控制出现了故障,可以手动关闭阀门,有效的增加了装置的安全性.
由于上述结构,通过在阀体内设有阀座,使强制密封面由阀芯与阀座形成,阀芯直接挤压的为阀座,阀座为铜材质,铜材质较软,因此阀座发生形变而形成强制密封面,阀座体积更小,更易更换,价格比更换阀体更低。用一体化结构,与DTR电动执行机构相配,有输入控制信号(4~20mADC或1-5VDC)及单相电源即可控制运转,具有功能强、体积小、轻便宜人、性能可靠、配套简单、流通能力大、特别适合于介质是粘稠,含颗粒,纤维性质的场合。

PLC远程控制电动球阀主要功能介绍
1、对现行的多种信号兼容功能
可根用户需求控制指令设置为4~20mA;0~20mA; 0~10mA。 返馈信号也可设为4~20mA;0~20mA; 0~10mA。用户也可根据情况自定义。完全体现了面向用户的理念。
2、指令信号失效判断功能
可自动识别给定指令信号的故障(包括引线开路、短路、控制信号超出正常变化范围等,当0~10/20mA无法判断开路、短路)。在故障发生时能立即发出报警,并能根据用户选定的信号失效处理方式(全开、全关、保持)自动控制阀门的位置。
3、伪指令判断剔除功能
对控制指令的变化进行比较、判断,对瞬间的变化进行剔除,防止误触发,当确认是控制指令信号变化时执行,否则保持原状态,提高执行器的抗干扰能力。
4、位置发送器信号失效判断功能
可自动判断位置发送器故障(包括引线开路、短路、传感器故障、电路故障等)。一旦故障发生,可立即自动关断电机电源,避免了由于信号故障而导致阀门误动。
5、电机超温保护
电机出现超温(温控开关动作),电路发出报警,切断电机电源。温度降低后自动恢复工作。
6、机械限位及过力矩保护
机械限位或过力矩开关动作,电路会在20mS内切断电机电源。有效地保护阀门与电动执行器的机械部分不受损坏。
7、自动调整电机转动方向功能
控制器能自动识别电机转动方向,并自动调整为需要的方向,无需人工介入。
8、瞬间防反转功能
如果电机在未停止原方向转动时突然反转,对电机和减速机构的齿轮将造成很大的冲击,容易损坏减速机构。瞬间防反转功能,能保证在电机停下来后再启动反转,可有效地保护电机和减速机构。
9、自适应定位功能
采用独特的自适应算法确定发出电机停止信号的时间,大大地提高了定位精度。执行器刹车机构的惯性、磨损、负载力(矩)的变化等因素的变化,自适应定位软件均可进行自适应运算,找出*佳的停机时间,减少电机的起动次数,保证精确定位,大大降低了基本误差。
10、电器制动(刹车)功能
对于惯性过大的单相交流伺服电机,可启用电器制动功能,以减小电机惯性带来的跟踪误差,提高系统的定位精度。本系统是采用直流能耗制动,依靠电机来消耗动能达到停车,这会引起电机温度上升,在设置时应选择尽可能短的制动时间。系统默认1.0S。
11、堵转判断与处理功能
如果阀门出现堵转或其它机械故障导致阀门不动,控制器控制电机向相反方向转动一小步,然后再按原方向运转。如果堵转消失,转入正常运行。如果堵转继续,再重复后退、前进一次。三次进退堵转消失,按正常情况处理,不能消失则关断电机电源,发出报警。
12、电气中途、终端限位功能
可根据系统调节对阀门开度的需要范围,按百分比数字设置阀门中途限位位置,能更好的适应调节系统需要。该功能也可作为执行器的终端开=100%/关=0.0%限位保护。
13、自动适应阀门开/关方向功能
用户可任意指定阀门的开/关方向。当用户标定完阀门的全开、全关,控制器可根据用户定义自动确定开/关阀门方向。
14、现场手控/摇控操作功能
控制器提供现场/远方操作切换功能。现场可手控操作或红外摇控操作。当控制指令信号失效时现场可用开关(脉冲信)号进行手控或摇控操作执行器。
15、现场手控操作保护功能
在现场手控操作时带有电器限位、机械限位和力矩保护及堵转判断等保护功能,可确保在操作时执行器和阀门的安全。
16、红外摇控操作功能
在现场可对执行器进行非入侵式红外摇控设置,还可进行现场红外摇控手动操作控制执行器开行、关行、停止。

电动球阀可以采用远程操作,也可就地操作。
在电动头选择就地或远程。如选择就地后,搬动另一有“开”、“关”指示按钮。
按指示搬动按钮,运动过程中松手即停止。
电动球阀的操作方式,根据人们使用的不同需求而定,常见的操作方式有三种,电动执行机构就地调节方式、远程遥控方式、自动调节方式,依照应用现场的实际工况来选择,不同的操作方式对应不同的场景,所以为什么斯凯浮阀门厂家会一再强调,提前说明实际工况要求,采购量的大小可以先不计,重要的是选型,电动球阀规格型号选好了,材质定好了,再说购买量也不迟,不管多或是少,使用的正确、合理就很好。
电动球阀三种操作方式有哪些内容?
电动执行机构就地调节方式,即现场手动调节,把 拉出执行机构上的手轮,摇动手轮就可以实现手动操作。当不用就地操作时,千万要注意,把电机端部的旋钮拨到“自动” 位置,并把手轮推进。
电动执行机构远程遥控调节方式,即非现场手动远程调节 ,操作时只要将旋转切换开关分别拔到“开”或 “关”的位置,带动电机正转或反转,执行机构输出轴就可以实现上行或下行动作,在运动中观察电动操作器上的阀位开度表,到所需控制阀位时,立即松开切换开关即可。
电动执行机构自动调节方式,即处在自动调节状态,根据输入信号的大小来决定执行机构的运转,通过信号进行自动调节相对应的位置,来完成预期的效果。 本发明的技术方案为:所述阀门设在管道中、且管道内设有信号采集装置,其特征在于,所述控制系统包括监控中心、通讯基站、若干手机客户端和若干电动执行机构;
所述电动执行机构用于驱动所述阀门、且与所述信号采集装置连通,所述监控中心通过无线信息与所述通讯基站连通,若干所述手机客户端通过无线信息与所述通讯基站连通,若干所述电动执行机构通过无线信息与所述通讯基站连通,所述电动执行机构与手机客户端一一对应;
所述电动执行机构包括电控模块、信号采集模块、信号处理模块和信息收发模块,所述电控模块用于控制阀门的开关量,所述信号采集模块与信号采集装置连通、且用于采集信号,所述信号处理模块与信号采集模块连通、且用于处理信号,所述信息收发模块与通讯基站通过无线信息连通。所述信号采集装置包括温度传感器、压力传感器和流量传感器。所述电控模块包括单片机、485模块、电源模块和交流接触器。

一种智慧型阀门远程控制系统的工作方法,按以下步骤进行工作:
1)、信号采集:电动执行机构通过信号采集模块接收由信号采集装置测得的实时信号;
2)、信号处理:先在电动执行机构的信号处理模块中设置标准参数区间,再将实时信号与预设参数进行比对;
3)、判断阀门是否异常:在信号处理模块中判断实时信号是否超出标准参数区间,如超出,则判定为阀门异常,转入下一步:如未超出,则判定为阀门正常,转入步骤10);
4)、信号发送:电动执行机构通过信息收发模块将阀门异常的信息通过无线信息发送至通讯基站中,并经由通讯基站转发至监控中心内;5)、判断一次确认是否通过:操作人员在监控中心中对实时信号超出标准参数区间进行确认,如确认通过,则转入下一步;如确认不通过,则转入步骤10);
6)、信息发送:监控中心将阀门异常的信息通过无线信息发送至通讯基站中,并经由通讯基站转发至手机客户端中;
7)、判断二次确认是否通过:用户通过手机客户端对阀门异常的信息进行确认,如确认通过,则转入下一步;如确认不通过,则转入步骤10);
8)、指令发送:用户将阀门开关量的调整信息通过通讯基站发送至监控中心内,再由监控中心通过通讯基站将动作指令发送至电动执行机构的信息收发模块中;
9)、阀门动作:电动执行机构中的信息收发模块将动作指令传送至电控模块中,驱动阀门动作;
10)、阀门停止,完毕。

PLC远程控制电动球阀规格:额定电压
AC220或AC380
电压允许范围
±10%
允许断电时间
<10ms
缺相检测
具有缺相保护
相序判别
具有相序判别自适应功能
远程遥控智能型电动阀门执行器通讯规格
外围器件
PLC/PC机
信号路数
1
接口类型
RS485
连接方式
接线端子
通讯速率
9600bps
保护功能
静电抑制、TVS保护
传输距离
1200米
外扩节点数量
<30
电动阀门执行器数字量输入规格外围器件
接近开关
信号路数
6(远程开/关;机械开/关过力矩;过热;ESD)
信号类型
节点输入,低电平有效
连接方式
KH-2.54-3P的连接器

技术参数和性能CH系列执行机构技术参数 阀体参数 电源 AC200/220V,50/60Hz 公称通径 DN10~300mm 输出力矩 50N·M~2000N·M 公称压力 PN1.6 2.5 4.0 6.4 31.5MPa(定制) 动作范围 0~90° 0~360° 泄漏量 软密封:零泄漏 硬密封:≤额定流量的10-5 动作时间 15秒/30秒/60秒 执行机构 可另配PSQ、HQ、UNIC、361RS
等系列电子式电动执行机构保护装置 过热保护 流量特性 快开特性 环境温度 -30°~60° 可调范围 DN10-80 DN100-300 250:1 350:1 手动操作 同附带手柄操作 基本误差 ±1% 限位 电气、机械二重限位 死区 ≤1% 防护等级 相当于IP-65 回差 ≤1% 位置测量 可选装开关或电位计 适用温度 密封面 驱动电机 8W/E PTFE≤150℃ RTFE≤180℃ PPL≤300℃ 硬密封≤450℃ 进线接口 PE1/2〞进线线锁 
四、PLC远程控制电动球阀主要性能规范试验压力 (Mpa) 公称压力(Mpa) 压力级(class) JIS(Mpa) 1.6 2.5 4.0 6.4 10.0 150 300 600 10K 20K 强度试验 2.4 3.8 6.0 9.6 15.0 3.1 7.8 15.3 2.4 3.8 密封试验 1.8 2.8 4.4 7.0 11.0 2.2 5.6 11.2 1.5 2.8 气密试验 0.5~0.7 五、主要零件材质
零件名称 材 料 阀体 WCB ZG1Cr18Ni9Ti CF8 (304) CF3 (304L) ZG1Cr18Ni12Mo2Ti CF8M(316) CF3M (316L) 球体、阀杆 2Cr13 1Cr18Ni9Ti 0Cr19Ni9 (304) 00Cr19Ni11 (304L) 1Cr18Ni12Mo2Ti 0Cr17Ni12Mo2 (316) 00Cr17Ni12Mo2 (316L) 密封圈 聚四氟乙烯(PTFE)、增强聚四氟乙烯(PPL)、对位聚苯 柔性石墨 适用介质 水、气体、蒸汽、油品等 硝酸等腐蚀性介质 强氧化性介质 醋酸等腐蚀介质 尿素等腐蚀性介质 公称通径DN
15
20
25
32
40
50
65
80
100
125
150
200
250
300
流量系数(Kv)
20
38
72
110
170
215
380
550
890
1400
2000
3580
5650
8100
可调动作范围
0-90o
允许压差△P
小于公称压力(1.6MPa)
泄漏量Q
按AP1598标准测试 无泄漏
环境温度℃
-20~60℃
基本误差
±2.5%
回差
±2.5%
死区
1%
可调范围
250:1
350:1
配用执行机构
PSQ101, 381RSA-05DTR-05
DTR-10 PSQ201, DTR-20381RSC-30
DTR-40381RSC-50
PSQ701DTR-60
PLC远程控制电动球阀理想流量特性表:
公称通径(DN)
不同开度角下的Kv值
温度
10o
20o
30o
40o
50o
60o
70o
80o
90o
50
2
4
9
17
32
60
97
151
215
80
6
11
22
44
83
155
250
389
550
100
9
18
35
71
133
248
398
620
890
150
20
40
8/0
160
300
560
900
1400
2000
200
36
72
143
286
737
1002
1611
2506
3580
250
57
113
226
453
848
1582
2543
3955
5650
300
81
163
325
651
1220
2278
3661
5695
8100
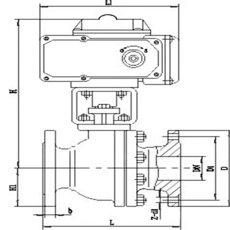
公称通径DN
L
D
H
L1
D1
b
Z-Ød
H1
L2
压力
1.6/2.5/4.0
1.6/2.5/4.0
1.6/2.5/4.0
1.6/2.5/4.0
1.6/2.5/4.0
15
130/130/130
95
275
157
65
14/16/16
4-14
48
208
20
140/140/140
105
280
157
75
14/16/16
4-14
53
208
25
150/150/150
115
287
157
85
14/16/16
4-14
58
208
32
165/165/180
135
384
208
100
16/18/18
4-18
68
208
40
180/180/200
145
312
208
110
16/18/18
4-18
73
208
50
200/200/220
160
325
208
125
16/20/20
4-18
80
208
65
220/220/250
180
335
256
145
18/22/22
4-18/8-18/8-18
90
256
80
250/250/280
195
365
256
160
20/22/22
8-18
98
256
100
280/280/320
215/230/230
400
256
180/190/190
20/24/24
8-18/8-23/8-23
120
256
125
320/320/400
245/270/270
420
256
210/220/220
24/28/30
8-23/8-25/8-25
140
256
150
360/360/400
280/300/300
440
256
240/250/250
24/28/30
8-23/8-25/8-25
167
256
200
400/400/550
335/360/375
470
256
295/310/320
26/34/38
12-23/12-25/12-30
210
256
250
630 750
405 470
545
380
300
750 870
460 530
580
380
智能型电动执行器采用CSDT型电动执行控制器,此控制器是专门针对精巧型电动执行器开发的控制部件。它包含了普通电动执行器中的位置发送器、定位器、逻辑控制、驱动、接口等全部电路。性能完全符合GB11922-89标准,和电力部的DL/T 641—2005标准。CSDT型的设计,以高稳定性,高可靠性为设计目标,综合了当前世界主流电动执行控制器的优点,集中了它们的全部保护与自诊断功能,并增加了独特的故障诊断与保护电路。控制器在性能方面,控制板主件采用进口高性能工业级器件,性能稳定,抗干扰能力强,在软件上根据电动执行器本身工作特点开发的专用数字滤波软件提高了整体的抗干扰性。控制采用自适应算法的定位软件,使得定位误差(基本误差)更小,控制精度更高,使得CSDT型控制器具有更优异的性能。

本发明具有以下有益效果:
一、本发明中各部分与通讯基站之间的连接均通过无线信息即GSM或CDMA信号进行,其传输距离极为广泛,经与各大移动运营商协商后,可借用其通讯基站。这样,只要在各大移动运营商的通讯基站覆盖范围内,即可实现监控中心、手机客户端及电动执行机构的联合运作,实现了超远程控制的目的。
二、本发明大幅缩短了工作周期,具体的说:一旦管道中出现异常状况(温度、压力或流量的异常),电动执行机构即可做出快速的判断并发信(步骤1-4),从而在经一、二次确认后快速的给电动执行机构发出动作指令(步骤5-8)。其信号传输快、反应时间短,工作周期极短。
三、本发明的工作方法中包含了一次确认(步骤5)和二次确认(步骤7),从而有效避免了电动执行机构的错误动作,大幅降低了操作失误率。
四、本发明可大范围运用于市政建设中,如煤气管道、输油管、输水管、蒸汽管道等,给智慧型城市的建设带来了*的便利。此外,也可有效降低日常生活中的安全隐患(煤气泄漏、水管破裂等),提高了安全性并降低了资源浪费。综上所述,本发明具有传输范围广、通信方便、使用简单、易于推广等特点。

订货须知:
一、①产品名称与型号②口径③是否带附件以便我们的为您正确选型④的使用压力⑤的使用介质的温度。
二、若已经由设计单位选定公司的型号,请按型号直接向我司销售部订购。
三、当使用的场合非常重要或环境比较复杂时,请您尽量提供设计图纸和详细参数,由我们的阀门公司专家为您审核把关。如有疑问:请:我们一定会尽心尽力为您提供优质的服务。提供全面、阀门系统解决方案",也十分愿意帮助用户解决生产中所遇到的难题。 -
联系方式
- 联系人:申弘阀门
- 电 话:021-59260058
- 手 机:15901754341
- 传 真:86-021-31662735
- 邮 箱:494522509@qq.com
- 邮 编:201718
- 地 址:上海市青浦区金泽工业园区
- 网 址: https://bengye.cn.goepe.com/
http://www.021-fm.com
-
产品搜索






