-
CWX微型电动球阀申弘
详细信息| 询价留言CWX微型电动球阀产品说明
微型电动球阀,小口径电动球阀外形美观,体积小巧,性能可靠,输出扭矩大,使用寿命长(5~10万次)微型电动球阀执行器采用全金属齿轮,精密度高,力矩大。多种控制方式,既可以接受远程阀门控制信号,又可以反馈到位信号给智能检测单元。外壳采用合金材料,外观小巧精致、美观耐用,传动机构。
电气限位和机械限位一体化设计,定位准确,一致性很高,杜绝执行器连转的可能.
执行器和阀门可以多角度装配,方便于对于空间的分配需求。
球阀采用浮动密封结构,无滴漏,适用于重污垢及长期无动作的场合。
替换电磁阀不能正常工作的环境。
在1~2Mpa水压下,工作电流仅仅为45~100mA(不同型号之间有差异)。

CWX微型电动球阀阀接线方式说明:
1、控制接线方式-2线
说明:SW为双联开关,SW与OPEN相连,电动执行器正动作,阀开,到位后内部自动断电,并保持在阀开的状态。SW与CLOSE相连,电动执行器负动作,阀关,到位后内部自动断电,并保持在阀关的状态。执行器的动作为回转型(正反转)。
2、控制接线方式-3线
说明:SW与OPEN相连时,阀开,到位后内部自动短电,保持在阀开的状态;SW与CLOSE相连时,阀关,到位后内部自动断电,保持在阀关的状态.执行器动作为回转型(正反转动作)。
3、控制接线方式-5线(外部断电)
说明:SW为双联开关,当SW与OPEN相连时,阀开,到位后绿线给出开到位信号OLS,控制器在检测到OLS后,将SW连向STOP,阀门停止动作,保持在开到位的状态;当SW与CLOSE相连时,阀关,到位后红线给出关到位信号CLS,控制器在检测到CLS后,将SW连向STOP,阀门停止动作,保持在关到位的状态.执行器动作为回转型(正反转)。
4、宽电压接线方式-AC/DC9--24V
说明:SW与OPEN相连时,执行器正动作,阀开,到位后内部自动断电,并保持在阀开的状态;
SW与CLOSE相连时,执行器负动作,阀关,到位后内部自动断电,并保持在阀关的状态.执行器动作为回转型(正反转).
5、快开快闭接线说明
说明:1、当SW闭合时,执行器正动作,阀开,到位后内部自动断电,保持在阀开的状态;当SW断开时,执行器负动作,阀关,到位后内部自动断电,保持在阀关的状态.执行器动作为回转型(正反转).
2、POWER为执行器外接工作电源,电压范围为DC9~24V.其内部采用法拉电容作为备用电源,安全可靠,充电时间快,可工作于开关频率比较高的场合。

CWX微型电动球阀控制方式选型表:2线
3线
5线(外部断电)
AC220V5线
快开
断电复位
宽电压
开关指示
手动
20
DC3-5V
DC3-5V
DC3-5V
×
×
×
AC/DC9-24V
×
×
20K
DC3-5V
DC3-5V
DC3-5V
×
√
√
AC/DC9-24V
√
×
20S
DC3-5V
DC3-5V
DC3-5V
×
DC3-6V
√
AC/DC9-24V
√
√
50
DC3-5V
DC3-5V
DC3-5V
√
×
√
AC/DC9-24V
√
√
DC12V
DC12V
DC12V
×
DC24V
DC24V
DC24V
×
微型电动球阀产品相主要技术参数:
型号 额定电压 工作电流 输出力矩 适配阀门口 径 开关 时间 控制
模式防护 等级 工作
压力介质
温度QDV-15N DC3-6V
ADC9-24V
AC220V
ADC85-265VMax80ma Max-2NM DN8-DN32 3-5s CR01
CR02
CR03
CR04
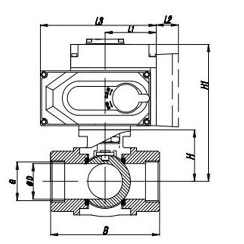
CR05IP65 1.0-2.0MPa 0-90度 QDV-15Q Max80ma Max-1.5NM DN8-DN25 口方式 口径 Фd L1 L2 L3 F H1 H2 H3 b Q1 Q2 d d
双
内
螺
纹DN8 8 11 11 47 21 12 18 50 52 68 62 DN10 8 11 11 47 21 12 18 50 52 68 62 DN15 15 11 11 53.5 27 16 22 50 52 68 62 DN20 15 10 10 62 30 16 22 50 52 68 62 DN25 20 16 18 73 38 22 25 50 52 68 62
一内
一外DN20 15 18 10 65 30 16.5 21.5 50 52 68 62 DN25 20 14 15 91 38 20 25 50 52 68 62 DN32 20 16 16 79 46 23 28 50 52 68 68
全通径DN15
--
DN20 DN25
DN32DN40
DN50
重量双内螺纹 一内一外 全通径 备注:
阀体材质为的黄铜阀重量DN8 DN10 DN15 DN20 DN25 DN20 DN25 DN32 DN20 DN25 0.258 0.220 0.342 0.330 0.333 0.333 0.502 0.752 0.446 0.627 注明: Q1:表示阀门带转接板连接 Q2:表示阀体和执行器之间无转接板连接 (单位:mm 重量:kg)

微型电动球阀是我公司的小型电动阀门品种,其执行器和阀体的一体化设计,大地减小了外形体积,为在仪器仪表及小型设备上的使用提供了方便。阀球、阀杆采用浮动密封结构,既减小了扭力又克服了结垢导致开关不灵的弊病。
使用和维护及故障排除方法
1、安装与使用
(1)环境要求
①本产品即可在室内安装,也可在室外安装。
②本产品属非防爆产品,请注意避开易燃、易爆等环境。
③在有雨水、原料等飞溅和阳光直射的环境,需要安装保护整台电动执行机构的防护装置。
④应有足够的空间便于操作人员手动操作以及就地拆卸和维修的可能性。
⑤应安装在周边环境温度为-30℃~60℃范围内,不能在高温环境下使用。
(2)使用要求
①产品适用于ISO5211标准的阀门:安装尺寸F03、F04、F05,阀杆四方11×11或9×9,阀杆高度≤16mm.。
②与阀门连接时,执行机构与阀门都处于全关位置。
③与阀门连接时完毕后用手柄驱动执行机构全开、全关一次,确认运行平稳、无偏心、无歪斜,检查阀门在执行机构开度指示范围内能否实现全关和全开。
④用力不可过猛,否则会导致执行机构超程运行而造成损坏。
(3)工作介质温度的要求
①与阀门配套使用时,工作介质温度传到执行机构上面,执行机构温度会升高。
②工作介质温度在80℃以下时可直接安装。
③工作介质温度在80℃以上时不可直接安装,需加装散热装置。

(4)电动试运转
①按箱体上的控制回路图正确连接线路,确认无误后打开电源。
②开关投向close,执行机构驱动阀门向关闭方向(顺时针)运行,直至关限位开关(K1)动作,电动执行机构停转。
③开关投向open,执行机构驱动阀门向全开方向(逆时针)运行,直至开限位开关(K2)动作,电动执行机构停转。
(5)极限位置开关(电气限位)的调整
①用手柄驱动执行机构至全关位置。
②松开行程档块D上的固定螺钉,顺时针方向转动D与之相对应的微动开关K1动作,在K1 刚刚发出动作响声时停止转动D并锁紧D上的固定螺钉,固定行程档块D,调试即可完毕。
3、保养与维修
(1)要经常检查管道有没有铁锈、焊渣、脏物、尘士;
(2)电源不能有故障;
(3)定期检修;
(4)停放时,接口都要用塑料塞堵上。
(5)由于使用了寿命长、耐压性好的高级钼基润滑油,所以无须点检及加油。
(6)在阀门动作很稀少时,请定期驱动执行机构,检查有无异常。
(7)当调节阀在使用中不能满足操作要求,或者经过一段长时期的运行为了预防事故发生而作定期检查时,先将阀从管线卸下,清洗、拆卸、更换元件,重新组装测试后重新安装。
注意事项:
1、通电时禁止手动操作。
2、除手动操作以外,请不要打开手动操作口的胶盖,以防止水或灰尘进入执行机构内部。
3、执行机构内部配有过热保护装置,当电机温度超过125℃时,过热保护装置将会自动切断电机电源。
4、使用时用户须加装漏电保护装置。
5、请确认输入电压及配线接点是否正确 。
6、不可将两台或数台执行机构的动力线串联或并联,否则由于电容的相互干扰将会造成动作失控和电机温升超标。
7、禁止超载使用执行机构。

订货须知:
一、①产品名称与型号②口径③是否带附件以便我们的为您正确选型④的使用压力⑤的使用介质的温度。
二、若已经由设计单位选定公司的型号,请按型号直接向我司销售部订购。
三、当使用的场合非常重要或环境比较复杂时,请您尽量提供设计图纸和详细参数,由我们的阀门公司专家为您审核把关。如有疑问:请:我们一定会尽心尽力为您提供优质的服务。提供全面、阀门系统解决方案",也十分愿意帮助用户解决生产中所遇到的难题。 -
联系方式
- 联系人:申弘阀门
- 电 话:021-59260058
- 手 机:15901754341
- 传 真:86-021-31662735
- 邮 箱:494522509@qq.com
- 邮 编:201718
- 地 址:上海市青浦区金泽工业园区
- 网 址: https://bengye.cn.goepe.com/
http://www.021-fm.com
-
产品搜索






