-
申弘美标电动球阀ASTM̴ASTM​​​̴
详细信息| 询价留言ASTM美标电动球阀简介
是工业自动化过程控制的一种管道压元件,通常用于管道介质的远程开、关(接通、切断介质)控制。电动球阀标准GB/T21465-2008《阀门术语》中定义为:启闭件(球体)由阀杆带动,并绕阀杆的轴线作旋转运动的阀门。主要用于截断或接通管路中的介质,亦可用于流体的调节与控制。

电动美标球阀原有球阀上加装一体式电装执行机构。通过远程控制电源输入电信号,达到控制阀门动作的目的。产品配用AOX执行机构,通常用于密封要求严格的场合。密封性能优良,流通能力大,流阻系数小,结构简单、维修方便、使用寿命长,阀体通道和连接管径相等并成一直径,介质几乎可以毫无损失的流过。
主要用于截断或接通介质,也可用于流体的调节与控制。广泛用于石油、化工、冶金、电力、建筑、热力、给排水、水处理等行业。按美国标准设计,制造,生产、检测的阀门叫做美标阀门。适用于Class150~Class1500的各种管路上。美标球阀的关闭件是个球体,球体绕阀体心线作旋转来达到开启、关闭的一种阀门。球阀在管路中主要用来做切断、分配和改变介质的流动方向。主要有API和ASME标准,ASTM是材料标准。

ASTM美标电动球阀产品特点
①阀杆防飞出结构:当介质通过阀门,阀体中腔的压力可能将阀杆推出。为防止这种情况发生,在阀杆下部设置一凸台结构,这样即使火灾时,填料,止推轴承被烧损或其他原因引起填料等损坏,阀体内的介质压力将使阀杆凸台与阀体上密封紧密接触,防止介质大量从损坏的填料部位处泄露;
②防静电装置:当操作阀门时,由于球体和聚四氟乙烯等非金属材料阀座之间摩擦,会产生静电电荷并聚积在球体行。为防止产生静电火花,特在阀门上设置防静电装置,把产生的静电导出;
③防火结构:本公司浮动球阀阀座采用独特结构,当发生火灾时,非金属密封面材料烧毁时,金属环利用弹簧的弹力推动阀座与球体吻合密封,从而阻止火势蔓延和介质外流;
④中部法兰无外漏结构:阀体与左体的连接部位是靠垫片密封,为防止由于火灾、高温或震动等因素引起的该处密封泄露,特设计为阀体与左体金属金属接触,形成止口法兰,保证无外漏;
⑤自动泄压结构:当滞留在阀门中腔的介质由于管道系统压力或介质温度等因素引起的变化,从而出现中腔压力异常升高时,中腔介质能依靠本身的推力推动阀座而自动泄压,从而确保阀门的安全。

ASTM美标电动球阀主要零件材料:序号
NO零件名称 材质 GB ASTM 1 阀体 WCB A2116-WCB 2 密封圈 PTFE PTFE 3 球体 1C18Ni9Ti SS304 4 螺母 35 A194-2H 5 螺柱 35CrMoA A193-B7 6 石体 WCB A216-WCB 7 垫片 柔性石墨+不锈钢 B12.10-304F/.G 8 填料 PTFE PTFE 9 填料压盖 WCB A2116-WCB 10 定位片 25 A105 11 挡圈 65Mn AISI 1066 12 手柄 K33 A47-667
Gr.3251013 阀杆 1Cr33 A276-410 14 螺钉 35 A193-B7 15 止推垫片 PTFE PTFE 美标球阀技术规范:
设计依据 国标系列 美标系列 设计标准 GB/T12237 AP16D ANSI B16.34 法兰连接结构长度 GB/T12221 AP16D ANSI B16.10 结构长度(焊接) GB/T15188.1 AP16D ANSI B16.10 连接法兰 GB/T9113
JB/T79
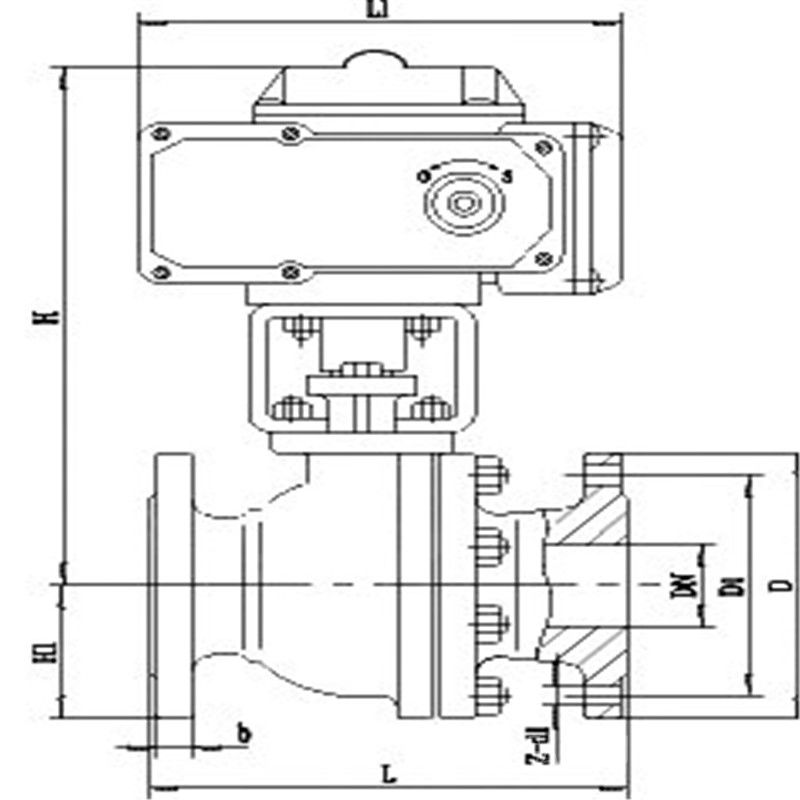
Hg20592ANSI B16.5、B16.47 对焊端 GB/T12224 ANSI B16.25 试验和检验 GB/T9092 AP16D AP1598 执行器类别 HR系列执行器参数 HQ系列执行器参数 电源电压 标准:220V AC单相 可选:110V AC 单相、380/440V AC 三相、24V/110V/220V AC 输出力矩 50N·M~2000N·M 50N·M~3000N·M 动作范围 0~90° 0~360° 0~90°、0°~270°可选 控制方式 开关到位灯(开关两位控制)、无源触点信号、1/5K电位计、智能调节(4~20mA模拟量信号控制) 动作时间 15秒/30秒/60秒 18S~112S 保护装置 过热保护 内置过热保护、过载保护 环境温度 -30°~60° -20℃~+70℃ 手动操作 同附带手柄操作 机械离合机构,配手轮操作 机械限位 电气、机械二重限位 2个外部调整螺栓 防护等级 IP65 IP65、IP67、可定制IP68 防爆等级 无防爆 ExdⅡ BT4,ExdⅡ CT6 位置测量 可选装开关或电位计 电位计、比例控制单元 驱动电机 8W/E 鼠笼式异步电机 进线接口 PE1/2〞进线线锁 2个 PF 3/4" 壳体材料 铝合金 钢,铝合金,铝青铜,聚碳酸脂 外涂层 干粉,环氧聚酯,具有超强防腐功能 型号
规格 (mm)
尺寸 (mm)
inch
DN
L
D
D1
D2
b
Z-Φd
H
W
Q41F/H/Y-150Lb
Q341 F/H/Y-150Lb
Q641 F/H/Y-150Lb1/2″
15
108
89
60.5
35
12
4-Φ15
68
115
3/4″
20
117
98
70
43
12
4-Φ15
75
130
1″
25
127
108
79.5
51
12
4-Φ15
85
150
11/4″
32
140
117
89
64
13
4-Φ15
96
190
11/2″
40
165
127
98.5
73.2
15
4-Φ15
107
230
2″
50
178
152
120.7
92
16
4-Φ19
118
240
21/2″
65
190
177.8
139.7
104.7
18
4-Φ19
145
280
3″
80
203
190.5
152.4
127
19
4-Φ19
160
310
4″
100
229
229
190.5
157
24
8-Φ19
185
330
5″
125
356
254
216
185.7
26
8-Φ22
230
600
6″
150
394
279
241.3
216
26
8-Φ22
260
800
8″
200
457
343
298.5
270
29
8-Φ22
310
1000
10″
250
533
406
362
324
31
12-Φ25
350
1200
300Lb主要连接尺寸:
型号
规格(mm)
尺寸 (mm)
inch
DN
L
D
D1
D2
b
Z-Φd
H
W
Q41F/H/Y-300Lb
Q341F/H/Y-300Lb
Q641F/H/Y-300LbY1/2″
15
140
95
66.5
35
15
4-Φ15
72
115
3/4″
20
152
117
82.5
43
16
4-Φ19
75
130
1″
25
165
124
89
51
18
4-Φ19
85
150
11/4″
32
178
133
98.5
64
19.5
4-Φ19
95
180
11/2″
40
190
156
114.3
73.2
21
4-Φ22
110
230
2″
50
216
165
127
92
23
8-Φ19
120
240
21/2″
65
241
190.5
149.4
104.7
26
8-Φ22
150
280
3″
80
283
210
168.5
127
29
8-Φ22
165
310
4″
100
305
254
200.2
157
32
8-Φ22
190
330
5″
125
381
279
235
185.7
35
8-Φ22
240
600
6″
150
403
318
270
216
37
12-Φ22
270
800
8″
200
502
381
330
270
42
12-Φ25
315
1000
10″
250
568
445
387.5
324
48
16-Φ29
380
1200
600Lb主要连接尺寸:
型号
规格 (mm)
尺寸(mm)
inch
DN
L
D
D1
D2
b
Z-Φd
H
W
Q41F/H/Y-600Lb
Q341F/H/Y-600Lb
Q641F/H/Y-600Lb1/2″
15
165
95
66.5
35
15
4-Φ15
88
115
3/4″
20
190
118
82.5
43
16
4-Φ19
98
130
1″
25
216
124
89
51
18
4-Φ19
105
150
11/2″
40
241
156
114.3
73.2
23
4-Φ22
135
180
2″
50
292
165
127
92
26
8-Φ19
155
240
3″
80
356
210
168.2
127
32
8-Φ22
175
280
4″
100
432
273
216
157
38
8-Φ25
210
330
6″
150
559
356
292
216
48
12-Φ29
340
800
8″
200
660
419
349
270
56
12-Φ32
400
1000
10″
250
787
508
432
324
64
16-Φ35
440
1200
球阀标准依照:①《通用阀门法兰和对焊连接钢制球阀》GB/T12237-89
②《铁制和铜制球阀》GB/T 15185-1994
③《钢制阀门 一般要求》GB/T 12224-2005
④《生活饮用水输配水设备及防护材料的安全性评价标准》 GB/T 17219-1998
执行器与阀门采用直联方式,外形精巧美观。电动法兰球阀可采用多种阀座,常温型采用四氟密封,高温型可采用对位聚苯或金属硬密封,具有磨擦系数低、操作力矩小、泄露量*高可达零泄露等优点,多种阀座材料可供选择,适应范围更广。电动法兰球阀配用的CHR系列执行机构可直接接收计算机或工业仪表等输出的4~20mADC或1~5VDC控制信号,根据阀位反馈信号与设定值比较偏差对执行机构驱动电机进行智能步距调整(PID调节),以实现与执行机构配套的阀门或其他装置开度的精确定位,同时输出4~20mADC的位置反馈信号。

请按以下指示进行安装ASTM美标电动球阀:(详情或见产品说明书)
(1)取掉法兰端两边的保护盖,在阀打开的状态下进行冲洗清洁。
(2)安装前应按规定的信号(电动或气动)进行整机测试(防止因运输产生振动影响使用性能),合格后方可上线安装(接线按电动执行机构线路图)。
(3)准备与管道连接前,须冲洗和清除干净管道中残存的杂质(这些物质可能会损坏阀座和球)。
(4)在安装期间,请不要用阀的执行机构部分作为起重的吊装点,以避免损坏执行机构及附件。
(5)本类阀应安装在管道的水平方向或垂直方向。
(6)安装点附近的管道不可有低垂或者承受外力的现象,可以用管道支架或者支撑物来消除管线的偏离。
(7)与管道连接后,请用规定的扭矩交叉锁紧法兰连接螺栓。

订货须知:一、①产品名称与型号②口径③是否带附件以便我们的为您正确选型④的使用压力⑤的使用介质的温度。
二、若已经由设计单位选定公司的型号,请按型号直接向我司销售部订购。
三、当使用的场合非常重要或环境比较复杂时,请您尽量提供设计图纸和详细参数,由我们的阀门公司专家为您审核把关。如有疑问:请:我们一定会尽心尽力为您提供优质的服务。提供全面、阀门系统解决方案",也十分愿意帮助用户解决生产中所遇到的难题。 -
联系方式
- 联系人:申弘阀门
- 电 话:021-59260058
- 手 机:15901754341
- 传 真:86-021-31662735
- 邮 箱:494522509@qq.com
- 邮 编:201718
- 地 址:上海市青浦区金泽工业园区
- 网 址: https://bengye.cn.goepe.com/
http://www.021-fm.com
-
产品搜索







