-
RKS水泵扩散器申弘
详细信息| 询价留言RKS水泵扩散器产品说明
水泵扩散器不仅仅是过滤外界的杂质,它还能替代弯头、过滤器以及泵吸入端的直管,从而降低了安装成本。水泵扩散器的出、入口端法兰规格可以是出口端法兰规格小于入口端,因此可以取代异径弯头。大的开通面积以及排放口使GI70-29水泵扩散器很少需要维修,容易排水和冲洗。快速开启旋钮可以节省打开阀盖的时间。阀体和阀盖之间采用O型环实现密封,而不是常规的平垫片,由此可以避免以后每次维修时更换垫片。水泵扩散器出口端的矫直叶片可以减小介质的紊乱,从而减少介质对泵的压力和侵蚀,因此,水泵扩散器也可以替代常规情况下为了消除介质紊乱而需要的直管,从而节省了空间,时间以及成本。

RKS水泵扩散器产品特点
1、面积大的冲孔过滤网,故内部压降小。
2、阀门内部采用特殊导向板,产生稳流,从而保护泵叶(防止产生气锁现象)。
3、阀体上可安装压力表,不用另装。
4、根据需要可配置双过滤器,可交替使用。
5、根据现场要求,可用支架来方便调节扩散过滤器的高度。
6、根据需求内部可安装磁铁来过滤铁粉,从而保护泵。
7、阀体上设有排泄塞,不需格外安装排污管道。
8、比传统的安装方式节省很多空间和管道材料。
9、本体内外均为粉体环氧树脂涂装,可避免生锈而影响水质。
10、压力表凸台接口,即由压差大小可判定是否过多垃圾堆于滤网外部。

水泵扩散器常用于水泵入口端代替过滤器与90度弯管系统,不仅大大节省了安装成本,而且出口独特的直导叶设计还大大减小了涡流对泵及系统的损害。

1、水泵扩散器的滤网可以根据客户的不同要求来制作,滤网的精度可由20目-200目选择。
2、水泵扩散器在出口端设有矫直器,能消除管路中的涡旋,矫正流体流向。
3、水泵扩散器很容易拆卸滤网进行清洗,在壳体留有排污口,可以快速排出腔内污垢。

RKS水泵扩散器性能参数
公称压力
工作温度
适用介质
法兰标准
1.0~2.5
-10~250
水,蒸汽,油
GB/T17241.6
GB/T9113
试验压力:
公称压力
强度试验压力
zui大入口压力
1.0
1.5
1.0
1.6
2.4
1.6
2.5
3.75
2.5
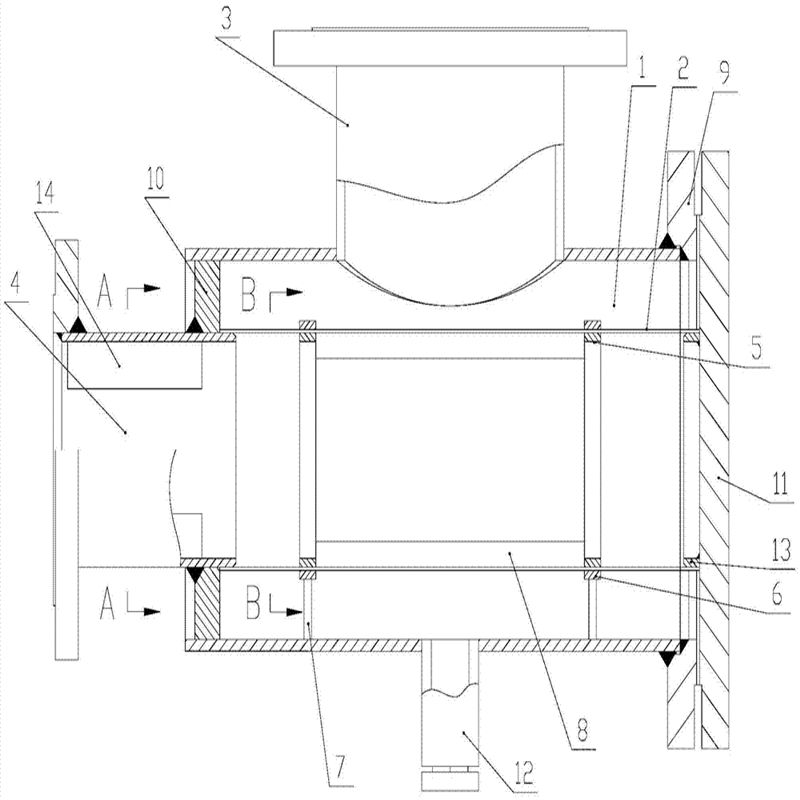
RKS水泵扩散器主要外形尺寸:序号
零件名称
材 料
序号
零件名称
材 料
1
阀 体
球铁或焊接不锈钢
5
滤 扎 罩
不锈钢
2
阀 盖
球铁或焊接不锈钢
6
螺 栓
镀锌板或不锈钢
3
整 流 板
球铁或焊接不锈钢
7
密 封 劵
丁橡胶
4
滤 网
不锈钢
8
螺 塞
镀锌板或不锈钢
公称通径 DN(mm)
G
L
D
z-d
A
B
PN1.0
PN1.6
PNI.0
PN1.6
50
1/2
200
160
160
4-18
4-18
95
105
65
1/2
210
180
180
4-48
4-18
110
115
80
1/2
240
195
195
8-18
8-18
135
140
100
1/2
150
215
215
8-18
8-18
150
150
125
1/2
290
245
245
8-18
8-18
155
155
150
3/4
320
280
280
8-23
8-23
170
170
200
3/4
410
335
335
8-23
12-23
230
245
250
3/4
450
395
405
12-23
12-25
250
250
300
1
510
445
460
12-23
16-25
275
275
350
1
570
505
520
16-23
16-25
315
315
400
2
640
565
580
16-25
16-30
360
360
450
2
730
615
640
20-26
20-30
400
400
500
2
805
670
705
20-26
20-34
460
470
600
2
940
780
840
20-30
20-41
560
580
350X250
3/4
460
405
405
12-23
12-25
250
250
400X350
1
570
460
460
12-23
16-25
315
315
500X300
1
650
520
520
16-23
16-25
360
315
500X400
1
660
580
580
16-25
16-30
360
306

是安装水泵的进口端,起着保护水泵的作用。有过滤介质、矫直流体的功能。并且,它在管路中能代替弯头和大小头。降低了成本,方便了安装,可以水平或垂直安装在管道上。的滤网可以根据客户的不同要求来制作,滤网的精度可由20目-200目选择。在出口端设有矫直器,能消除管路中的涡旋,矫正流体流向。很容易拆卸滤网进行清洗,在壳体留有排污口,可以快速排出腔内污垢。

吸入口扩散器/直接安装在泵的吸入端,具有特殊过滤设置能有效剔除杂物,平直的整流板能够为泵提供平稳的水流,减少乱流对泵的冲击和侵蚀,节省了泵的入口导流管,可大幅度减少安装空间,具有取代90度弯管,Y型过滤器及整流管的功能。过滤器是输送介质管道上不可缺少的一种装置,通常安装在减压阀、泄压阀、定水位阀或其它设备的进口端,用来消除介质中的杂质,以保护阀门及设备的正常使用。当流体进入置有一定规格滤网的滤筒后,其杂质被阻挡,而清洁的滤液则由过滤器出口排出,当需要清洗时,只要将可拆卸的滤筒取出,处理后重新装入即可,因此,使用维护极为方便。
订货须知:
一、①产品名称与型号②口径③是否带附件以便我们的为您正确选型④的使用压力⑤的使用介质的温度。
二、若已经由设计单位选定公司的型号,请按型号直接向我司销售部订购。
三、当使用的场合非常重要或环境比较复杂时,请您尽量提供设计图纸和详细参数,由我们的阀门公司专家为您审核把关。如有疑问:请:我们一定会尽心尽力为您提供优质的服务。提供全面、*的“阀门系统解决方案",也十分愿意帮助用户解决生产中所遇到的难题。 -
联系方式
- 联系人:申弘阀门
- 电 话:021-59260058
- 手 机:15901754341
- 传 真:86-021-31662735
- 邮 箱:494522509@qq.com
- 邮 编:201718
- 地 址:上海市青浦区金泽工业园区
- 网 址: https://bengye.cn.goepe.com/
http://www.021-fm.com
-
产品搜索







