-
RKG扩散过滤器申弘
详细信息| 询价留言RKG扩散过滤器产品说明
水泵扩散器不仅仅是过滤外界的杂质,它还能替代弯头、过滤器以及泵吸入端的直管,从而降低了安装成本。水泵扩散器的出、入口端法兰规格可以是出口端法兰规格小于入口端,因此可以取代异径弯头。大的开通面积以及排放口使GI70-29水泵扩散器很少需要维修,容易排水和冲洗。快速开启旋钮可以节省打开阀盖的时间。阀体和阀盖之间采用O型环实现密封,而不是常规的平垫片,由此可以避免以后每次维修时更换垫片。

是一种新型泵入口过滤器,是一种集管道除污、过滤、弯头与变径体的综合性过滤器。扩散式过滤器自身可扩散流向,降低管道内的流速,在流动过程中又可适当的降低流速,也可通过内部导向板使流体分散并均匀的分布流速,保障了泵的长期稳定的运转。
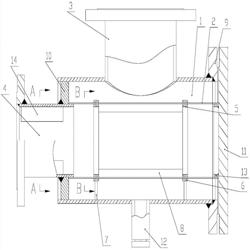
一种扩散过滤器,包括壳体,壳体的顶部设有进口端,壳体的一侧设有出口端,进口端的下方设有过滤网,过滤网设置在壳体内,进口端与过滤网之间设有缓冲板,缓冲板安装在壳体内.本实用新型有益的效果是:采用缓冲板能够减缓水流进入壳体内的流速,减少水流对过滤网的冲击力,防止了过滤网的损坏,提高了过滤效果,也避免了更换过滤网,降低了成本,采用分流板能够使出口端的水流流速均匀规则,防止出现震动现象,防止扩散过滤器的损坏,使用效果好,利于推广.

※ 起泡点法测试原理:当滤膜和滤芯用一定的溶液完全浸润,然后通过气源在一侧加压(我们仪器里面有进气控制系统,可以稳定压力,调节进气),随着压力的增加,气体从滤膜的一侧放出,表现膜一侧出现大小、数量不等的气泡,通过仪器判断出对应的压力值就是泡点。
※ 扩散流法测试原理:扩散流测试是指当气体压力在滤芯起泡点值的80%时,这时还没有出现大量的气体穿孔而过,只是少量的气体先溶解到液相的隔膜中,然后从该液相扩散到另一面的气相中,这部分气体称之为扩散流。
※ 为什么扩散流的方法更好:起泡点值只是一个定性的值,从开始起泡到zui后的群起泡是一个比较长的过程,不能准确的定量。而测量扩散流值是一个定量值,不但能准确的确定过滤器的完整性,而且还能反应出膜的孔隙率、流量和有效过滤面积等方面的问题,这也就是为什么现在国外厂家都用扩散流法测试完整性的原因。
※ 水侵入法测试原理:水侵入法于疏水性滤芯的测试,疏水性膜抗拒水,孔径越小,把水挤入疏水膜中需要的压力越大。所以在一定的压力下,测量挤入滤膜中的水流量来判断滤芯的孔径。

扩散过滤器安装在泵的入口处,起到导流作用,能够为泵提供平衡的水流,保护泵的叶片,具有稳定 水流,提高水泵效率,延长水泵寿命的功能。扩散式过滤器采用过滤面积大的不锈钢过滤网,减小了压力损失与阻力,扩散过滤器适用于各种安装条 件,也可水平或垂直安装,缩小了安装空间,并减少了施工费用,具有取代90度弯头、变径管、其它过滤 器及整流管的功能。

RKG扩散过滤器特点:
扩散过滤器滤网,滤罩和整流板可拆换,易于清洗。 扩散过滤器内外均为粉体环氧树脂涂装,可避免生锈而影响水质。 各式标准管径及支撑凸台设计。 压力表凸台接口,籍由压差大小可判定是否过多垃圾堆于滤网外部。

1、面积大的冲孔过滤网,故内部压降小。
2、阀门内部采用特殊导向板,产生稳流,从而保护泵叶(防止产生气锁现象)。
3、阀体上可安装压力表,不用另装。
4、根据需要可配置双过滤器,可交替使用。
5、根据现场要求,可用支架来方便调节扩散过滤器的高度。
6、根据需求内部可安装磁铁来过滤铁粉,从而保护泵。
7、阀体上设有排泄塞,不需格外安装排污管道。
8、比传统的安装方式节省很多空间和管道材料。
9、本体内外均为粉体环氧树脂涂装,可避免生锈而影响水质。
10、压力表凸台接口,即由压差大小可判定是否过多垃圾堆于滤网外部。
RKG扩散过滤器主要特点:
1、扩散式过滤器直接安装在泵的入口处,起到导流作用,能够为泵提供平衡的水流,保护泵的叶片,具有稳定水流,提高水泵效率,延长水泵寿命的功能。
2、扩散式过滤器采用过滤面积大的不锈钢过滤网,减小了压力损失与阻力,适用于各种安装条件,也可水平或垂直安装,缩小了安装空间,并减少了施工费用,具有取代90度弯头、变径管、其它过滤器及整流管的功能。

性能参数公称压力
工作温度
适用介质
法兰标准
1.0~2.5
-10~250
水,蒸汽,油
GB/T17241.6
GB/T9113
性能参数
公称压力
强度试验压力
*大入口压力
1.0
1.5
1.0
1.6
2.4
1.6
2.5
3.75
2.5
主要零部件材料 Main Part Material
序号
零件名称
材料
序号
零件名称
材料
1
阀体
球铁或焊接不锈钢
5
滤扎罩
不锈钢
2
阀盖
球铁或焊接不锈钢
6
螺栓
镀锌板或不锈钢
3
整流板
球铁或焊接不锈钢
7
密封
丁腈橡胶
4
滤网
不锈钢
8
螺塞
镀锌板或不锈钢
主要外形和连接尺寸Main External And Connection Dimension
公称通径DN(mm)
G
L
D
z-d
A
B
PN1.0
PN1.6
PN1.0
PN1.6
50
1/2
200
160
160
4-18
4-18
95
105
65
1/2
210
180
180
4-48
4-18
110
115
80
1/2
240
195
195
8-18
8-18
135
140
100
1/2
150
215
215
8-18
8-18
150
150
125
1/2
290
245
245
8-18
8-18
155
155
150
3/4
320
280
280
8-23
8-23
170
170
200
3/4
410
335
335
8-23
12-23
230
245
250
3/4
450
395
405
12-23
12-25
250
250
300
1
510
445
460
12-23
16-25
275
275
350
1
570
505
520
16-23
16-25
315
315
400
2
640
565
580
16-25
16-30
360
360
450
2
730
615
640
20-26
20-30
400
400
500
2
805
670
705
20-26
20-34
460
470
600
2
940
780
840
20-30
20-41
560
580
350X250
3/4
460
405
405
12-23
12-25
250
250
400X350
1
570
460
460
12-23
16-25
315
315
500X300
1
650
520
520
16-23
16-25
360
315
500X400
1
660
580
580
16-25
16-30
360
306
订货须知:
水泵扩散器出口端的矫直叶片可以减小介质的紊乱,从而减少介质对泵的压力和侵蚀,因此,水泵扩散器也可以替代常规情况下为了消除介质紊乱而需要的直管,从而节省了空间,时间以及成本。水泵扩散器常用于水泵入口端代替过滤器与90度弯管系统,不仅大大节省了安装成本,而且出口独特的直导叶设计还大大减小了涡流对泵及系统的损害。

水泵多功能扩散过滤器缩短入口管道,减轻泵的负重,采用法兰连接,减少人工费用,缩短工程时 间,减少安装空间。导流扩散过滤器安装在泵的入口处,起到导流作用,能够为泵提供平衡的水流,保护泵的叶片,具有稳定 水流,提高水泵效率,延长水泵寿命的功能。采用过滤面积大的不锈钢过滤网,减小了压力损失与阻力,吸入口扩散导流过滤器适用于各种安装条件,也可水平或垂直安装。

一、①产品名称与型号②口径③是否带附件以便我们的为您正确选型④的使用压力⑤的使用介质的温度。
二、若已经由设计单位选定公司的型号,请按型号直接向我司销售部订购。
三、当使用的场合非常重要或环境比较复杂时,请您尽量提供设计图纸和详细参数,由我们的阀门公司专家为您审核把关。如有疑问:请:我们一定会尽心尽力为您提供优质的服务。提供全面、*的“阀门系统解决方案",也十分愿意帮助用户解决生产中所遇到的难题。 -
联系方式
- 联系人:申弘阀门
- 电 话:021-59260058
- 手 机:15901754341
- 传 真:86-021-31662735
- 邮 箱:494522509@qq.com
- 邮 编:201718
- 地 址:上海市青浦区金泽工业园区
- 网 址: https://bengye.cn.goepe.com/
http://www.021-fm.com
-
产品搜索








