-
SSDF水上式底阀申弘
详细信息| 询价留言SSDF水上式底阀产品说明
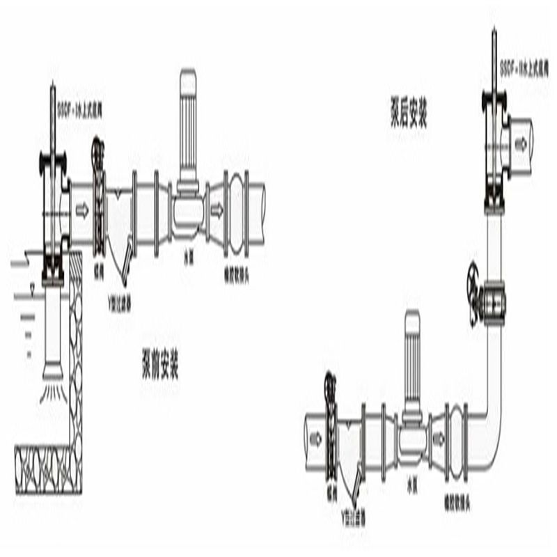
本实用新型涉及机械领域,尤其涉及流体管道技术,特别是一种水上式底阀。SSDF水上式底阀由、阀体、阀瓣、活塞杆、阀盖、定位柱等零件组成。详见下图。启动水泵前先向吸水管中充满液体,使水泵有足够的吸力,将液体吸入阀门,打开活塞阀瓣,从而进行供水作业,当停泵后,阀瓣在液压力和本身重力的作用下关闭,而阻止液体回到泵前。

技术背景
为了保证水泵的泵腔内有足够的水,以便下次开机时能够正常启动, 需要防止泵停机后泵中的水回流。现有技术中,在泵的吸水管上设置底阀 来防止泵停机后泵中水回流,底阀采用水下式底阀。由于水下式底阀浸入 水中,因此底阀上的胶垫容易损坏,引起底阀漏水,不能有效地防止回流, 影响泵的工作性能,须经常检修拆换,给使用带来不便。 发明内容
本实用新型的目的是提供一种水上式底阀,所述的这种水上式底阀要 解决现有技术中底阀浸入水中后胶垫容易损坏的技术问题。
本实用新型的这种水上式底阀由一个竖管、 一个阀片和一个阀座构 成,其中,所述的阀座固定设置在所述的竖管的径向截面中,阀座中设置 有轴向的通孔,所述的阀片设置在阀座的上侧,阀片覆盖所述的通孔,阀 座以下的竖管向下具有一个延伸段,阀座以上的竖管上连接有一个水平 管,所述的水平管与竖管连通,水平管的轴向垂直于竖管的轴向。
进一步的,所述的延伸段的底端固定设置有一个滤罩。每台水泵要安装一只底阀,底阀通常安装于水面以下,而水上式底阀则安装于水面以上,它是老式底阀的更新换代产品,是理想的引水设备而且亦可取代真空泵及抽真空装置。
底阀是一种节约能源的阀,一般安装在水泵水下吸管的底端.限制水泵管内液体返回水源,起着只进不出的功能.阀盖上有很多个进水口和加强筋,主要应用在抽水的管路上,水上式底阀作为原水下式底阀的更新换代产品,节能效果明显,且不易阻塞。
本实用新型的工作原理是竖管通过支架固定在吸水池的侧壁上,延 伸段伸入水面以下,阀座位于水面以上。水泵停车时,阀片以上的竖管内、 水平管内保存有水,阀片在竖管内水压力和本身重量作用下封闭阀座中的 通孔,使水不能逆流。
本实用新型与已有技术相对照,其效果是积极和明显的。本实用新型将底阀设置于吸水池液面之上,停机时借助吸水管中的水的压力与阀片自 身重力使底阀闭合,可防止泵中的水回流,由于底阀位于液面之上,胶垫 不容易损坏,同时对阀的检修也比较方便。

SSDF水上式底阀特点
1.水上式底阀是替代水下式底阀、安装于水面以上水平管与进水管的90°转弯处,亦可代替弯头,其密封性能独特,达到滴水不漏,并设有阻尼装置,对水锤危害有一定的减缓作用。
2.节能效果显著,在正常工作使用时(按千吨/米耗电量)可节能5-7%左右,使用一至两年,所节省电费可收回您为购买此阀的投资费用,其节能效果是一般底阀所不能达到的。
3.使用寿命长、维修方便,该底阀使用寿命在五年以上,大大地降低了生产成本,且在使用期内一般没有什么故障,即使有故障,处理也极为方便、迅速。充分显示了它的优越性。
4.自吸性能可靠,众所周知,老式底阀的密封性能很差,经常会出现停泵后不能出水的问题,而水上式底阀具有独特的密封效果,可以达到滴水不漏,确保下一次起泵的顺利进行,因此在设计过程中,不必考虑因起泵不出水而选用投资很大的水下泵房给水工程方案。
5.本产品连接法兰全部符合GB规定,通用性能好。
一种水上式底阀,由一个竖管、一个阀片和一个阀座构成,其特征在于所述的阀座固定设置在所述的竖管的径向截面中,阀座中设置有轴向的通孔,所述的阀片设置在阀座的上侧,阀片覆盖所述的通孔,阀座以下的竖管向下具有一个延伸段,阀座以上的竖管上连接有一个水平管,所述的水平管与竖管连通,水平管的轴向垂直于竖管的轴向。水上式底阀,其特征在于所述的延伸段的底端固 定设置有一个滤罩。
主要材质序号 1 2 3 4 5 6 7 8 9 10 11 12 名称 阀体 阀瓣 阀杆 阀盖 阀杆套 密封圈 螺栓螺母 螺母 密封圈 压板 螺母
SSDF水上式底阀使用说明:
1、安装要求:安装在水泵吸水管的垂直管与水平管的转弯处,安装时应保证其垂直状态。
2、启动:首次启动前向水平管中充满水之后迅即启动,造成吸水管内半真空状态,将水吸入竖直管,以完成泵水过程。吸程过大时需要重复几次充水启动,以后停泵,开泵前不必充水。
3、检修:一般情况下使用不必检修。当需要检修时,只须将水上式底阀上面的阀盖打开,更换橡胶垫即可,检修后仍按首次启泵方法启动。SSDF水上式底阀外形尺寸:
公称通径
DN(mm)D D1 A B 0.6MPa 1.0MPa 1.0MPa 1.6MPa 50 140 160 110 125 100 100 65 160 180 130 145 110 110 80 185 195 150 160 120 120 100 205 215 170 180 130 130 150 260 280 225 240 150 150 200 315 335 280 295 190 190 250 370 390 335 350 240 240 300 435 440 395 400 290 290 350 485 500 445 460 340 340 400 535 565 495 515 390 390 450 590 615 550 565 440 440 500 640 670 600 620 490 490 600 755 780 705 725 590 590 摘要一种水上式底阀,由一个竖管、一个阀片和一个阀座构成,阀座固定设置在竖管的径向截面中,阀座中设置有轴向的通孔,阀片设置在阀座的上侧,阀片覆盖通孔,阀座以下的竖管向下具有一个延伸段,阀座以上的竖管上连接有一个水平管,水平管与竖管连通。延伸段的底端固定设置有一个滤罩。竖管通过支架固定在吸水池的侧壁上,延伸段伸入水面以下,阀座位于水面以上。水泵停车时,阀片以上的竖管内、水平管内保存有水,阀片在竖管内水压力和本身重量作用下封闭阀座中的通孔,使水不能逆流。由于底阀位于液面之上,胶垫不容易损坏,同时对阀的检修也比较方便。

SSDF水上式底阀使用说明
1、规格:DN50、DN65、DN80、DN100、DN125、DN150、DN200、DN250、DN300、DN400、DN500、DN600、DN700、DN800等规格。
2、公称压力:0.6MPa
3、安装要求:安装在水泵吸水管的垂直管与水平管的转弯处,安装时应保证其垂直状态。
4、启动:首次启动前向水平管中充满水之后迅即启动,造成吸水管内半真空状态,将水吸入竖直管,以完成泵水过程。吸程过大时需要重复几次充水启动,以后停泵,开泵前不必充水。
5、检修:一般情况下使用不必检修。当需要检修时,只须将水上式底阀上面的阀盖打开,更换橡胶垫即可,检修后仍按首次启泵方法启动。
6、如使用在酸碱浓度较高的流体中,请您选用不锈钢材质的水上式底阀,同时我厂可根据用户要求生产全塑料水上式底阀或316L(钼尔钛)材质的水上式底阀
订货须知:
一、①产品名称与型号②口径③是否带附件以便我们的为您正确选型④的使用压力⑤的使用介质的温度。
二、若已经由设计单位选定公司的型号,请按型号直接向我司销售部订购。三、当使用的场合非常重要或环境比较复杂时,请您尽量提供设计图纸和详细参数,由我们的阀门公司专家为您审核把关。如有疑问:请:我们一定会尽心尽力为您提供优质的服务。提供全面、*的“阀门系统解决方案",也十分愿意帮助用户解决生产中所遇到的难题。
-
联系方式
- 联系人:申弘阀门
- 电 话:021-59260058
- 手 机:15901754341
- 传 真:86-021-31662735
- 邮 箱:494522509@qq.com
- 邮 编:201718
- 地 址:上海市青浦区金泽工业园区
- 网 址: https://bengye.cn.goepe.com/
http://www.021-fm.com
-
产品搜索








