-
Z641H气动加长杆法兰式闸阀申弘
详细信息| 询价留言Z641H气动加长杆法兰式闸阀 产品说明
本实用新型涉及一种闸阀,具体涉及一种气动加长杆闸阀。因使用场所的不同,有些闸阀整体的高度很高,比如地埋式闸阀,这种闸阀需要埋在地下,因此对于闸阀整体的高度就非常高,闸阀整体高度变高,相应的阀杆也有变长,然而阀杆变长带来的结果是阀杆变得易断,制造难度相应提高,而且如果阀杆某处出现问题需要整体更换,给用户带来不便。
Z641H气动加长杆法兰式闸阀性能特点:
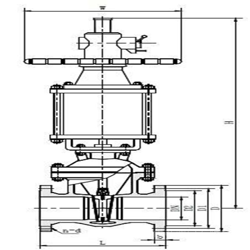
①本阀主要由阀体、阀盖、闸板、阀杆、密封圈、双层气缸及其活塞、活塞杆、隔板连同缓冲机构、手动机构、气动-手动转换装置和阀盖填料装置等部分组成。
②上活塞行至行程上端可顶上上回讯器,使之发讯;下活塞行之行程下端可顶下下回讯器,使之发讯,以作为闸阀开闭信息在中央操作室的模拟仪表盘上进行显示。
③手轮上部的外伸指示杆的上升和下降,标志着该阀的闸板是处于提升状态还是下降状态。闸阀关闭时,外伸指示杆位于*低位置;反之,闸阀全开时,外伸指示杆位于*高位置。此即为本阀启闭状态的现场指示。
④气缸盖上部装有气动-手动转换装置。将转换手柄顺时针方向提转到"气动"定位孔定位,闸阀处于气动操作状态;反之,将转换手柄逆时针方向提转到"手动"定于孔处定位,闸阀即可进行手动操作。带锥齿轮的手柄转换方向相反。手动操作闸阀时,手轮旋向和普通手动阀一样,即顺时针转为关,逆时针转为开。带锥齿轮转动的相反。
Z641H气动加长杆法兰式闸阀技术实现要素:
鉴于现有技术存在的不足,本实用新型创新提供了一种具有分段式结构阀杆的气动加长杆闸阀。该气动加长杆闸阀包括有阀体、阀盖、闸板、阀杆,其特征在于:所述阀杆由上阀杆与下阀杆通过连接件连接而成,所述连接件由左右两个连接体构成,连接体具有连接部与上下两个限位部,上下两个限位部之间具有限位槽,所述上阀杆的下部左右两个面上都设有上凹槽,所述下阀杆的上部左右两个面上都设有下凹槽,两个连接体位于上方的两个限位部分别置于上阀杆的两个上凹槽内,两个连接体位于下方的两个限位部分别置于下阀杆的两个下凹槽内,两个连接体通过螺栓连接。
具有气动执行机构(双层气缸并带有缓冲机构)和手动及其保护机构(手动和可自锁的气动手动转换装置)的低支架明杆闸阀。手轮上部的外伸指示杆的上升和下降,标志着该阀的闸板是处于提升状态还是下降状态。闸阀关闭时,外伸指示杆位于位置;反之,闸阀全开时,外伸指示杆位于*高位置。此即为本阀启闭状态的现场指示。 为了配合用户实现操作自动化,我厂除供应本系列产品之外,还可单独提供包括支架在内的气缸体,帮助用户对已有的种类繁多的手动闸阀进行改造。将我厂生产的气缸体安装在手动闸阀的阀体大盖上,即可构成双缸式气动手动两用闸阀。
以O.4~O.6MPa(表压)净化压缩空气作为工作动力,推动活塞,带动闸板作垂直于流体的位移,实现开启开关闭阀门的目的。
还包括气动执行机构,所述气动执行机构包括有气缸体与活塞,所述活塞匹配设置在气缸体内,并与阀杆连接,所述活塞与气缸体的上部之间设有多个弹簧,多个弹簧设在阀杆的周围,所述气缸体的上部设有与气缸体的内腔相通的泄压孔,所述气缸体的下部设有与气缸体的内腔相通的进气孔。是较为复杂的自动化控制仪表,由多种气动元件及阀体组成。多用于要求快速切断或开启的场合。
◎双作用:对阀门开启和关闭的两位式控制;
◎单作用:(弹簧复位):在电器和气路切断或故障时,阀门自动开启或关闭。

Z641H气动加长杆法兰式闸阀可选附件
1、单或双控电磁阀(有24V、220V等电压供选择,必要时可选防爆电磁阀)。
2、接近开关
3、气源处理三联件(包括减压阀、过滤器、油雾器)。
4、电/气阀门定位器(调节型用)。
Z641H气动加长杆法兰式闸阀性能规范
型号
公称压力
(MPa)实验压力
工作温度(℃)
适用介质
强度水(MPa)
密封(水)空气(MPa)
低压密封空气(MPa)
Z641H-16C
Z641W-16P(R)1.6
2.4
1.8
0.6
≤425
硝酸类
Z641W-25P(R)
2.5
3.8
2.8
0.6
≤200
醋酸类
Z641W-40P(R)
4.0
6.0
4.4
0.6
≤200
硝酸类
Z641W-64P(R)
6.4
9.6
7.0
0.6
≤200
醋酸类
Z641H气动加长杆法兰式闸阀主要零件材质
阀体/阀盖
ZGICr18Ni9Ti
ZG00Cr18Ni10
ZG1Cr18Ni12M02Ti
ZG00Cr17Ni14M02
WCB
零件名称
ZGICr18Ni9Tit系列
ZG00Cr18Ni10系列
ZG1Cr18Ni12M02Ti系列
ZG00Cr17Ni14M02系列
WCB系列
闸板
ZGICr18Ni9Ti
ZG00Cr18Ni10
ZG1Cr18Ni12M02Ti
ZG00Cr17Ni14M02
1Cr13
阀杆
1Cr18Ni9Ti
00Cr18Ni10
1Cr18Ni12M02Ti
00Cr17Ni14M02
1Cr13
填料
PTFE编织
PTFE编织
PTFE编织
PTFE编织
石墨
垫片
304L+PTFE
304L+PTFE
316+PTFE
316L+PTFE
石墨
压盖
ZGICr18Ni9Ti
ZG00Cr18Ni10
ZG1Cr18Ni12M02Ti
ZG00Cr17Ni14M02系列
WCB
填料压环
1Cr18Ni9Ti
00Cr18Ni10
1Cr18Ni12M02Ti
00Cr17Ni14M02
1Cr13
螺栓
1Cr17Ni2
1Cr17Ni2
1Cr17Ni2
1Cr17Ni2
35CrMoA
螺母
1Cr18Ni9Ti
1Cr18Ni9Ti
1Cr18Ni9Ti
1Cr18Ni9Ti
45
法兰闸阀-1.6MPa主要连接尺寸
尺寸
DN
15
20
25
32
40
50
65
80
100
125
150
200
250
300
350
400
450
500
600
L
mm
130
150
160
180
200
250
265
280
300
325
350
400
450
500
550
600
650
700
800
H
mm
175
180
210
210
350
358
373
435
500
614
674
818
1225
1415
1630
1780
2050
2181
2599
W
mm
180
180
200
200
200
240
240
280
320
360
360
400
450
500
500
600
720
720
720
法兰闸阀-2.5MPa主要连接尺寸
尺寸
DN
15
20
25
32
40
50
65
80
100
125
150
200
250
300
350
400
450
500
600
L
mm
130
150
160
180
200
250
265
280
300
325
350
400
450
500
550
600
650
700
800
H
mm
175
180
210
210
350
358
373
435
500
614
674
818
1225
1415
1630
1780
2050
2181
2599
W
mm
180
180
200
200
200
240
240
280
320
360
360
400
450
500
500
600
720
720
720
法兰闸阀-4.0MPa主要连接尺寸
尺寸
DN
15
20
25
32
40
50
65
80
100
125
150
200
250
300
350
400
L
mm
130
150
160
180
200
250
280
310
350
400
450
550
650
750
850
950
H
mm
175
180
210
210
350
358
373
435
500
614
674
818
1225
1415
1630
1780
W
mm
180
180
200
200
200
240
240
280
320
360
360
400
450
500
500
600
法兰闸阀-6.4MPa主要连接尺寸
尺寸
DN
15
20
25
32
40
50
65
80
100
125
150
200
250
300
350
400
L
mm
170
190
210
230
240
250
280
320
350
400
450
550
650
750
850
950
H
mm
175
180
210
230
350
359
373
435
500
614
674
818
970
1145
1280
1450
W
mm
120
120
140
160
200
240
280
320
360
400
400
450
560
640
800
800
法兰闸阀-10.0MPa主要连接尺寸
尺寸
DN
15
20
25
32
40
50
65
80
100
125
150
200
250
L
mm
170
190
210
230
240
250
280
310
350
400
450
550
650
H
mm
175
180
210
230
350
359
373
435
500
614
674
818
970
W
mm
120
120
160
180
240
280
320
360
400
450
560
640
720
法兰闸阀-16.0MPa主要连接尺寸
尺寸
DN
15
20
25
32
40
50
65
80
100
125
150
200
L
mm
170
190
210
230
240
300
340
390
450
525
600
750
H
mm
175
180
210
230
350
359
373
435
500
614
674
818
W
mm
120
120
140
160
200
240
280
320
360
400
400
450
本实用新型涉及一种具有分段式结构阀杆的气动加长杆闸阀。该气动加长杆闸阀包括有阀体、阀盖、闸板、阀杆,其特征在于:阀杆由上阀杆与下阀杆通过连接件连接而成,所述连接件由左右两个连接体构成,所述活塞上设置有弹簧座,所述弹簧座上设置有弹簧套,所述弹簧设置在弹簧套内。
Z641H气动加长杆法兰式闸阀安装注意事项(详情请另参考安装使用说明书)
闸阀与管道连接应保持自然顺畅,避免产生垂直于管线的弯曲力,闸阀与井室、井管部分应保持竖直安装。安装时,保证伸缩管与伸缩杆连接可靠,井室位置应以井室顶端与地面持平,要求阀门伸缩杆顶端到井室顶端的距离以8-10厘米为宜。
所述气缸体由气缸上盖、气缸主体、以及气缸底座构成,所述气缸上盖密封设置在气缸主体的上部,所述气缸底座密封设置在气缸主体的底部,所述气缸上盖与气缸底座通过螺杆与螺母实现固定连接。按照本实用新型提供的一种气动加长杆闸阀,由于阀杆分段成上阀杆与下阀杆,然后再通过连接件实现相连,因此整个阀杆更加牢固、更容易制造。
订货须知:
一、①产品名称与型号②口径③是否带附件以便我们的为您正确选型④的使用压力⑤的使用介质的温度。
二、若已经由设计单位选定公司的型号,请按型号直接向我司销售部订购。三、当使用的场合非常重要或环境比较复杂时,请您尽量提供设计图纸和详细参数,由我们的阀门公司专家为您审核把关。如有疑问:请:我们一定会尽心尽力为您提供优质的服务。提供全面、*的“阀门系统解决方案",也十分愿意帮助用户解决生产中所遇到的难题。
-
联系方式
- 联系人:申弘阀门
- 电 话:021-59260058
- 手 机:15901754341
- 传 真:86-021-31662735
- 邮 箱:494522509@qq.com
- 邮 编:201718
- 地 址:上海市青浦区金泽工业园区
- 网 址: https://bengye.cn.goepe.com/
http://www.021-fm.com
-
产品搜索










