-
Z645W气动暗杆楔式闸阀申弘
详细信息| 询价留言Z645W气动暗杆楔式闸阀 产品说明
摘要本实用新型公开了一种暗杆闸阀,包括阀体、密封座、闸板和闸板操纵机构,所述的闸板操作机构包括阀杆和手轮,所述的闸板包括中心处形成有通孔的闸体和形成在所述的闸体顶部连接筒,所述的连接筒与所述的通孔同轴设置,在所述的连接筒内壁面上形成有与阀杆底部螺纹匹配的内螺纹。本实用新型去除闸板的阀杆螺母安装通槽,而在阀闸板的顶部一体形成内设置有匹配螺纹的连接筒,利用连接筒内部螺纹与阀杆的传动即可实现闸板的上下移动,通槽的省却避免毛刺影响降低安装成本,闸板与阀杆直接螺纹连接更是简化了两者之间的连接关系,进一步提高生产效率,同时省却阀杆螺母,减少零部件使用还可有效降低成本,增大产品市场竞争力。

本实用新型涉及闸阀领域,尤其是一种暗杆闸阀。是具有气动执行机构(双层气缸,并带有缓冲机构)和手动及其保护机构(手动和可自锁的气动-手动转换装置)的低支架明杆气动闸阀。该阀由于采用双层气缸结构,其与单气缸式气动闸阀相比,提升力增大了一倍。这就从根本上解决了单气缸气动闸阀的某些阀体内楔死而打不开的弊病。由于气动闸阀具备缓冲机构,能有效地减速轻了关闭阀门时,由于活塞下行冲击而造成的阀板密封面和阀体密封面的磨损,同时也能避免闸板卡死的现象。
Z645W气动暗杆楔式闸阀背景技术:
闸阀在石油、化工、电力、消防和工业企业的给排水、供热及供气系统中有着广泛的应用,是管道连接输送流体介质的常用零部件之一。其中暗杆闸阀是消防领域普遍使用的闸阀,其阀杆螺母设在闸板上,工作时通过转动手轮来带动阀杆转动,从而实现闸板的升降,具有安装空间小的优点,适用于大口径或对安装空间受限制的闸阀。具有气动执行机构(双层气缸,并带有缓冲机构)和手动及其保护机构(手动和可自锁的气动-手动转换装置)的低支架明杆闸阀。该阀由于采用双层气缸结构,其与单气缸式气动闸阀相比,提升力增大了一倍。这就从根本上解决了单气缸气动闸阀的某些阀体内楔死而打不开的弊病。而且,由于该阀具备缓冲机构,能有效地减速轻了关闭阀门时,由于活塞下行冲击而造成的阀板车密封面和阀体密封面的磨损,同时,也能避免闸板卡死的现象。为了配合用户实现操作自动化,本公司除供应本系列产品之外,还可单独提供包括支架在内的气缸体,帮助用户对已有的种类繁多的手动闸阀进行改造,将双缸气动执行机构部分安装在手动闸阀的阀体大盖上,即可构成双缸式气动-手动两用闸阀。
现有技术中,阀杆上部通常固设有用于限位的卡环或者挡块,阀盖上部设有一压盖,且阀盖与压盖之间预留有用于装配卡环或者挡块的安装部,由此可实现对阀杆的限位作用,防止阀杆沿轴向滑动。但是这种结构的暗杆闸阀装配间隙较多,使用久了容易出现泄漏现象,且零部件较多,不利于安装和拆卸。
Z645W气动暗杆楔式闸阀工作原理:
1、气源由进气管输入,途经油雾器时带入适量的润滑剂。
2、当气源进入电磁阀后,电磁阀自动开启(上)或(下)输气管。
3、当气源进入气缸上进气口时,将活塞推向下部,使活塞接触下回讯顶杆,此时回讯器将信号返回,即阀门关闭。
4、当气源进入气缸下进气口时,将活塞推向上部,使活塞接触上回讯顶杆,此时回讯器将信号返回,即阀门开启。
5、连续作业时,按上述原理作往返运动。
Z645W气动暗杆楔式闸阀型号
型号 阀体、阀盖、闸板 密封圈 阀 杆 填 料 Z645H-10C/16C 铸钢、不锈钢 不锈钢 碳钢、不锈钢 浸油石棉盘根 Z645W-10P/16P Z645W气动暗杆楔式闸阀外形尺寸表:
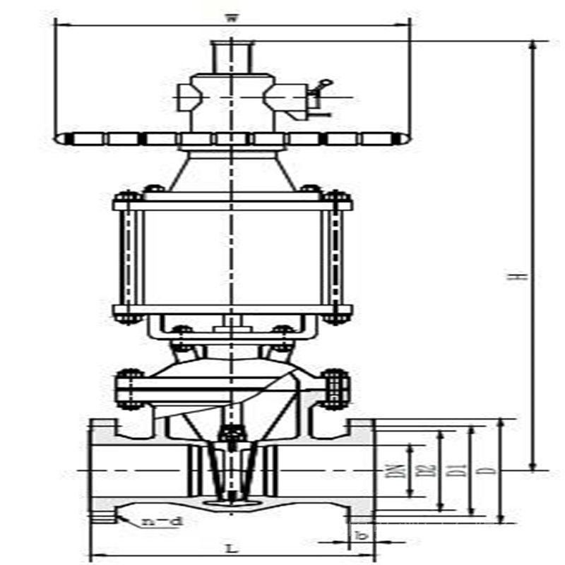
口径
DN(mm)Z45-16(C) L D H D0 40 240 345 200 160 50 250 355 240 180 65 265 375 240 180 80 280 435 280 200 100 300 500 320 200 125 325 615 360 240 150 350 675 360 240 200 400 750 400 320 250 450 970 450 320 300 500 1145 560 400 350 550 - - 400 400 600 - - 500 450 650 - - 500 500 700 - - 720 600 750 - - 720 700 - - - 800 800 - - - - 900 - - - - 1000 - - - - 本实用新型提供一种暗杆闸阀,其主要目的在于解决现有暗杆闸阀装配间隙较多,使用久了容易出现泄漏现象,且零部件较多,不利于安装和拆卸等的问题。

Z645W气动暗杆楔式闸阀气动执行器的日常维护工作:
1、气源应保持干燥和清洁,定期对过滤器进行放水。
2、保持气源压力正常<0.4~0.7MPa>,电气部分的电源信号无短路、断路故障;防止进水,保证电磁阀开关正常工作。
3、在正常工作情况下,每月检验一次,每年检修一次。
4、电磁阀安装时,特别注意电压是否符合要求,整机调度时,建议先用手动装置调试,然后再通电调试。

Z645W气动暗杆楔式闸阀使用说明
1、本阀主要由阀体、阀盖、闸板、阀杆、密封圈、双层气缸及其活塞、活塞杆、隔板连同缓冲机构、手动机构、气动-手动转换装置和阀盖填料装置等部分组成。
2、上活塞行至行程上端可顶上上回讯器,使之发讯;下活塞行之行程下端可顶下下回讯器,使之发讯,以作为闸阀开闭信息在中央操作室的模拟仪表盘上进行显示。
3、手轮上部的外伸指示杆的上升和下降,标志着该阀的闸板是处于提升状态还是下降状态。闸阀关闭时,外伸指示杆位于*低位置;反之,闸阀全开时,外伸指示杆位于*高位置。此即为本阀启闭状态的现场指示。
4、气缸盖上部装有气动-手动转换装置。将转换手柄顺时针方向提转到“气动”定位孔定位,闸阀处于气动操作状态;反之,将转换手柄逆时针方向提转到“手动”定于孔处定位,闸阀即可进行手动操作。带锥齿轮的手柄转换方向相反。 手动操作闸阀时,手轮旋向和普通手动阀一样,即顺时针转为关,逆时针转为开。带锥齿轮转动的相反。

订货须知:
一、①产品名称与型号②口径③是否带附件以便我们的为您正确选型④的使用压力⑤的使用介质的温度。
二、若已经由设计单位选定公司的型号,请按型号直接向我司销售部订购。三、当使用的场合非常重要或环境比较复杂时,请您尽量提供设计图纸和详细参数,由我们的阀门公司专家为您审核把关。如有疑问:请:我们一定会尽心尽力为您提供优质的服务。提供全面、*的“阀门系统解决方案",也十分愿意帮助用户解决生产中所遇到的难题。
-
联系方式
- 联系人:申弘阀门
- 电 话:021-59260058
- 手 机:15901754341
- 传 真:86-021-31662735
- 邮 箱:494522509@qq.com
- 邮 编:201718
- 地 址:上海市青浦区金泽工业园区
- 网 址: https://bengye.cn.goepe.com/
http://www.021-fm.com
-
产品搜索







