-     
Z941H电动法兰楔式闸阀申弘
详细信息| 询价留言Z941H电动法兰楔式闸阀 产品说明
本实用新型涉及液体管道的流量控制领域,具体地说是一种调节管道装置液体流量的控制阀。是管路系统中通过手轮转驱闸板沿通道轴线垂直方向移动切断接通介质流的控制部件,在使用过程中,阀门须是全开或全关,不能用作调节流量。闸阀关闭时,密封面可以只依靠介质压力来密封,即只依靠介质压力将闸板的密封面压向另一侧的阀座来使密封面的密封,这就是自密封。大部分闸阀是采用强制密封的,即阀门关闭时,要依靠外力强行将闸板压向阀座,以使密封面的密封性。电动装置配有转矩控制机构、现场操作机构和手、电动切换机构。除就地操作外,还可以进行远距离操作、PLC控制、4~20mA电流输入输出智能控制等。

1.符合标准的要求,密封好、性能优良、造型美观;
2.密封副配对合理,闸板和阀座的密封面采用不同硬度的硬质合金堆焊而成,密封、耐高温、耐腐蚀、抗擦伤性能好、使用长;
3.阀杆经调质及表面氮化处理,有良好的抗腐蚀性;
4.采用楔式弹性闸板结构,中大口径设置推力轴承,磨擦力小,并配有手轮,启闭轻;
5.可采用配管法兰标准及法兰密封面形式,符合工程需要及用户要求。
背景技术:
目前,在石油、化工、炼油、冶金等行业的管道流体控制领域,普遍使用的闸阀其与管道装置的连接方式是,其缺点是长期使用后不便于拆卸、维修与更换。

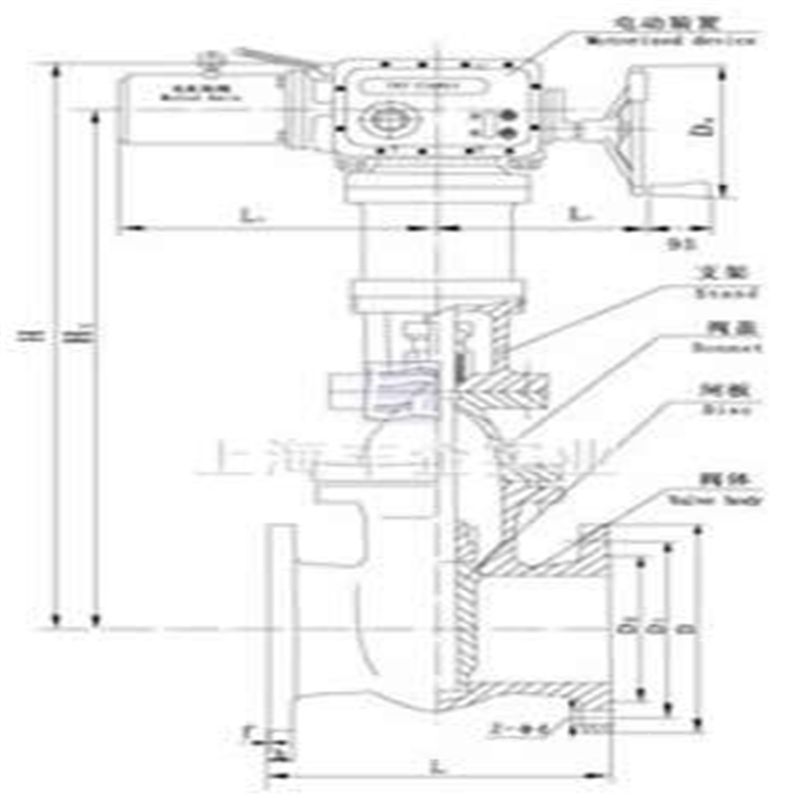
Z941H电动法兰楔式闸阀结构特点
①阀门采用压力自紧式密封或阀体、阀盖垫片密封结构,值得信赖!使用安全可靠。
②阀瓣采用双闸板中间带万向顶结构,能自动调整阀瓣与阀座密封面吻合度,保证阀门的密封。同时此结构维修方便,节约费用,阀瓣互换性较好。
③阀瓣、阀座密封面用钴铬钨硬质合金由等离子喷焊而成,密封面硬度高,耐磨擦,抗擦伤,使用寿命长。
④阀杆用渗氮钢制成,表面氮化处理,硬度高,抗擦伤,耐腐蚀,使用寿命长。
⑤电动装置配有转矩控制机构、现场操作机构和手、电动切换机构。除就地操作外,还可以进行远距离操作、PLC控制、4~20mA电流输入输出智能控制等。
⑥手动阀门由手动机构或撞击时手轮开启。减小阀门操作力。
⑦阀门可安装在管道的任何位置,同时根据介质和介质的温度选择碳钢或合金钢阀门。
⑧初次安装和调试时,必须手动把阀门开到约一半的位置,以免电机相序接反导致阀门或电装损坏。

实用新型内容
本实用新型为解决目前的阀门采用焊接连接方式,长期使用后不便于拆卸、维修与更换的问题,提供一种法兰式连接的阀门。本实用新型的技术方案是,一种法兰闸阀,包括阀体、闸板、法兰、阀盖、阀杆,其特殊之外是,阀体内左右两侧分别装有阀座,阀座内安装有楔式闸板,阀体两端与管道连接口处装配有法兰,阀体与阀盖螺栓连接,阀盖中部装有阀杆,阀杆下端与闸板连接,阀杆上部装有阀杆螺母,阀杆螺母上端与手轮连接;阀体与管道的连接方式为法兰连接。安装时,通过法兰将阀门连接在管道装置上。控制管道的流量时,转动手轮,手轮通过阀杆带动闸板转动,从而改变管道的流量。维修时,拆卸法兰螺栓,即可将阀门取出。本实用新型的技术效果是,采用上述的技术方案,可以实现一种法兰式连接的阀门,便于拆卸、维修与更换。阀门类型代号:Z表示闸阀;
连接方式代号:4表示法兰式;
结构形式代号:1表示楔式闸板;
密封面材料代号:W表示阀体直接加工、H表示合金钢;
阀体压力代号:16表示压力十六公斤;
Z941H电动法兰楔式闸阀执行标准
设计与制造 结构长度 法兰尺寸 压力-温度 试验-检验 GB12234 GB12221 GB9113 JB79 GB9131 GB/T13927 JB/T9092 压力试验
公称压力 1.6 2.5 4.0 6.4 10.0 16.0 强度试验 2.4 3.8 6.0 9.6 15.0 24.0 水密封试验 1.8 2.8 4.4 7.0 11.0 18.0 上密封试验 1.8 2.8 4.4 7.04 11.0 18.0 气密封试验 0.4-0.7 Z941H电动法兰楔式闸阀主要零件材料及性能
体盖板 阀 杆 密封面 垫 片 填 料 工作温度℃ 适用介质 WCB 2Cr13 13Cr 
STL
本体材料
尼龙增强柔性石墨 
1Cr13/柔性石墨
08软钢
0Cr18Ni9Ti
0Cr17Ni12Mo2Ti
XD550F(T)
PTFE柔性石墨 
增强柔性石墨
SFB/260
SFP/260
PTFE≤425 水、蒸汽、油品 WC1 38CrMoA1 
25Cr2MoV≤450 WC6 ≤540 WC9 ≤570 ZGCr5Mo ≤540 ZG1Cr18Ni9Ti 1Cr18Ni9Ti ≤200 销酸类 ZG1Cr18Ni12Mo2Ti 1C18Ni12Mo2Ti ≤200 醋酸类 电装型号 规格 主要尺寸
1.6MPa DN L D D1 D2 b n-Φd 电装型号 L1 H DO 凸面法兰 
RF
Z941H
Z941Y
Z941W
Z941F
Z940H
Z940Y
Z940W
Z940F
16C
16P
16R
16I40 200 145 110 85 16 4-Φ18 DZW10 590 595 365 50 250 160 125 100 16 4-Φ18 DZW10 590 653 365 65 265 180 145 120 18 4-Φ18 DZW10 590 665 365 80 280 195 160 135 20 8-Φ18 DZW15 590 725 365 100 300 215 180 155 20 8-Φ18 DZW20 590 787 365 125 325 245 210 185 22 8-Φ18 DZW20 590 934 365 150 350 280 240 210 24 8-Φ23 DZW20 590 955 365 200 400 335 295 265 26 12-Φ23 DZW30 590 1105 365 250 450 405 335 320 30 12-Φ25 DZW30 810 1343 470 300 500 460 410 375 30 12-Φ25 DZW45 810 1516 470 350 550 520 470 435 34 16-Φ25 DZW90 810 1678 470 400 600 580 525 485 36 16-Φ30 DZW120 830 1849 550 450 650 640 585 545 40 20-Φ30 DZW120 830 1937 550 500 700 705 650 608 44 20-Φ34 DZW180 830 2234 550 600 800 840 770 718 48 20-Φ41 DZW250 870 2432 320 700 900 910 840 788 50 24-Φ41 DZW250 870 2489 320 800 1000 1020 950 898 52 24-Φ41 DZW350 1170 2643 570 900 1100 1120 1050 998 54 28-Φ41 DZW500 1170 2935 570 1000 1200 1255 1170 1100 56 28-Φ48 DZW500 1170 3410 570 Z941H电动法兰楔式闸阀 PN2.5MPa
电装型号 规格 主要尺寸
2.5MPa DN L D D1 D2 b n-Φd 电装型号 L1 h D0 凸面法兰 
RF
Z941H
Z941Y
Z941W
Z941F
Z940H
Z940Y
Z940W
Z940F
25
25P
25R
25I40 200 145 110 85 18 4-Φ18 DZW10 590 595 365 50 250 160 125 100 20 4-Φ18 DZW10 590 653 365 65 265 180 145 120 22 8-Φ18 DZW10 590 665 365 80 280 195 160 135 22 8-Φ18 DZW15 590 725 365 100 300 230 190 160 24 8-Φ23 DZW20 590 787 365 125 325 270 220 188 28 8-Φ25 DZW20 590 902 365 150 350 300 250 218 30 8-Φ25 DZW20 590 955 365 200 400 360 310 278 34 12-Φ25 DZW30 810 1105 470 250 450 425 370 332 36 12-Φ30 DZW30 810 1343 470 300 500 485 430 390 40 16-Φ30 DZW60 810 1516 470 350 550 550 490 448 44 16-Φ34 DZW90 830 1678 550 400 600 610 550 505 48 16-Φ34 DZW120 830 1849 550 450 650 660 600 555 50 20-Φ34 DZW120 830 1937 550 500 700 730 660 640 52 20-Φ41 DZW180 870 2234 320 600 800 840 770 718 56 20-Φ41 DZW250 870 2432 320 700 900 955 875 815 60 24-Φ48 DZW500 870 2489 320 800 1000 1070 990 930 64 24-Φ48 DZW500 1170 2643 570 900 1100 1180 1090 1025 66 28-Φ54 DZW800 1170 2935 570 1000 1200 1305 1210 1140 68 28-Φ58 DZW800 1170 3410 570 
Z941H电动法兰楔式闸阀 PN4.0 MPa-6.4MPa电装型号 规格 主要尺寸
4.0MPa DN L D D1 D2 D6 b n-Φd 电装型号 L1 H D0 凹凸法兰 
MFM
Z941H
Z941Y
Z941W
Z940H
Z940Y
Z940W
40
40P
40R
40I40 200 145 110 85 76 18 4-Φ18 DZW10 590 630 365 50 250 160 125 100 88 20 4-Φ18 DZW10 590 691 365 65 280 180 145 120 110 22 8-Φ18 DZW10 590 711 365 80 310 195 160 135 121 22 8-Φ18 DZW15 590 775 365 100 350 230 190 160 150 24 8-Φ23 DZW20 590 871 365 125 400 270 220 188 176 28 8-Φ25 DZW20 590 948 365 150 450 300 250 218 204 30 8-Φ25 DZW30 810 1028 470 200 550 375 320 282 260 38 12-Φ30 DZW30 810 1325 470 250 650 445 385 345 313 42 12-Φ34 DZW45 810 1400 470 300 750 510 450 408 364 46 16-Φ34 DZW60 830 1653 550 350 850 570 510 465 422 52 16-Φ34 DZW90 830 1791 550 400 950 655 585 535 474 58 16-Φ41 DZW120 870 2092 320 500 1150 755 670 612 576 62 20-Φ48 DZW250 870 2465 320 600 1350 890 795 730 678 62 20-Φ54 DZW350 1170 - 570 700 1450 995 900 835 768 68 24-Φ54 DZW500 1170 - 570 800 1650 1135 1030 960 876 76 24-Φ58 DZW800 1060 - 500 6.4MPa 40 240 165 125 95 76 24 4-Φ23 DZW10 590 665 365 凹凸法兰 
MFM
Z941H
Z941Y
Z941W
Z940H
Z940Y
Z940W
64
64P
64R
64I50 250 175 135 105 88 26 4-Φ23 DZW10 590 790 365 65 280 200 160 130 110 28 8-Φ23 DZW10 590 840 365 80 310 210 170 140 121 30 8-Φ23 DZW20 590 890 365 100 350 250 200 168 150 32 8-Φ25 DZW20 590 1020 365 125 400 295 240 202 176 36 8-Φ30 DZW30 590 1100 365 150 450 340 280 240 204 38 8-Φ34 DZW30 810 1290 470 200 550 405 345 300 260 44 12-Φ34 DZW60 810 1470 470 250 650 470 400 352 313 48 12-Φ41 DZW90 830 1500 550 300 750 530 460 412 364 54 16-Φ41 DZW90 830 1820 550 350 850 595 525 475 422 60 16-Φ41 DZW120 870 2216 320 400 950 670 585 525 474 66 16-Φ48 DZW180 870 2838 320 500 1150 800 705 640 576 70 20-Φ54 DZW250 1170 3320 570 600 1350 930 820 750 678 76 20-Φ58 DZW500 1170 3684 570 Z941H电动法兰楔式闸阀 PN10.0MPa-16.0MPa
电装型号 规格 主要尺寸
10.0MPa DN L D D1 D2 D6 b n-Φd 电装型号 L1 H D0 凹凸法兰 
MFM
Z941H
Z941Y
Z941W
Z940H
Z940Y
Z940W
100
100P
100R
100I40 240 165 125 95 76 26 4-Φ23 DZW10 590 680 365 50 250 195 145 112 88 28 4-Φ25 DZW15 590 810 365 65 280 220 170 138 110 32 8-Φ25 DZW20 590 860 365 80 310 230 180 148 121 34 8-Φ25 DZW20 590 892 365 100 350 265 210 172 150 38 8-Φ30 DZW30 810 1013 470 125 400 310 250 210 176 42 8-Φ34 DZW45 810 1184 470 150 450 350 290 250 204 46 12-Φ34 DZW60 830 1250 550 200 550 430 360 312 260 54 12 -Φ41 DZW90 830 1450 550 250 650 500 430 382 313 60 12-Φ41 DZW120 870 1650 320 300 750 585 500 442 364 70 16-Φ48 DZW180 870 1800 320 350 850 655 560 498 422 76 16-Φ54 DZW250 1170 2030 570 400 950 715 620 558 474 80 16-Φ54 DZW500 1170 2250 570 16.0Mpa 40 260 175 125 92 76 32 4-Φ27 DZW15 590 812 365 凹凸法兰 
MFM
Z941H
Z941Y
Z941W
Z940H
Z940Y
Z940W
160
160P
160R
160I50 300 215 165 132 88 36 8-Φ25 DZW20 590 905 365 65 340 245 190 152 110 44 8-Φ30 DZW20 590 968 365 80 390 260 205 168 121 46 8-Φ30 DZW30 590 978 365 100 450 300 240 220 150 48 8-Φ34 DZW60 810 1043 470 125 525 355 285 238 176 60 8-Φ41 DZW90 810 1248 470 150 600 390 318 270 204 66 12-Φ41 DZW120 830 1394 550 200 750 480 400 345 260 78 12-Φ48 DZW120 830 1621 550 250 838 580 485 425 313 88 12-Φ54 DZW180 870 1935 320 300 965 665 570 510 364 100 16-Φ54 DZW250 870 2411 320 摘要一种法兰闸阀,由阀体、闸板、法兰、阀盖、阀杆构成,其特点是阀体内左右两侧分别装有阀座,阀座内安装有楔式闸板,阀体两端与管道连接口处装配有法兰,利用法兰与管道装置进行连接。它解决了目前社会上设计生产的闸阀,其与管道的连接方式普遍采用焊接连接,长期使用后不便于拆卸、维修与更换的问题。可广泛适用于液体、气体的管道装置流量控制领域。

安装
1、安装前做好阀门内部清洁,在其阀腔及密封面上不能有杂质存在。
2、用力均匀地将连接各部位的螺栓拧紧。
3、检查填料部位有无压紧,做到填料的密封严密,以及闸板能灵活开关。
4、安装前校对好该阀型号、尺寸等信息,介质流向必须与规定的流向保持一致。
5、安装时,要留有一定空间,方便阀门驱动的操作。
6、严格按找线路图指示,对驱动装置的接线进行布置。
订货须知:
一、①产品名称与型号②口径③是否带附件以便我们的为您正确选型④的使用压力⑤的使用介质的温度。
二、若已经由设计单位选定公司的型号,请按型号直接向我司销售部订购。三、当使用的场合非常重要或环境比较复杂时,请您尽量提供设计图纸和详细参数,由我们的阀门公司专家为您审核把关。如有疑问:请:我们一定会尽心尽力为您提供优质的服务。提供全面、*的“阀门系统解决方案",也十分愿意帮助用户解决生产中所遇到的难题。
 - 
 
留 言
- 联系人:申弘阀门
 - 电 话:021-59260058
 - 手 机:15901754341
 - 传 真:86-021-31662735
 - 邮 箱:494522509@qq.com
 - 邮 编:201718
 - 地 址:上海市青浦区金泽工业园区
 - 网 址:	      https://bengye.cn.goepe.com/	      	        
http://www.021-fm.com 
- 
产品搜索
 








