-
QZF-89型全天候防火呼吸阀申弘
详细信息| 询价留言QZF-89型全天候防火呼吸阀 产品说明
安装在固定顶罐上的通风装置,起减少油品蒸发损耗,控制储罐压力及阻止外界火焰传入的作用。该阀具有通风量大,泄漏量小,耐腐蚀等特点,并有静电接地线,使该阀与罐体保持等电位。该阀具有防冻性能,适用于寒冷地区。产品用途:
该阀是安装在固定顶罐上的通风装置,起减少油品蒸发损耗,控制储罐压力及阻止外界火焰传入的作用。摘要本实用新型提供了一种防爆阻火呼吸阀,由阀盖、阀体和气流通道组成,所述阀盖和阀体螺栓固定连接,气流通道置于阀体内部中心轴线处,还包括正压阀盘和负压阀盘,所述正压阀盘通过阀盘运动控制装置垂直固定于气流通道上端,负压阀盘通过阀盘运动控制装置垂直固定于气流通道下端,所述正压阀盘和负压阀盘为圆形气囊;所述防爆阻火呼吸阀由于将正压阀盘和负压阀盘设计为圆形气囊构造,增加了阀盘的润滑性,有效解决了现有呼吸阀密闭性和灵活性无法兼顾的技术问题,且结构简单便于操作。本实用新型涉及的是石油石化行业中在常压或低压储罐上普遍使用的阀,具体涉及的是化工储罐上使用的呼吸阀。

QZF-89型全天候防火呼吸阀产品特点:
1、经久耐用、防冻性能突出,是适用寒冷地区名符其实的“全天候”新产品。
2、具有通风量大、泄漏量小、耐腐性强等特点,接有静电地线与罐体保持等电位安全装置。
3、安装于固定顶罐上的重要通风装置主要起减少油品蒸发损耗、控制罐内压力、保护储罐安全的作用。
利用正负压阀盘的重量来控制储罐的排气正压和吸气负压。当罐内介质的压力在呼吸阀的控制操作压力范围之内时,呼吸阀不工作,保持油罐的密闭性;当往罐内补充介质,使罐内上部气体空间的压力升高,达到呼吸阀的操作正压时,压力阀被顶开,气体从呼吸阀呼出口逸出,使罐内压力不在继续增高;当往罐外抽出介质,使罐内上部气体空间的压力下降,达到呼吸阀的操作负压时,罐外的大气将顶开呼吸阀的负压阀盘顶开,使外界气体进入罐内,使罐内的压力不再继续下降,让罐内与罐外的气压平衡,来保护储罐的安全装置。

QZF-89型全天候防火呼吸阀应用规范:
1.法兰标准:GB、HG、SH、HGJ、JB、ANSL、JIS等标准。(用户指定,请注明压力等级)
2.制造、检测标准:按(石油储罐呼吸阀)SY7511-87、(石油储罐阻火器阻火性能和试验方法)GB/T5908-2005等标准进行制造和验收;或用户指定标准。
3.主体材质:铸钢CS,碳钢WCB,不锈钢304SS 316 316L,铝合金AL等
4.公称压力:0.6MPa 1.0MPa. 1.6MPa 2.5MPa 美标 75LB 150LB
主要技术参数:
正压 353Pa (36mmH2O) 980.7Pa(100mmH2O) 负压 294.2Pa(36mmH2O) 特殊压力,由用户指定。
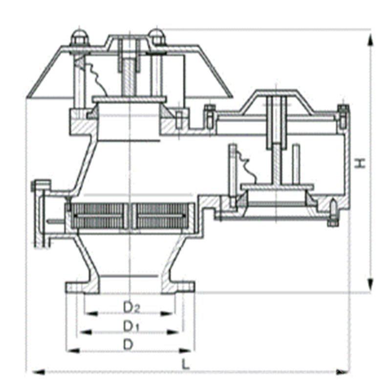
零部件材料:阀体材料 碳钢WCB、不锈钢304SS、316、铝合金AL 正压阀盘材料 不锈钢304、316、316L铝合金AL 负压阀盘材料 不锈钢304、316、316L四氟PTFE 环境温度 ℃ -30~180 防爆等级 BS:5501 IIA IIB IIC 公称通径 DN (mm) H L D D1 n×φ 50 320 320 140 110 4×14 80 366 400 190 150 4×18 100 380 420 210 170 4×18 150 450 520 265 225 8×18 200 520 600 320 280 8×18 250 600 680 375 335 12×18 300 650 750 440 395 12×23 350 700 850 490 445 12×23 400 750 930 540 495 16×23 
美标法兰连接尺寸:ANSI、API、ASME 可供JIS标准规格
安装尺寸(mm)
D1
D
L
H
N-d
2"
120.5
152
362
360
4×14
3"
152.5
190
513
445
4×18
4"
190.5
229
513
445
4×16
6"
241.5
254
640
610
8×18
8"
298.5
343
770
700
8×18
10"
362
406
918
828
12×18
12"
483
432
1050
910
12×23

QZF-89型全天候防火呼吸阀安装维护
呼吸阀的维护与保养每月一次,冬季每月两次。其方法:先将阀盖轻轻打开,把真空阀盘和压力阀盘取出,检查阀盘与阀盘密封处、阀盘导杆与导杆套有无油污和脏物,如出现油污和脏物
应清除干净,然后装回原位,上下拉动几下,检查开启是否灵活可靠。如果一切正常,再将阀盖盖好紧固。在
维护与保养中,如发现阀盘有划痕、磨损等异常现象,应马上更换或与供货公司联系,以使及时得到解决。

订货须知:
一、①产品名称与型号②口径③是否带附件以便我们的为您正确选型④的使用压力⑤的使用介质的温度。
二、若已经由设计单位选定公司的型号,请按型号直接向我司销售部订购。三、当使用的场合非常重要或环境比较复杂时,请您尽量提供设计图纸和详细参数,由我们的阀门公司专家为您审核把关。如有疑问:请:我们一定会尽心尽力为您提供优质的服务。提供全面、*的“阀门系统解决方案",也十分愿意帮助用户解决生产中所遇到的难题。
-
联系方式
- 联系人:申弘阀门
- 电 话:021-59260058
- 手 机:15901754341
- 传 真:86-021-31662735
- 邮 箱:494522509@qq.com
- 邮 编:201718
- 地 址:上海市青浦区金泽工业园区
- 网 址: https://bengye.cn.goepe.com/
http://www.021-fm.com
-
产品搜索





