-
G41J手动直通式隔膜阀申弘
详细信息| 询价留言G41J手动直通式隔膜阀 产品说明
本实用新型涉及阀门技术领域,尤其是一种衬胶隔膜阀。背景技术衬胶隔膜阀是一种特殊形式的截断阀,出现于20世纪20年代。它的启闭件是一块用软质材料制成的隔膜,把阀体内腔与阀盖内腔及驱动部件隔开,故称隔膜阀。其*突出特点是隔膜把下部阀体内腔与上部阀盖内腔隔开,使位于隔膜上方的阀杆、阀瓣等零件不受介质腐蚀,省去了填料密封结构,且不会产生介质外漏。普通的衬胶隔膜阀一般不宜用于温度高于60℃的管路,对于某些环境温度较高,且具有酸碱盐等腐蚀性物质的条件下,普通的衬胶隔膜阀并不能有效满足需求。隔膜阀的结构形式与一般阀门大不相同,是一种新型的特殊形式的截断阀,它的启闭件是一块用软质材料制成的隔膜,把阀体内腔与阀盖内腔及驱动部件隔开,现广泛使用在各个领域。常用的隔膜阀有衬胶隔膜阀、衬氟隔膜阀、无衬里隔膜阀、塑料隔膜阀。隔膜阀的优点是其操纵机构与介质通路隔开,不但保证了工作介质的纯净,同时也防止管路中介质冲击操纵机构工作部件的可能性。此外,阀杆处不需要采用任何形式的单独密封,除非在控制有害介质中作为安全设施使用。隔膜阀中,由于工作介质接触的仅仅是隔膜和阀体,二者均可以采用多种不同的材料,因此该阀能理想地控制多种工作介质,尤其适合带有化学腐蚀性或悬浮颗粒的介质。隔膜阀结构简单,只由阀体、膜片和阀头组合件三个主要部件构成。该阀易于快速拆卸和维修,更换隔膜可以在现场及短时间内完成。
以手轮作为手动执行器的隔膜阀是在一种在现代工业中常见的阀门。此类隔膜阀可以在不借助外部工具的情况下,通过人力对手轮的旋转来实现对阀门的开合。但目前常用的手轮隔膜阀并不具有锁止功能,这给操作人员固定阀门的开合状态带来了不便。

【G41J手动直通式隔膜阀实用新型内容】
本实用新型要解决的技术问题是为了克服现有技术无法固定开合状态的缺陷,提供了一种具有锁止功能的隔膜阀。它特别适用于某些粘性流体、水泥浆以及沉淀性流体。直通式隔膜阀相对于堰式隔膜阀来说,隔膜的行程较长。因此,这种结构使隔膜选择合成橡胶材料的范围受到了限制。
直通式隔膜阀的流体通道是直的,因此流体损失更小,磨损更小。在低压时增加了隔膜偏转和应力,但也导致了较低的压力额定值。衬胶隔膜阀只需用较小的操作力和较短的隔膜行程即可启闭阀门,因此减少了隔膜的扰变量,延长了隔膜的寿命,减少了维修和停机时间,降低了生产成本,是使用较为广泛的隔膜阀。
根据适用介质的不同,衬胶隔膜阀的阀体可采用不同的橡胶,隔膜的材料可以是人造合成橡胶或者带有合成橡胶衬里的PTFE。隔膜与承压套相连,承压套再与带螺纹的阀杆相连,关闭阀门时,隔膜被压下,与阀体堰形构造密封,或者与阀门内腔轮廓密封,或者与阀体内的某一部位密封,这取决于内部结构设计。

G41J手动直通式隔膜阀结构特点
1、弹性密封的开闭件,确保没有内漏;2、流线型的流道,使得压力损失小;
3、没有填料函,因此没有外漏;
4、阀体与盖被中间隔膜隔开,使得隔膜上方的阀盖,阀杆零件不受介质侵蚀;
5、隔膜可更换,维护费用低;
6、衬里材料的多样性,可适用于各种介质,并具有良好的耐腐蚀性。

G41J手动直通式隔膜阀型号
手动 G41J(堰式) 手动 G641J(往复式) G41F5(堰式) G641F5(往复式) G45J(直流式) G6B41F(常闭式) G45F5(直流式) G6B41F5(常闭式) 电动 G9B41J(防爆式) 电动 G941J(普通型) G9B41F5(防爆式) G941F5(普通型) 遵循规范 STANDARD 设计与制造 GB12239 结构长度 GB1221/JB1688 法兰尺寸 JB78/JB79(GB HG SH) 压力试验 GB/T13927 标签 GB12220 供货 GB/T12252 G41J手动直通式隔膜阀材质
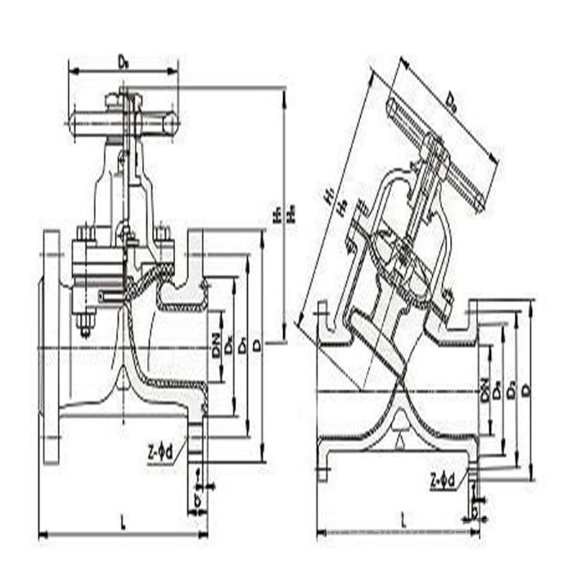
序号 零件名称 灰铸铁 铸钢 不锈钢 超低碳钢 Z C P R PL RL 1 阀体、阀盖、阀瓣 HT250 WCB CF8 CF8M CF3 CF3M 2 阀杆 35 1Cr13 1Cr18Ni19Ti 1Cr18Ni12Mo2Ti 00Cr18Ni10 00Cr17Ni14Mo2 3 衬里层 FEP(F46) PFA PCTFE(F3) 4 隔膜 FEP(F46)/CR(氟丁橡胶) PFA(可溶性聚四氟乙烯)/FPDM(乙丙橡胶) 5 阀杆螺母 ZCuAL10Fe3 ZCuAL10Fe3 6 螺栓 35 35 1Cr17Ni2 1Cr17Ni2 1Cr17Ni9Ti 1Cr17Ni9Ti 7 螺母 45 45 0Cr18Ni9 0Cr18Ni9 0Cr18Ni9 0Cr18Ni9 8 手轮 HT200 HT200 WCC WCC WCC WCC G41J手动直通式隔膜阀外形尺寸
型号 公称通径DN(mm) 尺寸(┨) L D D1 D0 Z-φd H H1 H2 H3 重量
(┧)G41J10 15 125 95 65 120 4-φ14 - - - - 3.8 20 135 105 75 120 4-φ14 - - - - 4.2 25 145 115 85 120 4-φ14 121 135 - - 4.5 32 160 1135 100 120 4-φ18 132 150 - - 7 40 180 145 110 140 4-φ18 156 176 - - 9 50 210 160 125 140 4-φ18 169 195 - - 12 65 250 180 145 200 4-φ18 202 236 - - 18 80 300 195 160 200 4-φ18 216 256 - - 24.5 100 350 215 180 280 8-φ18 270 322 - - 38.5 125 400 245 210 320 8-φ18 338 406 - - 60 150 460 280 240 320 8-φ23 384 464 - - 82 G41J 200 570 335 295 400 8-φ23 518 638 - - 149 250 680 390 350 500 12-φ23 598 734 - - 240 300 790 440 400 560 12-φ23 698 778 - - 350 350 900 500 460 560 16-φ23 723 883 - - 392 400 1000 565 515 640 16-φ25 868 1078 - - 585 G45J-10 32 180 135 100 120 4-φ18 - - - - 7 40 180 145 110 140 4-φ18 - - 203 216 8.5 50 210 160 125 140 4-φ18 - - 213 229 14 65 250 180 145 200 4-φ18 - - 248 268 18 80 300 195 160 200 4-φ18 - - 281 305 30 100 350 215 180 280 8-φ18 - - 332 362 43 125 400 245 210 320 8-φ18 - - - - 67 150 460 280 240 320 8-φ23 - - 450 496 80 200 570 335 295 400 8-φ23 - - 594 654 150.2 250 680 390 350 500 12-φ23 - - 695 771 238
本实用新型公开了一种衬胶隔膜阀,包括阀体、设置在阀体上的阀盖和阀杆,所述的阀体与阀盖之间设有膜片,所述的膜片上固定有与阀杆固定连接的阀瓣,所述的阀杆下端与膜片接触,上端则伸出阀盖,所述的阀盖上端还转动连接有手轮,所述的手轮通过锁紧螺母转动连接在阀盖顶端,所述的阀杆与阀盖上端接触部还设有阀杆螺母,所述的阀盖下端则设有油杯。本实用新型结构简单,能耐一定温度,并具有良好的防腐蚀性。

订货须知:
一、①产品名称与型号②口径③是否带附件以便我们的为您正确选型④的使用压力⑤的使用介质的温度。
二、若已经由设计单位选定公司的型号,请按型号直接向我司销售部订购。三、当使用的场合非常重要或环境比较复杂时,请您尽量提供设计图纸和详细参数,由我们的阀门公司专家为您审核把关。如有疑问:请:我们一定会尽心尽力为您提供优质的服务。提供全面、*的“阀门系统解决方案",也十分愿意帮助用户解决生产中所遇到的难题。
-
联系方式
- 联系人:申弘阀门
- 电 话:021-59260058
- 手 机:15901754341
- 传 真:86-021-31662735
- 邮 箱:494522509@qq.com
- 邮 编:201718
- 地 址:上海市青浦区金泽工业园区
- 网 址: https://bengye.cn.goepe.com/
http://www.021-fm.com
-
产品搜索








