-
FL641F气动上展式放料阀申弘
详细信息| 询价留言FL641F气动上展式放料阀 产品说明
本实用新型涉及的一种上展式放料阀,包括阀体,阀杆,阀瓣,阀座,手轮和放料口,所述的阀体底端安装有手轮,所述手轮通过阀杆与设置在阀体顶端的阀瓣轴连接,气动下展式放料阀阀体内腔装有耐冲刷、耐腐蚀的密封圈,在开启阀门瞬间,可以保护阀体不被介质冲刷、腐蚀,并对密封圈进行特种处理,使表面硬度达到HRC56~62,具有高耐磨、耐腐蚀的功能。阀瓣密封根据需要是封面均堆焊有硬质合金,密封副采用线密封,保证密封的可靠性,并可防止结疤。下展式放料阀在化工、石油、冶金、制药、农药、染料、食品加工等行业广泛使用。

FL641F气动上展式放料阀性能参数及用途
工作压力1.6Mpa
工作介质为水, 油液体, 酸碱等
工作温度为<=175℃. 不锈钢<=320℃ 碳钢
下展式放料阀操作方便,开启自由,运动灵活可靠; 阀瓣装配维修简单, 密封结构合理, 密封圈更换方便实用。气动上展式放料阀涉及一种固体悬浮物料控制的阀门,特别是镍盐生产中蒸发结晶后放料的放料阀.由下列结构组成:两根相同管径,且互成130℃夹角连接而成的管体组成的阀体,两端带有螺纹的实心杆,中间过渡段为下缩锥形的圆台阀芯,装于阀杆外阀杆导管,盖于阀杆导管底端密封压盖,内孔与阀芯中间过渡段的下缩锥形斜坡一致阀芯法兰.主要用于储料罐、反应釜及其他容器的底部排放物料,阀门采用法兰或对接焊与设备连接并位于其底部,消除了工艺介质通常在容器出口的残留现象。根据实际情况的需要分为上展式、下展式、柱塞式三种结构形式;上展式用于有搅拌器的反应釜放料;而下展式、柱塞式用于框式锚式搅拌器的反应釜放料。密封面采用耐冲刷、耐腐蚀材料,并进行特殊处理,使表面硬度达到HRC48~52,具有高耐磨、耐腐蚀的功能,保证了阀门的密封可靠性。广泛使用在化工、石油、冶金、制药、染料、食品加工等行业。

FL641F气动上展式放料阀产品特点
(1)密封面磨损均匀及擦伤较轻,密封性能好 上展式和下展式放料阀阀瓣与阀杆为整体连接,钢性好磨损均匀,密封性能可靠,连续使用周期长。
(2)启闭行程不同,安装尺寸有大小
上展式和下展式放料阀启闭行程小、安装高度较小。 柱塞式放料阀按柱塞结构和运动方式分为升降杆和旋转杆两种结构形式,升降杆结构形式它要求有较大的安装空间,但可依据柱塞的运动方式和位置直观地判断阀门的启闭和位置。旋转杆结构形式安装高度*小,在启闭过程中柱塞只做旋转运动,它要依据带有启闭位置指示器来判断阀门的启闭和位置。
(3)启闭力矩不同
上展式放料阀为阀瓣向上运动阀门打开,打开时阀门需克服介质作用力,打开时较关闭力矩大。 下展式、柱塞式放料阀为阀瓣(柱塞)向下运动阀门打开,打开时运动方向与介质作用力相同,因而打开时较关闭力矩小。放料阀主要由阀体、阀瓣(柱塞)、阀杆、密封填料和驱动机构等组成,阀瓣是上展式放料阀的启闭件,一般呈圆盘状或柱状,它与阀体阀座形成密封副。放料阀分上展式、下展式、柱塞式三种类型,其阀瓣为锥面和球面及软密封和金属-金属硬密封等形式可供选用。

FL641F气动上展式放料阀
本实用新型结构简单,密封面可以调整间隙,解决了密封问题,加快了放料速度,在放料时不会产生堵塞或力矩过大损坏阀门.其特征在于:所述的阀体下部设有两个以上放料口.并在所述的放料口外壁设有保温夹套,所述的保温夹套上设有保温口,在物料结晶堵塞放料口时,打开保温口上的阀门,向保温夹套内冲放高温蒸汽,加速物料结晶溶解,使物料顺利流通.FL641F气动放料阀是用气动执行器控制阀门,性能与用途:操作方便,开启自由,运动灵活可靠;阀瓣装配维修简单,密封结构合理,密封圈更换方便实用。 结构:主要由阀体,阀瓣,密封圈,阀杆,支架,阀压盖,手轮,法兰,螺母,定位螺钉等零件。
1、气动放料阀适用介质如水、丙酮、酒精、氨、碳酸钡、苯(WCB材质的*低用温度为-29℃,*高温度为425℃。)
2、使用介质如颗粒、油品、纸浆、二氧化碳、气(不锈钢材质的*低使用温度为-100℃,*高使用温度为232℃。)
3、严禁使用含氟离子液体(如HF等)也不能用强碱及磷酸(温度>150℃浓度>30%)。

FL641F气动上展式放料阀主要零件材质
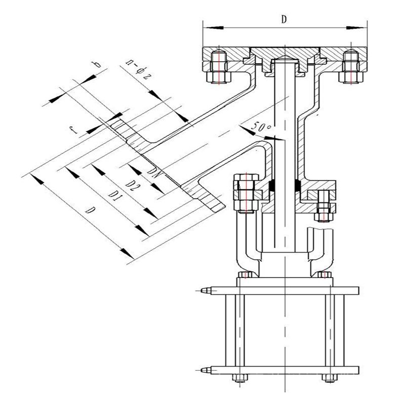
零件名称 ZG1Cr18Ni9Ti系列 ZG00Cr18Ni10系列 ZG1Cr18Ni12MO 2 Ti系列 ZG00Cr17Ni14MO 2 系列 WCB系列 阀体/阀盖 ZG1Cr18Ni9Ti ZG00Cr18Ni10 ZG1Cr18Ni12MO 2 Ti ZG00Cr17Ni14MO 2 WCB 阀杆 ZG1Cr18Ni9Ti ZG00Cr18Ni10 ZG1Cr18Ni12MO 2 Ti ZG00Cr17Ni14MO 2 WCB 阀瓣 ZG1Cr18Ni9Ti ZG00Cr18Ni10 ZG1Cr18Ni12MO 2 Ti ZG00Cr17Ni14MO 2 WCB 垫片 304+PTFE 304L+PTFE 316+PTFE 316L+PTFE 石墨+304 螺柱 1Cr17Ni2 1Cr17Ni2 1Cr17Ni2 1Cr17Ni2 35CrMoA 螺母 1Cr18Ni9Ti 1Cr18Ni9Ti 1Cr18Ni9Ti 1Cr18Ni9Ti 45 FL641F气动上展式放料阀外形结构图
FL641F气动上展式放料阀主要外形尺寸(上展式)
DN 上法兰 上法兰 下法兰 密封座 D1 D2 D3 D4 D5 D6 25 115 80 115 85 32 135 100 135 100 40 145 110 145 110 80 60 50 165 125 160 125 85 70 65 180 145 180 145 130 85 80 195 160 195 160 135 95 100 215 180 215 180 160 130 125 245 210 245 210 160 140 150 280 240 280 240 185 165 200 335 295 335 295 / / 主要外形尺寸(下展式)
DN 上法兰 上法兰 下法兰 密封座 D1 D2 D3 D4 D5 D6 25 115 85 135 100 70 40 32 135 100 145 110 75 55 40 145 110 160 125 85 65 50 165 125 180 145 100 70 65 180 145 195 160 135 90 80 195 160 215 180 155 130 100 215 180 245 210 180 135 125 245 210 280 245 195 145 150 280 240 335 295 210 185 200 335 295 405 355 上展式放料阀主要⽤反应釜,储罐和其它容器的底部排料、放料、取样和⽆死区关断操作。借助于阀⻔底部法兰焊接于储罐和其它容器的底部,因此消除⼯艺介质通常在容器出⼝的残留现家、放料阀根实际情况的需要,放底结构设计为平底型,阀体为V型,并提供提升和下降两种⼯作⽅式阀瓣。阀体内腔有耐冲刷、耐腐蚀的密封圈。在开启阀⻔瞬间,可以保护阀体不破介质冲刷,腐蚀,并对密封圈进⾏特殊处理,使表⾯硬度达到HRC5-62,具有⾼耐磨、耐腐蚀的功能,阀瓣密封根据需要时封⾯均堆焊有硬质合⾦,密封副采⽤线密封,保证密封的可靠性,并可防⽌结疤。同时采取短⾏程阀瓣的设计。
订货须知:
一、①产品名称与型号②口径③是否带附件以便我们的为您正确选型④的使用压力⑤的使用介质的温度。
二、若已经由设计单位选定公司的型号,请按型号直接向我司销售部订购。三、当使用的场合非常重要或环境比较复杂时,请您尽量提供设计图纸和详细参数,由我们的阀门公司专家为您审核把关。如有疑问:请:我们一定会尽心尽力为您提供优质的服务。提供全面、*的“阀门系统解决方案",也十分愿意帮助用户解决生产中所遇到的难题。
-
联系方式
- 联系人:申弘阀门
- 电 话:021-59260058
- 手 机:15901754341
- 传 真:86-021-31662735
- 邮 箱:494522509@qq.com
- 邮 编:201718
- 地 址:上海市青浦区金泽工业园区
- 网 址: https://bengye.cn.goepe.com/
http://www.021-fm.com
-
产品搜索







