-
ZFL自力式流量平衡阀申弘
详细信息| 询价留言ZFL自力式流量平衡阀 产品说明
目前在一些管网系统中存在着水力失调问题,平衡阀提供了解决这一总是的手段,和它可以准确的调节压降和流量,用以改善管网系统中液体流动状况,达到管网液体平衡和节约能源的目的。在双管网工程改造中,应用此阀门仍可节约能源,得到交好的效果。本公司生产的是其中等百分比特性阀门。开度一个相等到的变化率,则流量的变化率相等,其特点是在流量大时应用,等到百分比阀门恰恰适用这种要求。根据这一特性,可以自如的予置某一流量(快开阀门和线性阀门则不具备这种功能)而且当需要变化时,还能知道变化量,达到理想状态。在流体输送的管网中,按被控管线的实际流量需要,一次性设定流量,通常要配装流量控制阀。在已知技术中,现有的流量控制阀主要是由阀体、阀芯、弹簧、感压膜片、自动阀塞、阀塞套筒组成的自动平衡阀和手动调节闸板阀。由于现有的流量控制阀是采用自动平衡阀与手动调节阀对应互配结构,尤其是阀内的自动阀塞构造及与阀塞套筒的配合不合理,使得阀塞受力不平衡、关断状态泄露量大,从而造成自动阀塞进水口与手动阀调节流量的变化不同步,也易出现阀塞内压力脉动现象,其噪音大,控制流量精度低,给使用带来不便。
ZFL自力式流量平衡阀发明内容
本实用新型针对现有流量控制阀存在的上述技术问题,其目的是提供一种结构新颖、设计合理、阀内压力稳定、噪音低、控制流量精度高、使用方便的新型流量控制阀。ZLF自力式平衡阀性能特点
1、理想的调节性能;
2、优秀的截止功能;
3、精确到1/10圈的开启状态显示;
4、理论流量特性曲线为等百分比特性曲线;
5、启闭锁定装置;
6、对应每个整圈都有因定的流量系数,调试中只要测量出阀门两端压差,就可以方便计算出流经阀门的流量;
7、聚四氟乙烯和硅胶密封,密封性能可靠;
8、内部元件采用YICr18Ni9或铜合金制造,抗腐蚀能力强,使用寿命长;
9、内升降阀杆,无须预留操作空间。
10、它是一种组合阀。
ZFL自力式流量平衡阀技术参数
公称压力: 1.6MPa
公称通径:15~350mm
适用介质:水、油等非腐蚀性液体
适用温度:0~100℃
法兰标准:GB/T 17241.6 GB/T 9113
ZFL自力式流量平衡阀主要零部件材料
零件名称
材料
阀体、阀盖
灰铸铁、球铁、铸钢
阀杆
不锈钢
阀瓣
铸铜
膜片
丁腈橡胶
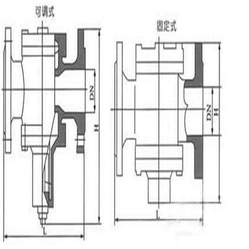
ZFL自力式流量平衡阀主要外形连接尺寸(单位:mm)
DN
15
20
25
32
40
50
65
80
L
110
110
115
160
200
215
230
275
H1
72
72
81
108
138
138
143
170
H
70
70
74
91
147
147
154
189
流量m2/h
0.1~1
0.1~1.5
0.2~2
0.5~4
1~6
2~10
3~15
5~25
DN
100
125
150
200
250
300
350
L
290
310
350
430
520
635
670
H1
193
208
254
289
325
357
372
H
211
227
260
303
367
430
495
流量m2/h
10~35
15~50
30~80
40~180
100~130
150~500
200~700

是一种利用介质本身的压力变化来进行自我调控从而保持流经被控系统流量不变的阀门,ZLF 自力 式平衡阀具有流量指示,可在线调节,适用于供热及空调系统等非腐蚀性介质的流量控制。运行前一次性测试调节,可 使系统流量自动恒定在预先设置的设定值。该阀门流量调节准确,操作简单,运作平稳,性能可靠,使用寿命长。

适用于荷重液体管路系统,是一种较为理想的新型节能阀门。自力式平衡阀设有刻度的数字显示,可直观调到任一位置,并可锁定。自力式平衡阀主要应用于工业和民用建筑采暖管路系统。

订货须知:
一、①产品名称与型号②口径③是否带附件以便我们的为您正确选型④的使用压力⑤的使用介质的温度。
二、若已经由设计单位选定公司的型号,请按型号直接向我司销售部订购。三、当使用的场合非常重要或环境比较复杂时,请您尽量提供设计图纸和详细参数,由我们的阀门公司专家为您审核把关。如有疑问:请:我们一定会尽心尽力为您提供优质的服务。提供全面、*的“阀门系统解决方案",也十分愿意帮助用户解决生产中所遇到的难题。
-
联系方式
- 联系人:申弘阀门
- 电 话:021-59260058
- 手 机:15901754341
- 传 真:86-021-31662735
- 邮 箱:494522509@qq.com
- 邮 编:201718
- 地 址:上海市青浦区金泽工业园区
- 网 址: https://bengye.cn.goepe.com/
http://www.021-fm.com
-
产品搜索









