-     SUS304不锈钢氮封阀申弘详细信息| 询价留言SUS304不锈钢氮封阀 产品说明 
 本发明涉及阀门技术领域,具体地说,涉及一种自力式氮封阀。是一种依靠被调介质自身的压力变化进行自动调节或维持压力差为恒定值的一种节能型调节阀。它可应用于工业燃烧炉系统,控制两种物料,如煤气、空气的流量配比,以达到理想燃烧效果;用于氢冷发电机组密封油系统,控制密封油与氢气间压力差,确保可靠密封。其特点是设备运行中可进行设定值调整;无填料,动作灵敏;能检测出微小的压力变化。广泛应用于工业生产微、差压压力的自动控制中。
  二、SUS304不锈钢氮封阀结构与原理 控制压力小于或等于100Kpa的调节阀称为自力式微压力调节阀(P3通大气), 差压调节阀是微压调节阀的另作用方式为压开式,即差压增大阀开启(ZZCP-16K)型。流体P1节流后成P2,经导压管与差压调节阀执行机构上模室联通,P2作用在波纹模片有效面积上产生一个向下的作用力,加上弹簧的初始压力(向下)作用力; 讯号源压力P3(恒定值)引入执行机构下模室,作用在波纹模片有效面积上产生一个向上的作用力。与上模室P2和弹簧的合力(向下)的作用力平衡。P3与P2之间有一个差压值,这个差压值就是设定值。若差压变化,增大或减小,则平衡被破坏,阀门开大或关小,保住差压值恒定。若差压达不到设定值:如,小于设定值,调整方法如下:打开防尘盖1;反时针旋转调节螺钉2,减小弹簧的预压力,使设定值达到理想要求。反之,则调节螺钉的旋转方向相反。 
  SUS304不锈钢氮封阀背景技术: 氮封装置主要用于储罐顶部,来维持储罐的微正压,隔离物料与外界的接触,减少物料的挥发和浪费,保护储罐安全。目前,市面上氮封装置产品薄膜头水平置,无力臂结构,薄膜头与阀杆直接作用,薄膜头体积大,不紧凑,影响使用效果。 SUS304不锈钢氮封阀特点 1、氮封装置的供(泄)氮压力设定方便,且可在连续生产的条件下进行; 2、氮气压力设定范围广,低至0.5Kpa(50mm.w.c),高至Kpa,比值达132倍,压力检测膜片有效面积大,设定弹簧刚度小,动作极灵敏。 3、调整: (1)供氮压力调整:在ZZV型微压调节阀压力调节范围内选定一设定值如1Kpa(100mm.w.c),通过调节调整螺丝2以改变弹簧3的预压缩(拉伸)量来达到; (2)泄氮压力调整:在ZZDQ快速泄放阀在的压力控制器部分,通过调整座3,改变弹簧4预压缩量达到。一般为避免氮封装置启闭频繁,泄氮设定值应远离供氮压力值,如2Kpa(200mm.w.c); (3)呼吸阀高定值调整:在上述两设定值调整好后,为避免呼吸阀启闭频繁,呼吸阀设定值应大于泄压设定值。 
  SUS304不锈钢氮封阀技术实现要素: 本发明的目的在于提供一种自力式氮封阀,以解决上述背景技术中提出的问题。与现有技术相比,本发明的有益效果: 1、该自力式氮封阀中,通过阀体的进气腔和连接腔的气压变化,带动膜片的形变和运动,进而通过膜片带动推杆运动,在通过推杆和驱动杆的传动运动实现阀杆的调节,进而完成阀体的自力式调节。 2、该自力式氮封阀中,膜片直立式安装在气动执行器内部,节省气动执行器内部空间的占用面积。 3、该自力式氮封阀中,当驱动杆的连接杆向左推动,连接柄沿着转轴顺时针转动,使得带有阀杆一侧的连接柄向上翘动,当驱动杆的连接杆向右推动,连接柄沿着转轴逆时针转动,使得带有阀杆一侧的连接柄向下压动,驱动杆采用长立臂设计,输出推力大,便于控制阀杆运动,提高传动的工作效率。 
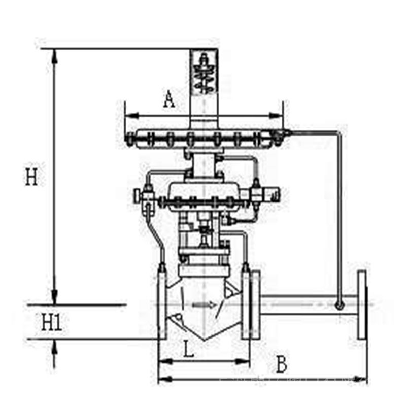
  SUS304不锈钢氮封阀主要技术参数与性能指标 表1 Kv值和性能指标 公称通径DN(mm) 15 20 25 40 50 65 80 100 额定流量系数(Kv) 5 7 11 30 48 75 120 190 额定行程(mm) 8 8 8 10 15 20 介质温度(℃) ≤80 调节精度 (%) ≤10 允许泄漏量 (l/h) 10-4X阀额定容量 表2 微、差压调节范围 差压调节范围(KPa) 执行机构膜室有效面积(cm2) 使用阀门口径(mm) 0.5~5.5,5~10,9~14,13~19, 18~24,22~28,26~33,31~38, 36~44,42~51,49~58,56~66, 64~78,76~90,88~100 100 15~50 根据要求的差压 
 调节范围选择相应
 的设定弹簧280 65~100 SUS304不锈钢氮封阀表3外形尺寸及重量 单位:mm 公 称 通 径 15 20 25 40 50 65 80 100 ΦA 195 280 L 140 150 160 200 230 290 310 350 H 275 285 337 344 344 386 396 406 重量(Kg) 11 12 13 17 20 28 38 43  
 本发明涉及阀门技术领域,具体地说,涉及一种自力式氮封阀。其包括阀体和安装在所述阀体顶部的气动执行器,所述气动执行器的内部安装有膜片,所述膜片将气动执行器内部分为传动腔和排气腔,所述膜片中心位置安装有卡套,所述卡套的内部安装有推杆,所述推杆的一端安装有驱动杆。通过本发明的结构设计,实现阀体的自力式调节,且膜片不占用气动执行器内部空间面积,提高空间利用率,同时驱动杆的输出推力大,便于控制阀杆运动,提高传动的工作效率。
  SUS304不锈钢氮封阀安装、维护与调试 1、 安装 (1) 检查整机零件是否缺损与松动,对使用有害人体健康的介质,必须进行强度、密封、泄漏与精度测试。 (2) 在安装前,对管道进行清洗(否则由于焊渣等管道垃圾,损坏阀芯密封面,导致阀门不能正常工作),阀门入口处要有足够的直管段,并配有过滤器。阀体与管道的法兰连接,要注意同轴度。 (3) 安装场地应考虑到人员与设备的安全,即便于操作,又有利于拆装与维修。 (4) 阀门应正立垂直安装在水平管道上,导压管必须安装在距离阀出口至少六倍于公称通径的阀后管道上。阀自重较大与有振动的场合,要用支撑架,尽量避免水平安装。 (5) 介质流动方向应与阀体上的箭头指向一致。因微压阀属于精密仪表,其中膜片直接承受介质压力,若阀门反装或管道有反冲压力,则膜片由于受压过高导致膜片损坏,阀门不能工作。阀门应在环境温度-25~+55℃场所使用。对温度高的特殊工况可带冷凝器。 (6) 为使自控系统失灵或检修阀门时,仍能连续生产,应设置旁路阀。 
  2、SUS304不锈钢氮封阀 维护: (1) 清洗阀门:对清洗一般介质,只要用水洗净就可以。但对清洗有害健康的介质,首先要了解其性质,在选用相应的清洗办法。 (2) 阀门的拆卸:将外露表面生锈的零件先除锈,但在除锈前,要保护好阀座、阀芯、阀杆与推杆等精密零件的加工表面。拆装阀座时应使用专用工具。 (3) 阀芯、阀座:二密封面有较小的锈斑与磨损,可用机械加工的方法进行修理,如损坏严重必须换新。但不管修理或更换后的硬密封面,都必须进行研磨。 (4) 阀杆:表面损坏,必须换新。 (5) 压缩弹簧:如有裂纹等影响强度的缺陷,必须换新。 (6) 易损零件:密封垫片与O型圈,每次检修时,全部换新。膜片必须检查是否有可能发生裂纹、老化与腐蚀等痕迹,根据检验结果,决定是否更换,但膜片使用期一般*多2~3年。 (7) 阀门组装要注意对中,螺栓要在对角线上拧紧,滑动部分要加润滑油。组装后应按产品出厂测试项目与方法调试,并在这期间,可更准确地调整填料压紧力与阀芯关闭位置。 
  3、SUS304不锈钢氮封阀 调试 所需要压力值是对执行器顶部的调节螺杆或螺母的操作而得到调整,打开顶部的防尘盖,用扳手调整调节螺杆或螺母。顺时针方向旋转使设定压力增大,逆时针旋转则使设定压力减小。安装在微、差压调节阀后的压力表,可使工作人员借以观察调整后的压力设定值。 4、 注意事项 1) 严禁调压阀安装后再进行焊接。 2) 调压阀投入运行前特别注意冲刷、清洗管道,防止焊渣、污物、卡在节流口,破坏密封面。造成使用前密封面先损坏,调压阀失效的现象。 3) 冲洗管道时应使调压阀处于全开位置,便于污物、硬渣通过。以上显示和描述了本发明的基本原理、主要特征和本发明的优点。本行业的技术人员应该了解,本发明不受上述实施例的限制,上述实施例和说明书中描述的仅为本发明的优选例,并不用来限制本发明,在不脱离本发明精神和范围的前提下,本发明还会有各种变化和改进,这些变化和改进都落入要求保护的本发明范围内。本发明要求保护范围由所附的权利要求书及其等效物界定。 
  订货须知: 一、①产品名称与型号②口径③是否带附件以便我们的为您正确选型④的使用压力⑤的使用介质的温度。 
 二、若已经由设计单位选定公司的型号,请按型号直接向我司销售部订购。三、当使用的场合非常重要或环境比较复杂时,请您尽量提供设计图纸和详细参数,由我们的阀门公司专家为您审核把关。如有疑问:请:我们一定会尽心尽力为您提供优质的服务。提供全面、*的“阀门系统解决方案",也十分愿意帮助用户解决生产中所遇到的难题。 
- 
- 留 言- 联系人:申弘阀门
- 电 话:021-59260058
- 手 机:15901754341
- 传 真:86-021-31662735
- 邮 箱:494522509@qq.com
- 邮 编:201718
- 地 址:上海市青浦区金泽工业园区
- 网 址:	      https://bengye.cn.goepe.com/	      	        
 http://www.021-fm.com
 
- 
产品搜索








 
														 
														 
														 
														 
														 
														 
														 
														 
														 
														 
														