-
2507双相特种钢减压阀申弘
详细信息| 询价留言2507双相特种钢减压阀 产品说明
减压阀作为液压系统中的重要元件,其主要作用是使系统的出口压力始终处在低于进口压力的水平,保持系统出口压力的稳定,且系统出口压力不受入口压力和流量波动的影响。 水用减压阀(空气减压阀)结构为弹簧活塞式减压阀,是弹簧薄膜式减压阀的代替产品,水用减压阀(空气减压阀)与薄膜减压阀相比有以下优点:

1、使用寿命长,不存在膜片损坏的问题。
2、耐高压,出口压力高时,薄膜片就不行了,而活塞式减压阀可适应很高的出口压力。
水用减压阀(空气减压阀)可用于工作温度0-90℃的水、空气、和非腐蚀性液体管路上,在高层建筑的冷热供水和消防供水的系统中,可取代常规分区水管,这样可以简化的节省系统的设备,降低工程造价,也可在各类空压机设备的冷却系统中起到减压、稳压的作用。

2507双相特种钢减压阀 工作原理
1、水用减压阀(空气减压阀)通过启闭件的节流,造成压力损失迫使进口压力在出口处降低某一个需要值,当流量和压力变化时,利用本身介质能量来控制出口压力基本不变的目的。
2、水用减压阀(空气减压阀)介质走向由上进下出,当调节出口压力时,顺时针旋转调节螺栓,迫使活塞向下移动,打开主阀,改变节流面积,造成压力损失,实现减压,由于阀后介质通过“X”通道流入活塞下腔并与活塞上方保持平衡,当压力和流量变化时,使主阀节流面积始终保持相应位置,由于本阀采用卸荷机构,减小了进口压力变化对出口压力的影响,同时加大了出口压力的作用面积,即加大敏感元件作用面积,从而减小了阀门出口的压力偏差,大大提高了减压阀的稳压精度。
以上所述仅是本申请的,应当指出,对于本技术领域的普通技术人员来说,在不脱离本申请原理的前提下,还可以做出若干改进和润饰,这些改进和润饰也应视为本申请的保护范围。减压阀专门用于与海水接触。 为此我们精心挑选的材料确保了较好的耐腐蚀性。 无论是在造船,石油平台,海水淡化厂还是所有使用海水的系统中,这些长寿命减压阀在实际使用中都经过多年的验证。 由于采用了可变模块系统,入口压力高可达40 bar,出口压力调节范围可达到0.2 bar至20 bar,几乎涵盖了所有的应用。

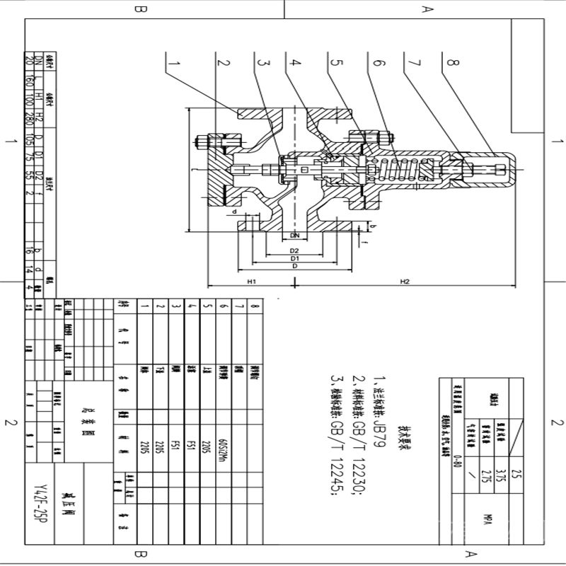
2507双相特种钢减压阀执行标准:
设计制造:GB/T21386-2008
结构长度:JB/T2205-2000
性能试验方法:GB/T12245-2006
压力特性偏差:GB12246-1989
渗漏量:GB12245-1989
连接方式:JB79 GB9113 ANSI B16.52507双相特种钢减压阀性能参数:
2507双相特种钢减压阀主要材质公称压力(Mpa)
1.6
2.5
4
6.4
10
16
壳体试验压力(Mpa)*
2.4
3.75
6
9.6
15
24
密封试验压力(Mpa)
1.6
2.5
4
6.4
10
16
进口压力(Mpa)
1.6
2.5
4
6.4
10
16
出口压力范围(Mpa)
0.1-1.0
0.1-1.6
0.1-2.5
0.5-3.5
0.5-3.5
0.5-4.5
压力特性偏差(Mpa)△P2P
GB12246-1989
流量特性偏差(Mpa)P2G
GB12246-1989
小压差(Mpa)
0.15
0.15
0.2
0.4
0.8
1
渗漏量
GB12245-1989
零件名称
零件材料
阀体 阀盖 底盖
2507
阀座 阀盘
2507
缸套
2507
活塞
2507
活塞环
2507
导阀座 导阀杆
2507
膜片
2507
主阀弹簧
2507
导阀主弹簧
2507
调节弹簧
2507
2507双相特种钢减压阀流量系数:
DN
15
20
25
32
40
50
65,
80
100
125
150
200
250
300
350
400
500
Cv
1
2.5
4
6.5
9
16
25
36
64
100
140
250
400
570
780
1020
1500
公称通径DN(mm) 外形尺寸 L H1 H 1.6/2.5MPa 4.0MPa 6.4MPa 10.0MPa 1.6-4.0 6.4-10.0 1.6-4.0 6.4-10.0 15 160 180 180 180 195 195 85 100 20 160 180 180 200 220 220 85 100 25 180 200 200 220 255 265 95 115 32 200 220 220 230 255 265 95 115 40 220 240 240 240 325 330 105 130 50 250 270 270 300 325 330 130 135 65 280 300 300 340 330 340 145 150 80 310 330 330 360 340 340 170 175 100 350 380 380 357 360 200 205 125 400 450 450 560 565 225 235 150 450 500 500 580 585 265 275 200 500 550 560 630 635 290 300 250 650 650 750 755 325 335 300 800 800 780 785 360 375 350 850 850 850 855 395 410 400 900 900 925 930 430 445 注:由于产品改进技术创新参数可能有一定变化,请咨询公司技术部门索取*新数据。

一种减压阀,其特征在于,包括阀体、阀盖、阀杆和阀瓣,所述阀盖密封固定于阀体的上方,所述阀体包括进水通道和出水通道,所述进水通道和出水通道之间设有阀座,所述阀座上设有一个连通进水通道和出水通道的阀口,所述阀杆通过自动水压控制装置以上下移动的方式装在阀盖和阀体围成的空间内,所述阀瓣固定于阀杆的底端并通过阀杆可开合地遮盖于阀口的上方,所述自动水压控制装置包括套设固定于所述阀杆上的膜片,所述膜片的四周边缘固定在阀体和阀盖之间,所述阀盖的顶端开设有一沿竖直方向延伸的滑道,所述阀杆的顶端滑动于所述滑道内,所述阀盖和上压板之间还设有弹簧,所述弹簧套设于所述阀杆的外侧。
2.根据权利要求1所述的减压阀,其特征在于:所述膜片的上下两端分别设有上压板和下压板,所述上压板和下压板套设固定于所述阀杆上。
3.根据权利要求1所述的减压阀,其特征在于:所述阀瓣与阀杆之间固定有螺母。

来说明一下2507双相特种钢减压阀的正确安装方式。
1、减压阀与胶管接口处要连接紧密,用铁丝捆紧或用管夹夹紧。
2、上减压阀前,要先检查减压阀进气口密封圈是否变形脱落。
3、减压器与角阀是以反扣相连的。上减压器时要用一只手托平阀体,将手轮对准角阀出口丝扣,用另一只手反时针方向旋转手轮,直至减压阀不左右摇动为止。
4、换瓶时要卸下减压器,卸前必须把钢瓶角阀关紧。
5、减压阀卸下后,应轻轻放在灶板上或其它的干燥物品上,不要随手往地上一扔,这样容易使减压器受损,还容易使进气口密封圈脱落。
6、当减压器出现故障时,应请*技术人员修理。不得自行拆卸。
水用减压阀的安装:
1.水用减压阀可水平或垂直安装平管道上;
2.水用减压阀的安装必须严格按照阀体上的箭头方向保持和流体流动方向一致,如果水质不清洁含有一些杂质,必须在减压阀的上游进水口安装过滤器;
3.打开水用减压阀调整出口压力的地方,用一字起子进行调节,顺时针旋转起子出口压力变大,反之出口压力减小,配合压力表调节,直到出口压力达到要求值;
4.水用减压阀在管道中起到一定的止回作用,为了防止水锤的危害,也可安装小的膨胀水箱,防止损坏管道和阀门,过滤器必须安装在减压阀的进水管前,而膨胀水箱必须安装在水用减压阀出水管后;
5.如果需要将水用减压阀安装在热水系统时,必须在减压阀和膨胀水箱之间安装止回阀。这样既可以让膨胀水箱吸收由于热膨胀而增加的水的体积,又可以防止热水回流或压力波动对减压阀的影响,确保减压阀长期正常工作。

订货须知:一、①产品名称与型号②口径③是否带附件以便我们的为您正确选型④的使用压力⑤的使用介质的温度。
二、若已经由设计单位选定公司的型号,请按型号直接向我司销售部订购。三、当使用的场合非常重要或环境比较复杂时,请您尽量提供设计图纸和详细参数,由我们的阀门公司专家为您审核把关。如有疑问:请:我们一定会尽心尽力为您提供优质的服务。提供全面、*的“阀门系统解决方案",也十分愿意帮助用户解决生产中所遇到的难题。
-
联系方式
- 联系人:申弘阀门
- 电 话:021-59260058
- 手 机:15901754341
- 传 真:86-021-31662735
- 邮 箱:494522509@qq.com
- 邮 编:201718
- 地 址:上海市青浦区金泽工业园区
- 网 址: https://bengye.cn.goepe.com/
http://www.021-fm.com
-
产品搜索





