-
申弘电动超高温方形蝶阀 FD941W
详细信息| 询价留言FD941W电动超高温方形蝶阀 产品说明
1.方形蝶阀主要用途与适用范围本阀门广泛应用在冶金系统的热风炉、加热炉、换热器、除尘器等系统的冷风、空气及烟气管道上,可远距离控制或现场操作。可与蜗轮装置或电(气)动装置配套组合成不同性能的阀门。
是我公司的一种新型节能可靠的气流调节设备。百叶式电动气流调节阀适用于冶金、矿山、煤炭、建材、化工、电力等行业的风机进、出口及通风管道上,对管路中流量进行电动调节。设计新颖、结构合理、重量轻、采用多轴多叶式、流阻小、流体均匀、启闭力小、转动灵活可靠。配用Z型或ZA型电动装置,可单独操纵或远距离集中控制,是各种风管系统中理想的气流调节设备。

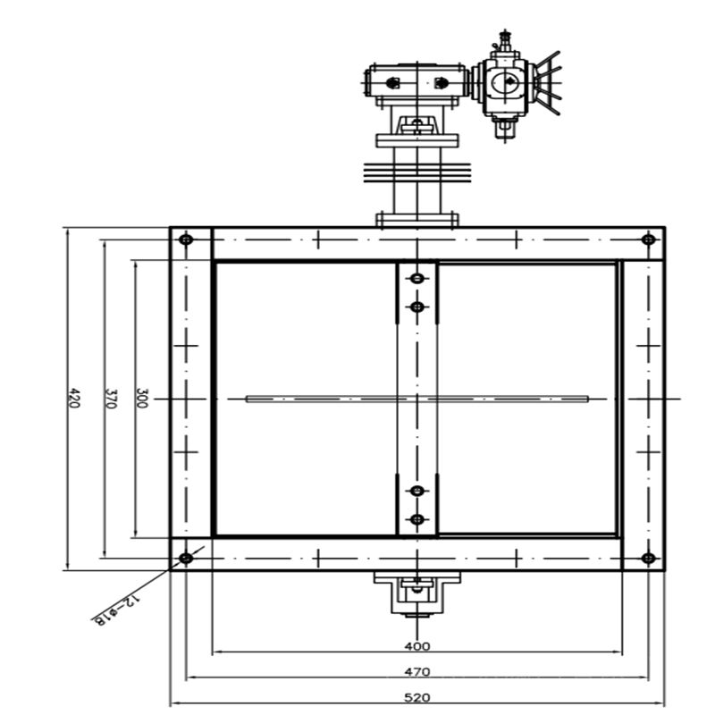
2.方形蝶阀工作原理及结构特点
该阀为截止类阀门,主要部件由阀体、蝶板、连杆、驱动装置等部件组成。阀门工作原理是驱动装置输出力矩通过阀轴与连杆机构使蝶板作0-90°的旋转,起到截断或流通介质作用,本阀不*用于调节介质之用。采用优质碳素钢钢板焊接。具有重量轻,刚度好,结构紧凑,耐温,防腐,密封面无磨损、漏风小等特点。

FD941W电动超高温方形蝶阀 产品名称:方形蝶阀
1.型号:蜗轮传动[FD341W]、气动[FD641W]、电动[FD941W];
2.规格尺寸:120×120~3000×3000;
3.公称压力:0.1MPa;
4.适用温度:≤300;
5.材质:不锈钢,铸钢;
FD941W电动超高温方形蝶阀 外形尺寸
160´120
220´180
195´155
120
6
350
3
2
10-10
16
160´160
220´220
195´195
120
6
350
3
3
12-10
18
200´160
260´220
235´195
120
8
350
4
3
14-10
22
200´200
260´260
235´235
120
8
350
4
4
16-10
28
250´120
320´190
290´160
140
8
450
4
2
12-10
30
250´160
320´230
290´200
140
8
450
4
3
14-10
38
250´200
320´270
290´240
140
8
450
4
4
16-10
47
250´250
320´320
290´290
140
8
450
4
4
16-10
56
320´160
390´230
360´200
140
8
450
5
3
16-10
50
320´200
390´270
360´240
140
8
450
5
4
18-10
58
320´250
390´320
360´290
140
8
450
5
4
18-10
61
320´320
390´390
360´360
140
8
450
5
5
20-10
75
400´200
470´270
440´240
140
8
450
6
4
20-12
63
400´250
470´320
440´290
140
8
450
6
4
20-12
71
400´320
470´380
440´360
140
8
450
6
5
22-12
80
400´400
470´470
440´440
140
8
450
6
6
24-12
90
500´200
570´270
540´240
140
8
450
7
4
22-12
68
500´250
570´320
540´290
140
8
450
7
4
22-12
78
FD941W电动超高温方形蝶阀 外形尺寸
500´320
570´390
540´360
140
8
450
7
5
24-12
88
500´400
570´470
540´440
140
8
450
7
6
26-12
108
500´500
570´570
540´540
140
8
450
7
7
28-12
114
630´250
710´320
680´300
160
10
600
8
4
24-12
79
630´320
710´400
680´370
160
10
600
8
5
26-12
80
630´400
710´480
680´450
160
10
600
8
6
28-12
104
630´500
710´580
680´550
160
10
600
8
7
30-12
126
630´630
710´710
680´680
160
10
600
8
8
32-12
148
800´320
880´440
850´370
160
10
600
10
5
30-14
132
800´400
880´480
850´450
160
10
600
10
6
32-14
146
800´500
880´580
850´550
160
10
600
10
7
34-14
160
800´630
880´710
850´680
160
10
600
10
8
36-14
180
800´800
880´880
850´850
160
10
600
10
10
40-14
210

结构比较短小,占用空间小,安装的时候先用对夹式蝶阀专用法兰将其固定,然后将固定好的对夹式法兰放入管道两端法兰中间,用螺栓穿过对夹式蝶阀专用法兰和管道法兰将其固定。具体安装步骤流程如下:
1、将对夹式蝶阀放置于预安装的两片对夹蝶阀专用法兰之间,注意将法兰螺栓孔与蝶阀阀体圆孔对齐。
2、将螺栓和螺母插入法兰孔将阀体与法兰连接,校正一下法里面的平整度,但注意不要把螺栓螺母拧的过紧。
3、将法兰焊接在管道上,这一步要采用点焊的方式。
4、先把对夹式蝶阀取下移出。
5、再将两片法兰完全焊在管道上,完成固定。
6、等法兰与管道的焊接处冷却之后,再讲对夹式蝶阀安装进去。此时注意要将蝶板打开一些。
7、再一次对蝶阀的安装位置做一个校正,拧紧螺栓,但要注意不要拧的过紧。
8、将蝶阀蝶板完全打开,保证蝶阀的蝶板可以自由启闭,能自由开闭。
9、再一次将螺栓交叉,均衡的拧紧;
10、以上步骤完成,再一次对蝶阀的启闭做一个测试,确保阀门可以自由的开关。

FD941W电动超高温方形蝶阀 安装方法
法兰蝶阀自带法兰,安装时候无需再专门配备法兰片,直接将阀体上的法兰与管道法兰用螺栓连接起来即可。但法兰蝶阀安装时要注意几点:
1.在安装时,蝶阀阀体法兰与管道上法兰之间的端面要平行,不能出现歪斜的情况,否则可能会因为螺栓拧不紧造成法兰连接处泄漏。
2.法兰蝶阀在管道上安装时候要在管道两端法兰与阀体法兰之间加入垫片,但不能用双垫片。
3.紧螺栓时要对称进行,两端法兰连接各个螺栓拧紧力要均匀且一致。
4.在安装时,要先安装蝶阀上定位孔的螺栓,将蝶阀位置对中固定,另外,在紧固法兰螺栓时,要对称交替拧紧,不要依次单独紧固螺栓。
相比对夹蝶阀,法兰蝶阀的密封性能更好,更适合做大口径阀门。但是使用成本和价格也会更高。法兰蝶阀的结构更长,占用的管道安装空间更大。

法兰蝶阀安装方法:
1、法兰蝶阀安装前检查气动蝶阀各部分部件无缺失,型号无误,检查阀体内无杂物,电磁阀和消音器内无阻塞。
2、将阀门和汽缸均置于关闭状态。
3、将汽缸撞到阀门上,(安装方向与阀体平行或垂直都可以),再看螺丝孔是否对正,不会有太大偏差,如有少许偏差,将气缸体转动一点就可以了,然后将螺丝紧固。
4、安装完毕后,对气动蝶阀进行调试(正常情况下供气压力为0.4~0.6MPa),调试运行时须手动操作电磁阀启闭(将电磁阀线圈失电后手动操作方可有效),观察气动蝶阀的启闭情况。如果在调试运行过程中发现阀门在启闭过程初始时有些吃力,之后正常,则需要将气缸行程调小(把气缸两端行程调节螺丝同时往里调一点,调整时需将阀门运行到开位置,然后将气源关掉再调),直至阀门启闭动作顺滑且关闭无泄漏。还需要注意的是,可调型消音器可以调节阀门的启闭速度,但不可调得过小,否则可能引起阀门不动作。
5、得发在安装前应保持干燥,不可露天存放。
6、安装蝶阀前要检查管道,确保管道内无焊渣等异物。
7、蝶阀阀体手动启闭阻力适中,蝶阀扭矩与所选执行器扭矩匹配。
8、蝶阀连接用法兰规格正确,管道对夹法兰与蝶阀法兰标准相符。建议使用蝶阀专用法兰,不得使用平焊法兰。
9、确认法兰焊接无误,蝶阀安装完毕后不得再焊接法兰,以免烫伤橡胶件。
10、装好的管道法兰要进行对中,并与放入的蝶阀进行对中。
11、装上所有的法兰螺栓,并用手拧紧,将确认蝶阀与法兰已然对中,然后小心的启闭蝶阀,确保启闭灵活。
12、将阀门完全开启,用扳手按照对角线次序将螺栓拧紧,无需垫圈,切勿将螺栓拧的过紧,以防造成阀圈的严重变形,启闭扭矩过大。

订货须知:
一、产品名称与型号口径是否带附件以便我们的为您正确选型使用压力使用介质的温度。
二、若已经由设计单位选定公司的放料阀型号,请型号直接向我司销售部订购。
三、当使用的场合非常重要或环境比较复杂时,请您尽量提供设计图纸和详细参数,由我们的阀门公司专家为您审核把关。如有疑问:请:我们一定会尽心尽力为您提供优质的服务。
-
联系方式
- 联系人:申弘阀门
- 电 话:021-59260058
- 手 机:15901754341
- 传 真:86-021-31662735
- 邮 箱:494522509@qq.com
- 邮 编:201718
- 地 址:上海市青浦区金泽工业园区
- 网 址: https://bengye.cn.goepe.com/
http://www.021-fm.com
-
产品搜索






