-
ZZY不锈钢防火防静电氧气自力式减压阀申弘
详细信息| 询价留言ZZYP炼钢吹高纯度氧气自力式减压阀 产品说明
随着工业的不断发展,氧气的应用领域越来越广——如生产合成氨时,氧气用于对原料气进行氧化,以强化工艺过程,提高化肥产量;炼钢过程中吹以高纯度氧气与碳,磷,硫,硅等起氧化反应,不仅降低了钢的含碳量,还有利于清除杂质,吹氧不仅缩短了冶炼时间,同时提高了钢的质量.不仅如此,氧气还广泛的应用于医疗卫生,国防等其他行业.过程控制(ProcessControl)是指以温度,压力,流量,液位和成分等工艺参数作为被控变量的自动控制,其*常用的终端控制元件就是控制阀,控制阀调节流动的流体,以补偿负载扰动并使得被控制的过程变量尽可能地靠近需要的设定点.

本文根据对氧气特性及氧气管道,阀门燃烧爆炸原因的分析,对氧气控制阀的选型,提出了建议.氧气,空气主要组分之一,比空气重,标准状况(0℃和大气压强101325帕)下密度为1.429克/升。无色、无臭、无味。在水中溶解度很小。压强为101kPa时,氧气在约-183摄氏度时变为淡蓝色液体,在约-218摄氏度时变成雪花状的淡蓝色固体。氧分子具有顺磁性。因为高压的氧气喷出时遇油会后有爆炸,燃烧的危险,所以氧气减压器都要禁油脱脂处理。一般常用四氯化碳清洗就可以达到脱脂禁油的目的。减压阀除了需要知道口径,公称压力,介质,温度,连接方式,材质外;还需要了解以下参数
1、 进口压力,指进口端的压力,也叫一侧压力,一般用P1标示,比如进口压力为1.2Mpa
2、 出口压力,指出口端的压力,也叫二侧压力,一般用P2标示,比如出口压力为0.5Mpa;就是指要将进口压力1.2Mpa减到出口压力0.5Mpa;出口压力的高低决定了选择哪种合适的减压阀,比如出口压力很低的情况下,5Kp以内,就要选择 那种微压的压力调节阀。
3、 流量:阀门流量是指阀门的流体能力,一般指每小时能通过的介质是多少L/H,或者立方/H,L/min;因为减压就会使得流量变小,所以再满足减压的同时要看流量多少,是否满足要求。流量系数CV值,KV值。
4、 调压范围:它是指减压阀输出压力P2的可调范围;比如0.1Mpa-1.5Mpa
5、带压力表:进出口两端一般带压力表,能直观看出进出口的压力值;一些有名的进口品牌,,用于气体的进口减压阀一般都带进出口压力表。

ZZYP炼钢吹高纯度氧气自力式减压阀基本性能
(1)调压范围:
调压范围是指减压阀输出压力P2的可以调整控制的范围,在这个可调范围内要求达到规定的精度。调压范围主要与调压弹簧的刚度有关。
(2)压力特性:
压力特性是指流量g为定值时,因输入压力波动而引起输出压力波动的特性。输出压力波动越小,减压阀的特性越好。输出压力必须低于输入压力—定值才基本上不随输入压力变化而变化。
(3)流量特性:
流量特性是指输入压力—定时,输出压力随输出流量g的变化而变化的持性。当流量g发生变化时,输出压力的变化越小越好。一般输出压力越低,它随输出流量的变化波动就越小。
ZZYP炼钢吹高纯度氧气自力式减压阀产品特点
1、自力式压力调节阀无需外加能源,能在无电无气的场合工作,既方便又节约能源。
2、压力分段范围细且互相交叉,调节精度高。
3、压力设定值在运行期间可连续设定。
4、对阀后压力调节,阀前压力与阀后压力之间比为10:1~10:8
5、橡胶膜片式检测,执行机构检测精度高、动作灵敏。
6、采用压力平衡机构,使调节阀反应灵敏,控制精确。
ZZYP炼钢吹高纯度氧气自力式减压阀工作原理
系统未运行时阀门关闭,系统运行时,阀前压力通过脉冲管进入指挥器,指挥器在气室1的激励时压力排除,
主阀芯在阀前压力作用下打开;当阀后压力上升到设定压力时、压力通过反馈管传到气室1,气室1工作指挥
器处于去激励工况、此时脉冲管吧阀前压力传递到气室2破坏当前平衡使阀芯运动至主阀切断,使阀后或罐内
压力保持设定值。设定压力可通过调节杆调整。
为适应小流量(Kv≤0.08)的需要,执行机构通过改造,还可以作为一种直接弹簧式调节器来使用。
ZZYP炼钢吹高纯度氧气自力式减压阀主要技术参数
公称通径DN 20 25 32 40 50 65 80 100 125 150 200 250 300 额定流量系数Kv 7 11 20 30 48 75 120 190 300 480 760 1100 1750 噪音衡量系数Z值 0.6 0.6 0.6 0.55 0.55 0.5 0.5 0.45 0.4 0.35 0.3 0.2 0.2 允许压差
(Mpa)PN16 1.6 1.5 1.2 1,0 PN40 2.0 阀盖形式 标准型-17~+300℃、高温型+300℃~+450℃ 压盖型式 螺栓压紧式 密封填料 V型聚四氟乙烯填料、含浸聚四氟乙烯石棉填料、石棉纺织填料、石墨填料 阀芯形式 单座、套筒型阀芯 流量特性 线性
四、ZZYP炼钢吹高纯度氧气自力式减压阀 执行器技术参数有效面积(cm ) 32※ 80 250 630 压力设定范围(MPa) 0.8~1.6 0.1~0.6 0.015~0.15 0.005~0.035 0.3~1.2 0.05~0.3 0.01~0.07 保证压力阀正常工作的
*小压差△Pmin(MPa)≥0.05 ≥0.04 ≥0.01 ≥0.005 允许上下膜室之间*大压差(MPa) 2.0 1.25 0.4 0.15 材料 膜盖:钢板镀锌; 膜片:EPDM或FKM夹纤维 控制管线、接头 铜管或钢管10×1; 卡套式接头:R1/4"
注:※该有效面积所对应的压力设定范围不适用于DN150-250。五、ZZYP炼钢吹高纯度氧气自力式减压阀 主要性能指标
设定值偏差 ±8% 允许泄露量
(在规定实验条件下)硬密封 4×0.01%阀额定容量 软密封 DN15~50 DN65~125 DN150~250 10气泡/min 20气泡/min 40气泡/min
六、ZZYP炼钢吹高纯度氧气自力式减压阀*高工作温度公称通径 15~125mm 150~250mm 密封型式 硬密封 ≤150℃ ≤140℃ 冷却罐≤200℃ 冷却罐和加长件≤200℃ 冷却罐和散热片≤350℃ ※ 冷却罐和加长件≤300℃ ※ 软密封 ≤150℃
注:※表示该阀允许工作温度,仅当介质为蒸汽时有效,且耐温至350℃需选用PN40的阀体。

七、ZZYP炼钢吹高纯度氧气自力式减压阀 主要零件材料
材料代号 C(WCB) P(304) R(316) 主要
零件
阀体 WCB(ZG230-450) ZG1Cr18Ni9Ti(304) ZG1Cr18Ni12Mo2Ti(316) 阀芯、阀座 1Cr18Ni9Ti(304) 1Cr18Ni9Ti(304) 1Cr18Ni12Mo2Ti(316) 阀杆 1Cr18Ni9Ti 1Cr18Ni9Ti 1Cr18Ni12Mo2Ti 膜片 丁睛橡胶、乙丙橡胶、氯丁胶、耐油橡胶 膜盖 A3、A4钢涂四氟乙烯 填料 聚四氟乙烯、柔性石墨 弹簧 60Si2Mn 导向套 HPb59-1
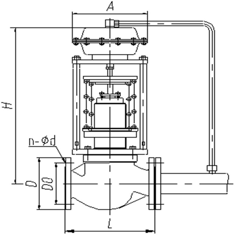
八、ZZYP炼钢吹高纯度氧气自力式减压阀 主要外形
九、ZZYP炼钢吹高纯度氧气自力式减压阀主要外形尺寸公称通径(DN) 20 25 32 40 50 65 80 100 125 150 200 250 300 法兰接管尺寸(B) 383 512 603 862 1023 1380 1800 2000 2200 法兰端间距(L) 150 160 180 200 230 290 310 350 400 480 600 730 850 压力调节范围(KPa)
15-140 H 475 520 540 710 780 840 880 915 940 1000 A 280 308 200-500 H 455 500 520 690 760 800 870 880 900 950 A 230 120-300 H 450 490 510 680 750 790 860 870 890 940 A 176 194 280 480-1000 H 445 480 670 740 780 850 860 880 930 A 176 194 280 600-1500 H 445 570 600 820 890 950 1000 1100 1200 A 85 96 1000-2500 H 445 570 600 820 980 950 1000 1100 1200 A 85 96 大约重量(Kg) 26 37 42 72 90 114 130 144 180 200 250 导压管接口螺纹 M16X1.5

现有的自力式调节阀仍然存在不足之处,首先,现有阀体内的阀杆大多浸泡在介质中,而一些介质具有腐蚀性,进而在长期使用后导致阀杆被腐蚀从而影响阀杆的正常移动;其次,现有阀体内部的膜片作为感知压力的部件,在长时间使用后与弹簧的连接处易产生机械劳损,进而影响膜片的反应,导致调节不准确。氧气减压阀为什么要进行脱脂禁油处理呢。油脂,特别是含有不饱和脂及酸脂,很轻易气化放热。油纱头、油布所以能自燃就是由于在空气中发生氧化作用,聚热不散,当达到自燃点而引起自燃。而油脂在空气中气化速度较慢,产生的热量很快散发,一般不易聚热自燃。由于纯氧有极强的氧化性,它能促使可燃物的猛烈燃烧。油脂类物质碰到了纯氧,其气化速度大大加快。同时放出大量热量。温度迅速上升,很快就会引起燃烧。假如氧气瓶口沾上油脂,当氧气急速度喷出时,使油脂迅速发生氧化反应,而且高压气流与瓶口摩擦产生的热量又进一步加速氧化反应的进行,所以沾染在氧气瓶或减压阀上的油脂就会引起燃烧,甚至爆炸,这就是氧气瓶特别是瓶嘴及与氧气接触的附件严禁接触沾染油脂的原因。

氧气喷出时遇油脂后会有爆炸,燃烧的危险,所以氧气管线的部件(管道,阀门,垫片等)都要禁油脱脂处理。一般常用四氯化碳清洗就可以达到脱脂禁油的目的,(清洗方法仅供参考)请准照脱脂工程施工规范清洗。氧气喷出时遇油会后有爆炸,燃烧的危险,所以氧气减压器都要禁油脱脂处理。一般常用四氯化碳清洗就可以达到脱脂禁油的目的。
氧气还原阀的高压腔与钢瓶相连,低压腔为出气口,通向使用系统。高压表的值是储存在钢瓶中的气体的压力。低压力表的出口压力可以通过调节螺杆来控制。使用时,先打开气缸主开关,然后顺时针转动低压表调压螺丝,使其压缩主弹簧,带动薄膜、弹簧垫和顶杆开启阀门。这样,进口的高压气体在节流减压后进入低压腔,通过出口通向工作系统。转动调节螺丝,改变阀门开启的高度,从而调节高压气体的吞吐量,达到所需的压力值。
泄压阀配有安全阀。它不仅是保护泄压阀,使其使用安全的装置,也是泄压阀故障的信号装置。如果由于阀垫损坏、阀门损坏或其他原因导致出口压力自行上升并超过一定允许值,安全阀将自动打开排气。

ZZYP炼钢吹高纯度氧气自力式减压阀的使用方法:
1.根据使用要求的不同,氧压安全阀有多种规格。的高进口压力主要是,低进口压力不低于出口压力的2.5倍。出口压力规格较多,一般情况下,出口压力是。
2.安装泄压阀时,应确定连接规格与服务系统的钢瓶和接头是否一致。减压阀与气缸通过半球面连接,两者通过拧紧螺母完全匹配。因此,在使用中,两个半球应保持平滑和清洁,以确保良好的密闭效果。安装前可用高压气体吹走灰尘。必要时,聚四氟乙烯等材料也可用作垫圈。
3.氧压力安全阀应严格禁止与油脂接触,以免发生火灾事故。
4.当您停止工作时,应将减压阀中的剩余气体排出,然后松开调节螺丝,以防止弹性元件长时间受压变形。
订货须知:
一、①产品名称与型号②口径③是否带附件以便我们的为您正确选型④的使用压力⑤的使用介质的温度。
二、若已经由设计单位选定公司的型号,请按型号直接向我司销售部订购。三、当使用的场合非常重要或环境比较复杂时,请您尽量提供设计图纸和详细参数,由我们的阀门公司专家为您审核把关。如有疑问:请:我们一定会尽心尽力为您提供优质的服务。提供全面“阀门系统解决方案",也十分愿意帮助用户解决生产中所遇到的难题。
-
联系方式
- 联系人:申弘阀门
- 电 话:021-59260058
- 手 机:15901754341
- 传 真:86-021-31662735
- 邮 箱:494522509@qq.com
- 邮 编:201718
- 地 址:上海市青浦区金泽工业园区
- 网 址: https://bengye.cn.goepe.com/
http://www.021-fm.com
-
产品搜索







