-
H12W内螺纹立式止回阀SH
详细信息| 询价留言H12W内螺纹立式止回阀产品说明
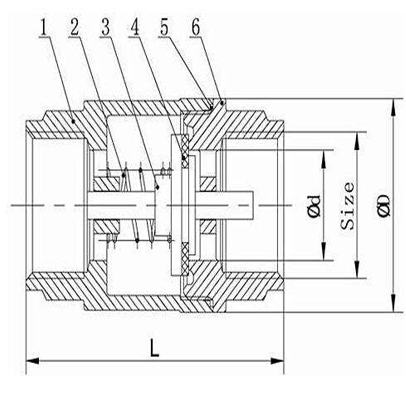
本实用新型涉及一种用于防止管路内介质倒流的止回阀结构,尤其是指立式止回阀。H12W内螺纹立式止回阀正常处于关闭状态,由于管线中进口端介质的压力作用,而克服弹簧阻力使阀门开启。当进口端介质压力低于出口端时,弹簧将阀芯推向阀座而使阀门关闭,阻止介质逆流,故起止回作用。内螺纹立式止回阀由于采用弹簧支撑阀芯,故采用立式安装或卧式装均可。
H12W内螺纹立式止回阀精度高,外观美,造型小,带有弹簧装置。垂直与水平安装均可等特点。主要适应管道系统中防止介质倒流使用。

【产品特点】:
1、阀瓣关闭快速,水锤压力小。
2、具有结构短、体积小、质量轻。
3、因速闭作用,可防止介质倒流,消除水锤作用强。
4、流道通畅,流体阻力小;动作灵敏,密封性能好。
5、安装方便,可在水平、垂直两个方向的管路上安装。
6、阀板采用对偶板上加两个扭力弹簧的设计,可使阀板自行速闭。
H12W内螺纹立式止回阀背景技术:
止回阀是一种自动阀门,它依靠介质本身流动而自动启闭阀瓣,主要安装在介质单向流动的管路上,并只允许介质向一个方向流动,以防止发生事故,还可应用在压力可能升至超过系统压的辅助系统提供补给的管路上。传统的立式止回阀一般是由阀体、阀盖、阀瓣、阀杆、弹簧、弹簧垫圈等结构构成,阀瓣通过阀瓣座固定安装在阀杆上,阀杆再通过弹簧的弹性顶推带动阀瓣密封接触阀座,故在弹簧推力与介质压力的共同作用下实现阀门的贯通功能和止回功能。然而,这种阀瓣止回启闭结构必须借助弹簧的弹性推力来实现,极易受到弹簧性能的限制,在实际使用中也就存在很多难以克服的问题;同时,阀瓣与阀座之间的密封主要采用橡胶材料密封或金属之间硬密封,这就造成密封效果不太理想,阀门寿命短,也因生产装配较为复杂、维修不便,从而提高了产品的生产成本,*影响了产品的生产品质。

技术实现要素:
本实用新型所要解决的技术问题在于克服现有技术的缺陷而提供一种结构简单、止回可靠、启闭密封性能良好、使用寿命长、生产成本低、维修方便、品质优良的立式止回阀。
H12W内螺纹立式止回阀性能参数型号H12W-16P工作压力(MPa)1.6适用温度(℃)≤150适用介质水、蒸汽、油品材料阀体、阀盖、阀瓣黄铜销轴不锈钢密封面黄铜型号H14W-16P工作压力(MPa)1.6适用温度(℃)-20~180适用介质水、轻微腐蚀性气液体、饱和蒸汽、直饮水材料阀体、阀盖不锈钢阀瓣不锈钢密封面不锈钢H12W内螺纹立式止回阀主要技术参数:
工作压力H12型为6-16Mpa H13型为4-32Mpa
工作介质为<=420 o C 和<=170 o C的水,油,液体
全不锈钢材料制造 材料:不锈钢304、不锈钢316、不锈钢316L

H12W内螺纹立式止回阀性能参数与主要尺寸:
公称通径 DN(mm) ZG H L 15 1/2 73 43 20 3/4 85 48 25 1 95 55 32 1-1/4 113 73 40 1-1/2 138 86 50 2 156 98 本实用新型公开了一种立式止回阀,可用于防止管路内介质倒流,其结构包括阀体、阀座、阀瓣座、阀瓣和环状阀盖等,主要是将阀瓣座设计成一个倒扣在阀座上的圆筒,且阀座上设有进水孔,阀瓣座顶部设有出水孔,再将陶瓷制成的阀瓣轴向往复移动设置在阀瓣座内;因此,当阀瓣下落接触在阀座上就能关闭进水孔,从而实现阀门的止回功能;当阀瓣受管路内的介质压力脱离阀座而打开进水孔,就能将进水孔与出水孔相连通,从而实现阀门的贯通功能;这种止回结构避免了传统止回阀必须受限于弹簧的弹性推力才能止回的缺陷,且结构设计更加简单、止回非常可靠、启闭密封性能良好,改进后的立式止回阀还具有使用寿命长、生产成本低、维修方便、品质优良等优点。本阀门在使用过程中,介质按图示箭头方向流动。

1,当介质按规定方向流动时,阀瓣受介质力的作用,被开启;介质逆流时,因阀瓣自重和阀瓣受介质反向力的作用,使阀瓣与阀座的密封面密合而关闭,达到阻止介质逆流的目的。
2,阀体及阀瓣的密封面采用不锈钢堆焊。
订货须知:
一、①产品名称与型号②口径③是否带附件以便我们的为您正确选型④的使用压力⑤的使用介质的温度。
二、若已经由设计单位选定公司的型号,请按型号直接向我司销售部订购。三、当使用的场合非常重要或环境比较复杂时,请您尽量提供设计图纸和详细参数,由我们的阀门公司专家为您审核把关。如有疑问:请:我们一定会尽心尽力为您提供优质的服务。提供全面、*的“阀门系统解决方案",也十分愿意帮助用户解决生产中所遇到的难题。
-
联系方式
- 联系人:申弘阀门
- 电 话:021-59260058
- 手 机:15901754341
- 传 真:86-021-31662735
- 邮 箱:494522509@qq.com
- 邮 编:201718
- 地 址:上海市青浦区金泽工业园区
- 网 址: https://bengye.cn.goepe.com/
http://www.021-fm.com
-
产品搜索






