-
申弘电动V型衬氟球阀VQ947F
详细信息| 询价留言VQ947F电动V型衬氟球阀 概述
本实用新型的有益效果是,通过*阀体和第二阀体配合形成阀体,使得产品结构简单,装配方便,同时体积小、重量轻,只由少数几个零件组成,而且只需旋转90°即可快速启闭,操作简单。而且设置了衬氟层,使得介质通道有可能接触到的部件均被包裹,避免金属件被腐蚀,使得产品能适用于腐蚀性介质的工况下动作,使得产品适配范围广,且密封可靠。*衬氟层、第二衬氟层分别与球体的第三衬氟层进行贴合实现球阀的密封,采用整体式密封,避免在半开半闭状态时,现有球阀的阀座受冲刷时颗粒进入阀座影响产品整体密封性能。本实用新型还具有结构简单,装配方便,动作可靠,使用寿命长等优点。

电动衬氟球阀,它是针对强腐蚀介质的两位切断而专门研制的;如果用在调节场合,球芯可变型为“V”型,并配上相应的附件。们除具有“P”型或“V”型球阀的性能、特点外,该阀突出地考虑了阀的耐腐蚀性、使用的可靠性和制造的工艺性,即是当今 *理想的税处理专用阀,又是当今*理想的耐腐蚀切断阀,可广泛地应用在各类强腐蚀介质场合,是传统的以及以前引进装置中的隔膜阀,衬胶蝶阀的替代产品。
以前,水处理系统中的脱盐水装置大多使用衬橡胶隔膜阀,因其腐蚀效果很差而逐渐被衬氟隔膜阀取代,虽然氟塑料有几好的耐腐蚀性能,解决了耐腐蚀问题,但因隔膜阀的结构缺陷,其工作时膜片的上下折叠运动,由很薄的氟塑料制成的隔膜片很快被折破,这就是尽量不采用隔膜阀,本公司亦不推荐使用的主要原因。
解决氟塑料隔膜阀寿命短的问题,靠更换膜片或更换新阀不是有效的办法,我们认为只能从结构上改进才能从根本上解决。通过对各种阀型的可靠性和易于实现耐腐蚀的分析,我们选用了球阀结构;在耐腐蚀方面,仍然选用衬氟塑料,它可在180℃温度内,耐各种强腐蚀介质,脱盐水站的介质对它不产生腐蚀,在结构上,由于球芯是一个强度高,刚度好的不易变形的零件,因此从根本性上解决了耐腐蚀性、可靠性两大问题。

2电动衬氟球阀特点:
1.采用FEP衬里层的球阀,具有极高的化学稳定性,可以适用除“熔融碱金属和元素氟",以外其它任何强腐蚀性质;
2.采用全通径、浮动球结构,阀门可在整个压力范围内进行无泄漏关闭,更便于管路系统的通球扫线和管路维护;
3.启闭件球件与阀杆铸(锻)为一体,杜绝了由于压力变化引起阀杆冲出承压件内的可能性,从根本上保证了工程中的使用安全性;
4.结构紧凑合理,阀体内腔空间zui小,减小了介质滞留,另外,特殊的模压工艺,使密封面致密度良好,加之人字环形PTFE填料组合,使阀门达到零泄漏;
5.两片式、三片式结构可适应各种不同要求的管路系统和工况条件,其中三片球阀允许主阀体与两侧阀体分离,可实现在线快速更换、维修。
设计规范:遵循GB 12237/API 608 /API 6D 标准。
驱动方式:手动、蜗轮传动、气动、电动

2.2VQ947F电动V型衬氟球阀 调节机构
主要由衬氟阀体、衬氟球阀和阀座、上阀盖、填料等零件组成。阀体流道形状有O形和V形两种。O形球阀的流量特性为快开,一般用于两位式切断场合;
V形球阀的流量特性为近似等百分比,用于调节阀场合。根据需要,还可定做矩形流道口,用于需直线特性的调节场合。
阀体外壳有ZG230-450和1Cr18Ni9Ti两种,后者用于有腐蚀性环境的场合,如现场因介质泄漏或因其工艺原因有较强的腐蚀性,可在阀体、执行器及支架连接件外表面涂覆环氧树脂漆,这样能有效地提高阀体外壳的防腐蚀性能。耐腐性能除高温氟元素和熔融状态的碱金属对它有腐蚀作用,某些卤化物或芳香烃使其有轻微的膨胀外,
其它诸如强酸(包括浓硝酸和王水)、强碱、强氧化剂、油脂、酮、醚等即使在高温下也对它不起作用。
是由电动执行机构和V型衬氟球阀组成。阀体内腔及球芯均采用高压注塑工艺衬有耐腐蚀、耐老化的聚全氟乙炳烯,故具有可靠的耐腐蚀性和密封性。电动衬氟球阀主要用于对生产过程中酸碱等强腐蚀介质的调节或切断。电动执行机构内置伺服系统,无须另配伺服放大器,输入4-20mA信号及220VAC/380V电源即可控制运转。耐腐蚀电动球阀具有连线简单,结构紧凑、尺寸小、重量轻、阻力小、动作稳定可靠等优点。
应做广义理解,例如,可以是固定连接,也可以是可拆卸连接,或一体地连接;可以是机械连接,也可以是电连接;可以是直接相连,也可以通过中间媒介间接相连,可以是两个元件内部的连通。对于本领域的普通技术人员而言,可以具体情况理解上述术语在本发明中的具体含义。此外,在本发明的描述中,除非另有说明,“多个”的含义是两个或两个以上。

3 VQ947F电动V型衬氟球阀 主要参数
注:公称压力、公称通径超出列表范围的产品请与本公司联系,可商洽解决。公称通径(mm) 15 20 25 32 40 50 65 80 100 125 150 200 流量系数 O型 21 38 72 110 171 273 385 513 941 1455 2226 3595 V型 10 16 25 40 63 100 160 250 400 630 1000 1600 额定行程 90° 公称压力 1.6MPa 流量特性 V型:近似等百分比;O型:快开 可调范围 V型:100:1 作用形式 气开式、气关式 法兰标准 符合JB78-59、JB79-59标准、可按JB/T79.1-94、JB/T79.2-94、ANSI、JIS、DIN等标准订货生产
4 阀体、阀内件材料组合、工作温度及 泄漏率阀体材料 ZG230-450+F46 ZG1Cr18Ni9Ti+F46 球体材料 ZG1Cr18Ni9Ti+F46等 阀杆材料 1Cr18Ni9Ti+F46等 填料材料 聚四氟乙烯 密封型式 软密封 泄漏量 Ⅵ级,零泄漏 工作温度 -5~200℃ -20~200℃ 注:特殊材质要求请与本公司联系,可商洽解决。
主要零件部件材料表
序号
零件名称
材料名称
VQ947F/H/Y-C
VQ947F/H/Y-P
VQ947F/H/Y-R
VQ947F/H/Y-RL
1
底座
WCB
CF8
CF8M
CF3M
2
阀体
WCB
CF8
CF8M
CF3M
3
下阀轴
2Cr13
304
316
316L
4
密封圈
聚四氟乙烯(PTFE)/对位聚苯(PPL)/硬质合金/不锈钢
5
球体
2Cr13
CF8
CF8M
CF3M
6
上阀轴
2Cr13
304
316
316L
7
填料
柔性石墨+不锈钢/聚四氟乙烯(PTFE)
8
填料压盖
WCB
CF8
CF8M
CF3M
9
压板
WCB
CF8
CF8M
CF3M
三、主要性能参数表
公称压力
PN(MPa)试验压力
适用介质
适用温度
壳体试验
密封试验
1.6
2.4MPa
1.76MPa
水、油、气及
高粘度、含纤维、
固体颗粒等介质-28℃~550℃
2.4
3.75MPa
2.75MPa
4.0
6.0MPa
4.4MPa
应用规范
连接法兰
JB79-59、 GB20592-97、AMSI B16.5
检验和试验
JB/T 9092-99 、API 598
公称通径DN(mm)
25
32
40
50
65
80
100
125
150
200
250
300
350
400
额定流量系数Cv
32
43
78
90
160
250
360
610
1120
1850
2950
3700
7195
11466
公称压力PN(MPa)
1.6-6.4
流量特性
近似等百分比、直线特性
阀板转角(度)
0°~至90°(可调)
允许泄漏量等级
软密封:零泄露
硬密封:≤额定Cv×0.001%软密封:VI微气泡级;金属密封:≤额定CV×0.065%
动作时间(S/90度)
8.5~30
36~60
可调节比
250:1
300:1
基本误差
回差
死区
输入信号
输出信号
全行程的≤±2%
全行程的≤±2%
全行程的≤0.8%
4~20mADC
4~20mADC
公称压力
PN(MPa)
公称通径
DN(mm)
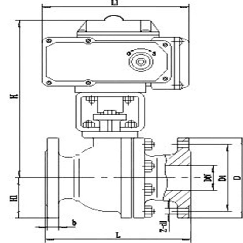
尺寸(mm)
L
L1
D
D1
D2
b
Z-ød
Dc
H1
1.6
25
-
-
-
-
-
-
-
38
57
40
-
-
-
-
-
-
-
49
63
50
124
62
160/165
125
100/102
16/18
4-ø18
60
92
65
145
72.5
180/185
145
120/122
18
4-ø18
75
100
80
165
82.5
195/200
160
135/138
20
8-ø18
89
108
100
194
97
215/220
180
155/158
20
8-ø18
113
117
125
210
105
245/250
210
185/188
22
8-ø18
140
140
150
229
114.5
280/285
240
210/212
24/22
8-ø23/8-ø22
164
177
200
243
121.5
335/340
295
265/268
26/24
12-ø23/12-ø22
205
200
250
297
148.5
405
355
320
30/26
12-ø25/12-ø26
259
252
300
338
169
460
410
375/378
30/28
12-ø25/12-ø26
300
270
2.5
25
-
-
-
-
-
-
-
38
57
40
-
-
-
-
-
-
-
49
63
50
124
62
160/165
125
100/102
20
4-ø18
60
92
65
145
72.5
180/185
145
120/122
22
8-ø18
75
100
80
165
82.5
195/200
160
135/138
22/24
8-ø18
89
108
100
194
97
230/235
190
160/162
24
8-ø23/8-ø22
113
117
125
210
105
270
220
188
28/26
8-ø25/8-ø26
140
140
150
229
114.5
300
250
218
30/28
8-ø25/8-ø26
164
177
200
243
121.5
360
310
278
34/30
12-ø25/12-ø26
205
200
250
297
148.5
425
370
332/335
36/32
12-ø30
259
252
300
338
169
485
430
390/395
40/36
16-ø30
300
270

电动衬氟球阀由YX系列电动执行机构和衬氟球阀组成,由于该阀内腔及球体均采用高压注塑工艺,衬有耐腐蚀、耐老化的聚四氟乙丙烯(简称F46),故具有可靠的耐腐蚀性和密封性。上海申弘阀门有限公司主营阀门有:减压阀(气体减压阀,可调式减压阀,水减压阀电动衬氟球阀执行机构能提供足够的转距,保证阀的可靠开、闭,并带有自动复位的离合器,失电时可自动复位。内置阀位反馈装置可实现阀位信号的传递和远程控制。Q941F46系列电动衬氟球阀是为各种强腐蚀性介质管路的自动启闭控制而设计的,广泛适用于石油、化工、染化、制酸制碱等行业,是目前防腐阀门设备*理想的选择之一。
各位技术人员须知:虽然本实用新型已按照上述具体实施方式做了描述,但是本实用新型的发明思想并不仅限于此实用新型,任何运用本发明思想的改装,都将纳入本专利专利权保护范围内。电动V型球阀阀芯设计成带有特殊形状的V型缺口,具有精确的流量特性和控制功能,适用于气体、液体、固态颗粒状等介质的控制,由于阀芯和阀座之间是无间隙回转,所以具有很大的剪切力及自洁性能,尤其适用于含有纤维性或有微小固体颗粒的悬浊液及固态颗粒状的工况场合的自动控制系统。

VQ947F电动V型衬氟球阀安装:
1取掉法兰端两边的保护盖,在阀完全打开的状态下进行冲洗清洁。
2安装前应按规定的信号电或气进行整机测试防止因运输产生振动影响使用性能,合格后方可上线安装。
3准备与管道连接前,须冲洗和清除干净管道中残存的杂质(这些物质可能会损坏阀座和球)。
4在安装期间,请不要用阀的执行机构部分作为起重的吊装点,以避免损坏执行机构及附件。
5本类阀应安装在管道的水平方向或垂直方向。
6安装点附近的管道不可有低垂或者承受外力的现象,可以用管道支架或者支撑物来消除管线的偏离。
7与管道连接后,请用规定的扭矩交叉锁紧法兰连接螺栓。
氟塑料或塑料衬里的耐腐蚀阀门及管理附件,由于其固有的特殊性质,在产品安装、维修及保养等方面具有以下的特点:
1阀门或管件法兰盖板不能随意拆开,除非已准备与管理连接,否则PTFE法兰面可能因温差、异物造成磕碰划伤或扭曲变形而影响密封,如因检验需要而移动盖板,也必须待检验后速将盖板重新复位,以保护PTFE法兰面。
2氟塑料或塑料衬里阀门及管件管路连接时,一般并不再单独使用垫片,但与异种材料(金属面等)法兰面相接时,应采用适当垫片,以保护PTFE法兰面。
3产品在系统使用中,如在较高温度下发生泄漏,应首先将系统温度降至室温后,再查明原因,进行维修。
4不允许在阀门及管件上做任何高温焊接工作,以免造成衬里层的永久损害。
5安装时法兰螺母应按对角线方向对称依次均匀旋紧,并配以适当力矩:
若法兰密封面发生泄漏,并且泄漏位置螺母已经锁紧,此时应放松泄漏位置螺母半圈,再将其对侧施以同样力矩再次锁紧。若上述办法仍未止漏时,应检查PTFE法兰面是否有凹凸面压痕、划伤,届时可用细砂纸、布予以整平重新连接。
6阀门及管件应存于干燥通风的室内,严禁堆叠放置。
7长期存放的阀门其密封应呈微启分离状态,避免密封面长期受压发生永久变形,影响密封性能和使用寿命。
8手动操作阀门时,不允许借助其他杠杆加力强行开关阀门
9有方向性要求的阀门在安装时要注意介质的流向顺阀体上箭头所示方向,并确保操作、维修方便。
10经维修后的阀门使用前要按标准测试合格后方可安装。

VQ947F电动V型衬氟球阀故障及排除方法序号
故 障
原 因
排除方法
1
电机起不动
1. 电源线脱开
2. 控制线路故障
3. 行程或力矩控制机构失灵
1. 检查电源线
2. 排除线路故障
3. 排除行程或力矩控制机构故障
2
输出轴旋向不符合规定
电源相序接反
调换任意两电源线
3
电机过热
1. 连续工作时间太长
2. 一相线断开
1. 停止运行,使电机冷却
2. 检查电源线
4
运行中电机停转
1. 阀门有故障
2. 电动装置过载,力矩控制机构动作
1. 检查阀门
2. 增大整定转矩
5
阀门到位后电机不停转或灯不亮
1. 行程或力矩控制机构有故障
2. 行程控制机构调整不当
1. 检查行程或力矩控制机构
2. 重新调整行程控制机构
6
远方无阀位信号
1. 电位器齿轮紧定螺钉松动
2. 远传电位器故障
1. 拧紧电位器齿轮紧定螺钉
2. 检查更换电位器
订货须知:
一、①产品名称与型号②口径③是否带附件以便我们的为您正确选型④使用压力⑤使用介质的温度。
二、若已经由设计单位选定公司的型号,请型号直接向我司销售部订购。三、当使用的场合非常重要或环境比较复杂时,请您尽量提供设计图纸和详细参数,由我们的阀门公司专家为您审核把关。产品所属球阀选型,感谢您访问我们申弘阀门的网站如有任何疑问.您可以致电给我们,我们一定会尽心尽力为您提供优质的服务。如需要了解更多其它阀类产品的信息可以点击减压阀查看。
-
联系方式
- 联系人:申弘阀门
- 电 话:021-59260058
- 手 机:15901754341
- 传 真:86-021-31662735
- 邮 箱:494522509@qq.com
- 邮 编:201718
- 地 址:上海市青浦区金泽工业园区
- 网 址: https://bengye.cn.goepe.com/
http://www.021-fm.com
-
产品搜索







