-
SH一体式保温球阀BQ41PPL
详细信息| 询价留言BQ41PPL一体式保温球阀简介
BQ41F保温球阀 :特点该系列阀门具有保温、保冷特性。按GB设计制造法兰连接按79-94标准制造用于石油、化工、冶金、制药行业。该阀门由于采用了蒸气夹套保温。上海申弘阀门有限公司主营阀门有:减压阀(气体减压阀,可调式减压阀,水减压阀故即使外界温度降到零度以下,该阀仍操作灵活保证输油管道能断开,其优点是一般控制阀门所没有的。它是重油输送管道理想的控制阀门。根据用户需要夹套注入蒸气、导热油、冷却水、冷气等。

法兰球阀产品为何被广泛应用?法兰球阀广泛适用于石油、化工、城市给排水等要求严格切断的工况。为了让法兰球阀产品用起来放心,选择正规的厂家购买产品是非常有必要的,并且为了安全起见,在操作的似乎一定要按照说明书的指导进行!如今的产品适应于很多行业,它本身具有很多优势,如下是对产品的相关信息的介绍:
保温球阀使用整个阀门长温或降温达到所需要的温度。阀门的一种,和法兰闸阀属一个类型,关闭件是个球体,球体绕阀体中心线作旋转来达到开启、关闭。球阀在管路中主要用来做切断、分配和改变介质的流动方向。一般水平安装。保温球阀和法兰闸阀是同属一个类型的阀门,区别在它的关闭件是个球体,球体绕阀体中心线作旋转来达到开启、关闭的一种阀门。 球阀在管路中主要用来做切断、分配和改变介质的流动方向。二片式球阀,三片式球阀,是近年来被广泛采用的一种新型阀门,此类阀门一般水平安装。

BQ41PPL一体式保温球阀特点
1. 流体阻力小,其阻力系数与同长度的管段相等。
2. 结构简单、体积小、重量轻。
3. 紧密可靠,目前球阀的密封面材料广泛使用塑料、密封性好,在真空系统中也已广泛使用。
4. 操作方便,开闭迅速,从全开到全关只要旋转90°,便于远距离的控制。
5. 维修方便,球阀结构简单,密封圈一般都是活动的,拆卸更换都比较方便。
6. 在全开或全闭时,球体和阀座的密封面与介质隔离,介质通过时,不会引起阀门密封面的侵蚀。
7. 适用范围广,通径从小到几毫米,大到几米,从高真空*压力都可应用。 球旋转90度时,在进、出口处应全部呈现球面,从而截断流动

开启过程
1在关闭位置,球体受阀杆的[wiki]机械[/wiki]施压作用,紧压在阀座上。
2当逆时针转动手轮时,阀杆则反向运动,其底部角形平面使球体脱开阀座。
3阀杆继续提升,并与阀杆螺旋槽内的导销相互作用,使球体开始无摩擦地旋转。
4直至到全开位置,阀杆提升到极限位置,球体旋转到全开位置。
关闭过程
1关闭时,顺时针旋转手轮,阀杆开始下降并使球体离开阀座开始旋转。
2继续旋转手轮,阀杆受到嵌于其上螺旋槽内的导销的作用,使阀杆和球体同时旋转90°。
3 快要关闭时,球体已在与阀座无接触的情况下旋转了90°。
4手轮转动的*后几圈,阀杆底部的角形平面机械地楔向压迫球体,使其紧密地压在阀座上,达到完全密封。
序号
零件名称
材料名称
1
阀座
WCB
CF8(304)
CF8M(316)
CF3(304L)
CF3M(316L)
2
阀体
WCB
CF8(304)
CF8M(316)
CF3(304L)
CF3M(316L)
3
密封圈
聚四氟乙烯、对位聚笨
4
球体
2Cr13
CF8(304)
CF8M(316)
CF3(304L)
CF3M(316L)
5
阀杆
2Cr13
CF8(304)
CF8M(316)
CF3(304L)
CF3M(316L)
6
填料
聚四氟乙烯、柔性石墨
注:主要零部件及密封面的材质可根据实际工况条件或用户特殊要求设计选用。

BQ41PPL一体式保温球阀主要部件材质:
阀体
WCB
CF8
CF8M
CF3
CF3M
球
1Cr18Ni8Ti
CF8
CF8M
CF3
CF3M
阀体
1Cr13
0Cr18Ni9
0Cr17Ni12Mo2
0Cr18Ni9
0Cr17Ni12Mo2
填料
PTFE
PTFE
PTFE
PTFE
PTFE
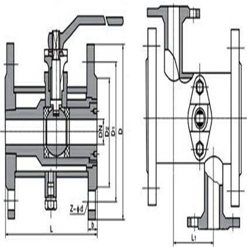
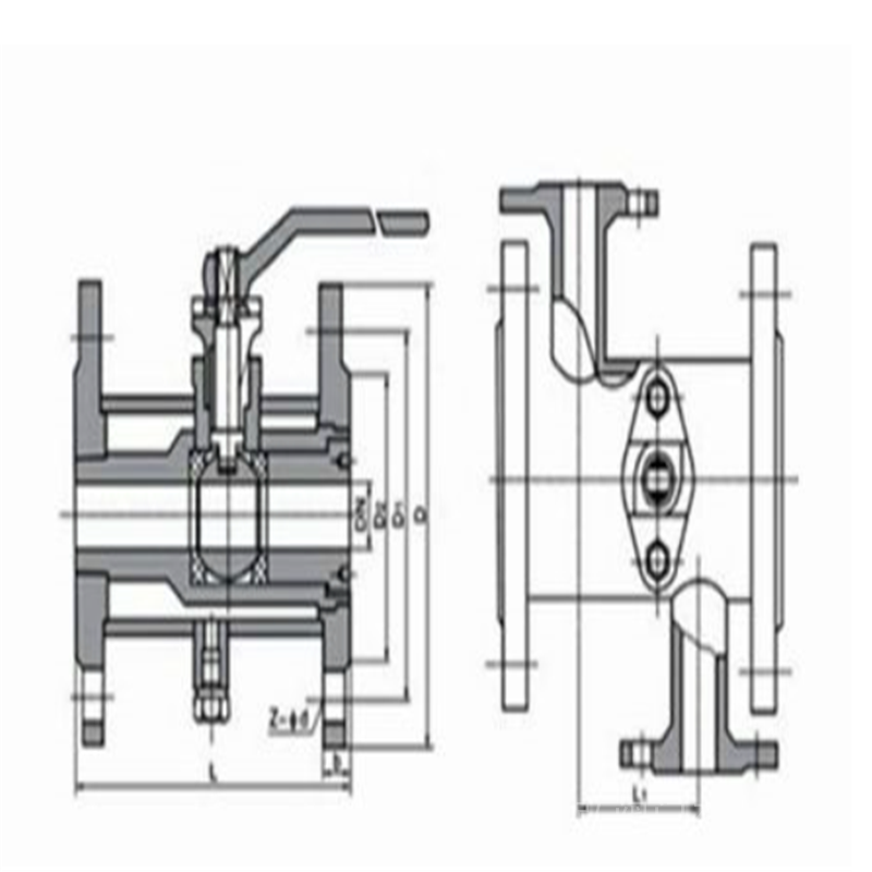
主要尺寸表:
公称通径DN(mm)
L
日标、美标-JIS 10K (ANSI 150Lb)
日标、美标-JIS 20K (ANSI 300Lb)
D
G
T
F
C
N-h
D
G
T
F
C
N-h
20
117
127
73
14.3
1.6
98.5
4-16
156
73
20.7
1.6
114.5
4-16
25
127
152
92
15.9
1.6
120.5
4-19
165
92
22.3
1.6
127
8-19
40
165
178
105
17.5
1.6
139.5
4-19
190
105
25.4
1.6
149
8-22
50
178
190
127
19.1
1.6
152.5
4-19
210
127
28.6
1.6
168
8-22
80
229
279
216
25.4
1.6
241.5
8-22
100
254
343
270
28.6
1.6
298.5
12-25
150
292
406
324
30.2
1.6
362.5
12-25
200
330
533
413
35.0
1.6
476.0
12-29
压力
口径
L
D
D1
D2
b
Z-φ
压力
口径
L
D
D1
D2
b
Z-φ
16
15
108
135
100
78
18
4-18
25
15
108
135
100
78
18
4-18
20
117
145
110
85
18
4-18
20
117
145
110
85
18
4-18
25
127
160
125
100
20
4-18
25
127
160
125
100
20
4-18
32
140
180
145
120
20
8-18
32
140
180
145
120
20
8-18
40
165
180
145
120
20
8-18
40
165
180
145
120
20
8-18
50
178
195
160
135
20
8-18
50
178
195
160
135
20
8-18
65
203
245
210
185
22
8-18
65
203
230
190
160
24
8-23
80
229
280
240
210
24
8-23
80
229
300
250
218
30
8-25
100
254
335
295
265
26
12-23
100
254
360
310
278
34
12-25
125
267
335
295
265
26
12-23
125
267
425
370
332
36
12-30
150
383
405
355
320
30
12-25
150
383
425
370
332
36
12-30
200
330
520
470
435
34
16-25
200
330
550
490
448
44
16-34

本实用新型公开了一种高平台一体式保温球阀,包括阀体,保温夹套,阀座,球体和阀杆,所述阀体的外侧焊接有保温夹套,所述保温夹套和阀体之间设有夹层,所述保温夹套的底部连接有排污口,所述保温夹套的左右两侧设有保温接口,所述阀体内部固定设有球体,所述阀体的上方固定设有通道,通道内固定设有阀杆,所述阀杆的外侧固定套有设有O型圈,填料和填料压盖,所述填料压盖的两侧固定设有螺栓孔,该种实用新型保温效果好,连接结构简单巧妙便于安装和拆卸,具有良好的防火效果和防静电效果,使灾害受损降低或减小.

BQ41PPL一体式保温球阀安装步骤如下展示:
1、取下法兰两侧的保护盖,将阀门全开冲洗干净。
2、安装前应按规定的信号(电或气)对整机进行试验(防止因运输引起的振动对性能的影响)。然后可以在线安装。
3、在连接管道之前,先将管道中残留的杂质冲洗干净(这些物质会损坏阀座和球体)。
4、安装过程中,请勿将阀门的执行器部分作为提升点,以免损坏执行器及附件。
5、保温球阀应水平或垂直安装在管道中。
6、安装地点附近的管道不要悬垂或受外力作用。您可以使用管道支架或支架来消除管道错位。
7、连接管道后,将法兰连接螺栓拧紧至规定扭矩。

订货须知:
一、①产品名称与型号②口径③是否带附件以便我们的为您正确选型④使用压力⑤使用介质的温度。
二、若已经由设计单位选定公司型号,请型号直接向我司销售部订购。
三、当使用的场合非常重要或环境比较复杂时,请您尽量提供设计图纸和详细参数,由我们的阀门公司专家为您审核把关。产品所属保温阀门选型,感谢您访问我们申弘阀门的网站如有任何疑问.您可以致电给我们,我们一定会尽心尽力为您提供优质的服务。如需要了解更多其它减压阀类产品的信息可以点击减压阀查看。 -
联系方式
- 联系人:申弘阀门
- 电 话:021-59260058
- 手 机:15901754341
- 传 真:86-021-31662735
- 邮 箱:494522509@qq.com
- 邮 编:201718
- 地 址:上海市青浦区金泽工业园区
- 网 址: https://bengye.cn.goepe.com/
http://www.021-fm.com
-
产品搜索






