-
SH电动钛合金球阀Q941Ti
详细信息| 询价留言Q941Ti电动钛合金球阀产品说明
以DC24V、AC220V或AC380V电源电压作动力,直接接受统一标准信号(4-20mA DC、0-10mA DC或1-5V DC、0-10V DC),将此转变成与输入信号相对应的位移,以角度位移(0~90º)运动,改变球芯的旋转开度,因此一定的输入信号对应一定的位置开度,实现比例调节动作。(二位开关式接受DC24V、AC220V或AC380V电源电压作动力,通过电机正反转实现开关动作,并同时输出开关阀位指示信号)。钛材球阀是一种具有高化学活性的金属阀门,对多种腐蚀性介质均具有出色的耐腐蚀性。原因是钛对氧具有高亲和力,并且可以容易地与氧反应以在表面上形成坚固致密的钝化氧化膜。在许多严酷的腐蚀条件下,钛球阀上的氧化膜非常稳定且难以溶解。即使损坏,如果有足够的氧气,也可以修复并快速再生。钛具有极好的优点,例如轻的比重,高强度,耐腐蚀性和极好的耐压性。

【产品特点】:
1、安装简便,能以任意方向安装于管道中的任意部位。
2、精小型电动执行器有多种电源可供选择,更有防爆电装。
3、阀体内通道平整光滑,可以输送粘性流体、浆液以及固体颗粒。
4、直连方式,电动执行机构内置伺服系统,无须另配伺服放大器。
5、球阀和电动执行器之间无支架连接,一体化的外型结构紧凑,减少设备空间。
6、密封材料为聚四氟乙烯等,具有良好的自润滑性,与球体的摩擦损小,故球阀的使用寿命长。

Q941Ti电动钛合金球阀尺寸标准
1、公称压力或压力级:PN1.0-32.0MPa、ANSI CLASS 150-900、JIS10-20K;
2、公称通径或口径:DN6~900、NPS 1/4 ~36;
3、连接方式:法兰、对焊、螺纹、承插焊等;
4、适用温度:-196℃~540℃;
5、驱动方式:手动、蜗轮蜗杆传动、气动、电动、液动、气液联动、电液联动;
6、法兰球阀阀体材料:WCB、ZG1Cr18Ni9Ti、ZG1Cr18Ni12Mo2Ti、CF8(304)、CF3(304L)、CF8M(316)、CF3M (316L)、Ti。选用不同的材质,可分别适用于水、蒸汽、油品、硝酸、醋酸、氧化性介质、尿素等多种介质。(低温型采用长颈型阀盖, 中温型采用带散热片型上阀盖)

应用:
钛阀门在大气、淡水、海水、高温水蒸气中几乎不腐蚀。
钛阀门在碱性介质中非常耐腐蚀。
钛阀门抗氯离子能力非常强,具有优良的抗氯离子耐蚀能力。
钛阀门在王水、次氯酸钠、氯水、湿氧气等介质中有很好的耐腐蚀性。
钛阀门在有机酸中的耐蚀性视酸的还原性或氧化性大小而定。
钛阀门在还原性酸中的耐蚀性,视介质是否有缓蚀剂而定。
钛阀门重量轻(比重4.507)机械强度高,广泛应用于、海洋船舶、军工领域。钛阀门由于它性价比高,能抵抗多种腐蚀介质的侵蚀,在民用耐腐蚀工业输送管线中,可解决不锈铜、铜或铝材料阀门难以解决的腐蚀性问题。具有安全、可靠、使用寿命长等优点。广泛应用于氯碱工业、纯碱工业、制药工业、化肥工业、精细化工业、纺织纤维合成和漂染工业,基本有机酸和无机盐生产,硝酸工业等。钛球阀是由钛金属材料制造的内部密封件为球形的特材阀门,钛球阀和普通球阀的区别之处在于其使用的材料抗耐腐蚀氧化能力很强,故用此种特殊材料制造的阀门可以提升耐蚀氧化能力,适应复杂工况下的工作,更持久的运行。钛球阀具有旋转90度的功能,闭合密封部件为空心球体,密封件材料为钛材主要是利用旋转球体密封件来达到开关闭合的作用,旋转范围在90度范围之内可以自由调节,钛球阀在管路中用来做切断、分配和改变介质的流动方向,可以简单的实现流量调节作用。未来钛球阀的发展趋势是兼具节流和控制流量等多种功能为一体的超强钛阀门
钛球阀不是所有的地方都会用钛材料制造,需要用到钛材质的部位主要有:
阀体、阀盖:TA1、TA2、TA10、Gr2、Gr3 阀瓣:TA1、TA2、TA10、Gr2、Gr3
阀杆:TA1、TA2、TA10、TC4、Gr2、Gr3、Gr5
钛的密度为4.506-4.516克/立方厘米(20℃),高于铝而低于铁、铜、镍。但比强度位列金属之首所以强度大,重量轻。常温下钛与氧气化合生成一层极薄致密的氧化膜,这层氧化膜常温下不与绝大多数强酸、强碱反应,包括酸中之王——王水。它只与氢氟酸、热的浓盐酸、浓硫酸发生反应,因此体现了钛抗腐蚀性。 熔点1668±4℃,熔化潜热3.7-5.0千卡/克原子,沸点3260±20℃,汽化潜热102.5-112.5千卡/克原子,临界温度4350℃,临界压力130大气压。钛的导热性和导电性能较差,近似或略低于不锈钢,而且钛拥有超导性。
钛球阀适用于所有耐腐蚀氧化介质环境。一般此种工况环境多为化工,石油,燃气,造纸等化工行业
1、流阻力小,球阀是所有阀类中流体阻力*小的一种,即使是缩径球阀,其流体阻力也相当小。
2、开关迅速方便,只要阀体转动90°,球阀就完成了全开或全关动作,很容易实现快速启闭。
3、密封性能好。钛球阀阀座(密封圈)一般采用PTFE聚四氟乙烯等弹性材料制造,易于保证密封,而且钛球阀的密封力随着介质压力的增加而增大。
5、纯钛球阀可实现自动化控制和远距离控制,可配置电动装置、气动装置、液动装置。
6、纯钛球阀通道平整光滑,不易沉积介质,可以进行清管通球。

技术规范:
设计标准:GB/T12237、API6D、ASME B16.34
结构长度:GB/T12221、API6D、ASME B16.10
连接法兰:HG、GB、JB、API、ANSI、ISO、BS、DIN、NF、JIS
试验标准:JB/T9092、GB/T13927、API6D、API598主体材料:
阀体、阀盖:TA1、TA2、TA10、Gr2、Gr3
球体:TA1、TA2、TA10、Gr2、Gr3
阀杆:TA1、TA2、TA10、TC4、Gr2、Gr3、Gr5
密封圈:PTFE、RPTFE、PPL、PEEK.......纯钛球阀压力等级:
PN1.6-10.0Mpa Class150-600Lb纯钛球阀公称通径:
DN15-DN250 1/2"-10"纯钛球阀驱动方式:
手柄、蜗轮蜗杆、气动、液动、电动
电动钛合金球阀Q941Ti相对应的纯钛球阀型号:
Q341F-10Ti、Q341F-16Ti、Q341F-25Ti、Q341F-40Ti、Q341F-64Ti、Q341F-100Ti、Q341F-10A、Q341F-16A、Q341F-25A、Q341F-40A、Q341F-64A、Q341F-100A、Q41F-10Ti、Q41F-16Ti、Q41F-25Ti、Q41F-40Ti、Q41F-64Ti、Q41F-100Ti、Q41F-150Lb(Ti)、Q41F-300Lb(Ti)、WSV、Q41F-10A、Q41F-600Lb(Ti)、Q41F-16A、Q41F-25A、Q41F-40A、Q41F-64A、Q41F-100A、Q41F-150Lb(A)、Q41F-300Lb(A)、Q41F-600Lb(A)、Q341F-16Ti、Q341F-25Ti、Q341F-40Ti、Q341F-64Ti、Q341F-100Ti、Q341F-150Lb(Ti)、Q341F-300Lb(Ti)、Q341F-600Lb(Ti)、Q341F-16A、Q341F-25A、Q341F-40A、Q341F-64A、Q341F-100A、Q341F-150Lb(A)、Q341F-300Lb(A)、Q341F-600Lb(A)
钛及钛合金材料牌号:
ZTA1、ZTA2、ZTA3、ZTA9、ZTA10、ZTC4
TA1、TA2、TA3、TA9、TA10、TC4
Titanium Gr2、Gr3、Gr5、Gr6、Gr7、Gr12
Titanium GrC2、GrC3、GrC5、GrC6、Ti-Pd7B、GrC12
Titanium GrF2、GrF3、GrF5、GrF6、GrF7、GrF12

主要技术参数:
1、阀体
2、阀内件阀体形式 直通铸造阀 公称通径 DN15~300mm 公称压力 PN1.6、2.5、4.0、6.4 MPa;ANSI 150、300LB ;JIS 10、20、30K 法兰标准 JIS、ANSI、GB、JB、HG等 连接形式 法兰式、焊接式、螺纹式 阀盖形式 一体式 压盖型式 压板压紧式 密封填料 V型聚四氟乙烯填料、柔性石墨填料等
3、执行机构阀芯形式 O型球体阀芯 流量特性 近似快开型 执行器型号 DSR、3810R、DZW、HQ、PSQ 主要技术参数 电源电压:220V/50Hz、380V/50Hz、输入信号:4-20mA或1-5V·DC、输出信号:4-20mA·DC 防护等级:相当IP65(或IP67)、隔爆标志:ExdⅡBT4、手操功能:手柄 环境温度:-25~+70℃、环境湿度:≤95%
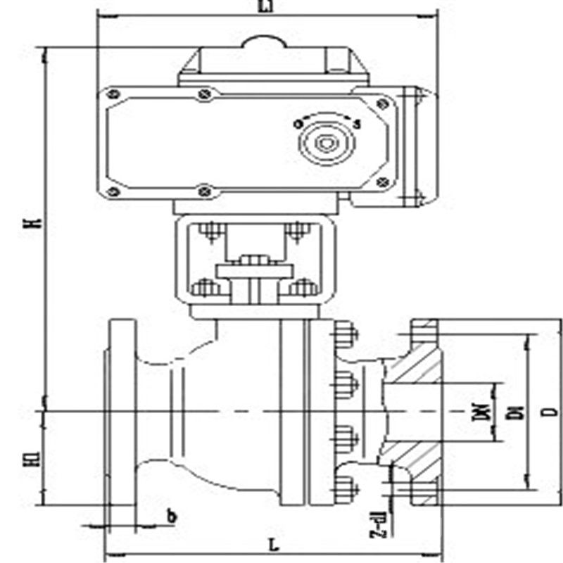
Q941Ti电动钛合金球阀主要性能指标:公称通径 DN(mm) 15 20 25 32 40 50 65 80 100 125 150 200 250 300 额定流量系数KV 21 38 72 112 170 273 384 512 940 1452 2222 3589 5128 7359 允许压差(MPa) ≤公称压力 动作范围 0~90°、0~360° 泄露量Q 按GB/T4213-92,小于额定KV0.01% 基本误差 ±1% 回差 ±1% 死区 ≤1% 可调范围 250:1 350:1 公称通径 DN(mm) 15 20 25 32 40 50 65 80 100 125 150 200 250 300 L 130 140 150 165 180 200 220 250 280 320 360 400 630 750 H、A 由于阀门密封选择及温度选择不同,执行器尺寸需根据实际配置,该尺寸可咨询剑阀公司技术部。 A1 防爆型 137 137 137 137 137 137 137 137 137 137 137 137 137 137 标准型 40 40 40 40 40 40 40 40 40 40 40 40 40 40 PN1.6MPa法兰连接尺寸 D 95 105 115 140 150 165 185 200 220 250 285 340 405 460 D1 65 75 85 100 110 125 145 160 180 210 240 295 355 410 D2 46 56 65 76 84 99 118 132 156 184 211 266 319 370 b 14 16 16 18 18 20 22 24 24 26 28 24 26 28 f 2 2 2 2 2 2 2 2 2 2 2 2 2 2 n-φd 4-14 4-14 4-14 4-18 4-18 4-18 4-18 8-18 8-18 8-18 8-22 12-22 12-26 12-26 PN2.5MPa法兰连接尺寸 D 95 105 115 140 150 165 185 200 235 270 300 360 425 485 D1 65 75 85 100 110 125 145 160 190 220 250 310 370 430 D2 46 56 65 76 84 99 118 132 156 184 211 274 330 389 b 14 16 16 18 18 20 22 24 24 26 28 34 38 42 f 2 2 2 2 2 2 2 2 2 2 2 2 2 2 n-φd 4-14 4-14 4-14 4-18 4-18 4-18 8-18 8-18 8-22 8-26 8-26 12-26 12-30 16-30 本公司球阀压力标准范围:PN1.6、2.5、4.0、6.4、10.0MPa,超过4.0MPa以上法兰尺寸请咨询本公司技术部。以上法兰尺寸是根据国标(GB/T9113-2000的标准)设计,也可根据客户要求定制其他标准。

适用于两位切断、调节的场合。电动开关型球阀阀与执行机构的连接采用直连方式,电动执行机构内置伺服系统,无须另配伺服放大器,输入4-20mA信号及220VAC电源即可控制运转。具有连线简单,结构紧凑、尺寸小、重量轻、阻力小、动作稳定可靠等优点。
电动球阀安装与维护:
1、电动球阀在关闭状态下,阀体内部依旧存在受压流体;
2、维修前,解除管线压力并使阀门处于打开位置;断开电源或气源;将执行机构与支架脱离;
3、必须先查明电动球阀上、下游管道确已卸除压力后,才能进行拆卸分解操作;
4、分解及再装配时必须小心防止损伤零件的密封面,特别是非金属零件,取出O型圈时宜使用专用工具;
5、装配时法兰上的螺栓必须对称、逐步、均匀地拧紧;
6、清洗剂应与球阀中的橡胶件、塑料件、金属件及工作介质(例如燃气)等均相容。工作介质为燃气时,可用汽油(GB484-89)清洗金属零件。非金属零件用纯净水或酒精清洗;
7、分解下来的单个零件可以用浸洗方式清洗。尚留有未分解下来的非金属件的金属件可采用干净的细洁的浸渍有清洗剂的绸布(为避免纤维脱落粘附在零件上)擦洗。清洗时须去除一切粘附在壁面上的油脂、污垢、积胶、灰尘等;
8、非金属零件清洗后应立即从清洗剂中取出,不得长时间浸泡;
9、清洗后需待被洗壁面清洗剂挥发后(可用未浸清洗剂的绸布擦)进行装配,但不得长时间搁置,否则会生锈、被灰尘污染;
10、新零件在装配前也需清洗干净;
11、使用润滑脂润滑。润滑脂应与球阀金属材料、橡胶件、塑料件及工作介质均相容。工作介质为燃气时,可用例如特221润滑脂。在密封件安装槽的表面上涂一薄层润滑脂,在橡胶密封件上涂一薄层润滑脂,阀杆的密封面及摩擦面上涂一薄层润滑脂;
12、装配时应不允许有金属碎屑、纤维、油脂(规定使用的除外)灰尘及其它杂质、异物等污染、粘附或停留在零件表面上或进入内腔。

订货须知:一、①产品名称与型号②口径③是否带附件以便我们的为您正确选型④使用压力⑤使用介质的温度。
二、若已经由设计单位选定公司的型号,请型号直接向我司销售部订购。三、当使用的场合非常重要或环境比较复杂时,请您尽量提供设计图纸和详细参数,由我们的阀门公司专家为您审核把关。产品所属保温阀门选型,感谢您访问我们申弘阀门的网站如有任何疑问.您可以致电给我们,我们一定会尽心尽力为您提供优质的服务。如需要了解更多其它减压阀类产品的信息可以点击减压阀查看。
-
联系方式
- 联系人:申弘阀门
- 电 话:021-59260058
- 手 机:15901754341
- 传 真:86-021-31662735
- 邮 箱:494522509@qq.com
- 邮 编:201718
- 地 址:上海市青浦区金泽工业园区
- 网 址: https://bengye.cn.goepe.com/
http://www.021-fm.com
-
产品搜索







