-
申弘电动O型球阀ZHRO型
详细信息| 询价留言ZHRO型电动O型球阀产品说明
ZHRO型电动O型球阀,是由电子式角行程电动执行机构3610R或3410R系列与球阀调节机构组成。具有结构简,切换迅速、流通能力大,零泄漏等特点,适用于高粘度、含纤维、固体颗粒流体的场合,广泛应用于石油化工,冶金、轻工等工业自控领域对气体、液体输送管道中介质的切断或流通。ZDRR电动O形球阀由电动执行机构和O形球阀组成。DN15-200为浮动球式,DN250-300为固定球式结构。该阀结构紧凑、体积小、重量轻、装拆维修方便、流道通畅、流阻小、密封性能好。

适用于两位切断、调节的场合。阀与执行机构的连接采用直连方式,电动执行机构内置伺服系统,无须另配伺服放大器,输入4-20mA 信号及220VAC电源即可控制运转。ZKRQR电动O型三通球阀具有连线简单,结构紧凑、尺寸小、重量轻、阻力小、动作稳定可靠等优点。本发明涉及阀门技术领域,尤其涉及一种顶装式O型球阀及其制造装配方法。O型球阀因其直通性好,对流体流通阻力小而广泛应用于石油、化工、冶金、等工业和民用领域。

ZHRO型电动O型球阀特点:
1、O型固定式球阀采用固定球设计,启闭力矩小、开启灵活、工作更稳定。
2、O型固定式球阀采用全通设计,具有*大的流通能力且流通阻力可以忽略不计。
3、O型固定式球阀采用双向不锈钢硬密封双阀座结构、具有密封性能优越、可以双向密封、剪切力强等特点,泄漏量额定流量系数。
4、O型固定式球阀采用固定球设计、并增加了预紧力弹簧,使得球阀具有自动泄压功能。
5、O型固定式球阀采用金属阀座,适用工作温度范围大为提高。
6、电动执行采用*新型的电子式电动招待器,具有结构 紧凑、体积精小、可靠耐用等优点。
法兰球阀操作和使用:
1)法兰球阀操作前须确认管路和阀已被冲洗过。
2)法兰球阀的操作按执行机构输入信号大小带动阀杆旋转完成:正向旋转1/4圈(90°)时,阀关断。反向旋转1/4圈(90°)时,阀开启。
3)法兰球阀当执行机构方向指示箭头与管线平行时,阀门为开启状态;指示箭头与管线垂直时,阀门为关闭状态。

一、浮动球法兰球阀
法兰球阀的球体是浮动的,在介质压力作用下,球体能产生一定的位移并紧压在出口端的密封面上,保证出口端密封。浮动球法兰球阀的结构简单,密封性好,但球体承受工作介质的载荷全部传给了出口密封圈,因此要考虑密封圈材料能否经受得住球体介质的工作载荷。这种结构,广泛用于中低压法兰球阀。
二、固定球法兰球阀
法兰球阀的球体是固定的,受压后不产生移动。固定球法兰球阀都带有浮动阀座,受介质压力后,阀座产生移动,使密封圈紧压在球体上,以保证密封。通常在与球体的上、下轴上装有轴承,操作扭距小,适用于高压和大口径的阀门。为了减少法兰球阀的操作扭矩和增加密封的可靠程度,近年来又出现了油封法兰球阀,既在密封面间压注特制的润滑油,以形成一层油膜,即增强了密封性,又减少了操作扭矩,更适用高压大口径的法兰球阀。
三、弹性球法兰球阀
法兰球阀的球体是弹性的。球体和阀座密封圈都采用金属材料制造,密封比压很大,依靠介质本身的压力已达不到密封的要求,必须施加外力。这种阀门适用于高温高压介质。弹性球体是在球体内壁的下端开一条弹性槽,而获得弹性。当关闭通道时,用阀杆的楔形头使球体涨开与阀座压紧达到密封。在转动球体之前先松开楔形头,球体随之恢复原原形,使球体与阀座之间出现很小的间隙,可以减少密封面的摩擦和操作扭矩。上海申弘阀门有限公司主营阀门有:减压阀(组合式减压阀,可调式减压阀,自力式减压阀

ZHRO型电动O型球阀标准
1、公称压力或压力级:PN1.0-32.0MPa、ANSI CLASS 150-900、JIS10-20K;
2、公称通径或口径:DN6~900、NPS 1/4 ~36;
3、连接方式:法兰、对焊、螺纹、承插焊等;
4、适用温度:-196℃~540℃;
5、驱动方式:手动、蜗轮蜗杆传动、气动、电动、液动、气液联动、电液联动;
6、法兰球阀阀体材料:WCB、ZG1Cr18Ni9Ti、ZG1Cr18Ni12Mo2Ti、CF8(304)、CF3(304L)、CF8M(316)、CF3M (316L)、Ti。选用不同的材质,可分别适用于水、蒸汽、油品、硝酸、醋酸、氧化性介质、尿素等多种介质。(低温型采用长颈型阀盖, 中温型采用带散热片型上阀盖)

■ ZHRO型电动O型球阀阀体
型 式:直通铸造球型阀
公称通径:15、20、25、32、40、50、65、80、125、150、200、250、300、350、400mm
公称压力:PN1.6、2.5、4.0、6.4MPa
法兰标准:JB/T79.1-94、79.2-94等
材 料:铸钢(ZG230-450)、铸不锈钢(ZG1Cr18Ni9Ti、ZG1Cr18Ni12Mo2Ti)等
上 阀 盖:与阀体成一整体 -45~+400℃
压盖型式:螺栓压紧式
填 料:V型聚四氟乙烯填料、含浸聚四氟乙烯石棉填料、石棉纺织填料、石墨填料
■ 阀内组件
阀芯型式:球型阀芯
流量特性:快开特性
材 料:铸不锈钢(ZG1Cr18Ni9Ti、ZG1Cr18Ni12Mo2Ti)
额定行程:全开90°
■ 执行机构
型 式:3810R、PSQ、CH、HQ 电子式电动执行机构
输入信号:1-5V·DC
电源电压:220V/50Hz
环境温度:-25~+70℃
■ 阀作用型式
电关式(B)、电开式(K

二、设计标准1、设计与制造:GB12237-89、API608、API 6D、JPI 7S-48、BS5351、DIN3357。
2、法兰尺寸:JB/T74~90(JB74~90)、GB9112~9131、HGJ44~76、SH3406、ANSI B16.5、JIS B2212~2214、NF E29-211、DIN2543。
3、结构长度:GB12221-89、ANSI B16.10、JIS B2002、NF E29-305、DIN3202。
4、检验主试验:JB/T 9092、API 598。三、主要技术参数
公称通径 mm 15 20 25 32 40 50 65 80 100 额定流量系数Kv 20 38 72 110 170 270 380 510 940 公称压力 MPa 1.0;1.6;2.5;4.0;6.4 额定转角 ° 0~90 流量特性 快开 介质温度 ℃ -20~120 阀体材质 HT200 ;ZG230-450 ;ZG1Cr18Ni9Ti;ZG0Cr18Ni12Mo2Ti 球体材质 1Cr18Ni9;0Cr18Ni12Mo2Ti 配执行机构型号 PN10、16 361RSA-05
341RSA-05361RS(X)B-10
341RS(X)B-10361RSC-30
341RSC-30PN40 361RS(X)B-10
341RS(X)B-10361RSC-30
341RSC-30361RSD-150
341RSD-150
四、ZHRO型电动O型球阀执行器主要技术参数类别 型 号 输出力矩 N.m 动作时间 S/90° 技术参数 普通型 361RSA-05
341RSA-0550 17 电 源:220±10%Va.c.50Hz
驱动电机:交流可逆电机
输入信号:1-5V d.c.
4-20mA d.c.(信号线用屏蔽线)
开度信号:4-20mA d.c.
保护等级:相当IP55
防爆标志:ExdⅡBT4361RSB-10
341RSB-10100 18 361RSC-30
341RSC-30300 24 361RSD-150
341RSD-1501500 42 防爆型 361RXB-10
341RXB-10100 18 
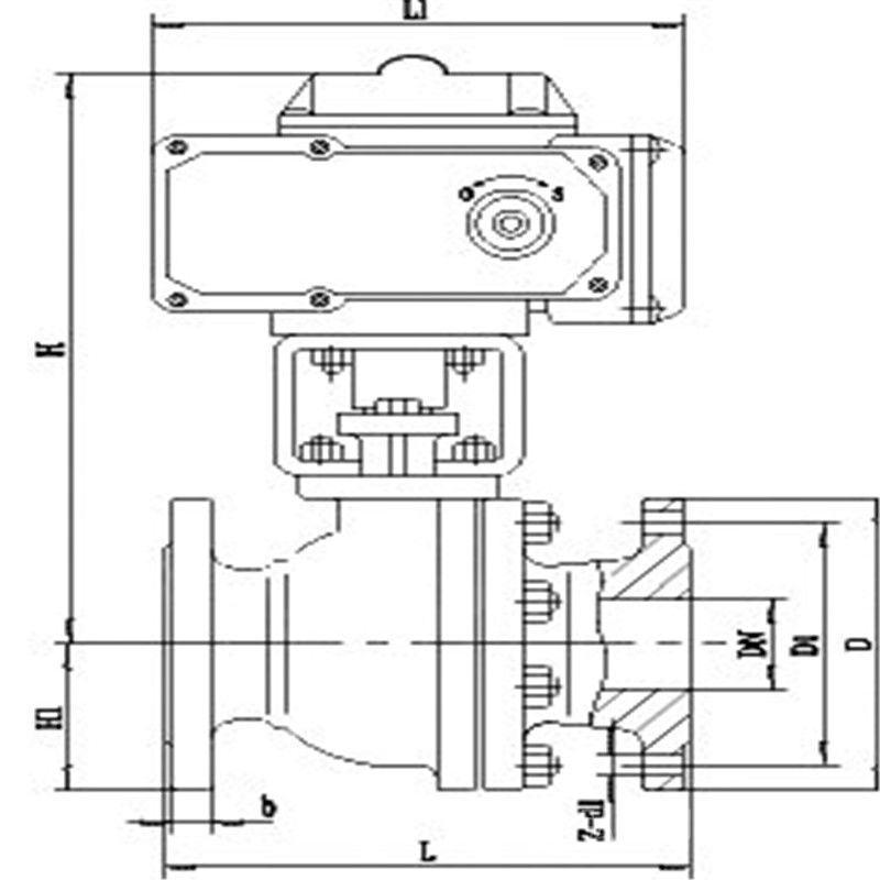
四、ZHRO型电动O型球阀主要外形尺寸PN16外形尺寸
公称通径 L D D1 D2 n-d H D3 15 130 95 65 46 4-φ14 322 260 20 140 105 75 56 4-φ14 325 260 25 150 115 85 65 4-φ14 333 260 32 164 135 100 76 4-φ18 427 290 40 180 145 110 84 4-φ18 448 290 50 200 160 125 99 4-φ18 456 290 65 220 185 145 118 4-φ18 495 380 80 250 195 160 132 8-φ18 535 380 100 280 215 180 156 8-φ18 568 380 125 320 245 210 184 8-φ18 635 380 150 360 280 240 211 8-φ22 700 380 200 400 335 295 266 12-φ22 860 520 PN40外形尺寸
公称通径 L D D1 D2 n-d H D3 20 140 105 75 65 4-φ14 366 290 25 150 115 86 76 4-φ18 366.5 290 32 180 140 100 84 4-φ18 426 380 40 200 150 110 99 4-φ18 506 380 50 220 165 125 118 4-φ18 516 380 65 250 185 145 132 8-φ18 610 520 80 280 200 160 156 8-φ18 670 520 100 320 235 190 184 8-φ22 698 520 125 400 270 220 211 8-φ26 710 520 150 400 300 250 284 8-φ26 730 520 
阀座采用挠性的唇缘结构,具有磨损补偿和中腔自动泄压作用,因而密封可靠,使用寿命长。广泛应用于石油、化工、电力、冶金、钢铁、造纸、医药、食品、纺织、轻工等行业。由DKJ型电动执行机构和单座调节机构组成,接受统一的标准信号控制运转,调节机构阀芯是采用顶导向,单座式适用于对泄漏量要求严格、阀彰后压差低及有一定粘度和合纤维介质的场合.

电动球阀的安装维护
1、只有卸除球阀前后的压力,才能对球阀进行拆卸分解操作。
2、球阀阀体重新装配时螺栓必须对称、逐步、均匀地拧紧。
3、清洗剂应与球阀中的橡胶件、塑料件、金属件及工作介质(例如燃气)等均相容。工作介质为燃气时,可用汽油(GB484-89)清洗金属零件。非金属零件用纯净水或酒精清洗。
4、分解下来的单个零件可以用浸洗方式清洗。清洗时须去除一切粘附在壁面上的油脂、污垢、积胶、灰尘等。
电动球阀日常保养
1、拥有较长的使用寿命和免维修期,将依赖以下几个因素:正常的工作条件、保持和谐的温度/压力比,以及合理的腐蚀数据
2、球阀在关闭状态下,阀体内部依旧存在受压流体
3、维修前:解除管线压力并使阀门处于打开位置;断开电源或气源;将执行机构与支架脱离
4、必须先查明球阀上、下游管道确已卸除压力后,才能进行拆卸分解操作
5、分解及再装配时必须小心防止损伤零件的密封面,特别是非金属零件,取出O 型圈时宜使用工具
6、装配时法兰上的螺栓必须对称、逐步、均匀地拧紧
7、清洗剂应与球阀中的橡胶件、塑料件、金属件及工作介质(例如燃气)等均相容。工作介质为燃气时,可用汽油(GB484-89)清洗金属零件。非金属零件用纯净水或酒精清洗
8、非金属零件清洗后应立即从清洗剂中取出,不得长时间浸泡
9、清洗后需待被洗壁面清洗剂挥发后(可用未浸清洗剂的绸布擦)进行装配,但不得长时间搁置,否则会生锈、被灰尘污染
10、新零件在装配前也需清洗干净
11、装配时应不允许有金属碎屑、纤维、油脂(规定使用的除外)灰尘及其它杂质、异物等污染、粘附或停留在零件表面上或进入内腔,若填料处有微泄发生,须再锁紧阀杆螺母。

订货须知:
一、①产品名称与型号②口径③是否带附件以便我们的为您正确选型④使用压力⑤使用介质的温度。
二、若已经由设计单位选定公司的型号,请ZHRO型电动O型球阀型号直接向我司销售部订购。
三、当使用的场合非常重要或环境比较复杂时,请您尽量提供设计图纸和详细参数,由我们的阀门公司专家为您审核把关。感谢您访问我们申弘阀门的网站如有任何疑问.您可以致电给我们,我们一定会尽心尽力为您提供优质的服务。如需要了解更多其它阀类产品的信息可以点击减压阀查看。 -
联系方式
- 联系人:申弘阀门
- 电 话:021-59260058
- 手 机:15901754341
- 传 真:86-021-31662735
- 邮 箱:494522509@qq.com
- 邮 编:201718
- 地 址:上海市青浦区金泽工业园区
- 网 址: https://bengye.cn.goepe.com/
http://www.021-fm.com
-
产品搜索




