-
申弘电动对焊式硬密封蝶阀D963Y
详细信息| 询价留言电动对焊蝶阀 电动焊接式蝶阀 电动全焊接蝶阀 电动蝶阀 气动对焊式蝶阀
一、D963H电动对焊式硬密封蝶阀概述
电动对焊蝶阀适用于高温、高压、防火、保温等管道上作启闭或调节介质之用。对焊蝶阀是我厂引进能够国外先进技术的基础上,采用精密的J形弹性密封圈和三偏心多层次金属硬密封结构,被广泛用于介质温度≤425℃的治金 、电力、石油化工、以及给排水和市政建设等工业管道上,作调节流量和载断流体使用。该阀采用三偏心结构,阀座与碟板密封面均采用不同硬度和不锈钢制作,具有良好的耐腐蚀性,使用寿命长,本阀有双向密封功能,产品符合国家GB/T13927-92阀门压力试验标准。

D963H电动对焊式蝶阀其主要特点如下:
1、电动对焊蝶阀结构紧凑、体积小、重量轻、操作灵活、使用方便;
2、电动对焊蝶阀采用三维偏心弹性或多层次硬密封结构,其密封性能可靠达到零泄漏;
3、此阀无法兰,对管道和保温包扎带来很大方便和美观;
4、具有耐高温、高压、耐腐蚀、耐磨损等特点。二、D963H电动对焊式硬密封蝶阀采用标准
焊接尺寸::GB1224;ANSI B16.25; DIN2559
结构长度::GB/T12221-1989;API609
压力试验::GB/T13927-1992;API598三、D963H电动对焊式硬密封蝶阀执行机构
蝶阀的蝶板安装于管道的直径方向。在蝶阀阀体圆柱形通道内,圆盘形蝶板绕着轴线旋转,旋转角度为0°-90°之间,旋转到90°时,阀门则处于全开状态。蝶阀结构简单、体积小、重量轻,只由少数几个零件组成。而且只需旋转90°即可快速启闭,操作简单,同时该阀门具有良好的流体控制特性。蝶阀处于完全开启位置时,蝶板厚度是介质流经阀体时唯一的阻力,因此通过该阀门所产生的压力降很小,故具有较好的流量控制特性。蝶阀有弹密封和金属的密封两种密封型式。弹性密封阀门,密封圈可以镶嵌在阀体上或附在蝶板周边。采用金属密封的阀门一般比弹性密封的阀门寿命长,但很难做到完全密封。金属密封能适应较高的工作温度,弹性密封则具有受温度限制的缺陷。如果要求蝶阀作为流量控制使用,主要的是正确选择阀门的尺寸和类型。蝶阀的结构原理尤其适合制作大口径阀门。蝶阀不仅在石油、煤气、化工、水处理等一般工业上得到广泛应用,而且还应用于热电站的冷却水系统。同类产品还有气动焊接式蝶阀,手动焊接蝶阀,对焊接蝶阀。
1.电源:电机为三相交流,380V(特殊订货660V、440V或220V),50Hz(特殊订货60Hz);控制线电压220V/50Hz(特殊订货60Hz);远程控制电压24VDC。
2.环境温度:-20—+60℃(特殊订货-60—+80℃)
3.相对温度:≤90%(25℃时)
4.普通型和户外型用于无易燃/易爆和无腐蚀性介质的场所;防爆型产品有dⅠ和dⅡBT4两种,dⅠ适用于煤矿非采掘工作面;dⅡBT4用于工厂,适用于环境为ⅡA、ⅡB级T1-T4组的爆炸性气体混合物。
5.防护等级:户外型和防爆型为IP55(可订制IP67)。
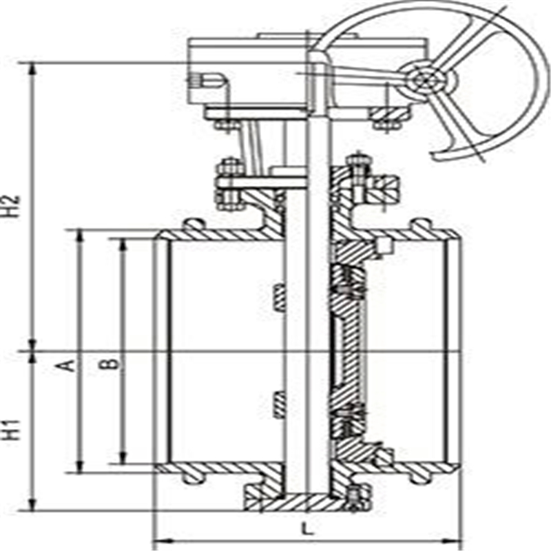
6.工作制:为短时10分钟(可订制30分钟)。四、D963H电动对焊式硬密封蝶阀主要技术参数
公称通径 DN(mm) 50~700 公称压力 PN(MPa) 0.6 1.0 1.6 2.5 4.0 试验压力Ps(MPa) 强度试验 0.9 1.5 2.4 3.75 6.0 密封试验 0.66 1.1 1.76 2.75 4.4 气密封试验 0.6 0.6 0.6 0.6 0.6 适用介质 水、蒸气、油品、酸类腐蚀性等。 适用温度 碳钢 :-29℃~425℃ 不锈钢:-40℃~600℃ 五、D963H电动对焊式硬密封蝶阀主要零件材料
零件名称 材料 阀体 铸钢、不锈钢、铬钼钢及特殊材料 蝶板 铸钢、合金钢(镀硬铬)、不锈钢、铬钼钢及特殊材料 密封圈 不锈钢、抗磨材料 阀杆 2Cr13、1Cr13不锈钢、铬钼钢 填料 柔性石墨 六、D963H电动对焊式硬密封蝶阀主要外形尺寸
公称压力 PN0.6MPa 通径 外形尺寸(参考值) 参考重量
(kg)毫米 英寸 L D d H H1 L1 L2 600 24 390 636 602 499 1280 570 660 450 700 28 430 726 692 566 1480 750 550 660 800 32 470 826 792 632 1608 750 550 780 900 36 510 926 892 693 1857 750 550 820 1000 40 550 1028 992 757 2038 900 750 1460 1200 48 630 1228 1192 851 2237 1000 925 1590 1400 56 710 1428 1392 876 2411 1000 925 2185 1600 64 790 1628 1592 1095 2756 1000 925 3210 1800 72 870 1828 1792 1214 3093 1100 980 4090 2000 80 950 2028 1992 1332 3355 1100 980 5610 D963H电动对焊式蝶阀
公称压力 PN1.0MPa通径 外形尺寸(参考值) 参考重量
(kg)毫米 英寸 L D d H H1 A B 600 24 390 636 602 499 1280 570 660 465 700 28 430 726 692 566 1480 750 550 680 800 32 470 826 792 632 1608 750 550 810 900 36 510 926 892 693 1857 750 550 860 1000 40 550 1028 992 757 2038 900 750 1625 1200 48 630 1228 1192 851 2237 1000 925 1770 1400 56 710 1428 1392 876 2411 1000 925 2426 1600 64 790 1628 1592 1095 2756 1000 925 3560 1800 72 870 1828 1792 1214 3093 1100 980 4545 2000 80 950 2028 1992 1332 3355 1100 980 6230 保管、保养、安装和使用
5.1阀门应存放在干燥,通风的室内,阀门通道两端应堵塞。
5.2长期存放的阀门应定期检查,清除污物。应特别注意密封面的清洁,防密封面的损坏。
5.3安装前应仔细核对阀门标志是否与使用要求相符。
5.4安装前应检查阀门通道和密封面,如有污垢,应使用清洁布擦拭干净。
5.5安装前检查填料是否压紧,应确保填料的密封性,同时不应妨碍阀杆的转动。
5.6安装后系统或管路试压时,阀门必须处于全开位置。
5.7使用中应将球体全开或关闭,不应将球体部分开启做调节流量用。
5.8手动阀门在开启或关闭操作时,应使用手柄开、关,不得借用辅助杠杆或其它工具。
5.9阀门使用应定期检查,检查密封面有无磨损及垫片填料。若损坏失效,应及时修理或更换。
5.10电动阀门的传动装置,其保管、保养、安装和使用,请见“阀门电动装置使用说明书”。

D963H电动对焊式蝶阀可能发生的故障、原因及消除方法
表1 可能发生的故障、原因及消除方法
可能发生的故障
发生故障的原因
消除方法
填料渗漏
1.填料压盖未压紧
2.填料因使用过久或保存不妥而失效
1.均匀地拧紧螺母,将填料压紧
2.更换填料
密封面间渗漏
1.密封面有污杂物附着
2.密封面损坏
1.将污杂物清除干净
2.重新加工修整或更换
阀体与阀盖连接处渗漏
1.连接螺栓紧固不均匀
2.法兰密封面损坏
3.垫片破裂或失效
1.均匀拧紧
2.重新修整
3.更换新垫片
手柄转动不灵活或
球体不能启闭
1.填料压得太紧
2.填料压板,压套装置歪斜
1.适当旋松填料压板上的螺母
2.校正填料压板
电动装置
见“阀门电动装置说明书”
上海申弘阀门有限公司制造阀门投入使用一年内负责保修,但不超过发货期12个月。在保修期内,因产品质量原因均可免费修理或更换零件。
订货须知:
一、①D963H电动对焊式硬密封蝶阀产品名称与型号②口径③是否带附件以便我们的为您正确选型④使用压力⑤使用介质的温度。
二、若已经由设计单位选定公司的D963H电动对焊式硬密封蝶阀型号,请型号直接向我司销售部订购。三、当使用的场合非常重要或环境比较复杂时,请您尽量提供设计图纸和详细参数,由我们的阀门公司专家为您审核把关。产品所属蝶阀选型,感谢您访问我们申弘阀门的网站如有任何疑问.您可以致电给我们,我们一定会尽心尽力为您提供优质的服务。如需要了解更多其它阀类产品的信息可以点击减压阀查看。
-
联系方式
- 联系人:申弘阀门
- 电 话:021-59260058
- 手 机:15901754341
- 传 真:86-021-31662735
- 邮 箱:494522509@qq.com
- 邮 编:201718
- 地 址:上海市青浦区金泽工业园区
- 网 址: https://bengye.cn.goepe.com/
http://www.021-fm.com
-
产品搜索








