-
ZZYVP自力式氮封阀申弘
详细信息| 询价留言ZZYVP自力式氮封阀 产品说明
本实用新型的上述技术目的是通过以下技术方案得以实现的:一种氮封阀,包括阀体、设置于阀体且与之连通的导向套以及分别设置于阀体内部的进流道和出流道,所述进流道和出流道之间相互连通,所述导向套内滑移密封有延伸进阀体内部的下阀芯,所述进流道与出流道之间的相交处形成配合下阀芯密封的*密封部,位于所述导向套的上方固设有带有通道的导向体,所述通道包括上通道以及连通上通道的下通道,所述下通道内设有沿其轴向滑移的上阀芯,所述上通道的直径小于下通道的直径从而在两者之间形成一抵触上阀芯且与之配合密封的第二密封部,所述下通道内设有驱动上阀芯朝向上通道方向移动的上弹簧,

所述导向套内设有驱动下阀芯朝向*密封部方向移动的下弹簧,所述下通道与导向套内腔的上端面连通,所述进流道与下通道之间连通有进气管,所述导向体的上端面固设有膜盒,所述膜盒内固设有膜片,所述膜片将膜盒的内腔分隔成上腔室与下腔室,所述膜片上固设有推杆,所述上阀芯朝向上通道的一面延伸有穿过上通道且延伸进下腔室的延伸部,所述延伸部位于推杆的正下方,所述上腔室内设有驱动推杆朝向延伸部方向移动的调节弹簧,所述上腔室连接有上排气管,所述上通道连通有下排气管,所述下腔室连通有穿设进出流道内部的反馈管。通过采用上述技术方案,反馈管与储罐内部的管路连接,当下弹簧在处于自由状态时驱动下阀芯抵触密封于*密封部,当上弹簧在处于自由状态时驱动上阀芯抵触密封与第二密封部,当调节弹簧处于自由状态时驱动推杆抵触于延伸部并使上阀芯与第二密封部两者之间实现分离。
当反馈管内部的压力小于调节弹簧的弹力时,调节弹簧产生的弹力通过推杆作用于延伸部,从而实现上阀芯与第二密封部两者之间的分离,此时,从进流道中通过进气管进入到下通道内部的介质会从下排气管排出,且当进流道内部的压力逐渐升高并大于下弹簧的弹力时,下阀芯与*密封部分离,阀门处于开启状态,从而进行补压。

当反馈管内部的压力大于调节弹簧的弹力时,下腔室内的压力也随着反馈管逐渐增大,从而驱动膜片带动推杆远离延伸部,此时,上阀芯在上弹簧以及介质压力的驱动下抵触密封于第二密封部,从进流道中通过进气管以及下通道进入到导向套内部的介质在导向套内部堆积,并配合下弹簧驱动下阀芯抵触密封于*密封部,阀门处于关闭状态。通过上弹簧与下弹簧的设置使得上阀芯与下阀芯在压力差的细微变化下能实现快速的反应,并通过压强配合下弹簧增大对于下阀芯的密封力,从而提升该氮封阀的密封性并实现迅速补气。
进一步设置为:所述膜盒上开设有连通下腔室和导向体上端面的通孔,所述通孔位于推杆正下方且大于或等于推杆直径,当所述推杆驱动延伸部并抵触于导向体上端面时,所述的上阀芯与第二密封部分离并使下通道与导向套之间处于导通状态。
通过采用上述技术方案,该种设置方式能对朝向延伸部方向移动的推杆进行限位,防止推杆推动上阀芯发生过度位移而将下通道与导向套之间的连通位置堵住;且该种设置能防止上弹簧过度受力,延长上弹簧的使用寿命。
进一步设置为:所述上阀芯对应于上弹簧端面的位置、导向套对应于上弹簧端面的位置均设有供上弹簧嵌设的限位槽,所述上弹簧的内圈设置有限制其径向移动的限位柱。
通过采用上述技术方案,限位柱配合限位槽对上弹簧进行限位,使上弹簧能实现更好的固定并使上弹簧能对上阀芯提供更加稳定的作用力。
进一步设置为:所述下排气管与出流道连通。
通过采用上述技术方案,该种设置使得从下排气管中流出的介质能进入到出流道内,并通过出流道进入到储罐内部,从而减少介质的浪费。

进一步设置为:所述出流道与进流道上均螺纹连接有法兰接头,所述法兰接头上均螺纹连接有连接法兰。
通过采用上述技术方案,法兰接头的设置可对阀体的长度进行调节,以适应两个不同管距之间的安装。
进一步设置为:所述阀体上固设有连通出流道的支管,所述支管上螺纹连接有堵头。
通过采用上述技术方案,当阀体在不同的场合使用需要增加管路的连接时,将堵头从支管上取出,通过支管再对管路进行连接,使得该阀门具有更好的适应性。
进一步设置为:所述下阀芯包括密封滑移于导向套内的阀芯体以及固设于阀芯体下方的阀芯头,所述阀芯体的下端面配合*密封部实现密封,所述的阀芯头穿过*密封部。
通过采用上述技术方案,阀芯头延伸进*密封部,对密封于*密封部的下阀芯起到限位作用,减少介质对于下阀芯造成的冲击,延长下阀芯的使用寿命。
进一步设置为:包括密封固设于膜盒且与上腔室连通的上盖以及上弹簧座和下弹簧座,所述下弹簧座固设于推杆、上弹簧座设置于上盖,所述的调节弹簧设置于上弹簧座与下弹簧座之间,所述的上排气管与上盖连通,所述上盖上螺纹连接有驱动上弹簧座沿调节弹簧轴向移动的调节杆,所述调节杆与上弹簧座固定连接。
通过采用上述技术方案,调节杆与上盖之间螺纹连接从而带动调节杆沿轴向方向实现移动,从而通过上弹簧座对调节弹簧进行挤压,用于调节调节弹簧的弹性力。
进一步设置为:所述上盖上螺纹连接有罩设调节杆的保护罩,所述调节杆上螺纹连接有锁定螺母。
通过采用上述技术方案,保护罩的设置对调节杆与上盖之间的螺纹连接位置进行隔绝,防止粉尘或颗粒物质进入到调节杆与上盖之间螺纹连接处的缝隙中,从而保证调节杆的顺畅转动;并通过锁定螺母的设置对调节杆的位置进行进一步固定,防止其因震动而发生意外转动。
进一步设置为:所述阀芯体与阀芯头之间夹持固定有抵触*密封部的*密封圈,所述上阀芯抵触第二密封部的位置套设固定有第二密封圈。
通过采用上述技术方案,*密封圈与第二密封圈的设置提升其密封性。
综上所述,本实用新型具有以下有益效果:本实用新型能提升密封性并实现迅速补气。

ZZYVP自力式氮封阀零件资料:
·无需停止生产即可进行设定值的调整;
·无填料,阀杆上、下活动时不存在磨擦,上密封绝对可靠;
·执行机构敏感元件极为灵敏,极微小的压力变化会被感测出来;
ZZYVP自力式氮封阀打开与关闭
(1)当氮封阀关闭时,主阀的活塞是在一个密封室内,当储罐压力等于或大于设定的压力时,膜片就被向上顶起,气导阀在弹簧的作用下向上移动,把气导阀上的密封圈紧紧压在阀座上,关闭了控制气的进口,同时特殊阀芯室的压力增加并接近氮气总管的压力,此压力通过内部通道,从特殊阀芯室传到主阀阀芯室。主阀的活塞就处于氮气总管压力的作用,由于主阀阀芯上、下所受气体压力平衡,所以主阀阀芯在自重和弹簧的作用下将阀门紧密关死。
(2)氮封阀打开时,当储罐压力稍微低于设定压力时,膜片因为感应压力下降而向下移动,推动气导阀打开,氮气经过孔板、气导阀的出口进入储罐,使储罐内的压力增加,同时气导阀的特殊阀芯室的压力下降,氮气通过内部通道从特殊阀芯室进入主阀阀芯室。由于主阀阀芯的活塞面积大于主阀阀座孔面积,并有弹簧的弹力和主阀的重量,所以当储罐压力稍微低于设定点时,特殊阀芯室和主阀阀芯室的压力降低很小,主阀仍然保持关闭,氮气只从气导阀进入储罐。

二、ZZYVP自力式氮封阀 主要零件材料
阀 体:ZG230~450、ZG1Cr18Ni9Ti、ZGCr18Ni12Mo2Ti
阀 芯:1Cr18Ni9Ti Cr18Ni12Mo2Ti
阀 座:1Cr18Ni9Ti Cr18Ni12Mo2Ti
波纹管:1Cr18Ni9Ti
膜 盖:A3、1Cr18Ni9Ti
膜 片:丁脯橡胶、耐油像胶、氟橡胶

三、ZZYVP自力式氮封阀主要技术参数
公称通径DN(mm) 20 25 40 50 65 80 100 阀座直径(mm) 6 15 20 25 32 40 50 65 80 100 额定流量系数KV 3.2 5 8 11 20 50 80 100 160 压力调节范围KPa 0.5~5.5、5~10、9~14、13~19、18~24、23~28
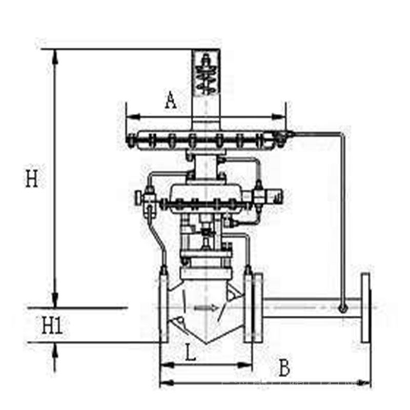
27~33、31~38、36~44、42~51、49~58、56~66公称压力PN(MPa) 1.0 1.6 被调介质温度(°C) ≤80 调节精度(%) ±10 允许泄漏量 10-4X阀额定容量 四、ZZYVP自力式氮封阀 外形尺寸
公称通径DN
20
25
32
40
50
65
80
100
A
395
H
680
690
710
720
735
797
837
1050
L
185
200
205
222
254
276
298
352
法兰标准
GB:1.6、2.5、4.0MPa ANSI:150、JIS:10K
ZZYVP自力式氮封阀无需外加能源,利用被调介质自身能量为动力源,引入压力阀的指挥器以控制压力阀芯位置,改变流经阀门介质流量,使阀门后端压力保持恒定。本具体实施例仅仅是对本实用新型的解释,其并不是对本实用新型的限制,本领域技术人员在阅读完本说明书后可以根据需要对本实施例做出没有创造性贡献的修改,但只要在本实用新型的权利要求范围内都受到专利法的保护。
所述智能压力变送器分别连接智能控制器和内浮顶顶部.本实用新型提供的氮封装置具有安全性高,使用寿命长,成本低等优点.
ZZYVP自力式氮封阀安装使用
1、安装:
(1)安装前,检查整机零件是否缺损或者松动,对管道应进行清洗,介质流向应与阀体箭头指向一致。
(2) 为便于现场维修与操作,阀四周应留有适当的空间。
(3)阀门应正立垂直安装在水平管道上,阀体与管道的法兰连接,要注意轴度,并应安装在环境温度不过-25~55°C的场合使用。
2、ZZYVP自力式氮封阀使用
(1)开启阀前截止阀,使介质缓慢流入阀体
(2)拧开指挥器护罩,松开指挥器调节螺钉
(3)调节指挥器主弹簧,使阀后压力至设定值
(4)固定指挥器调节螺钉,装好护罩,调压阀即可开始工作
(5)不用时,关闭阀前截止阀
3、ZZYVP自力式氮封阀维护
(1)拆卸阀门时,要保护好精密零件的表面,拆装阀座时,要使用工具
(2)阀芯与阀座,不管修理或者更换,密封面都 进行研磨
(3)弹簧若有裂缝迹象, 更换
(4)密封垫片与0型圈每次检修时全部更换,膜片根据检查结果而定。
(5)阀门平时维护,只有观察阀后导压器上的压力表是否符合设计值要求即可。另外若发现各连接处有渗漏,可拧紧螺母与螺钉或更换密封垫片与0型圈

订货须知:
一、①产品名称与型号②口径③是否带附件以便我们的为您正确选型④使用压力⑤使用介质的温度。
二、若已经由设计单位选定公司的调节阀型号,请型号直接向我司销售部订购。三、当使用的场合非常重要或环境比较复杂时,请您尽量提供设计图纸和详细参数,由我们的阀门公司专家为您审核把关。如需要了解更多其它阀类产品的信息可以点击减压阀查看。感谢您访问我们申弘阀门的网站如有任何疑问.您可以致电给我们,我们一定会尽心尽力为您提供优质的服务,产品所属调节阀型号。
-
联系方式
- 联系人:申弘阀门
- 电 话:021-59260058
- 手 机:15901754341
- 传 真:86-021-31662735
- 邮 箱:494522509@qq.com
- 邮 编:201718
- 地 址:上海市青浦区金泽工业园区
- 网 址: https://bengye.cn.goepe.com/
http://www.021-fm.com
-
产品搜索










