-
SH电动三通换向球阀Q945F
详细信息| 询价留言Q945F电动三通换向球阀简介
电动三通球阀是由CWR系列智能式执行机构和三通球阀组成,是一种旋转类切断调节阀门,具有关闭严密,结构紧凑,重量轻,维修方便等优点。广泛用于气体、液体、蒸汽、油品等腐蚀性介质的管道自动化控制中。两阀座密封三通球阀具有结构紧凑、外型美观、密封性能好。它能实现对管道中介质流向的切换。也能使相互垂直的两个通道连通或关闭。四阀座密封三通球阀具有造型美观、结构紧凑合理。上海申弘阀门有限公司主营阀门有:减压阀(组合式减压阀,可调式减压阀,自力式减压阀

三通球阀作为一种控制阀门,广泛的运用于化工和自动化机械当中,市场上的三通球阀主要有T型和L型两种,其中T型能使三条正交的管道相互联通和切断第三条通道,起分流、合流作用;L型则只能连接相互正交的两条管道,不能同时保持第三条管道的相互连通,只起分配作用。现在市场上的三通球阀,不论是T型还是L型,其往往都是通过手轮来调节阀门的工作状态,故它们都存在着使用不方便的缺点。本实用新型涉及ー种球阀,更具体地说,它涉及一种三通球阀。

球阀,是ー种启闭件(球体)由阀杆带动,并绕阀杆的轴线作旋转运动的阀门,主要用于截断或接通管路中的介质,亦可用于流体的调节与控制。三通球阀是球阀的ー种,一般用于中低压球阀,三通球阀的球体是浮动的,在介质压力作用下,球体能产生一定的位移并紧压在出口端的阀座密封面上,保证出口端密封。而球阀中的三通球阀具有四个阀座,当球体浮动时,球体能对两侧阀座产生不均匀压力,严重影响三通球阀的使用寿命。如图2所示,使得装配エ艺复杂,而且球体2和阀杆I 一旦装配不牢固,球体2就不能沿阀杆4的轴线良好运转。

发明内容
针对现有技术存在的不足,本实用新型的目的在于提供ー种能有效保护阀座密封面、有效对阀体内的介质进行截断或接通、延长使用寿命的三通球阀。为实现上述目的,本实用新型提供了如下技术方案ー种三通球阀,包括阀体,阀体内设有球体和阀座,球体、阀体均与阀座相抵接,球体固定连接有阀杆,阀杆驱动球体沿阀杆的轴线作旋转运动,所述阀体设有凸台,所述球体设有套设于凸台外表面并可沿凸台周向旋转的凹槽,所述凸台套设有轴承,所述凹槽和轴承相抵接。通过采用上述技术方案,阀体上增设了凸台,球体上增设了凹槽,凹槽,凹槽套设与凸台外表面并沿凸台旋转,凹槽和凸台为之间设有轴承,这样在阀体受到巨大冲击カ吋,凸台就能抵挡住球体,使球体不发生位移,从而避免了因球体浮动而引起阀座受损,这样就能有效保护阀座、有效对阀体内的介质进行截断或接通,延长了球阀的使用寿命,并且阀门扭矩显著变小。
分L型和T型,介质流通方向见下图。L型三通球阀适用于介质流向的切换,能使相互垂直的两个通道连通:T型三通球阀适用于介质的分流、合流或流向切换,T型孔道可以使三个通道互相连通或使其中两个通道连通,三通球阀一般采用两个阀座结构,亦可根据用户要求采用四阀座结构。

Q945F电动三通换向球阀选项参数电动执行器选配:PLVE系列、PLVQ系列
作用形式: 普通开关型、调节型(4~20mA)
环境温度: -30℃~+70℃
电源电压: AC220V、AC380V(其他定制DC24等)50/60Hz
防护等级: IP67、IP68可选
功能选项 (可选)
防 爆 型: 防爆等级:dⅡBT3/T4
信号反馈: 有源信号、S无源信号
带加热器: 可在潮湿环境中干燥执行器内元件(可选)
手动功能: 电动执行器带有手动开阀、关阀功能
调 节 型: 输入4~20mA信号,实现阀门调节功能
备注: 电动执行器参数请另参考所选配的电动执行器资料.

执行机构
执行器型号 CHR、3810R、DZW、HQ、PSQ电动执行机构 主要技术参数 电源电压:220V/50Hz、380V/50Hz、输入信号:4-20mA或1-5V·DC、输出信号:4-20mA·DC 防护等级:相当IP65(或IP67)、隔爆标志:ExdⅡBT4、手操功能:手柄 环境温度:-25~+70℃、环境湿度:≤95% 主要性能参数:
试验压力 公称压力(MPa) MPa 1.6 2.5 4.0 CL150 JIS10K 强度试验 2.4 3.8 6.0 3.2 2.4 密封试验 1.8 2.8 4.4 2.2 1.5 气密试验 0.5-0.7 工作温度 PTFE≤180℃ PPL≤300℃ 适用温度 C:水、油、气;P:硝酸类;R:醋酸类 主要零件材料
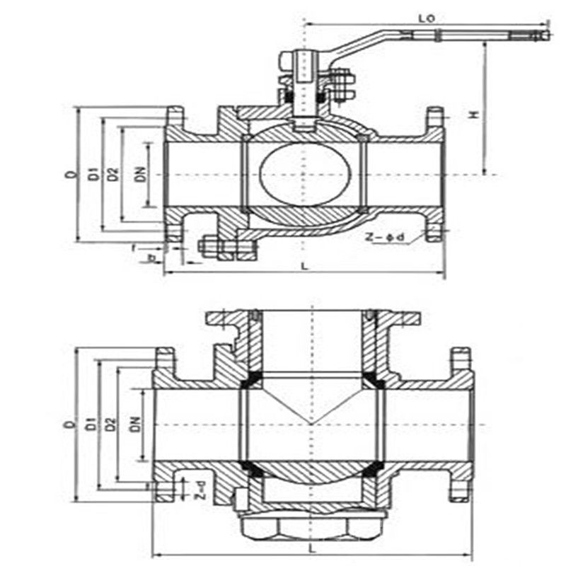
阀体\阀盖 GB WCB ZGlCrl8Ni9Ti ZGOCfl8Nil2M02Ti ASTM WCB CF8 CF8M 球体 ? GB 2Cfl3 1Cfl8Ni9Ti 0Cfl8Ni12M02Ti ASTM 420 304 316 阀杆 GB 2Crl3 1Crl8Ni9Ti 0Crl8Ni12M02Ti ASTM 420 304 316 阀座\密封面 GB 聚四氟乙烯 对位聚苯 聚四氟乙烯 对位聚苯 聚四氟乙烯 对位聚苯 ASTM 聚四氟乙烯 对位聚苯 聚四氟乙烯 对位聚苯 聚四氟乙烯 对位聚苯 填料 GB 聚四氟乙烯 柔性石墨 聚四氟乙烯 柔性石墨 聚四氟乙烯 柔性石墨 ASTM 聚四氟乙烯 柔性石墨 聚四氟乙烯 柔性石墨 聚四氟乙烯 柔性石墨 螺栓 GB 35 0Crl8Ni9 0Crl8Ni9 ASTM A193B7 A320-B8 A320-B8 螺母 GB 45 0Cfl8Ni9 0Crl8Ni9 ASTM A1942H A194-8 A194-8 公称通径 主要外形尺寸和连接尺寸 L D D1 D2 b Z-d H W Q44F-16C Q44F-16P Q644F-16C Q644F-16P Q944F-16C Q944F-16P Q45F-16C Q45F-16P Q645F-16C Q645F-16P Q945F-16C Q945F-16P 15 108 95 65 45 14 414 95 140 20 117 105 75 55 14 414 105 160 25 127 115 85 65 14 414 113 180 32 140 135 100 78 16 418 135 250 40 165 145 110 85 16 418 142 300 50 178 160 125 100 16 418 154 350 65 191 180 145 120 18 418 175 350 80 203 195 160 135 20 818 190 400 100 229 215 180 155 20 818 225 500 125 356 245 210 185 22 818 245 600 150 394 280 240 210 24 823 265 800 200 457 335 295 265 26 1223 305 800 250 533 405 355 320 30 1225 370 1300 
电动执行机构和三通球阀组成。通过改变球芯与管道的相对位置,可以对三条管路流体实行不同的组合控制。该产品以220V单相交流电为动力源,接受控制系统(或操作器)来的220V开关信号,并通过单相电源切换驱动可逆单相齿轮减速电机,按规定的组合要求,使球阀实现对管路流体的换向作。电动三通球阀分T型跟L型,T型三通可使三路正交的管道互相连通,即起分流(合流)作用,也可使其中两条管道连通而切断另一条管道;L型三通只能连通互相正交的两条管道或切换方向,即起分配作用。

安装、拆卸及注意事项8.1本电动装置的安装形式无原则要求,但电机处于水平状态,电气箱盖处于水平或垂直向上状态为推荐安装形式,这样有利于润滑、调试、维护和手动操作;
8.2安装时应保证维修检查人员拆卸各部件所需的空间;
8.3与阀门连接的螺栓不得低于8.8级;
8.4当需要拆卸时,应先将手动手轮旋转数圈,在阀门稍开状态下进行;
8.5安装、拆卸、调试时不可损伤密封面、密封件和防爆型电装的防爆面,并应在隔爆面上涂防锈油,电气罩盖应盖严紧固,以防雨水或潮气进入;
8.6视窗不得与硬物碰撞;
8.7本电动装置为短时工作制,持续工作时间不得超过铭牌标定时间;
8.8不阀门不经常使用时,应定期检查保养并操作运行,建议每月至少一次,运行时间不超过10分钟。
故障及排除方法
序号
故 障
原 因
排除方法
1
电机起不动
1. 电源线脱开
2. 控制线路故障
3. 行程或力矩控制机构失灵
1. 检查电源线
2. 排除线路故障
3. 排除行程或力矩控制机构故障
2
输出轴旋向不符合规定
电源相序接反
调换任意两电源线
3
电机过热
1. 连续工作时间太长
2. 一相线断开
1. 停止运行,使电机冷却
2. 检查电源线
4
运行中电机停转
1. 阀门有故障
2. 电动装置过载,力矩控制机构动作
1. 检查阀门
2. 增大整定转矩
5
阀门到位后电机不停转或灯不亮
1. 行程或力矩控制机构有故障
2. 行程控制机构调整不当
1. 检查行程或力矩控制机构
2. 重新调整行程控制机构
6
远方无阀位信号
1. 电位器齿轮紧定螺钉松动
2. 远传电位器故障
1. 拧紧电位器齿轮紧定螺钉
2. 检查更换电位器
订货须知:
一、①品名称与型号②口径③是否带附件以便我们的为您正确选型④使用压力⑤使用介质的温度。
二、若已经由设计单位选定公司型号,请电动三通球阀型号直接向我司销售部订购。三、当使用的场合非常重要或环境比较复杂时,请您尽量提供设计图纸和详细参数,由我们的阀门公司专家为您审核把关。产品所属球阀选型,感谢您访问我们申弘阀门的网站如有任何疑问.您可以致电给我们,我们一定会尽心尽力为您提供优质的服务。如需要了解更多其它阀类产品的信息可以点击减压阀查看。
-
联系方式
- 联系人:申弘阀门
- 电 话:021-59260058
- 手 机:15901754341
- 传 真:86-021-31662735
- 邮 箱:494522509@qq.com
- 邮 编:201718
- 地 址:上海市青浦区金泽工业园区
- 网 址: https://bengye.cn.goepe.com/
http://www.021-fm.com
-
产品搜索







