-
ZZYVP超纯水氮封阀申弘
详细信息| 询价留言ZZYVP超纯水氮封阀 产品说明
本实用新型属于纯水隔离领域,尤其涉及一种用于超纯水隔离的氮封阀。 氮封水箱一般应用在超纯水系统中,一般用在混床或EDI电去离子设备后的需要设置缓冲水箱时,此时往往会优先考虑采用氮封水箱来作为缓冲罐,氮气要求纯度为99%。 超纯水在空气中如何被污染:众所周知,空气中含有二氧化碳、细菌、尘埃等杂质,而超纯水为纯的溶剂,对这些杂质的溶解能力很强,故一旦超纯水与空气接触,就会使其电阻率迅速下降,实践证明15MΩ.cm以上的超纯水暴露在空气中1分钟后水质就会下降至3-4MΩ.cm,3分钟以后就会下降到2MΩ.cm左右。因此必须要减少超纯水与空气接触的机会。

防止超纯水容器被空气污染的常见方法:
☆充氮法:即在水箱水面上充入氮气使箱内维持适当的正压力,阻止大气与箱内水面接触。
☆薄膜袋法:即在在水箱内设置袋状薄膜覆盖于水面上,薄膜袋随水位升降,减少水面与空气接触面积。
☆浮顶法:即以密度比水轻的轻质材料在水箱内制成整块板状浮顶浮于水面,并用轻质弹性材料(如海绵、发泡塑料等)遮盖浮顶与箱间的间隙,浮顶随水面升降。从而减少空气与水面的接触机会。
氮封水箱的组成:
氮封水箱是由三部分组成:
☆氮气源:通常可以选用洁净高压氮气瓶、制氮机、工厂现有洁净压缩氮气……
☆密闭水箱: 超纯水水箱一定要全密封,一方面防止氮气外泄,另外防止空气进入水箱污染超纯水。
ZZYVP超纯水氮封阀背景技术:
氮封装置主要用于储罐顶部,来维持储罐的微正压,隔离物料与外界的接触,减少物料的挥发和浪费,保护储罐安全。氮封阀无需外加能源,利用被调介质自身能量为动力源。自动控制阀门介质流量,使阀后压力保持恒定的压力稳定装置。
现已广泛用于连续送气的天然气采输,城市煤气以及冶金、石油、化工等工业生产部门。氮气在常况下是一种无色无味的气体,占空气体积分数约78%(氧气约21%)。熔点是63K,沸点是77K,临界温度是126K,难于液化。溶解度很小,常压下在283K时一体积水可溶解0.02体积的氮气。

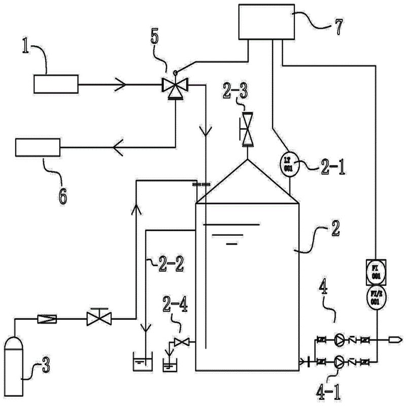
氮气是难液化的气体。氮气在极低温下会液化成无色液体,进一步降低温度时,更会形成白色晶状固体。在生产中,通常采用黑色钢瓶盛放氮气。一种超纯水氮封装置,包括氮气供应端、氮封水箱、纯水供应端,其特点在于;所述氮气供应端通过空气减压阀、电磁阀,将氮气从氮封水箱的输入口输送到氮封水箱中;所述氮封水箱还设有氮气输出口、纯水输出口;所述氮气输出口、纯水供应端均与水封桶连接;所述氮封水箱氮气压力过高时,氮气输出口用来将多余氮气通过水封桶排出;所述纯水输出口通过压力泵驱动,将纯水输送到用水端;所述经用水端后的纯水通过回水端、输入口将回水送到氮封水箱中;所述纯水供应端也通过输入口将纯水输送到氮封水箱中。这种超纯水氮封装置虽然具有节能、操作方便的有点,但是超纯水在氮封是还是存在被污染和耗气量多的现象。

ZZYVP超纯水氮封阀技术实现要素:
本实用新型的目的是提供一种用于超纯水隔离的氮封阀。其具有能够使超纯水保质更好、耗气量更少的优点。
本实用新型的的目的可以通过以下技术方案来实现:
一种用于超纯水隔离的氮封阀,包括:超纯水水箱和氮气桶,所述超纯水水箱与氮气桶之间通过气管相连,所述气管上连接有氮封阀,所述超纯水水箱下端连接生产线,生产线与超纯水水箱之间设有开关阀;其特征在于:所述氮封阀朝向超纯水水箱的一端设有干燥装置,所述干燥装置进口端大于出口端,干燥装置两端均设有过滤网,所述干燥装置内设有干燥剂。通过采用上述技术方案,设置干燥装置能够去除管道中存在的水分,使氮气更加纯净,以防污染超纯水的纯度。

优选的,所述氮封阀两端与气管之间均通过法兰连接。
优选的,所述氮封阀与超纯水水箱之间设有压力阀。
通过采用上述技术方案,设置压力阀,能够更好的检测超纯水水箱中氮气的压力,及时补充氮气,使氮气密封更加稳定。
优选的,所述氮封阀上还设有控制器。
优选的,超纯水水箱上还设有可视窗。
通过采用上述技术方案,可视窗能够更加清楚的观察超纯水水箱中氮气和超纯水的量,是整体处于可控范围。
优选的,所述超纯水水箱底部设有排污管。
通过采用上述技术方案,设置排污管能够排除水箱中的污水。
优选的,所述氮封阀阀体由黄铜材质制成。
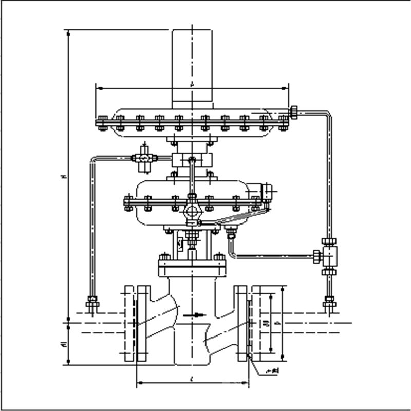
ZZYVP超纯水氮封阀主要参数
1、主要参数及主要性能指标见表一 表一公称通径DN(mm) 20 25 40 50 80 100 150 阀座直径(mm) 6 15 20 25 32 40 50 65 80 100 125 150 额定流量系数Kv 0.32 5 8 11 20 30 48 75 120 190 300 480 压力调节范围KPa 0.1~0.5、0.4~5.0、4.0~12.0、 公称压力PN(MPa) 1.6 被调介质温度(℃) -5~+100 流量特性 快开 调节精度(%) ≤±5 执行机构有效面积(cm2) 100 200 280 400 信号接口 内螺纹M10×1 M16X1 压力调节范围(KPa) 指挥器膜室
有效面积(cm2)执行机构膜室
有效面积(cm2)使用阀门口径(mm) 0.1~0.5 1200 100 20~32 0.4~5.0 600 4.0~12.0 400 0.1~0.5 1200 200 40~50 0.4~5.0 600 4.0~12.0 400 0.1~0.5 1200 400 65~100 0.4~5.0 600 4.0~12.0 400 0.1~0.5 1200 600 125~150 0.4~5.0 600 4.0~12.0 400 ZZYVP超纯水氮封阀零件材料:
零 件 名称
材料
阀体
ZG230-450 ZG1Cr18i9Ti
阀杆、阀芯、阀座
1Cr18i9Ti
膜片
丁青橡胶夹增强绦纶织物
弹簧
60Si2Mn
波纹管
1Cr18i9Ti
公称通径DN(mm)
20
25
32
40
50
65
80
100
额定流量系数(KV)
8
11
20
32
50
80
100
160
额定行程(mm)
6
8
10
15
20
公称压力PN(Mpa)
0.10
压力调节范围(KPa)
0.5∽5.5、5∽10、9∽14、13∽19、18∽24、23∽28
27∽33、31∽38、36∽44、42∽51、49∽58、56∽66介质温度(℃ )
≤80℃
调节精度(%)
±10
允许泄漏量(L/h)
10ˉ4×阀额定容量
ZZYVP超纯水氮封阀规格重量、外形尺寸:
公称通径DN
20
25
32
40
50
65
80
100
A
192
232
308
H
629
631
652
666
689
797
837
1050
L
150
160
180
200
230
290
310
350
G(Kg)
18
19
21
23
25
37
50
59
公称通径DN
20
25
32
40
50
65
80
100
D
105
115
140
150
165
185
200
220
D1
75
85
100
110
125
145
160
180
B
16
18
20
22
n-ф
4-14
4-18
8-18
f1×D2
2×56
3×65
3×76
3×84
3×99
3×118
3×132
3×156
ZZYVP超纯水氮封阀本实用新型的有益效果:
设置干燥装置能够去除管道中存在的水分,使氮气更加纯净,以防污染超纯水的纯度氮封装置(氮封阀)的供(泄)氮压力设定方便,可在连续生产的条件下进行。在设定压力范围内,如从100mm H20需调整到50mm H20,可通过调节供氮阀顶部的调节螺丝,改变弹簧的力,即可达到需要新设定的工艺值。泄氮阀的调整也是同理。呼吸阀设定值调整:在上述设定值调整好后,为避免呼吸阀启闭频繁,呼吸阀的设定值应大于泄压设定置。

ZZYVP超纯水氮封阀
1、水箱未满水前需要补水;
2、补水时需要打开呼吸器;
3、补水时水箱满后设备需停水;
4、水箱水位不足后处理系统需停机保护直至水位正常;
5、补水完成后关掉呼吸器;
6、前面的步骤完成后再补氮气……这些都需要有一套全自动的程序来协调控制,保证超纯水不会被大气污染。
7、反渗透设备在使用前,需采用蒸气进行高温消毒,设备运行时前72小时生产出来的超纯水需排放掉。
8、检测超纯水需在出水口安装可流运水专用探测槽再装电阻率擦头,才能反映出超纯水的水质。

订货须知:
一、①产品名称与型号②口径③是否带附件以便我们的为您正确选型④的使用压力⑤的使用介质的温度。
二、若已经由设计单位选定公司的型号,请按型号直接向我司销售部订购。三、当使用的场合非常重要或环境比较复杂时,请您尽量提供设计图纸和详细参数,由我们的阀门公司专家为您审核把关。如有疑问:请:我们一定会尽心尽力为您提供优质的服务。提供全面、*的“阀门系统解决方案",也十分愿意帮助用户解决生产中所遇到的难题。
-
联系方式
- 联系人:申弘阀门
- 电 话:021-59260058
- 手 机:15901754341
- 传 真:86-021-31662735
- 邮 箱:494522509@qq.com
- 邮 编:201718
- 地 址:上海市青浦区金泽工业园区
- 网 址: https://bengye.cn.goepe.com/
http://www.021-fm.com
-
产品搜索












