-
YZW型自力式温控阀申弘
详细信息| 询价留言YZW型自力式温控阀 产品说明
本实用新型涉及采暖系统控制设备技术领域,具体说是一种自力式温控阀。是一种无需外来能源,依靠被调介质自身的温度变化进行自动调节的节能阀门。具有测量、执行、控制的综合功能。它适用于蒸汽、热水、热油等到为介质的各种换热场合。广泛应用于供暖、空调、生活热水中的温度自动调节,以及特殊场合的温度自动调节,如化工、纺织、制药等生产过程。

YZW型自力式温控阀使用特点:
1、体积小、重量轻、安装简易;
2、准确可靠寿命长;
3、免维修式工作;
4、调节设定简易;
5、无源工作(无电源、气源正常工作);
6、无需昂贵的调试费用;
7、阀体密封采用V型环高温密封组件,防止了阀杆过紧抱死或漏气的可能性。

YZW型自力式温控阀工作原理
YZW型自力式温控阀利用液体受热膨胀及液体不可压缩的原理实现自动调节。温度传感器内的液体膨胀是均匀的,其控制作用为比例调节。被控介质温度变化时,传感器内的感温液体体积随着膨胀或收缩。被控介质温度高于设定值时,温度液体膨胀,推动阀芯向下关闭阀门,减少热媒的流量;被控介质的温度低于设定值时,感温液体收缩,复位弹簧推动阀芯开启,增加热媒的流量。自力式温控阀不需外界能源而进行温度自动调节。它适用于蒸汽、热水、热油等为介质的各种换热工况。 广泛应用于供暖、空调、生活热水中的温度自动调节,以及特殊工况的温度自动调节,如化工、纺织、制药等生产工程。
自力式温度调节阀利用液体受热膨胀及液体不可压缩的原理实现自动调节。温度传感器内的液体膨胀是均匀 的,其控制作用为比例调节。被控介质温度变化时,传感器内的感温液体体积随着膨胀或收缩。被控介质温度高于设定值时,感温液体膨胀,推动阀芯向下关闭阀门,减少热媒的流量;被控介质的温度低于设定值时,感温液体收缩,复位弹簧推动阀芯开启,增加热媒的流量。

背景技术:
目前大部分集中供热系统基本上都存在流量分配不平衡,造成部分采暖系统不热的问题。针对采暖系统不热的问题目前采用以下两种措施一是由于采暖面积比较大,采暖管道比较长,供热半径比较大,距热源近的建筑采暖系统供、回水压差大,流速快,室内温度比较高,距热源远的建筑采暖系统供、回水压差小,流速慢,室内温度较低,很多供热站为了解系统不热问题,将系统循环泵流量和杨程加大,结果造成运行电耗加大,系统出现管道及暖气片爆管、爆片事故。二是采用人工的调节方式,关小距热源近的采暖系统回水来调节系统流量平衡。总的来说这两种方式都不理想,难以实现采暖系统的每个区域流量和压差 的合理化分配。

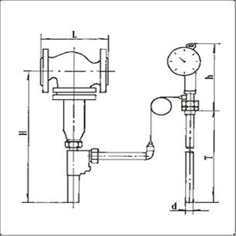
YZW型自力式温控阀技术性能指标
公称通径DN(mm) 15 20 25 32 40 50 65 80 100 125 150 200 250 300 Kv值(m³/h) 3.2 5 8 12.5 20 32 50 80 120 180 260 350 450 500 *大允许压差 PNl6 1.6 (MPa) PN25 2.5 公称压力(MPa) PNl6(自力式温度控制阀体材质为球墨铸铁工作温度≤220℃)PN25(阀体材质为铸钢工作温度≤350℃) 温度设定范围(℃) 25℃ 、35—110℃ 平衡元件 不锈钢316L波形管 导管长度(m) 3.5—20 流通介质 蒸汽、水、热油
YZW型自力式温控阀产品所用材质:
温度传感器:紫铜或不锈钢
传感器导管:紫铜
控制热行器:不锈钢和黄铜
联按支架:钢或铸铁
平衡器:不锈钢
阀杆:不锈钢
阀瓣:不锈钢
阀座:黄铜
阀体:铸铁(1.6MPa)铸钢(2.5Mpa)不锈钢(2.5MPa)

技术性能:表二型号
C值(m2/h)流通能力
公称压力
传感器导管长度
温度精度(℃)
单阀座
双阀座
15
3
1.6Mpa
(2.5Mpa)
用户可根
据实际公
称压力选
择压力
选择1.6Mpa
或者2.5Mpa1.5m
±1(±2)用于采暖,空调等闭路循环系统时控精度为±1℃;
用于洗澡,生活热水等闭路循环系统时控制精度为±2℃,
以上控精度是在系统额定循环相对稳定状态时。
用于洗澡的系统必须有循环或加相对容积的蓄水箱后可达到所控制的精度。
20
5
25
8
32
12
3m
40
20
50
32
65
50
80
80
100
3.6m
100
120
150
125
180
200
4m
150
260
350
200
550
4.6m
250
700
300
1200
DN
D1
D2
(n-φ)
D3
L1
L2
管螺纹
H
重量Kg
单座
双座
15
95
65
4-φ14
15
140
200
1
300
1
20
105
75
4-φ14
15
160
200
1
360
15
25
115
85
4-φ14
15
180
200
1
390
15
32
135
100
4-φ18
25
200
310
5/4
480
23
40
145
110
4-φ18
25
200
310
5/4
500
26
50
160
125
4-φ18
25
230
310
5/4
570
28
65
180
145
4-φ18
25
290
310
5/4
590
32
80
195
160
8-φ18
25
310
360
5/4
660
46
49
100
215
180
8-φ18
25
350
360
5/4
800
52
58
125
245
210
8-φ18
32
395
360
3/2
920
69
76
150
280
240
8-φ18
32
470
360
3/2
950
91
102
200
335
295
12-φ23
38
585
460
3/2
970
190
250
405
355
12-φ25
38
622
460
3/2
1080
230
300
480
410
12-φ25
38
698
460
3/2
1120
310

一种自力式温控阀,包括主阀,所述主阀上端设一液压控制阀,主阀下端连接出水管,所述出水管上设置一液体膨胀式温控器,所述液体膨胀式温控器与液压控制阀管路连接。所述主阀内设一活塞连接杆,所述活塞连接杆上端设一上调节杆、下端设一下调节杆,所述活塞连接杆上设一大活塞,活塞连接杆与下调节杆之间设一小活塞,小活塞和阀体下盖之间装有弹簧。本实用新型可安装在大型集中供热每个支路的回水管道上,根据回水温度自动调节每个区域系统流量,以满足大型采暖系统每个区域的流量平衡,使每个采暖区域供水温度相同,以达到节能目的。

一、YZW型自力式温控阀安装位置
自力式温控阀的阀体安装于一次侧热媒入口处附件,感温探头安装于二次侧出口处附近。
整体安装方式见安装示意图:
注意:
(1)阀体应尽量安装于便于调节和保养操作的位置,顺热媒流向,切勿装反。
(2)感温探头应逆水流方向安装,或跟水流方向垂直,以提高灵敏度。切勿顺水流安装。
(3)感温探头的丝座与感温探头的匹配(丝座用户自配,具体尺寸详见于技术参数表),尤其是安装于压力容器或压力管道上,须由*厂家设计、生产和焊接。
(4)一次侧阀体与二次侧探头的毛细管长度不得超过毛细管总长度的90%。

二、阀体本体安装:
(1)阀体应水平安装于一次热媒的入口处,阀杆朝上,并确保执行器垂直安装。
(2)阀前应安装过滤器,并直接对接,过滤器精度尽量选用高目数。
(3)前后安装手动截止阀,阀侧应安装旁通,并安装手动截止阀。
(4)阀前蒸汽的较佳工作范围为0.3~0.7Mpa。
(5)标准安装方式如图示:
建议:
a:如蒸汽压力过高,建议阀前安装减压调压阀
b:如阀前无温度压力表,建议加装,以便分析设备工作状况。
c:阀体口径≥DN100,建议主干管道安装固定支架,或下部安装活动支架。

订货须知:
一、①产品名称与型号②口径③是否带附件以便我们的为您正确选型④的使用压力⑤的使用介质的温度。
二、若已经由设计单位选定公司的型号,请按型号直接向我司销售部订购。三、当使用的场合非常重要或环境比较复杂时,请您尽量提供设计图纸和详细参数,由我们的阀门公司专家为您审核把关。如有疑问:请:我们一定会尽心尽力为您提供优质的服务。提供全面、*的“阀门系统解决方案",也十分愿意帮助用户解决生产中所遇到的难题。
-
联系方式
- 联系人:申弘阀门
- 电 话:021-59260058
- 手 机:15901754341
- 传 真:86-021-31662735
- 邮 箱:494522509@qq.com
- 邮 编:201718
- 地 址:上海市青浦区金泽工业园区
- 网 址: https://bengye.cn.goepe.com/
http://www.021-fm.com
-
产品搜索






