-
ZZWP自力式温度调节阀申弘
详细信息| 询价留言ZZWP自力式温度调节阀 产品说明
本实用新型涉及一种阀门,特别是关于一种自力式温控阀。本实用新型 适用于城市供热、供暖系统及石化、印染、制药等行业的非腐蚀性蒸汽、热 水介质换热器中的温度自动控制装置。利用液体受热膨胀及液体不可压缩的原理实现自动调节。温度传感器内的液体膨胀是均匀的.其控制作用为比例调节被控介质温度变化时,传感器内的感温液体体积随着膨胀或收缩。被控介质温度高于设定值时,感温液体膨胀.推动阀芯向下关闭阀门,减少热媒的流量;被控介质的温度低于设定值时,感温液体收缩.复位弹簧推动阀芯开启,增加热媒的流量。适用范围采暖空调生活热水、石油化工、电力、机电纺织、橡胶、食品等行业。

ZZWP自力式温度调节阀性能特点:
①利用液体受热膨胀及液体不可压缩的原理实现自动调节;
②传感器内液体膨胀为均匀膨胀;
③控制作用为比例调节;
④无源工作(无电源、气源正常工作);
⑤阀体密封采用V型环高温密封组件,防止了阀杆过紧抱死或漏气的可能。
又称温控阀、自力式温度控制阀、温度调节阀、温度控制阀。由控制阀门和温控器组成。按用途分为加热型和冷却型。自力式温度调节阀主要由控制阀及温控器组成,是一种无需外来能源而依靠被控介质自身的温度变化进行自动调节的节能产品。适用于非腐蚀性的液体、气体和蒸汽,在各种冷却系统中的温度控制。当被控介质温度升高,控制阀门关闭(加热型);当被控介质温度升高,控制阀门开启(冷却型)。广泛应用于化工、石油、电力、冶金、食品、轻纺、民民建筑楼群、宾馆、饭店等各种供热、供水、制冷、杀菌消毒等设备的温度自动调节。
ZZWP自力式温度调节阀背景技术:
自力式温度调节阀包括调节阀和执行器。调节阀包括阀体、阀座、阀芯、 阔杆、阀盖。执行器包括调节器和温度传感器,温度传感器为液压温包,安 装于被控介质通道内,通过导管与调节器的液压缸连通。
自力式温度调节阀,其调节器包括液压缸和执行器推杆, 执行器推杆在液压缸内,由波纹管将执行器推杆与液压缸内腔隔离。当被控 介质的温度下降时,温度传感器液压温包内的液体收縮,使液压缸内的液压 压力下降,执行器推杆带动阀杆、阀芯下移,阀门开度增大,通过阀门的高 温液体增加,被控介质温度回升。反之,当被控介质的温度上升时,通过执 行器的控制调节使被控介质的温度回落,不需要外来动力能源,实现对被控 介质的恒温控制。其主要缺点是执行器推杆安装于液压缸内,两者之间采 用波纹管隔离,液压缸的截面远大于执行器推杆的截面,温度传感器液压温 包内的液体体积的变化,对执行器推杆的作用力下降,降低调节灵敏度。

ZZWP自力式温度调节阀发明内容本实用新型的目的是针对现有技术存在的缺点,提供一种调节灵敏度高的自力式温度调节阀。新型目的的技术方案包括调节阀和执行器,调节阀包括阀体、 阀座、阀芯、阀杆、阀盖,执行器包括调节器和温度传感器,温度传感器为 液压温包,安装于被控介质通道内,通过导管与调节器的液压腔连通,主要 是调节器由活塞缸和活塞杆组成,活塞杆与阀杆固定连接,活塞缸与活塞杆 端面之间的活塞腔由导管与温度传感器液压温包内腔连通。本实用新型与现有技术相比的有益效果是调节器采用活塞式结构,活塞 缸腔体截面与活塞杆端面的面积相等,调节灵敏度高。

ZZWP自力式温度调节阀结构特点:
1、自力式温度调节阀体积小重量轻安装简易;
2、准确可靠寿命长;
3、调解设定简易;
4、无源工作(无电源、气源正常工作)。
ZZWP自力式温度调节阀主要零件材料:阀体 ZG230—45 ZG1Cr18Ni9Ti 阀座 ZG1Cr18Ni12Mo2Ti Cr18Ni12Mo2Ti 阀芯 1Cr18Ni9Ti Cr18Ni12Mo2Ti 波纹管套 1Cr18Ni9Ti Cr18Ni12Mo2Ti 平衡波纹管 1Cr18Ni9Ti 温包 H62 1Cr18Ni9Ti 毛细管 H62 1Cr18Ni9Ti 接头 35 1Cr18Ni9Ti 公称通径DN(mm) 15 20 25 32 40 50 65 80 100 125 150 200 250 公称压力PN(Mpa) 1.6 4.0 额定流量系数(KV) 单座 5 7 11 20 30 48 75 120 190 300 480 760 1100 双座 12 22 33 53 53 132 209 330 528 836 1210 套筒 11 20 30 48 75 120 190 300 480 760 1100 额定行程(mm) 6 8 10 14 20 35 允许压差(Mpa) 1.6 1.5 0.5 温度调节范围(°C) 0~70、50~120、100~170、150~220、200~270 调节精度(%) ±5 允许超载值(°C) 分别为上述温度调节范围上限加50 使用环境温度(°C) -40~+80 安装接头(M) G1" 毛细管长度(M) 3、5 允许泄漏量 硬密封(1/h) 双座、套筒:5×10-3×阀额定容量(II级)单座:10-4×阀额定容量(IV) 软密封(m1/min) 0.15 0.15 0.15 0.30 0.30 0.45 0.60 0.90 1.70 4.0 4.0 6.75 11.10
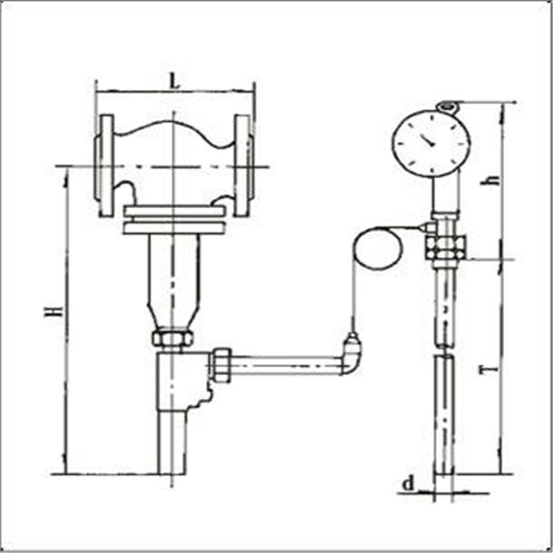
ZZWP自力式温度调节阀主要外形尺寸表:公称通径(DN) 20 25 32 40 50 65 80 100 125 150 200 250 L 二通 150 160 180 200 230 290 310 350 400 480 600 730 三通 150 160 180 200 230 290 310 350 400 480 600 730 H 二通 52.5 57.5 75 75 85.5 92.5 100 110 142.5 158 170 640 三通 140 140 150 160 180 200 222 230 270 280 306 474 H1 二通 500 540 580 640 700 750 820 950 1100 1280 三通 500 540 580 640 700 750 820 950 1100 1280 H2 350 T 235 420 430 630 1000 d 25(护套直径φ28) 重量(Kg) 8 10 13 15 18 30 35 60 75 85 110 150

摘要本实用新型涉及一种自力式温度调节阀,包括调节阀和执行器,调节阀包括阀体、阀座、阀芯、阀杆、阀盖,执行器包括调节器和温度传感器,温度传感器为液压温包,安装于被控介质通道内,通过导管与调节器的液压腔连通,主要是调节器由活塞缸和活塞杆组成,活塞杆与阀杆固定连接,活塞缸与活塞杆端面之间的活塞腔由导管与温度传感器液压温包内腔连通。活塞缸腔体截面与活塞杆端面的面积相等,具有调节灵敏度高的优点。适用于城市供热、供暖系统及石化、印染、制药等行业的非腐蚀性蒸汽、热水介质换热器中的温度自动控制装置。观察温度设定指示牌,用随机附件圆孔扳手转动温度设定旋钮,即可没定或调节被加热介质的温度。一般调节器出厂前温度设定在60℃,也可按用户要求调好,以便用户在现场只需稍作微调即可。
在由低温设定至较高温度时,可按标牌指示方向用圆孔扳手直接转动温度设定旋钮。在由高温向低温调整时,必须关闭热源,温度传感器冷却至被调温度以下时,方可转动温度设定旋钮。
说明:
1.在供热初始阶段,可能会出现被加热介质温度波动现象,这是由于初始阶段传感器感受温度低而阀口开启较大造成的,只需稍等片刻便会趋于正常。
2.本调节器不能用作截止阀。当系统停止供热时,必须关闭热源截止阀。
3.本调节器属精密仪器,未经许可严禁拆卸。
自力式温控阀故障排除
1.被加热介质温度偏低:打开旁通阀门,若温度仍偏低,则属热源压力偏低或系统问题。否则,关闭旁通,将温度向高温处调节,以达到所要求温度。
2.被加热介质温度偏高或温度持续升高:应检查旁通,是否泄漏。如无泄漏,检查温度设定指示牌,如温度设定偏高,参看使用方法向低温处调节。
3.若有异味逸出,则可能是传感器导管折裂,应停止使用。
4.若阀体部分有蒸汽泄漏,可旋紧密封压塞。若执行机构无动作,应在无蒸汽泄漏的情况下适当旋松密封压塞。

订货须知:
一、①产品名称与型号②口径③是否带附件以便我们的为您正确选型④的使用压力⑤的使用介质的温度。
二、若已经由设计单位选定公司的型号,请按型号直接向我司销售部订购。三、当使用的场合非常重要或环境比较复杂时,请您尽量提供设计图纸和详细参数,由我们的阀门公司专家为您审核把关。如有疑问:请:我们一定会尽心尽力为您提供优质的服务。提供全面、*的“阀门系统解决方案",也十分愿意帮助用户解决生产中所遇到的难题。
-
联系方式
- 联系人:申弘阀门
- 电 话:021-59260058
- 手 机:15901754341
- 传 真:86-021-31662735
- 邮 箱:494522509@qq.com
- 邮 编:201718
- 地 址:上海市青浦区金泽工业园区
- 网 址: https://bengye.cn.goepe.com/
http://www.021-fm.com
-
产品搜索








