-
申弘(SH)隔爆电动燃气球阀Q9B41F
详细信息| 询价留言Q9B41F隔爆电动燃气球阀产品介绍:
本实用新型涉及阀门技术领域,具体为一种燃气管路专用法兰浮动球阀。防爆电动燃气球阀的阀体通道和连接管径相等并成直径,介质几乎可以毫无损失的流过。上海申弘阀门有限公司主营阀门有:减压阀(组合式减压阀,可调式减压阀,自力式减压阀通常用于密封要求严格的场合,除控制气体、液体、蒸汽介质外,还适宜控制污水和含有纤维性杂质的介质,广泛用于石油、化工、冶金、轻工、造纸、电站、制冷等工作领域。

球阀的球体是浮动的,在介质压力作用下,球体能产生一定的位移并紧压在出口端的密封面上,保证出口端密封,浮动球球阀的结构简单,密封性好,但球体承受工作介质的载荷全部传给了出口密封圈,因此要考虑密封圈材料能否经受得住球体介质的工作载荷,在受到较高压力冲击时,球体可能会发生偏移,这种结构,一般用于中低压球阀,如现有技术公开的一种燃气管路专用法兰浮动球阀,通过一体焊接的阀体、减少了法兰连接所需要的密封件及连接螺栓螺母,采用型材料加工后组合焊接,外形变小许多,阀体的承载强度大大提高;

但是该在阀杆处的密封处理较为简单,导致在阀体使用时会出现天然气漏气的危险情况,为避免上述技术问题,确有必要提供一种燃气管路专用法兰浮动球阀以克服现有技术中的所述缺陷。本实用新型提供一种燃气管路专用法兰浮动球阀,可以有效解决上述背景技术中提出的阀杆处的密封处理较为简单,导致在阀体使用时会出现天然气漏气的危险情况的问题。

主要特点:
1、防爆电动燃气球阀的阀体通道和连接管径相等并成一直径,介质几乎可以毫无损失的流过。
2、通常用于密封要求严格的场合,除控制气体、液体、蒸汽介质外,还适宜控制污水和含有纤维性杂质的介质,广泛用于石油、化工、冶金、轻工、造纸、电站、制冷等工作领域。
3、天然气球阀防静电、防火装置;具有燃气球阀具有弹簧静电导出装置,即在球体与阀杆、阀杆与阀体之间设置导电弹簧,使球体与阀杆及阀杆与阀体之间形成静电通道,达到清除静电的目的。
4、避免静电打火点燃易燃介质,确保系统安全。当万一发生火灾而使聚四乙烯等软密封圈烧损时,球阀仍然能够可靠操作并具有良好的密封性能,以防止火灾的扩大,专门为燃气、液化气管道设计的球阀设有防静电、防火装置 。
天然气球阀防静电、防火装置;具有燃气球阀具有弹簧静电导出装置,即在球体与阀杆、阀杆与阀体之间设置导电弹簧,使球体与阀杆及阀杆与阀体之间形成静电通道,达到清除静电的目的。避免静电打火点燃易燃介质,确保系统安全。当万发生火灾而使聚四乙烯等软密封圈烧损时,球阀仍然能够可靠操作并具有良好的密封性能,以防止火灾的扩大,专门为燃气、液化气管道设计的球阀设有防静电、防火装置;

选型
1、电源电压:DC24V、DC220V、AC110V、AC220V、AC380V
2、介质类型、温度、压力
3、控制类型:开关型、无源触点型、阀位信号反馈型、智能调节型
4、智能调节型:输入信号4-20mA,1-5V,0-10V;输出信号:4-20mA,1-5V,0-10V

Q9B41F隔爆电动燃气球阀材质选型型号
阀体
阀杆
密封面
填料
型号
阀体
阀杆
密封面
填料
Q941F-16C
WCB
2Cr13
304
316
1Cr18Ni9Ti
1Cr18Ni12Mo2Ti
PTFE
PTFE
Q941F-16R
CF8M
316
PTFE
PTFE
Q941F-25C
Q941F-25R
Q941F-40C
Q941F-40R
Q941F-64C
Q941F-64R
Q941F-16P
CF8
304
PTFE
PTFE
Q941F-16I
合金钢
不锈钢
PTFE
PTFE
Q941F-25P
Q941F-25I
Q941F-40P
Q941F-40I
Q941F-64P
Q941F-64I
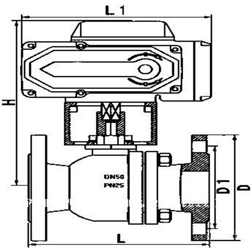
电动执行器技术参数
电动球阀阀体参数
电 源
AC110、220、380V/DC24、220V
公称通径
DN15~200mm
输出力矩
50N·M~2000N·M
公称压力
PN1.6、2.5、4.0、6.4、10MPa
任选功能
开关型、触点型、开度信号、智能调节型
阀轴材质
碳钢、不锈钢
动作范围
0~90°(±5°)
阀体材质
碳钢、304/316/316L不锈钢
动作时间
15秒 / 30秒 / 60秒
球体材质
304/316/316L不锈钢
环境温度
-30℃~+60℃
阀座密封
PTFE、PPL、金属密封
手动操作
附带手柄操作
温 度
PTFE≤180℃、PPL≤350℃、金属密封≤450℃
限 位
电气、机械二重限位
适用介质
水、石油、粘性流体、浆料、强氧化性介质等
防护等级
IP-67(防爆外壳:Exd Ⅱ BT4 IP67可选)
输入信号
0-10,1-5VDC / 4-20mA(智能调节型)
特 点
连线简单,结构紧凑、阻力小、动作稳定
公称通径DN
L
L1
W
H
D
D1
额定功率
额定电流
压力
1.6/2.5
1.6/2.5
1.6/2.5
1.6/2.5
1.6/2.5
1.6/2.5
15
130
119
110
256
95
65
15W
0.1A
20
140
119
110
260
105
75
15W
0.1A
25
150
155
132
266
115
86
15W
0.2A
32
165
155
132
270
136
100
15W
0.2A
40
180
208
165
312
146
110
25W
0.5A
50
200
208
165
325
160
125
25W
0.5A
65
220
208
165
336
180
145
25W
0.5A
80
250
256
211
365
195
160
50W
0.8A
100
280
256
211
400
215/230
180/190
90W
1.0A
125
320
256
211
420
245/270
210/220
90W
1.0A
150
360
288
235
440
280/300
240/250
120W
1.2A
200
400
288
235
470
335/360
295/310
150W
1.2A

外形精巧美观,采用四氟密封,具有磨擦系数低、操作力矩小、泄露量高可达零泄露等优点,适应范围更广。电动法兰球阀配用的CHR系列执行机构可直接接收计算机或工业仪表等输出的4~20mADC或1~5VDC控制信号,根据阀位反馈信号与设定值比较偏差对执行机构驱动电机进行智能步距调整(PID调节),以实现与执行机构配套的阀门或其他装置开度的定位,同时输出4~20mADC的位置反馈信号。以上所述仅为本实用新型的优选实例而已,并不用于限制本实用新型,尽管参照前述实施例对本实用新型进行了详细的说明,对于本领域的技术人员来说,其依然可以对前述各实施例所记载的技术方案进行修改,或者对其中部分技术特征进行等同替换。凡在本实用新型的精神和原则之内,所作的任何修改、等同替换、改进等,均应包含在本实用新型的保护范围之内。

安装前的准备:
1、安装前,球阀前后的管线必须已经准备好。前后管道必须同轴。如果是法兰连接,两法兰密封面必须平行。应保证管道应能承受球阀的重量,否则管道上必须配有适当的支撑。
2、必须把球阀前后的管线吹扫干净,清除管道内部的油污、焊渣和一切其它杂物,看清楚在保存时为方便起见取出的石棉填料有没有重新装进去,填紧压实。
3、核对球阀的标志和参数,检查球阀是否完好无损。将球阀全开全闭数次以保证其工作正常。
4、如果是法兰连接的球阀,要拆去球阀两端连接法兰上的保护件。如果是其他的连接方式,也应去除其保护件。
5、检查阀孔清除可能有的污物,然后清洗阀孔。但在安装前要保证水分已被完全干燥,污物全部都被清除。阀座与球之间即使仅有微小颗粒的异物也可能会损伤阀座密封面。

安装时的注意事项
1、把球阀装上管线。双向球阀的任何一端都可装在上游端。用手柄驱动的球阀可安装在管道上的任意位置。但带有齿轮箱或气动驱动器的球阀应直立安装,即安装在水平管道上,且驱动装置处于管道上方。保证驱动装置的正常运行。
2、如果是法兰连接,球阀两端的法兰与管线法兰间必须按照管路设计要求装上密封垫。法兰上的螺栓需对称、逐次、均匀拧紧。但不可过于用力,以防脱丝。
3、如果球阀采用的驱动方式是气动的,要连接气动管线(采用气动驱动器时)。
4、安装后一定要仔细检查气密的严密性。为保证气动装置的严密性,需做到以下两点。
5、操作驱动器启、闭球阀数次,应灵活无滞涩,证明其工作正常。
6、按管路设计要求对管道与球阀间的法兰结合面进行密封性能检查。

球阀使用注意事项:
1、球阀要留有阀柄旋转的位置
2、球阀不能用作节流。
3、球阀带传动机构的球阀应直立安装。
球阀的安装步骤
1、取掉法兰端两边的保护盖,在阀完全打开的状态下进行冲洗清洁。
2、安装前应按规定的信号(电或气)进行整机测试(防止因运输产生振动影响使用性能),合格后方可上线安装(接线按电动执行机构线路图)。
3、准备与管道连接前,须冲洗和清除干净管道中残存的杂质(这些物质可能会损坏阀座和球)。
4、在安装期间,请不要用阀的执行机构部分作为起重的吊装点,以避免损坏执行机构及附件。
5、本类阀应安装在管道的水平方向或垂直方向。
6、安装点附近的管道不可有低垂或者承受外力的现象,可以用管道支架或者支撑物来消除管线的偏离。
7、与管道连接后,请用规定的扭矩交叉锁紧法兰连接螺栓。

球阀的操作和使用
1、操作前须确认管路和阀已被冲洗过。
2、阀的操作按执行机构输入信号大小带动阀杆旋转完成:正向旋转1/4圈(90°)时,阀关断。反向旋转1/4圈(90°)时,阀开启。
3、当执行机构方向指示箭头与管线平行时,阀门为开启状态;指示箭头与管线垂直时,阀门为关闭状态。

订货须知:
一、①产品名称与型号②口径③是否带附件以便我们的为您正确选型④的使用压力⑤的使用介质的温度。
二、若已经由设计单位选定公司的型号,请按型号直接向我司销售部订购。
三、当使用的场合非常重要或环境比较复杂时,请您尽量提供设计图纸和详细参数,由我们的阀门公司专家为您审核把关。如有疑问:请:我们一定会尽心尽力为您提供优质的服务。提供全面、*的“阀门系统解决方案",也十分愿意帮助用户解决生产中所遇到的难题。 -
联系方式
- 联系人:申弘阀门
- 电 话:021-59260058
- 手 机:15901754341
- 传 真:86-021-31662735
- 邮 箱:494522509@qq.com
- 邮 编:201718
- 地 址:上海市青浦区金泽工业园区
- 网 址: https://bengye.cn.goepe.com/
http://www.021-fm.com
-
产品搜索






