-
申弘三通切换球阀Q45F
详细信息| 询价留言Q45F三通切换球阀简介
本实用新型是一种三通球阀密封结构,属于阀体技术领域。本实用新型提供一种三通球阀密封结构,包括阀体、侧阀盖、碟形弹簧、金属支撑圈、密封副、钢球、阀杆、下填料以及上填料,碟形弹簧装配在侧阀盖内部右端,碟形弹簧右侧的侧阀盖内部设置有金属支撑圈,金属支撑圈环形侧面开设有环形凹槽,金属支撑圈内部装配有密封副,且密封副右表面与钢球左端紧密接触,钢球装配在阀体内部,阀杆下端安装有钢球上端,阀体上端开设有装配孔,阀杆上端穿过装配孔,并延伸至阀体上侧,阀杆与装配孔之间装配有下填料,下填料上侧的阀杆与装配孔之间设置有上填料,该设计提高了本装置的密封性能,本实用新型使用方便,结构合理,密封效果好,可靠性高。

背景技术:
三通球阀有T型和L型。T型能使三条正交的管道相互联通和切断第三条通道,起分流、合流作用。L三通球阀型只能连接相互正交的两条管道,不能同时保持第三条管道的相互连通,只起分配作用,三通球阀在使用过程中需要保持良好的密封性能,从而达到使用要求。
现有技术中,三通球阀在使用过程中密封性不足,容易产生泄漏的情况,使用效果不佳,所以需要一种三通球阀密封结构以解决上述出现的问题。有T型和L型。T型能使三条正交的管道相互联通和切断第三条通道,起分流、合流作用。L型只能连接相互正交的两条管道,不能同时保持第三条管道的相互连通,只起分配作用。

产品特点
1、三通球阀在结构上采用一体化结构,4面阀座的密封型式,法兰联接少,可靠性高,设计实现了轻量化
2、三通球芯分T型和L型,使用寿命长,流通能力大,阻力小。
硬密封三通球阀类型代号:Q表示球阀;
连接形式代号:4表示法兰式;
结构形式代号:4表示L形三通、5表示T形三通;
密封面材料代号:H表示不锈钢、F表示氟塑料;
阀体压力代号:16表示十六公斤;
阀体材质代号:C表示碳钢、P表示不锈钢304、R表示不锈钢316;
Q44/Q45三通球阀相关型号:Q44F-16C、Q44F-16P、Q44H-16C、Q44H-16P、Q44H-16R、Q45H-16C、Q45H-16P、Q45H-16R、Q45F-16C、Q45F-16P

Q45F三通切换球阀技术实现要素:
针对现有技术存在的不足,本实用新型目的是提供一种三通球阀密封结构,以解决上述背景技术中提出的问题,本实用新型使用方便,结构合理,密封效果好,可靠性高。
为了实现上述目的,本实用新型是通过如下的技术方案来实现:一种三通球阀密封结构,包括阀体、侧阀盖、O型圈、碟形弹簧、金属支撑圈、密封副、钢球、阀杆、下填料、上填料、弹片以及螺母,所述侧阀盖装配在阀体左端,所述上填料上侧的阀杆环形侧面装配有弹片,所述弹片上侧的阀杆环形侧面装配有螺母。
进一步地,所述侧阀盖设有两个,所述侧阀盖分别装配在阀体左端以及右端,且侧阀盖与阀体之间均安装有碟形弹簧、金属支撑圈以及密封副。
进一步地,所述侧阀盖通过螺栓与阀体相连接。
进一步地,所述金属支撑圈呈凹字型结构。
本实用新型的有益效果:本实用新型的一种三通球阀密封结构,因本实用新型添加了O型圈、碟形弹簧、金属支撑圈、密封副、钢球、阀杆、下填料、上填料、弹片以及螺母,该设计提高了本装置的密封性能,使用效果佳,解决了现有急速中三通球阀在使用过程中密封性不足,容易产生泄漏的情况,使用效果不佳的问题。
因本实用新型添加了螺栓,该设计便于本装置的连接,本实用新型使用方便,结构合理,密封效果好,可靠性高。

Q45F三通切换球阀参数公称压力
PN(MPa)试验压力 壳体 高压液密封 低压液密封 1.6 2.4 1.76 0.6 2.5 3.75 2.75 4.0 6.0 4.4 CLASS150 3.0 2.2 适用工况 适用介质 水、油品、气等非腐蚀介质和酸碱腐蚀介质 适用温度 -28~350℃ 应用规范 连接法兰 JB79-59 GB9113、
HG20592-97、 ANSI B16.5检验试验 JB/T 9092-99 、API598 Q45F三通切换球阀主要零件材料:
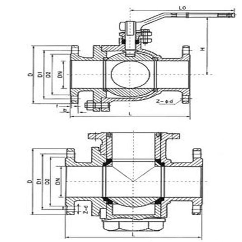
L型三通球阀连接尺寸和外形 PN1.6MPa零件名称 材质 GB ASTM 阀体、阀盖 WCB A216-WCB 密封圈 PTFE、对位聚苯 PTFE、对位聚苯 球体 1Cr18Ni9Ti SS 304 阀座、阀杆 2Cr13 A246-416 双头螺栓 35CrMoA A193-B7 型号 公称通径
DN(mm)尺寸(mm) L L2 D D1 D2 b f Z-d H W Q44F-16C
(P)
(R)15 150 72 95 65 45 14 2 4-14 95 130 20 160 80 105 75 55 14 2 4-14 110 130 25 180 90 115 85 65 14 2 4-18 120 140 32 200 100 135 100 78 16 2 4-18 144 180 40 220 110 145 110 85 16 3 4-18 152 220 50 240 120 160 125 100 16 3 4-23 182 220 65 260 130 180 145 120 16 3 4-18 193 240 80 280 140 195 160 135 20 3 8-18 217 270 100 320 160 215 180 155 20 3 8-18 245 350 125 380 190 245 210 185 22 3 8-18 282 500 150 440 220 280 240 210 24 3 8-23 319 600 200 550 260 335 295 265 26 3 12-23 380 1000 250 670 310 405 355 320 30 3 12-25 460 1400 300 720 370 460 410 375 30 3 12-25 520 1800 T型三通球阀尺寸和外形 PN1.6MPa
型号 公称通径
DN(mm)尺寸(mm) L L2 D D1 D2 b f Z-d H W Q45F-16C
(P)
(R)15 150 72 95 65 45 14 2 4-14 95 130 20 160 80 105 75 55 14 2 4-14 110 130 25 180 90 115 85 65 14 2 4-18 120 140 32 200 100 135 100 78 16 2 4-18 144 180 40 220 110 145 110 85 16 3 4-18 152 220 50 240 120 160 125 100 16 3 4-23 182 240 65 260 130 180 145 120 16 3 4-18 193 270 80 280 140 195 160 135 20 3 8-18 217 350 100 320 160 215 180 155 20 3 8-18 245 500 125 380 190 245 210 185 22 3 8-18 282 600 150 440 220 280 240 210 24 3 8-23 319 1000 200 550 260 335 295 265 26 3 12-23 380 1300 250 670 310 405 355 320 30 3 12-25 460 1700 300 720 370 460 410 375 30 3 12-25 520 2100 
以上显示和描述了本实用新型的基本原理和主要特征和本实用新型的优点,对于本领域技术人员而言,显然本实用新型不限于上述示范性实施例的细节,而且在不背离本实用新型的精神或基本特征的情况下,能够以其他的具体形式实现本实用新型。因此,无论从哪一点来看,均应将实施例看作是示范性的,而且是非限制性的,本实用新型的范围由所附权利要求而不是上述说明限定,因此旨在将落在权利要求的等同要件的含义和范围内的所有变化囊括在本实用新型内。不应将权利要求中的任何附图标记视为限制所涉及的权利要求。

请按以下指示进行安装:
(1)取掉法兰端两边的保护盖,在阀打开的状态下进行冲洗清洁。
(2)安装前应按规定的信号(电动或气动)进行整机测试(防止因运输产生振动影响使用性能),合格后方可上线安装(接线按电动执行机构线路图)。
(3)准备与管道连接前,须冲洗和清除干净管道中残存的杂质(这些物质可能会损坏阀座和球)。
(4)在安装期间,请不要用阀的执行机构部分作为起重的吊装点,以避免损坏执行机构及附件。
(5)本类阀应安装在管道的水平方向或垂直方向。
(6)安装点附近的管道不可有低垂或者承受外力的现象,可以用管道支架或者支撑物来消除管线的偏离。
(7)与管道连接后,请用规定的扭矩交叉锁紧法兰连接螺栓。

订货须知:
一、①产品名称与型号②口径③是否带附件以便我们的为您正确选型④的使用压力⑤的使用介质的温度。
二、若已经由设计单位选定公司的型号,请按型号直接向我司销售部订购。
三、当使用的场合非常重要或环境比较复杂时,请您尽量提供设计图纸和详细参数,由我们的阀门公司专家为您审核把关。如有疑问:请:我们一定会尽心尽力为您提供优质的服务。提供全面、阀门系统解决方案",也十分愿意帮助用户解决生产中所遇到的难题。 -
联系方式
- 联系人:申弘阀门
- 电 话:021-59260058
- 手 机:15901754341
- 传 真:86-021-31662735
- 邮 箱:494522509@qq.com
- 邮 编:201718
- 地 址:上海市青浦区金泽工业园区
- 网 址: https://bengye.cn.goepe.com/
http://www.021-fm.com
-
产品搜索





