-
SH气动加长杆低温焊接式球阀LNG
详细信息| 询价留言LNG气动加长杆低温焊接式球阀简介
本发明涉及顶装式球阀,特别涉及一种适用于超低温工况的顶装式球阀。随着石油、化工和燃气行业的迅速发展,尤其是液化天然气作为一种新型能源的广泛应用,导致LNG用的深冷阀门的需求量越来越大。根据国家能源战略,我国将积极参与世界油气市场的开发。由于LNG常压下的温度为,且易燃易爆,因此在设计LNG深冷阀门时,对其密封性能提出了更高的要求。具有结构紧凑、体积精小、运行可靠、流阻系数低、密封性好、维修容易、安装方便、适应性强等优点。气动球阀可配行程限位开关、电磁阀、减压阀及0.4-0.7MPa气源可实现开关操作,并送出二对无源触点信号指示阀门的开关。

目前我国的LNG阀门主要依靠进口。我国虽然已经开始了LNG阀门的研究,但主要集中在较为简单的闸阀、截止阀和止回阀上,对球阀的研究较少。球阀具有流体阻力小, 操作方便,结构简单,便于维护等优点。而随着LNG的技术应用,球阀在LNG领域的应用越来越被重视。分为低温浮动球阀和低温固定球阀两类,对于温度 高于-50℃,一般不采用长颈结构,对于温度低于-50℃的球阀,颈部长度一般 为 250mm, 或根据设计和计算确定。气动低温球阀主要用于输出液态低温介质如乙 烯、液氧、液氢、液化天然气、液化石油产品等,不但易燃易爆,而且在升温时要 气化,气化时,体积膨胀数百倍。气动低温球阀的材料非常重要,材质不合格,会 造成壳体及密封面的外漏或内漏;零部件的综合机械性能、强度和钢度满足不了使 用要求甚至断裂。导致液化天然气介质泄漏引起爆炸。气动低温球阀经特殊的低温 处理,将粗加工的零件置于冷却介质中数小时(2-6小时),以释放应力,确保材料的 低温性能,保证精加工尺寸,以防阀门在低温工况时,因温度变化造成变形而导致 的泄漏。气动低温球阀主要用于输出液态低温介质如乙烯、液氧、液氢、液化天然气、液化 石油产品管道输送中。

LNG气动加长杆低温焊接式球阀产品特点
1、承压件的材料能承受介质温度的变化而引起的膨胀、收缩,密封部位的结构在温 度变化时不会产生永久的变形。用于-100℃以下工况时,阀门零件在精加工前应进 行深冷处理,即将零件漫放在液氮箱中进行冷却,当零件温度达到-196℃时,开始 保温l-2h.然后取出箱外自然处理到常温,重复循环2次。
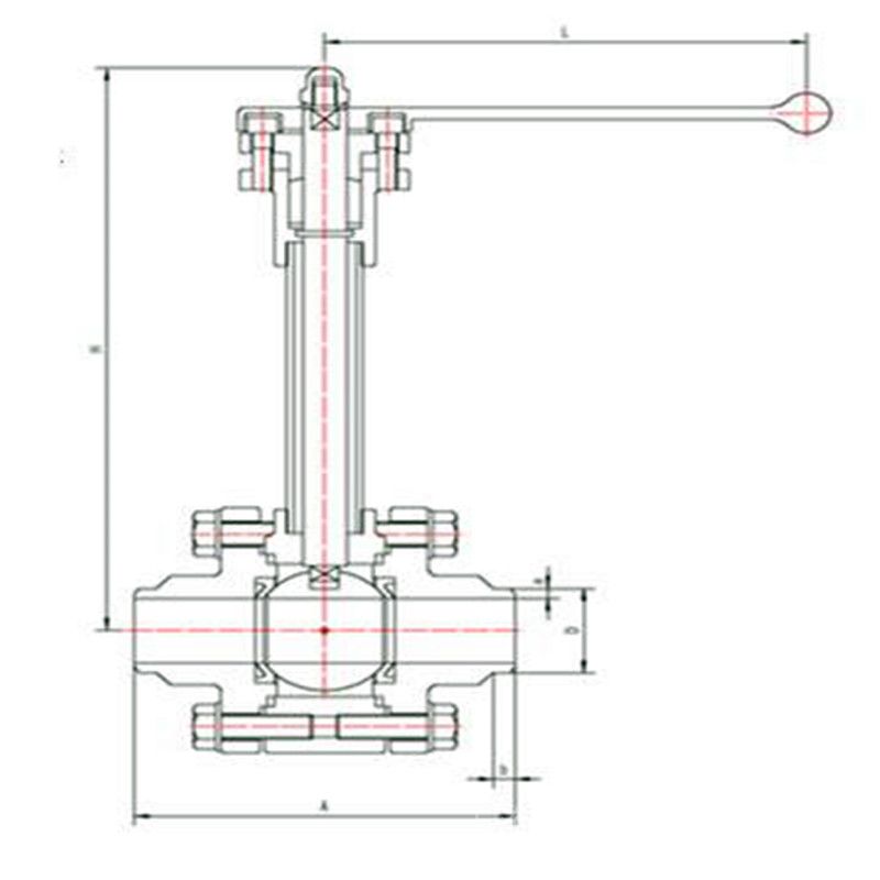
2、阀盖采用长颈结构,其目的保护填料函的功能,使填料函处于离低温较远的位 置,保证填料的密封效果。同时还可以缠绕保冷材料, 防止冷能损失。长颈的颈长 (H.见下图)可根据使用温度和保冷材料的厚度来选择不同的长度。当填料密封效果 降低时,可以从填料函中间(见组合填料结构)加入润滑脂形成油封层,降低填料函 的压差,提高密封性能。
3、使用温度低于-100℃时,阀杆材料经过镀铬或氮化处理,提高阀杆表面硬度,提 高填料密封的可靠性。
4、低温球阀具有防止异常升压结构,由于低温阀门介质气化后,其体积激剧膨胀, 压力会异常升高,当阀门中腔压力升高时,阀门中腔和进口侧连通,或在阀门进 口端安置泄压阀,保证阀门安全使用。
5、低温球阀用的垫片具有在常温下、低温状态及温度变化下能可靠密封牲和复原 性。
未来,LNG阀门的应用趋势将是球阀逐渐取代闸阀和止回阀。目前超低温阀门的内部泄露问题越来越受到人们的重视,然而球阀不像闸阀和止回阀那样,主要依靠预紧力来达到密封,当管路发生泄漏,只要将阀门的手轮向关闭的方向再关紧一下就可以达到密封。而超低温球阀则由于受低温影响产生变形,很难达到超低温下的密封效果。而目前的超低温阀门,阀座为软密封的泄漏等级要达到零泄漏,并具有防火功能的要求。又由于顶装式球阀阀体为一个整体,低温变形一致性好,顶装式球阀是低温球阀的首选。所以这就需要一种超低温工况下阀座密封可靠,安全防火,成本低的高性能顶装式超低温球阀。

发明内容
本发明为解决公知技术中存在的技术问题而提供一种在低温工况下阀座密封可靠,且安全防火的顶装式超低温球阀。本发明为解决公知技术中存在的技术问题所采取的技术方案是一种顶装式超低温球阀,包括阀体、阀座组件、阀球、阀盖组件和阀杆组件,其特征在于所述阀座组件包括阀座环和固装在阀座环上远离阀球一端的压环,所述阀座环上靠近阀球的一端上设有*安装槽,在安装槽内嵌装有密封圈,所述阀座环上设有压紧密封圈内圈对其进行固定的翻边,所述阀座环上设有*台肩和第二台肩,所述*台肩与阀体之间设有支撑套和弹簧盘,所述弹簧盘内嵌装有压簧,所述第二台肩与阀体、压环形成环形密封腔,在环形密封腔内安装有弹簧蓄能圈;所述阀座环与阀体的配合面之间设有防火结构,所述防火结构由设在阀座环上或阀体上的第二安装槽及安装在该安装槽内的防火件构成。本发明还可以采取的技术方案为所述防火件为石墨环。所述压环上设有与阀座环的端部相配合的台肩孔,所述阀座环与压环通过沿轴向的螺钉可拆卸式连接。本发明具有的优点和积极效果是

I.阀座环采用翻边将密封圈固定在*安装槽内,确保了即使在超低温工况下,密封圈仍能被牢牢地固定在阀座环内,从而避免了由于低温变形对阀座的影响,确保了阀座与阀球配合的密封性。
2.由阀体、压环及阀座环形成环形密封腔及设在其内的弹簧蓄能圈,确保了在低温工况下,当介质进入到环形密封腔内时,由于弹簧的补偿作用,使阀座环与阀体的结合部位具有可靠的密封。
3.由第二安装槽和防火件构成防火结构,使阀门具有了安全防火的功能。综上,本顶装式超低温球阀阀座密封可靠,安全防火,且具有易于加工,成本低的特点。

LNG气动加长杆低温焊接式球阀性能参数公称通径 DN(mm) 6-100 公称压力 PN(MPa) 1.6 公称压力 PS(MPa) 强度试验 2.4 密封试验 1.8 材料 材料代号 C P R 主要零件 阀体 WCB CF8 304 CF8M 316 球体 WCB CF8 304 CF8M 316i 阀杆 2Cr13 0Cr18Ni9Ti 0Cr17NiMo2 密封圈 增强聚四氟乙烯 对位聚苯 填料 聚四氟乙烯 柔性石墨 适用工况 适用介质 水、蒸汽、油品 硝酸类 醋酸类 适用温度 -196 ℃ -300 ℃ 气动装置 型号 OBD 系列 气源压力 0.4-0.7MPa 执行标准 设计制造 结构长度 法兰尺寸 压力温度 试验检验 GBT/12238 Gb12221 / GB/T13927 GB13927 执行器型号 GT、AT、AR、AW系列单双作用气动执行器 供气压力 0.4~0.7MPa 气源接口 G1/4"、G1/8"、G3/8"、G1/2" 环境温度 -30~+70℃ 作用形式 单作用执行机构:气关式(B)--失气时阀位开(FO);气开式(K)--失气时阀位关(FC)
双作用执行机构:气关式(B)--失气时阀位保持(FL);气开式(K)-- 失气时阀位保持(FL)可配附件 定位器、电磁阀、空气过滤减压器、保位阀、行程开关、阀位传送器、手轮机构等 产品型号
DQ661F-100P低温球阀
重量
(kg)
产品代号
通径
DN(mm)
尺寸(mm)
A
b
D
a
H
L
611Q15AB2A3
15
165
10
18
2
207
160
3.4
611Q20AB2A3
20
190
12
25
2.5
239
180
4.3
611Q25AB2A3
25
216
12
32
2.5
254
200
5.6
611Q32AB2A3
32
229
12
38
3
280
200
10.7
611Q40AB2A3
40
241
12
48
3.5
292
250
15.1
611Q50AB2A3
50
292
15
57
3.5
322
320
21.2
611Q65AB2A3
65
330
15
76
4
354
320
26.7
611Q80AB2A3
80
356
15
89
4
375
360
53.3
611Q100AB2A3
100
406
15
108
4
420
360
74.4

本发明通过阀座环上的翻边结构固定密封圈,通过环形密封腔和弹簧蓄能圈来密封阀座和阀体,同时在阀体和阀座环之间设置防火结构,从而确保超低温工况下,阀座与阀球配合的密封性,阀座环与阀体的结合部位具有可靠的密封及阀门的安全防火功能。
维修保养:
1、阀门应存干燥通风的室内,通路两端须密封。
2、长期存放的阀门应定期检查,清除污物,并在加工面上涂防锈油。
3、安装后,应定期进行检查,主要检查项目:
(1)密封面磨损情况。
(2)阀杆和阀杆螺母的梯形螺纹磨损情况。
(3)填料是否过时失效,如有损坏应及时更换。
(4)阀门检修装配后,应进行密封性能试验。

订货须知:
一、①产品名称与型号②口径③是否带附件以便我们的为您正确选型④的使用压力⑤的使用介质的温度。
二、若已经由设计单位选定公司的型号,请按型号直接向我司销售部订购。
三、当使用的场合非常重要或环境比较复杂时,请您尽量提供设计图纸和详细参数,由我们的阀门公司专家为您审核把关。如有疑问:请:我们一定会尽心尽力为您提供优质的服务。提供全面、阀门系统解决方案",也十分愿意帮助用户解决生产中所遇到的难题。 -
联系方式
- 联系人:申弘阀门
- 电 话:021-59260058
- 手 机:15901754341
- 传 真:86-021-31662735
- 邮 箱:494522509@qq.com
- 邮 编:201718
- 地 址:上海市青浦区金泽工业园区
- 网 址: https://bengye.cn.goepe.com/
http://www.021-fm.com
-
产品搜索






