-
申弘电动固定式衬氟球阀Q947F
详细信息| 询价留言Q947F电动固定式衬氟球阀 简介
本实用新型涉及一种球阀,特别涉及一种用于氯碱化工行业输送氯碱等强腐蚀介质的全衬球阀。本实用新型涉及一种具有密封件保护功能的衬氟球阀,包括阀体、衬氟球体、阀杆及主阀座,阀体内设置有流道,阀杆控制衬氟球体动作构成流道切断及联通,主阀座安装于流道并与衬氟球体密封配合,流道设置有与罐车联通的内联端及与外界联通的外联端,还包括设置于流道并位于内联端与衬氟球体之间的颗粒物料密封件及操作件,颗粒物料密封件在操作件控制下相对流道具有流通的*状态及切断的第二状态。采用上述方案,本实用新型提供一种避免因颗粒物料造成衬氟启闭件及阀座损伤的具有密封件保护功能的衬氟球阀。

是由电动执行机构和O型衬氟球阀组成。阀体内腔及球芯均采用高压注塑工艺衬有耐腐蚀、耐老化的聚全氟乙炳烯,故具有可靠的耐腐蚀性和密封性。电动衬氟球阀主要用于对销售过程中酸碱等强腐蚀介质的调节或切断。电动执行机构内置伺服系统,无须另配伺服放大器,输入4-20mA信号及220VAC/380V电源即可控制运转。
电动衬氟球阀特点:
1、采用FEP衬里层的衬氟球阀,具有极高的化学稳定性,可以适用除“熔融碱金属和元素氟”,以外其它任何强腐蚀性质。
2、衬氟球阀采用全通径、浮动球结构,阀门可在整个压力范围内进行无泄漏关闭,更便于管路系统的通球扫线和管路维护。
3、启闭件球件与阀杆铸(锻)为一体,杜绝了由于压力变化引起阀杆冲出承压件内的可能性,从根本上保证了工程中的使用安全性。
4、衬氟球阀结构紧凑合理,阀体内腔空间*小,减小了介质滞留,另外,特殊的模压工艺,使密封面致密度良好,加之人字环形PTFE填料组合,使阀门达到零泄漏。
5、两片式、三片式结构可适应各种不同要求的管路系统和工况条件,其中三片式球阀允许主阀体与两侧阀体分离,可实现在线快速更换、维修。

背景技术:
目前,公知的球阀一般由阀体、阀盖、阀杆、球体及填料函等主要部件组成,在用于氯碱化工输送氯碱等强腐蚀介质时,阀内与输送介质接触部分一般会开设凹槽,槽内填充有耐腐蚀材料,以防球阀被腐蚀而泄漏。为增强安全性,氯碱专用全衬球阀往往还会在阀体与阀盖之间设置密封圈,以增强密封性质,防止介质泄漏。但是,实际使用时,易发生密封圈与球体之间粘着磨损而导致泄漏的问题。针对现有球阀使用的若干缺陷,不少单位和个人提出了一些新的改进方案。

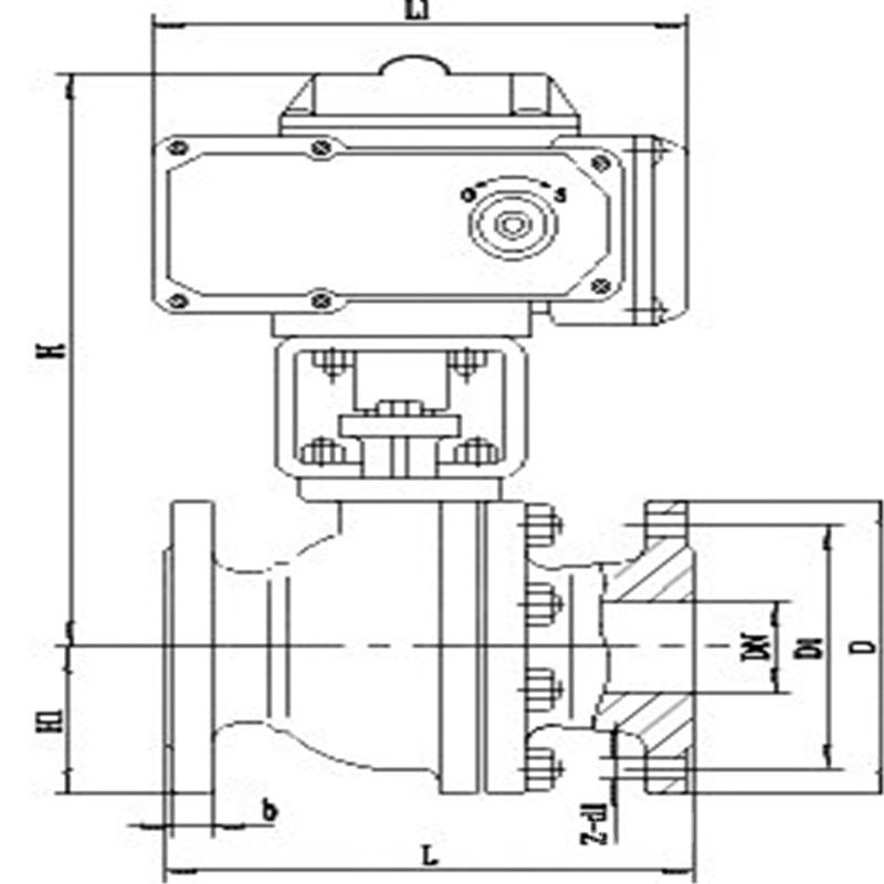
Q947F电动固定式衬氟球阀主要零件材料
零件名称 材料 阀体、阀盖 WCB+F46 304(CF8)+F46 316(CF8M)+F46 316L(CF3M)+F46 球体 2Cr13+氮化处理+46 304+46 316+46 316L+46 阀杆 2Cr13+46 304+46 316+46 316L+46 阀座密封圈 PTFE、碳素纤维+PTFE 密封填料 V型聚四氟乙烯填料 设计规范
设计与制造 GB12237-89、API608、API 6D、JPI 7S-48、BS5351、DIN3357 法兰尺寸 JB/T74~90、GB9112~9131、HGJ44~76、SH3406、ANSI B16.5、JIS B2212~2214、DIN2543 结构长度 GB12221-89、ANSI B16.10、JIS B2002、NF E29-305、DIN3202 检验与试验 JB/T 9092、API 598、GB/T13927 技术参数
公称通径(mm) 15 20 25 32 40 50 65 80 100 125 150 200 250 300 公称压力(MPa) PN1.0、1.6MPa 泄漏量 软密封:零泄漏 阀体形式 两段式阀体(浮动球体) 两段式阀体(固定球体) 阀芯形式 "O"型球形阀芯 密封填料 聚四氟乙烯(PTFE) 连接形式 法兰 可调范围 DN15-65 DN80-300 250:1 350:1 基本误差 ±1% 死区 ≤1% 回差 ≤1% 适用温度 密封面 PTFE≤180℃ 配置执行机构 可配PSQ、HQ、361RS、CH等系列角行程电动执行机构 控制方式 开关到位灯(开关两位控制)、智能调节(4~20mA模拟量信号控制) 
执行机构参数执行器类别 CH系列执行器参数 HQ系列执行器参数 电源电压 标准:220V AC单相 可选:110V AC 单相、380/440V AC 三相、24V/110V/220V AC 输出力矩 50N·M~2000N·M 50N·M~3000N·M 动作范围 0~90° 0~360° 0~90°、0°~270°可选 控制方式 开关到位灯(开关两位控制)、无源触点信号、1/5K电位计、智能调节(4~20mA模拟量信号控制) 动作时间 15秒/30秒/60秒 18S~112S 保护装置 过热保护 内置过热保护、过载保护 环境温度 -30°~60° -20℃~+70℃ 手动操作 同附带手柄操作 机械离合机构,配手轮操作 机械限位 电气、机械二重限位 2个外部调整螺栓 防护等级 IP65 IP65、IP67、可定制IP68 防爆等级 无防爆 ExdⅡ BT4,ExdⅡ CT6 位置测量 可选装开关或电位计 电位计、比例控制单元 驱动电机 8W/E 鼠笼式异步电机 进线接口 PE1/2〞进线线锁 2个 PF 3/4" 壳体材料 铝合金 钢,铝合金,铝青铜,聚碳酸脂 外涂层 干粉,环氧聚酯,具有超强防腐功能 采用独特的电制动线路,因而定位精度高,执行机构灵敏,启动停止迅速,运行平稳。同时具有抗干扰、抗浪涌电压、防击穿能力强的特点 执行器技术参数:
电源电压
AC220/380V,50/60Hz
输出力矩
HR:50N·M~2000N·M;HQ:50N·M~3000N·M
动作范围
0~90° 0~360°
动作时间
15秒/30秒/60秒
保护装置
过热保护
环境温度
-30°~60°
手动操作
同附件带手柄、手轮
限位
电气、机械二重限位
防护等级
相当于IP-65
防爆等级
ExdII BT4;其他要求可定制ExdII BT6
位置测量
可选装开关或电位计
驱动电机
8W/E
进线接口
PE1/2〞进线线锁
公称通径
标准值
参考值
DN(mm)
NPS(inch)
L
D
D1
D2
f
b
n-Φd
W
H
PN1.6(MPa)
15
1/2
140/130
95
65
45
2
14
4-Φ14
231
350
20
3/4
140/130
105
75
55
2
16
4-Φ14
231
370
25
1
150/1340
115
85
65
2
16
4-Φ14
231
375
32
11/4
165
135
100
78
2
18
4-Φ18
231
385
40
11/2
180/165
145
110
85
3
18
4-Φ18
231
390
50
2
200/203
160
125
100
3
20
4-Φ18
231
435
65
21/2
220/222
180
145
120
3
20
4-Φ18
261
460
80
3
250/241
195
160
135
3
22
4-Φ18
261
465
100
4
280/305
215
180
155
3
24
8-Φ18
285
612
125
5
320/356
245
210
185
3
26
8-Φ18
285
625
150
6
360/394
280
240
210
3
28
8-Φ23
325
700
200
8
457
335
295
265
3
30
8-Φ23
325
740

本实用新型进一步设置为:所述的颗粒物料密封件为闸板,所述的操作件包括伸缩座、伸缩丝杆及伸缩转盘,所述的伸缩座安装于阀体,所述的伸缩座设置有与流道联通并供闸板直线运动的伸缩腔,所述的伸缩丝杆沿闸板移动方向设置于伸缩腔并与闸板联动配合,所述的伸缩转盘转动设置于伸缩座并与伸缩丝杆呈螺纹配合。
Q947F电动固定式衬氟球阀进行维修保养。
1、只有卸除衬氟球阀前后的压力,才能对衬氟球阀进行拆卸分解操作。
2、在对衬氟球阀的分解与再装配过程,需要对有密封性零部件的保护,特别是非金属零部件,像O型圈等部件*好使用专用的工具。
3、衬氟球阀阀体重新装配时螺栓必须对称、逐步、均匀地拧紧。
4、清洗剂应与衬氟球阀中的橡胶件、塑料件、金属件及工作介质等均相容。工作介质为燃气时,可用汽油(GB484-89)清洗金属零件。非金属零件用纯净水或酒精清洗。
5、分解下来的单个零件可以用浸洗方式清洗。尚留有未分解下来的非金属件的金属件可采用干净的细洁的浸渍有清洗剂的绸布(为避免纤维脱落粘附在零件上)擦洗。清洗时须去除一切粘附在壁面上的油脂、污垢、积胶、灰尘等。
6、非金属零件清洗后应立即从清洗剂中取出,不得长时间浸泡。
7、清洗后需待被洗壁面清洗剂挥发后(可用未浸清洗剂的绸布擦)进行装配,但不得长时间搁置,否则会生锈、被灰尘污染。
8、衬氟球阀新零件在装配前也需清洗干净。
9、使用润滑脂润滑。润滑脂应与衬氟球阀金属材料、橡胶件、塑料件及工作介质均相容。工作介质为燃气时,可用例如特221润滑脂。在密封件安装槽的表面上涂一薄层润滑脂,在橡胶密封件上涂一薄层润滑脂,阀杆的密封面及摩擦面上涂一薄层润滑脂。
10、装配时应不允许有金属碎屑、纤维、油脂(规定使用的除外)灰尘及其它杂质、异物等污染、粘附或停留在零件表面上或进入衬氟球阀内腔。

通过采用上述技术方案,作为颗粒物料密封件的其中一种实施方式,闸板具有流动阻力小,启闭省力,制造工艺性好,水锤现象不易产生的特点,工作人员旋转伸缩转盘,带动与其螺纹配合的伸缩丝杆轴向移动,即调节闸板与流道的位置关系,此外,还可根据需求,升降不同高度实现控制流量大小的功能。
订货须知:
一、①产品名称与型号②口径③是否带附件以便我们的为您正确选型④的使用压力⑤的使用介质的温度。
二、若已经由设计单位选定公司的型号,请按型号直接向我司销售部订购。
三、当使用的场合非常重要或环境比较复杂时,请您尽量提供设计图纸和详细参数,由我们的阀门公司专家为您审核把关。如有疑问:请:我们一定会尽心尽力为您提供优质的服务。提供全面、“阀门系统解决方案",也十分愿意帮助用户解决生产中所遇到的难题。 -
联系方式
- 联系人:申弘阀门
- 电 话:021-59260058
- 手 机:15901754341
- 传 真:86-021-31662735
- 邮 箱:494522509@qq.com
- 邮 编:201718
- 地 址:上海市青浦区金泽工业园区
- 网 址: https://bengye.cn.goepe.com/
http://www.021-fm.com
-
产品搜索





