-
申弘电动衬氟塑料球阀Q941F
详细信息| 询价留言Q941F电动衬氟塑料球阀 简介
电动衬氟球阀的工作原理是通过远程控制柜对阀门进行控制,通电的电动球阀根据电信号进行90度的主旋转动作。电动球阀它具有旋转90度的动作,旋塞体为球体,有圆形通孔或通道通过其轴线。电动球阀在管路中主要用来做切断、分配和改变介质的流动方向,它只需要用旋转90度的操作和很小的转动力矩就能关闭严密。
真空衬氟球阀(工作压力低于标准大气压),它的启闭件是一个球体,利用球体绕 阀杆的轴线旋转90°实现开启和关闭的目的。球阀在管道上主要用于切断、分配和改变介 质流动方向。Q41F46系列衬氟球阀是为各种强腐蚀性介质管路的启闭控制而设计的,广泛适 用于石油、化工、染化、农药、制酸制碱等行业,是目前防腐阀门设备*理想的选择之一。

Q41F46系列衬氟球阀采用氟塑料衬里,壳体采用熔模精密铸造,强度高、外观光洁,与液体 接触部分全部为氟塑料,因此可在_29°C 180°C范围内长期使用于任意浓度的腐蚀性管 路、管线工作。工作原理Q41F46-16C系列衬氟球阀的工作原理是靠旋转手柄来使阀门畅通或闭塞的,手 柄和阀体内侧全部采用氟塑料制成,其具有开关轻便,体积小,密封可靠,结构简单,维修方 便,使用范围广等优点。
Q941F电动衬氟塑料球阀设计特点
球阀基本系列为Q41F46型,除具有一般球阀所具有的流体阻力小,启闭速度快, 结构简单外,还有以下优点采用氟塑料衬里层的球阀,具有极高的化学稳定性,可以适用于任何强腐蚀性化 学介质;采用全通径、浮动球结构,阀门可在整个压力范围内进行无泄漏关闭,更便于管路 系统的通球扫线和管路维护;启闭件球体与阀杆铸(锻)为一体,杜绝了由于压力变化引起阀杆冲击承压件内 的可能性,从根本上保证了工程中的使用安全性;结构紧凑合理,阀体内腔空间*小,减小了介质滞留,另外,特殊的模压工艺,使 密封面致密度良好,加之人字环形PTFE填料组合,使阀门达到零泄漏;为了使衬氟球阀的优点能够更加凸现,将它应用于真空中系统,但是普通衬氟球 阀用于真空系统中时,由于衬氟阀门的使用温度的限制加上自身的特性,就会满足不了要 求。衬氟阀门在真空系统中,衬料在大气压力下与高的温度共同作用下会移位,变形, 有的情况下会完全被吸出,从而使阀门失去了应有的作用。

实用新型内容
本实用新型的目的是设计一种真空衬氟球阀,以克服现有技术中的不足,在真空 条件下可以正常使用。本实用新型采用的技术方案为一种真空衬氟球阀,包括阀体、球体、阀杆、手柄和 衬氟,球体与阀杆相连并通过阀杆安装在阀体中,手柄与阀杆相连接,衬氟安装在阀体内通 径上,其特征在于所述的阀体通径上设有螺旋槽,所述的阀体通径内设有圆筒网。所述的圆筒网的材质为316L不锈钢。上面设有大小相同的孔,所述的圆筒网的长度是从 法兰口到阀座台阶。所述的圆筒网与衬氟一同安装在阀体上。与现有技术相比,本实用新型的优点和有益效果为
1、采用本实用新型技术方案,结构紧凑合理,阀体内腔空间*小,减小了介质滞 留;
2、采用本实用新型技术方案,将通径表面开螺旋槽,衬料在受到横向力的时候,螺 旋槽增加了衬料与阀体的摩擦力,不会使衬料移动与被吸出;
3、采用本实用新型技术方案,由于在阀体内表面增加了材质为316L不锈钢的网, 在真空系统中衬料不会变形。

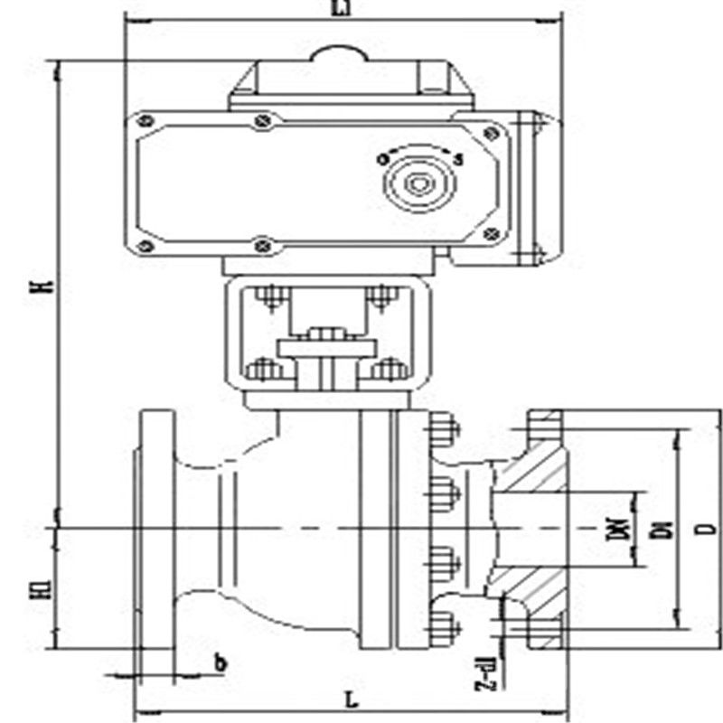
Q941F电动衬氟塑料球阀技术参数:
公称通径(mm)
15
20
25
32
40
50
65
80
100
125
150
200
250
300
公称压力(MPa)
PN1.0、1.6MPa
泄漏量
软密封:零泄漏
阀体形式
两段式阀体(浮动球体)
两段式阀体(固定球体)
阀芯形式
“O”型球形阀芯
密封填料
聚四氟乙烯(PTFE)
连接形式
法兰
可调范围
DN15-65
DN80-300
250:1
350:1
基本误差
±1%
死区
≤1%
回差
≤1%
适用温度
密封面
PTFE≤180℃
配置执行机构
可配PSQ、HQ、361RS、HR等系列角行程电动执行机构
控制方式
开关到位灯(开关两位控制)、智能调节(4~20mA模拟量信号控制)
执行器技术参数:
电源电压
AC220/380V,50/60Hz
输出力矩
HR:50N·M~2000N·M;HQ:50N·M~3000N·M
动作范围
0~90° 0~360°
动作时间
15秒/30秒/60秒
保护装置
过热保护
环境温度
-30°~60°
手动操作
同附件带手柄、手轮
限位
电气、机械二重限位
防护等级
相当于IP-65
防爆等级
ExdII BT4;其他要求可定制ExdII BT6
位置测量
可选装开关或电位计
驱动电机
8W/E
进线接口
PE1/2〞进线线锁
主要设计标准:
设计与制造
GB12237-89、API608、API 6D、JPI 7S-48、BS5351、DIN3357
法兰尺寸
JB/T74~90、GB9112~9131、HGJ44~76、SH3406、ANSI B16.5、JIS B2212~2214、DIN2543
结构长度
GB12221-89、ANSI B16.10、JIS B2002、NF E29-305、DIN3202
检验与试验
JB/T 9092、API 598、GB/T13927
主要零部件材料表
序号
零件名称
材料名称
Q941F46-Z
Q941F46-C
Q941F46-P
Q941F46-R
Q941F46-PL
Q941F46-RL
1
阀体/阀盖
HT250
WCB
CF8
CF8M
CF3
CF3M
2
球体/阀杆
WCB
WCB
CF8
CF8M
CF3
CF3M
3
内衬材料
FEP(F46)、PCTFE(F3)、PTFE(F4)、PFA(可溶性聚四氟乙烯)、PO(聚烯烃)
4
填料压盖
HT250
WCB
CF8
CF8M
CF3
CF3M
5
填料
PTFE(F4)聚四氟乙烯
6
螺栓
35
35
1Crl7Ni2
1Crl7Ni2
1Cr18Ni2
1Cr18Ni2
7
紧固螺母
45
45
OCrl8Ni9
OCrl8Ni9
0Cr18Ni9
0Cr18Ni9
三、电动执行器主要技术参数表
电动执行器型号
DSR-05
DSR-10
DSR-20
DSR-40
DSR-60
DSR-100
DSR-200
输出力矩
50N.M
100 N.M
200 N.M
400 N.M
600 N.M
1000 N.M
2000 N.M
动作范围
0~90°
额定电流
0.15A
0.3A
0.45A
0.7A
0.7A
0.85A
0.85A
绝缘电阻
100M/DC500V
电源
AC110/220/380V DC24V
电机功率
8W/E
23 W/E
45 W/E
90 W/E
90 W/E
120 W/E
120 W/E
选配阀门
15-25
15-65
80-100
100-125
125-150
150-200
200-250
执行器重量
2.6Kg
4.2 Kg
7.9 Kg
8.7 Kg
9 Kg
14.7 Kg
15 Kg
所配阀门压力为1.6MPa
公称通径
DN(mm)
公称压力
PN(MPa)
主要尺寸(mm)
L
D
D1
D2
f
b
Z-φd
15
1.6
140
95
65
45
2
14
4-φ14
20
140
105
75
55
2
16
4-φ14
25
150
115
85
65
2
16
4-φ14
32
165
135
100
78
2
18
4-φ18
40
180
145
110
85
3
18
4-φ18
50
200
160
125
100
3
20
4-φ18
65
220
180
145
120
3
20
4-φ18
80
250
195
160
135
3
22
8-φ18
100
280
215
180
155
3
24
8-φ18
125
320
245
210
185
3
26
8-φ18
150
360
280
240
21O
3
28
8-φ23
200
457
335
295
265
3
30
12-φ23
250
533
405
355
320
3
32
12-φ25
300
610
460
410
375
4
34
12-φ25
350
686
520
470
435
4
38
16-φ25
400
762
580
525
485
4
40
16-φ30

摘要本实用新型一种真空衬氟球阀涉及球阀技术领域,该真空衬氟球阀,包括阀体、球体、阀杆、手柄和衬氟,球体与阀杆相连并通过阀杆安装在阀体中,手柄与阀杆相连接,衬氟安装在阀体内通径上,其特征在于所述的阀体通径上设有螺旋槽,所述的阀体通径内设有圆筒网,所述的圆筒网的材质为316L不锈钢,所述的圆筒网的厚度为2mm,上面设有大小相同的孔,所述的圆筒网的长度是从法兰口到阀座台阶,所述的圆筒网与衬氟一同安装在阀体上,采用本实用新型技术方案,阀体结构紧凑合理,阀体内腔空间*小,减小了介质滞留,螺旋槽增加了衬料与阀体的摩擦力,不会使衬料移动与被吸出,阀体内材质为316L不锈钢的网,在真空系统中使衬料不会变形。

Q941F电动衬氟塑料球阀安装
1、电动装置的安装形式无原则要求,但电机处于水平状态,电气箱盖处于水平或垂直向上状态为推荐安装形式,有利于润滑、调试、维护和手动操作;
2、安装时要保证维修检查人员拆卸各部件所需的空间;
3、衬氟球阀连接的螺栓不得低于8级。
4、当需要拆卸时,先将手动手轮旋转数圈,在阀门稍开状态下进行;
5、安装、拆卸、调试时不可损伤密封面、密封件和防爆型电装的防爆面,应在隔爆面上涂防锈油,电气罩盖应盖严紧固,以防雨水或潮气进入。
6、视窗不可以与硬物碰撞。
7、电动装置为短时工作制,持续工作时间不得超过铭牌标定时间。
8、电动衬氟球阀阀门不使用时,应定期检查保养并操作运行,建议每月至少一次,运行时间不超过10分钟。
电动执行机构和衬氟球阀组成,由于该阀内腔及球体均采用高压注塑工艺,衬有耐腐蚀、耐老化的聚四氟乙丙烯(简称F46),故具有可靠的耐腐蚀性和密封性。执行机构能提供足够的转距,保证阀的可靠开、闭,并带有自动复位的离合器,失电时可自动复位。内置阀位反馈装置可实现阀位信号的传递和远程控制。

订货须知:
一、①产品名称与型号②口径③是否带附件以便我们的为您正确选型④的使用压力⑤的使用介质的温度。
二、若已经由设计单位选定公司的型号,请按型号直接向我司销售部订购。
三、当使用的场合非常重要或环境比较复杂时,请您尽量提供设计图纸和详细参数,由我们的阀门公司专家为您审核把关。如有疑问:请:我们一定会尽心尽力为您提供优质的服务。提供全面、“阀门系统解决方案",也十分愿意帮助用户解决生产中所遇到的难题。 -
联系方式
- 联系人:申弘阀门
- 电 话:021-59260058
- 手 机:15901754341
- 传 真:86-021-31662735
- 邮 箱:494522509@qq.com
- 邮 编:201718
- 地 址:上海市青浦区金泽工业园区
- 网 址: https://bengye.cn.goepe.com/
http://www.021-fm.com
-
产品搜索






