-
申弘超大口径偏心半球阀PBQ340F
详细信息| 询价留言PBQ340F超大口径偏心半球阀简介
本实用新型涉及一种流体控制阀门,提供一种结构设计合理、具有双向弹性密封功能,使得水压越大密封越好,即可延长使用寿命的大口径双密封功能球阀,所述阀体的两自由端设有与管道连接的法兰盘,所述球型阀芯可转动的安装于阀体内进水口与出水口之间,所述球型阀芯内部还设有横向流水通道,所述阀杆一端穿过阀体中部上方,并与传动装置相连,所述阀杆另一端穿过球型阀芯,并与球型阀芯相固定,其末端伸入阀体底部凹槽内,所述开启手轮设于传动装置的一侧,所述活动圈设于进水口与出水口处的法兰端面,所述活动圈还设有活动槽,所述固定销设于活动槽内并固定阀体进水口与出水口处,所述活动圈与球型阀芯之间设有压缩弹簧、密封圈,所述压缩弹簧设于活动圈与密封圈之间,所述密封圈与球型阀芯紧密贴合。

本实用新型涉及一种卧式大口径半球阀,包括阀体、可转动地设于阀体上的阀杆、设于阀杆上的球架、设于球架上的球冠,所述阀体的左右两端分别设有进流口与出流口,所述阀体上位于出流口处设有用于与球冠接触实现密封的密封件,所述阀体上设有用于转动阀杆的蜗轮箱,所述阀体的上端设有维修口,所述维修口上设有用于密封的阀盖,所述阀杆沿阀体的前后方向设置。
本实用新型涉及一种流体控制阀门,特别涉及一种大口径双密封功能球阀。由阀杆带动,并绕球阀轴线作旋转运动的阀门。亦可用于流体的调节与控制,其中硬密封V型球阀其V型球芯与堆焊硬质合金的金属阀座之间具有很强的剪切力,特别适用于含纤维、微小固体颗料等的介质。而多通球阀在管道上不仅可灵活控制介质的合流、分流、及流向的切换,同时也可关闭任一通道而使另外两个通道相连。

具有以下优点:
1.侧装式结构紧凑、阀门质量轻,适用于对阀门安装空间有要求的场合。
2.流体阻力小,其阻力系数与同长度的管段相等。
3.结构简单、体积小、重量轻。
4.具有切削功能,在关闭时能将介质中杂物(树枝、纺织袋等)切断
5.紧密可靠,球阀的密封面材料广泛使用塑料、密封性好,在真空系统中也已广泛使用。
6.操作方便,开闭迅速,从全开到全关只要旋转90°,便于远距离的控制。
7.维修方便,球阀结构简单,密封圈一般都是活动的,拆卸更换都比较方便。
8.在全开或全闭时,球体和阀座的密封面与介质隔离,介质通过时,不会引起阀门密封面的侵蚀。
9.适用范围广,通径从小到几毫米,大到几米,从高真空*压力都可应用。 球旋转90度时,在进、出口处应全部呈现球面,从而截断流动。
本类阀门在管道中一般应当水平安装。球阀按照驱动方式分为:气动球阀,电动球阀,手动球阀。球阀在管路中主要用来做切断、分配和改变介质的流动方向,它只需要用旋转90度的操作和很小的转动力矩就能关闭严密。球阀*适宜做开关、切断阀使用,V型球阀。电动阀门除应注意管道参数外,尚应特别注意其使用的环境条件,由于电动阀门中的电动装置是一机电设备,其使用状态受其使用环境影响很大,容易产生热胀冷缩导致密封收缩,造成泄漏现象。

现有的普通球阀则为全开状态,其结构简单、重量轻、启闭方便迅速、流体阻力小的优点,但是现有球阀其球芯密封圈采用是固定不变的,安装时,容易产生密封面容易受挤压,发生变形,导致球芯关不了,造成大口径球阀泄漏量大,浪费水源,并且更换极其不方便,给生产及施工人员带来麻烦与损失,使用范围受了*的限制。
【PBQ340F超大口径偏心半球阀发明内容】
针对上述问题,本实用新型提出一种结构合理、安装使用方便、可靠、阀体长短可调的、密封性能好的大口径双密封功能球阀。
为解决此技术问题,本实用新型采取以下方案:一种大口径双密封功能球阀,包括阀体、球型阀芯、阀杆、传动装置及开启手轮,所述阀体的两自由端设有与管道连接的法兰盘,所述球型阀芯可转动的安装于阀体内进水口与出水口之间,所述球型阀芯内部还设有横向流水通道,所述阀杆一端穿过阀体中部上方,并与传动装置相连,所述阀杆另一端穿过球型阀芯,并与球型阀芯相固定,其末端伸入阀体底部凹槽内,所述开启手轮设于传动装置的一侧,其特征在于:包括活动圈、固定销、压缩弹簧及密封圈,所述活动圈设于进水口与出水口处的法兰端面,所述活动圈还设有活动槽,所述固定销设于活动槽内并固定阀体进水口与出水口处,所述活动圈与球型阀芯之间设有压缩弹簧、密封圈,所述压缩弹簧设于活动圈与密封圈之间,所述密封圈与球型阀芯紧密贴合。
进一步改进的是:所述密封圈密封面采用锥面设计。
进一步改进的是:所述进水口与出水口各设有两个固定销。
通过采用前述技术方案,本实用新型的有益效果是:所述活动圈设于进水口与出水口处的法兰端面,所述活动圈还设有活动槽,所述固定销设于活动槽内并固定阀体进水口与出水口处,所述活动圈与球型阀芯之间设有压缩弹簧、密封圈,所述压缩弹簧设于活动圈与密封圈之间,所述密封圈与球型阀芯紧密贴合,其工作原理:当本新型安装管道上时,管道法兰端面与本新型球阀法兰面贴合并压紧活动圈,这时活动圈推压压缩弹簧使密封圈受到一定的弹力向球型阀芯紧密贴合,保证密封面能维持原有的密封性能,因此密封圈在弹力的作用下更不会产生挤压变形,而且密封性能越好,启闭力矩更轻,大大提高了球阀的密封性能及延长使用寿命的优点,免维修,更不会造成大量水源浪费,投入使用时已得到广大用户的认可。
所述密封圈密封面采用锥面设计,能够保证关闭球阀时越关越紧,所述进水口与出水口各设有两个固定销,防止活动圈掉出,更方便在活动槽内移动。

其工作原理:
当本新型安装管道上时,管道法兰端面与本新型球阀法兰面贴合并压紧活动圈,这时活动圈推压压缩弹簧使密封圈受到一定的弹力向球型阀芯紧密贴合,保证密封面能维持原有的密封性能,因此密封圈在弹力的作用下更不会产生挤压变形,而且密封性能越好,启闭力矩更轻,大大提高了球阀的密封性能及延长使用寿命的优点,免维修,更不会造成大量水源浪费,投入使用时已得到广大用户的认可。
尽管结合优选实施方案具体展示和介绍了本实用新型,但所属领域的技术人员应该明白,在不脱离所附权利要求书所限定的本实用新型的精神和范围内,在形式上和细节上可以对本实用新型做出各种变化,均为本实用新型保护范围。
PBQ340F超大口径偏心半球阀主要零件材料
性能参数名称 材质 阀体 QT450、WCB、ZG20CrMo、ZG1Cr18Ni9Ti 阀轴 2Cr13、1Cr13 阀瓣 合金渗氮钢、渗氮不锈钢、耐磨钢 阀座 合金渗氮钢、渗氮不锈钢、耐磨钢 轴承 铝青铜、FZ-1复合材料 填料 聚四氟乙烯、柔性石墨 公称压力(Mpa) 0.6 1.0 1.6 2.5 4.0 公称通经(mm) 40-1600 40-1600 40-1200 40-600 40-600 密封试验压力(Mpa) 0.66 1.1 1.76 2.75 4.4 壳体试验压力(Mpa) 0.9 1.5 2.4 3.75 6.0 适用温度(℃) -29~300、-29~425、-29~540 适用介质 清水、海水、污水、酸碱等液体、料浆、蒸汽、燃气、油类 驱动方式 手动、电动、气动 连接形式 法兰连接、对夹连接 安装方式 立式安装、卧式安装 产品性能规范
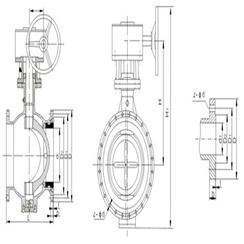
PBQ340F超大口径偏心半球阀外形尺寸压力等级 公称压力PN(MPa) 0.25 0.6 1.0 1.6 2.5 4.0 6.4 10.0 壳体试验压力 0.38 0.9 1.5 2.4 3.8 6.0 9.6 15.0 密封试验压力 高压液体密封试验 0.28 0.66 1.1 1.8 2.8 4.4 7.04 11.0 低压气体密封试验 0.6 0.6 0.6 0.6 0.6 0.6 0.6 0.6 适用工况 适用介质 见“各行业适用范围” 适用温度 ≤425℃ 驱动方式 手动(3)、电动(9)、气动(6)等 公称通径 DN40~1000mm 适用规范 设计制造 GB12237-89 结构长度 GB12221-89 法兰尺寸 GB9113-2000、也可按用户要求的API 6D-94 检验试验 JB/T9092-99、GB/T13927-92 公称压力 公称通径 DN 尺寸[mm] L D D1 D2 b Z-Φd Ws Hs Hw Hd PN1.6MPa 80 190 200 160 132 20 8-Φ18 235 335 390 100 229 215 180 155 20 8-Φ18 320 235 335 390 125 254 245 210 185 22 8-Φ18 400 260 355 405 150 267 280 240 210 24 8-Φ18 500 280 375 440 200 292 335 295 265 24 8-Φ23 800 320 410 470 250 330 390 350 320 26 12-Φ23 1000 355 485 550 300 356 440 400 368 26 12-Φ23 1200 400 530 595 350 430 500 460 428 28 16-Φ23 580 650 400 530 565 515 482 28 16-Φ25 650 730 450 580 615 565 532 30 20-Φ25 710 790 500 660 670 620 585 30 20-Φ25 760 840 600 840 780 725 685 34 20-Φ30 870 960 700 900 895 840 800 38 24-Φ30 910 1080 800 1000 1010 950 905 42 24-Φ34 935 1125 公称压力 80 190 200 160 132 20 8-Φ18 235 335 390 100 229 220 180 155 20 8-Φ18 320 235 335 390 PN2.5MPa 125 254 250 210 185 22 8-Φ18 400 260 355 405 150 267 285 240 210 24 8-Φ23 500 280 375 440 200 292 340 295 265 26 12-Φ23 800 320 410 470 250 330 405 355 320 30 12-Φ25 1000 355 485 550 300 356 460 410 375 30 12-Φ25 1200 400 530 595 350 430 520 470 435 34 16-Φ25 580 650 400 530 580 525 485 36 16-Φ30 650 730 450 580 640 585 545 40 20-Φ30 710 790 500 660 715 650 608 44 20-Φ34 760 840 600 840 840 770 718 48 20-Φ41 870 960 700 900 910 840 788 50 24-Φ41 910 1080 800 1000 1025 950 898 52 24-Φ41 935 1125 
一种大口径双密封功能球阀,包括阀体、球型阀芯、阀杆、传动装置及开启手轮,所述阀体的两自由端设有与管道连接的法兰盘,所述球型阀芯可转动的安装于阀体内进水口与出水口之间,所述球型阀芯内部还设有横向流水通道,所述阀杆一端穿过阀体中部上方,并与传动装置相连,所述阀杆另一端穿过球型阀芯,并与球型阀芯相固定,其末端伸入阀体底部凹槽内,所述开启手轮设于传动装置的一侧,其特征在于:包括活动圈、固定销、压缩弹簧及密封圈,所述活动圈设于进水口与出水口处的法兰端面,所述活动圈还设有活动槽,所述固定销设于活动槽内并固定阀体进水口与出水口处,所述活动圈与球型阀芯之间设有压缩弹簧、密封圈,所述压缩弹簧设于活动圈与密封圈之间,所述密封圈与球型阀芯紧密贴合。
请按以下指示进行安装:
a:取掉法兰端两边的保护盖,在阀打开的状态下进行冲洗清洁。
b:安装前应按规定的信号(电动或气动)进行整机测试(防止因运输产生振动影响使用性能),合格后方可上线安装(接线按电动执行机构线路图)。
C:准备与管道连接前,须冲洗和干净管道中残存的杂质(这些物质可能会损坏阀座和球)。
d:在安装期间,请不要用阀的执行机构部分作为起重的吊装点,以避免损坏执行机构及附件。
e:本类阀应安装在管道的水平方向或垂直方向。
f:安装点附近的管道不可有低垂或者承受外力的现象,可以用管道支架或者支撑物来管线的偏离
g:与管道连接后,请用规定的扭矩交叉锁紧法兰连接螺栓。

订货须知:
一、①产品名称与型号②口径③是否带附件以便我们的为您正确选型④的使用压力⑤的使用介质的温度。
二、若已经由设计单位选定公司的型号,请按型号直接向我司销售部订购。
三、当使用的场合非常重要或环境比较复杂时,请您尽量提供设计图纸和详细参数,由我们的阀门公司专家为您审核把关。如有疑问:请:我们一定会尽心尽力为您提供优质的服务。提供全面、阀门系统解决方案",也十分愿意帮助用户解决生产中所遇到的难题。 -
联系方式
- 联系人:申弘阀门
- 电 话:021-59260058
- 手 机:15901754341
- 传 真:86-021-31662735
- 邮 箱:494522509@qq.com
- 邮 编:201718
- 地 址:上海市青浦区金泽工业园区
- 网 址: https://bengye.cn.goepe.com/
http://www.021-fm.com
-
产品搜索






