-
申弘超级双相钢电动球阀310S
详细信息| 询价留言310S超级双相钢电动球阀简介
本实用新型属于浮动球阀技术领域,具体涉及一种高温高压自密封浮动球阀。CH执行机构可直接接收计算机或工业仪表等输出的4~20mADC或1~5VDC控制信号,220VAC电源,根据阀位反馈信号与设定值比较偏差对执行机构驱动电机进行智能步距调整(PID调节),以实现与执行机构配套的阀门或其他装置开度的精确定位,同时输出4~20mADC的位置反馈信号。其核心控制部件电子式伺服控制器应用现代数字技术,对DCS/PLC规范设计而成,集信号采集、处理、反馈、控制于一体。采用独创的电子制动电路并附加机械阻尼装置消除惯性,可瞬时停机,定位时无振荡,定位精度可达0.3%以上。双相不锈钢由于在其组织中存在铁素体和奥氏体,因此它具备铁素体不锈所具有的较高强度、耐氯化物应力腐蚀性能和奥氏体不锈钢所具有的优良韧性和焊接性能的优点.其主要性能特点如下:

(1)含钼双相不锈钢在低应力下有良好的耐氯化物应力腐蚀性能。
(2)含钼双相不锈钢有良好的耐孔蚀性能。在具有相同的孔蚀抗力当量值(PRE=Cr%+3.3xMo%+16xN%)时.双相不锈钢与奥氏体不锈钢的临界孔蚀电位相仿。双相不锈钢与奥氏体不锈钢耐孔蚀性能与ANSI 316L相当。含25%Cr的.尤其是含氮的高铬双相不锈钢的耐孔蚀和缝隙腐蚀性能超过了ANSI316L。
(3)具有良好的耐腐蚀疲劳和磨损腐蚀性能。
(4)综合力学性能好,有较高的强度和疲劳强度,屈服强度是18—8型奥氏体不锈钢的2倍。固溶态的延伸率达到25%,韧性值Ak(V型槽口)在100J以上。
(5)可焊性良好、热裂倾向小、一般焊前不需要预热、焊后不需要热处理。可与18—8型奥氏体不锈钢或碳钢等异种焊接。
(6)含低铬(18%Cr)的双相不锈钢热加工温度范围比18—8型奥氏体不锈钢热加工范围宽、抗力小。
(7)冷JJD-r时比18—8型奥氏体不锈钢加工硬化效应大。在管、板承受变形初期,需施加较大应力才能变形。
(8)与奥氏体不锈钢相比,导热系数大线膨胀系数小。
(9)有高铬铁素体不锈钢的各种脆性倾向。不宜用在高于300°C的工作条件。

球阀的球体是浮动的,在介质压力作用下,球体能产生一定的位移并紧压在出口端的密封面上,保证出口端密封,浮动球球阀的结构简单,密封性好,但球体承受工作介质的载荷全部传给了出口密封圈,因此要考虑密封圈材料能否经受得住球体介质的工作载荷,在受到较高压力冲击时,球体可能会发生偏移。这种结构,一般用于中低压球阀,球阀的主要特点是本身结构紧凑,密封可靠,结构简单,维修方便,密封面与球面常在闭合状态,不易被介质冲蚀,易于操作和维修,适用于水、溶剂、酸和天然气等一般工作介质,而且还适用于工作条件恶劣的介质,如氧气、过氧化氢、甲烷和乙烯等,在各行业得到广泛的应用。球阀阀体可以是整体的,也可以是组合式的。

310S超级双相钢电动球阀技术参数和性能
CH执行机构技术参数 阀体参数 电源 AC200/220V,50/60Hz 公称通径 DN10~300mm 输出力矩 50N·M~2000N·M 公称压力 PN1.6 2.5 4.0 6.4 31.5MPa(定制) 动作范围 0~90° 0~360° 泄漏量 软密封:零泄漏 硬密封:≤额定流量的10-5 动作时间 15秒/30秒/60秒 执行机构 可另配PSQ、HQ、UNIC、361RS 等电子式电动执行机构
保护装置 过热保护 流量特性 快开特性 环境温度 -30°~60° 可调范围 DN10-80 DN100-300 250:1 350:1 手动操作 同附带手柄操作 基本误差 ±1% 限位 电气、机械二重限位 死区 ≤1% 防护等级 相当于IP-65 回差 ≤1% 位置测量 可选装开关或电位计 适用温度 密封面 驱动电机 8W/E PTFE≤150℃ RTFE≤180℃ PPL≤300℃ 硬密封≤450℃ 进线接口 PE1/2〞进线线锁 试验压力
(Mpa)公称压力(Mpa) 压力级(class) JIS(Mpa) 1.6 2.5 4.0 6.4 10.0 150 300 600 10K 20K 强度试验 2.4 3.8 6.0 9.6 15.0 3.1 7.8 15.3 2.4 3.8 密封试验 1.8 2.8 4.4 7.0 11.0 2.2 5.6 11.2 1.5 2.8 气密试验 0.5~0.7 零件名称 材 料 阀体 WCB ZG1Cr18Ni9Ti CF8
(304)CF3
(304L)ZG1Cr18Ni12Mo2Ti CF8M(316) CF3M
(316L)球体、阀杆 2Cr13 1Cr18Ni9Ti 0Cr19Ni9
(304)00Cr19Ni11
(304L)1Cr18Ni12Mo2Ti 0Cr17Ni12Mo2
(316)00Cr17Ni12Mo2
(316L)密封圈 聚四氟乙烯(PTFE)、增强聚四氟乙烯(PPL)、对位聚苯 柔性石墨 适用介质 水、气体、蒸汽、油品等 硝酸等腐蚀性介质 强氧化性介质 醋酸等腐蚀介质 尿素等腐蚀性介质 主要性能规范
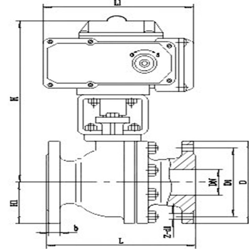
公称通径DN(mm) DN15-300 公称压力 PN(MPa) 1.0 1.6 2.5 4.0 6.4 试验压力 强度试验 1.5 2.4 3.75 6.0 9.60 密封试验 1.1 1.76 2.75 4.4 7.04 低压气密试验 0.5~0.7 适用介质 水、油、蒸气、硝酸类(温度≤200℃)、醋酸类(温度≤200℃) 外形结构图
310S超级双相钢电动球阀外形尺寸
公称通径 DN(mm) 15 20 25 32 40 50 65 80 100 125 150 200 250 300 L 130 140 150 165 180 200 220 250 280 320 360 400 630 750 H、A 由于阀门密封选择及温度选择不同,执行器尺寸需根据实际配置,该尺寸可咨询剑阀公司技术部。 A1 防爆型 137 137 137 137 137 137 137 137 137 137 137 137 137 137 标准型 40 40 40 40 40 40 40 40 40 40 40 40 40 40 PN1.6MPa法兰连接尺寸 D 95 105 115 140 150 165 185 200 220 250 285 340 405 460 D1 65 75 85 100 110 125 145 160 180 210 240 295 355 410 D2 46 56 65 76 84 99 118 132 156 184 211 266 319 370 b 14 16 16 18 18 20 22 24 24 26 28 24 26 28 f 2 2 2 2 2 2 2 2 2 2 2 2 2 2 n-φd 4-14 4-14 4-14 4-18 4-18 4-18 4-18 8-18 8-18 8-18 8-22 12-22 12-26 12-26 PN2.5MPa法兰连接尺寸 D 95 105 115 140 150 165 185 200 235 270 300 360 425 485 D1 65 75 85 100 110 125 145 160 190 220 250 310 370 430 D2 46 56 65 76 84 99 118 132 156 184 211 274 330 389 b 14 16 16 18 18 20 22 24 24 26 28 34 38 42 f 2 2 2 2 2 2 2 2 2 2 2 2 2 2 n-φd 4-14 4-14 4-14 4-18 4-18 4-18 8-18 8-18 8-22 8-26 8-26 12-26 12-30 16-30
本公司球阀压力标准范围:PN1.6、2.5、4.0、6.4、10.0MPa,超过4.0MPa以上法兰尺寸请咨询本公司技术部。该一种高温高压自密封浮动球阀通过设置弹簧和固定块,固定块起到固定弹簧的作用,弹簧可通过弹性将密封圈挤压在法兰的内表壁上,对密封圈进行固定,防止密封圈受到水流冲击容易脱落,使用方便快捷。它具有旋转90度的动作,旋塞体为球体,有圆形通孔或通道通过其轴线。在管路中主要用来做切断、分配和改变介质的流动方向,它只需要用旋转90度的操作和很小的转动力矩就能关闭严密。适宜做开关、切断阀使用,也具有节流和控制流量之用。双相钢硬密封球阀在关闭状态下,阀体内部依旧存在受压流体

310S超级双相钢电动球阀安装维护
维修前,解除管线压力并使阀门处于打开位置
维修前,断开电源或气源
维修前,将执行机构与支架脱离
必须先查明双相钢球阀上、下游管道确已卸除压力后,才能进行拆卸分解操作
分解及再装配时必须小心防止损伤零件的密封面,特别是非金属零件,取出O 型圈时宜使用专用工具
装配时法兰上的螺栓必须对称、逐步、均匀地拧紧
清洗剂应与双相钢球阀中的橡胶件、塑料件、金属件及工作介质(例如燃气)等均相容。工作介质为燃气时,可用汽油(GB484-89)清洗金属零件。双相钢硬密封球阀非金属零件用纯净水或酒精清洗
分解下来的单个零件可以用浸洗方式清洗。尚留有未分解下来的非金属件的金属件可采用干净的细洁的浸渍有清洗剂的绸布(为避免纤维脱落粘附在零件上)擦洗。清洗时须去除一切粘附在壁面上的油脂、污垢、积胶、灰尘等
非金属零件清洗后应立即从清洗剂中取出,不得长时间浸泡
清洗后需待被洗壁面清洗剂挥发后(可用未浸清洗剂的绸布擦)进行装配,但不得长时间搁置,否则会生锈、被灰尘污染
新零件在装配前也需清洗干净
使用润滑脂润滑。润滑脂应与双相钢球阀金属材料、橡胶件、塑料件及工作介质均相容。工作介质为燃气时,可用例如特别润滑脂。在密封件安装槽的表面上涂一薄层润滑脂,在橡胶密封件上涂一薄层润滑脂,阀杆的密封面及摩擦面上涂一薄层润滑脂
装配时应不允许有金属碎屑、纤维、油脂(规定使用的除外)灰尘及其它杂质、异物等污染、粘附或停留在零件表面上或进入内腔

订货须知:
一、①产品名称与型号②口径③是否带附件以便我们的为您正确选型④的使用压力⑤的使用介质的温度。
二、若已经由设计单位选定公司的型号,请按型号直接向我司销售部订购。
三、当使用的场合非常重要或环境比较复杂时,请您尽量提供设计图纸和详细参数,由我们的阀门公司专家为您审核把关。如有疑问:请:我们一定会尽心尽力为您提供优质的服务。提供全面、阀门系统解决方案",也十分愿意帮助用户解决生产中所遇到的难题。 -
联系方式
- 联系人:申弘阀门
- 电 话:021-59260058
- 手 机:15901754341
- 传 真:86-021-31662735
- 邮 箱:494522509@qq.com
- 邮 编:201718
- 地 址:上海市青浦区金泽工业园区
- 网 址: https://bengye.cn.goepe.com/
http://www.021-fm.com
-
产品搜索






