-
申弘双相钢三通球阀4A
详细信息| 询价留言4A双相钢三通球阀简介
又叫2507双相钢换向阀,整体2507双相钢制作耐强酸腐蚀性能好的很,手动开关,三通球阀(T型、L型)不同的结果适用工况不一样选型时一定选清楚了,结构紧凑合理,不仅可实现介质流向的切换,也可使三个通道相互连通,灵活控制管路中介质的合流或分流。浮动式法兰连接三通球阀,密封面为PTFE四氟密封,压力PN1.6MPa~2.5MPa,通经为DN15-DN200(国标)
是一种三通道的回转型球阀,阀芯有L型和T型,可以满足不同的生产工艺要求。可以根据需要,任何一个管道都可以作为入口或出口。L型阀是对三条管道中的两条管道进行切除,T型阀实现把三条连通管道进行合流与分流。

【工作原理】:
Q44F、Q45F法兰三通球阀用于介质流向的切换,能使相互垂直的两个通道连接;T型用于介质分流、合流及流向切换。T型三通可以使三个通道相互连通或使其中的两个通道连通。一般采用两阀座结构,亦可根据用户要求采用四阀座结构。
【4A双相钢三通球阀产品特点】:
1、结构紧凑、启闭迅速、流道畅通、流体阻力小。
2,维修方便:在系统卸压后,无需拆下整个阀体就可进行检查和维修。
3、密封性能好:利用四面阀座材料聚四氟乙烯弹性变形实现无泄漏密封。
4、一阀多用:任一通口可用作入口而无泄漏,三通既可制成L型通口,也可制成T型通口。
本实用新型公开了一种高温高压自密封浮动球阀,属于浮动球阀技术领域,包括球阀本体,所述球阀本体上旋合连接有转杆,所述转杆的上方设置有把手,且转杆的下方焊接固定有球体,所述球体上开设有排水孔,所述排水孔的内部焊接固定有铁丝,所述球阀本体的两侧均焊接固定有法兰,所述法兰的内表壁设置有密封圈,所述密封圈的内表壁设置有四个弹簧,四个所述弹簧之间通过螺栓固定连接有固定块,

性能参数:
公称压力
试验压力
PN(MPa)
壳体
高压液密封
低压液密封
1.6
2.4
1.76
0.6
2.5
3.75
2.75
4
6
4.4
CLASS150
3
2.2
适用工况
适用介质
强酸腐蚀
适用温度
-28~350℃
应用规范
连接法兰
JB79-59 GB9113、
HG20592-97、ANSI B16.5
检验试验
JB/T 9092-99 、API598

4A双相钢三通球阀材质:零件名称
材质
GB
ASTM
阀体、阀盖
2507
2507
密封圈
PTFE、对位聚苯
PTFE、对位聚苯
球体
2507
2507
阀座、阀杆
2507
2507
双头螺栓
2507
2507
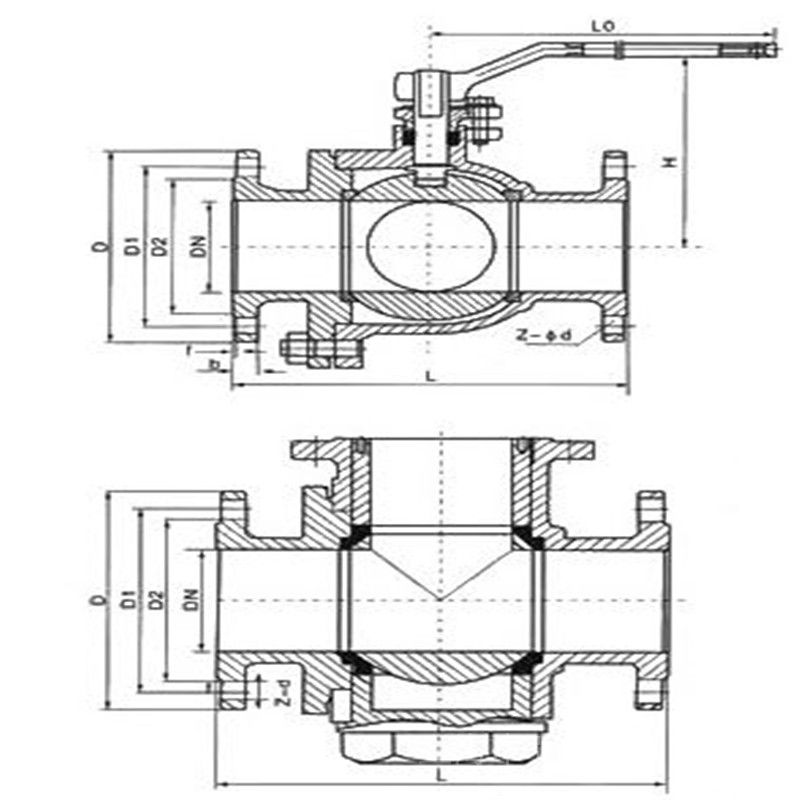
三通T型球阀 主要连接尺寸公称通径DN(mm) 尺寸(mm) L L2 D D1 D2 b f Z-d H W 15 150 72 95 65 45 14 2 4-14 95 130 20 160 80 105 75 55 14 2 4-14 110 130 25 180 90 115 85 65 14 2 4-18 120 140 32 200 100 135 100 78 16 2 4-18 144 180 40 220 110 145 110 85 16 3 4-18 152 220 50 240 120 160 125 100 16 3 4-23 182 220 65 260 130 180 145 120 16 3 4-18 193 240 80 280 140 195 160 135 20 3 8-18 217 270 100 320 160 215 180 155 20 3 8-18 245 350 125 380 190 245 210 185 22 3 8-18 282 500 150 440 220 280 240 210 24 3 8-23 319 600 200 550 260 335 295 265 26 3 12-23 380 1000 250 670 310 405 355 320 30 3 12-25 460 1400 300 720 370 460 410 375 30 3 12-25 520 1800 公称通径DN(mm) 尺寸(mm) L L2 D D1 D2 b f Z-d H W 15 150 72 95 65 45 14 2 4-14 95 130 20 160 80 105 75 55 14 2 4-14 110 130 25 180 90 115 85 65 14 2 4-18 120 140 32 200 100 135 100 78 16 2 4-18 144 180 40 220 110 145 110 85 16 3 4-18 152 220 50 240 120 160 125 100 16 3 4-23 182 240 65 260 130 180 145 120 16 3 4-18 193 270 80 280 140 195 160 135 20 3 8-18 217 350 100 320 160 215 180 155 20 3 8-18 245 500 125 380 190 245 210 185 22 3 8-18 282 600 150 440 220 280 240 210 24 3 8-23 319 1000 200 550 260 335 295 265 26 3 12-23 380 1300 250 670 310 405 355 320 30 3 12-25 460 1700 300 720 370 460 410 375 30 3 12-25 520 2100 
尽管已经示出和描述了本实用新型的实施例,对于本领域的普通技术人员而言,可以理解在不脱离本实用新型的原理和精神的情况下可以对这些实施例进行多种变化、修改、替换和变型,本实用新型的范围由所附权利要求及其等同物限定。三通球阀有T型和L型。T型能使三条正交的管道相互联通和切断第三条通道,起分流、合流作用。L三通球阀型只能连接相互正交的两条管道,不能同时保持第三条管道的相互连通,只起分配作用。 工作方式: L型流道的三通4面阀座球阀,采用2面阀座。主要用于流路的换向。 T型流道的三通4面阀座球阀,采用4面阀座,受力平衡,保证闭止通道上可靠密封。主要用于分流、混流、换向以及三通道的完全开放。球阀是一种管路中用来做切断、分配改变介质流动方向的装置,在使用中只需要旋转90度的操作和很小的转动力矩就能关闭严密。在使用球阀时需要注意什么呢?下面介绍一下球阀的使用注意事项,希望可以帮助到大家。

球阀的使用
1、必须先查明球阀上、下游管道确已卸除压力后,才能进行拆卸分解操作。
2、非金属零件清洗后应立即从清洗剂中取出,不得长时间浸泡。
3、装配时法兰上的螺栓必须对称、逐步、均匀地拧紧。
4、清洗剂应与球阀中的橡胶件、塑料件、金属件及工作介质(例如燃气)等均相容。工作介质为燃气时,可用汽油(GB484-89)清洗金属零件。非金属零件用纯净水或酒精清洗。
5、分解下来的每单个球阀零件可以用浸洗方式清洗。尚留有未分解下来的非金属件的金属件可采用干净的细洁的浸渍有清洗剂的绸布(为避免纤维脱落粘附在零件上)擦洗。清洗时须去除一切粘附在壁面上的油脂、污垢、积胶、灰尘等。
6、球阀分解及再装配时必须小心防止损伤零件的密封面,特别是非金属零件,取出O型圈时宜使用专用工具。
7、清洗后需待被洗壁面清洗剂挥发后(可用未浸清洗剂的绸布擦)进行装配,但不得长时间搁置,否则会生锈、被灰尘污染。
8、新零件在装配前也需清洗干净。
9、使用润滑脂润滑。润滑脂应与球阀金属材料、橡胶件、塑料件及工作介质均相容。工作介质为燃气时,可用例如特221润滑脂。在密封件安装槽的表面上涂一薄层润滑脂,在橡胶密封件上涂一薄层润滑脂,阀杆的密封面及摩擦面上涂一薄层润滑脂。
10、装配时应不允许有金属碎屑、纤维、油脂(规定使用的除外)灰尘及其它杂质、异物等污染、粘附或停留在零件表面上或进入内腔。

订货须知:
一、①产品名称与型号②口径③是否带附件以便我们的为您正确选型④的使用压力⑤的使用介质的温度。
二、若已经由设计单位选定公司的型号,请按型号直接向我司销售部订购。
三、当使用的场合非常重要或环境比较复杂时,请您尽量提供设计图纸和详细参数,由我们的阀门公司专家为您审核把关。如有疑问:请:我们一定会尽心尽力为您提供优质的服务。提供全面、阀门系统解决方案",也十分愿意帮助用户解决生产中所遇到的难题。 -
联系方式
- 联系人:申弘阀门
- 电 话:021-59260058
- 手 机:15901754341
- 传 真:86-021-31662735
- 邮 箱:494522509@qq.com
- 邮 编:201718
- 地 址:上海市青浦区金泽工业园区
- 网 址: https://bengye.cn.goepe.com/
http://www.021-fm.com
-
产品搜索





