-
Y型手摇刷式过滤器申弘
详细信息| 询价留言Y型手摇刷式过滤器产品说明
本实用新型涉及y型过滤器技术领域,更具体地说,本实用新型涉及一种手摇刷式y型过滤器。手摇刷式过滤又称SLVY手摇刷式过滤器,是一种半自动清洗过滤器,利用过滤器滤网内置的刷子和刷架,刷除滤网上的污物、杂质等颗粒,再通过排污阀排出。清洗可在过滤器工作过程中进行,无需断流不影响设备的正常运行。
该过滤器结构合理,用材讲究,壳体采用优质碳钢,也可根据用户要求采用不锈钢;有机毛刷采用无机材料制成(弹性好,强度较高,耐蚀及耐老化性能优)和不锈钢刷架组成;滤网为精心制作不锈钢楔形网,结构讲究,十分便于刷去杂物,过滤、清洗效果大大优于冲孔网或纺织网,且洗网时刷毛不易损伤。使用时只需轻轻转动刷架外部的手柄即可。

Y型手摇刷式过滤器背景技术:
y型过滤器是输送介质的管道系统不可缺少的一种过滤装置,y型过滤器通常安装在减压阀、泄压阀、定水位阀或其它设备的进口端,用来清除介质中的杂质,以保护阀门及设备的正常使用,手摇刷式y型过滤器由骨质尼龙刷及不锈钢部件组成,该部件穿过过滤器盖,刷式装置安装在不锈钢滤网内部,过滤器盖外装一简便的手柄,只需轻轻转动手柄,即能从滤网上刷除微粗杂质通过排污口排出,刷洗过程中水流不中断,不必停机和拆卸过滤器清洗滤网,外壳为优质碳钢筒体。
一种y型过滤器排污结构,该实用新型包括y型过滤器阀体、进液口、出液口、过滤腔、密封端盖、过滤网筒、杂质集中出口、杂质收集装置、杂质收集储存室、过滤网以及辅助回液管;该一种y型过滤器排污结构能够利用杂质收集装置收集y型过滤器中杂质,y型过滤器不易堵塞,能够延长清洗维护周期;清理杂质时,y型过滤器和管道能够继续工作。
但是其在实际使用时,仍旧存在较多缺点,如不能有效对过滤网的表面附着的杂质进行清除。由过滤器本体、不锈钢过滤网、带手柄的清洗刷架组、排污阀及压力表所组成,清洗刷架组穿过过滤器盖,清洗刷安装在不锈钢过滤网内 部,水流经手摇刷式过滤器时,杂质被滤网拦截,当需要排污时,只要打开排污阀顺时针方向摇动手柄数圈,完成排污,不拆卸过滤器清洗内 部滤网,清洗排污过程水流不中断。

Y型手摇刷式过滤器产品特点
■ 单台大过滤流量可达970M3/H
■ 过滤精度从4000μm -20μm
■ 滤网可选钻孔(4000-800μm)、楔形(1000-50μm)、编织组合(800-20μm)
■ 小工作压力≥0.1MPa
■ 高工作压力≤1.6MPa
■ 工作温度≤95℃
■ 清洗方式:刷式
■ 安装形式:可立式安装或卧式安装,多台并联可获得大流量
Y型手摇刷式过滤器产品选型
为了能适用客户的水系统的技 术要求,为了佳的过滤效 果,达到为客户节能、省电、省水、的高要求,华凯环 保作为的水过滤解决方案供应商,我们的工程师将用技 术知识,丰富的应用经验,为您做出佳的方案选择。Y型手摇刷式过滤器是一种半自动清洗过滤器,利用过滤器滤网内置的刷子和刷架,刷除滤网上的污物、杂质等颗粒,再通过排污阀排出。手摇刷式过滤器由过滤器本体、不锈钢过滤网、带手柄的清洗刷架组、排污阀及压力表所组成,清洗刷架组穿过过滤器盖,清洗刷安装在不锈钢过滤网内部,水流经手摇刷式过滤器时,杂质被滤网拦截,当需要排污时,只要打开排污阀顺时针方向摇动手柄数圈,即可完成排污,不必拆卸过滤器清洗内部滤网,清洗排污过程中水流不中断。您在选择手摇刷式过滤器的时候,请考虑以下几个参数:
1、处理流量
2、过滤介质的化 学 性 质
3、过滤介质的悬浮物浓度
4、要求的过滤精度
Y型手摇刷式过滤器技术实现要素:
为了克服现有技术的上述缺陷,本实用新型的实施例提供一种手摇刷式y型过滤器,其中转动杆错位设置,清洁毛刷与过滤网的表面相接触,使用人员通过摇柄可使得中心轴转动,清洁毛刷对过滤网的内腔侧壁进行扫刮,提高了清洁毛刷的清洁面积,并对过滤网的表面进行清洁,提高了y型过滤器壳体的过滤性能,以解决上述背景技术中提出的问题。
为实现上述目的,本实用新型提供如下技术方案:一种手摇刷式y型过滤器,包括y型过滤器壳体,所述y型过滤器壳体的一端开设有进水口,且y型过滤器壳体的另一端开设有出水口,所述进水口与出水口水平共线设置,所述y型过滤器壳体的内腔顶端设置有阻腔,且y型过滤器壳体的底端表面靠近阻腔的底部设置有过滤网管;
所述过滤网管的底端开设有连接口,所述连接口的一端匹配连接有密封盖,所述密封盖的底端表面中部位置设置有中心轴,且密封盖的底端表面靠近中心轴的一侧设置有排污管,所述密封盖的顶端表面对应中心轴的顶部设置有转动轴,所述转动轴与中心轴固定连接,且转动轴的周向侧外壁设置有转动杆。
在一个优选地实施方式中,所述转动杆设置有两列,且两列转动杆之间错位设置,两列所述转动杆与转动轴设置为一体式结构。
在一个优选地实施方式中,所述过滤网管的内部靠近边缘位置设置有过滤网,所述过滤网的轴截面形状设置为环形,且过滤网的一端与阻腔相连。
在一个优选地实施方式中,所述转动杆的一端设置有清洁毛刷,所述清洁毛刷为不锈钢材质的构件,且清洁毛刷的末端与过滤网的一侧侧壁相贴合。
在一个优选地实施方式中,所述过滤网管的表面嵌入设置有铭牌区,所述铭牌区为铝合金材质的构件。
在一个优选地实施方式中,所述连接口与密封盖的连接处嵌入设置有螺栓,所述螺栓的周向侧外壁套设有螺母,且螺栓与螺母之间螺纹连接,所述螺母与连接口的连接处设置有垫圈。
在一个优选地实施方式中,所述中心轴的一端连接有套块,且中心轴的底端表面开设有凹槽,所述凹槽的内部设置有弹簧,所述弹簧的一端固定连接有定位块。
在一个优选地实施方式中,所述套块的底端固定设置有摇柄,且套块的表面开设有定位槽,所述定位槽与定位块的直径相匹配。

本实用新型的技术效果和优点:
1、本实用新型转动杆错位设置,清洁毛刷与过滤网的表面相接触,使用人员通过摇柄可使得中心轴转动,清洁毛刷对过滤网的内腔侧壁进行扫刮,实现了过滤网的表面的清洁,并提高了清洁毛刷的清洁面积,进而提高了y型过滤器壳体的过滤性能;
2、本实用新型通过设置了套块、定位块以及弹簧,定位块挤压着弹簧,此时弹簧收缩并进入到凹槽的内部,当定位块到达定位槽的位置时,弹簧失去了外力阻挡,产生的弹性形变恢复,带动着定位块运动,定位块便进入到定位槽中,可实现中心轴与套块的固定。
Y型手摇刷式过滤器主要零件部件材料表
序号
零件名称
材料名称
1
阀体
碳钢
2
滤芯网
304、316
3
垫片
金属石墨
4
滤网盖
碳钢
型号
公称压力(MPa)
耐压试验压力(MPa)
工作压力(MPa)
GL41H-C
1.0
1.1
1.0
1.6
1.8
1.6
2.5
3.8
2.5
4.0
4.4
4.0
设计压力
PN0.6-25.0MPa
Y型手摇刷式过滤器主要执行标准表设计标准
HG/T 21627-91、GB/T 14382-93、SH/T 3411-99
法兰标准
GB/T 9112-2000、HG 20592-97、HG 20615-97
结构长度标准
GB/T 12221
试验与检验标准
JB/T 9092
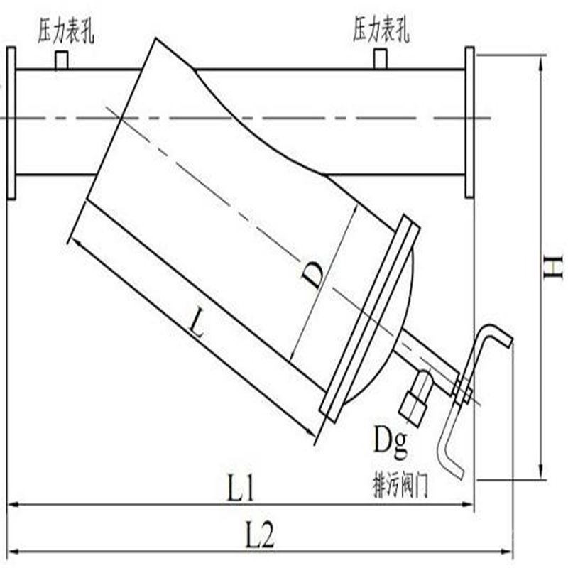
过滤精度对照表微米 10 25 30 40 50 80 100 120 150 200 400 800 1500 3000 目数 1500 650 550 400 300 200 150 120 100 80 40 20 10 5 型号 接口口径 L1 L2 L D H 排污口 流量 mm mm mm mm mm mm mm M3/h SH-50 50 500 710 330 159 500 25 19 SH-80 80 550 710 330 159 550 25 50 SH-100 100 670 810 430 159 670 32 80 SH-125 125 690 820 430 219 690 32 125 SH-150 150 800 950 480 275 800 32 180 SH-200 200 900 1050 560 325 900 40 320 SH-2 50 2 50 1200 1350 744 377 1200 50 490 SH-300 300 12 50 1630 780 426 12 50 65 710 SH-350 350 1300 1980 820 478 1300 65 970

其次:本实用新型公开实施例附图中,只涉及到与本公开实施例涉及到的结构,其他结构可参考通常设计,在不冲突情况下,本实用新型同一实施例及不同实施例可以相互组合;是一种半自动清洗过滤器,其利用过滤器滤网内置的刷子和刷架,刷除滤网上的污物、杂质等颗粒,再通过排污阀排出,本产品适用于各种工业水系统、工艺水系统及供水系统,特别是24小时连续运行的不停机系统,如冷却水塔、钢铁厂、造纸厂、食品加工厂、采矿、工业污水等,用于滤除水中的各类机械杂质,确保系统中各类阀门、水泵及其他设备的正常运行。SLVY手摇刷式Y型过滤器是由优质碳钢或不锈钢筒体、不锈钢楔型筛网、带手柄的不锈钢刷及排污阀、压力表等所组成。当水流流经过滤器时,杂质被筛网拦截,当需要清洗,无需停机,更不需要拆卸过滤器的任何部件以清洗内部滤网,只要打开排污阀,并同时转动过滤器上的手柄3-4圈,即可完成清洗排污,清洗过程极短,仅需几分钟。
订货须知:
一、①产品名称与型号②口径③是否带附件以便我们的为您正确选型④的使用压力⑤的使用介质的温度。
二、若已经由设计单位选定公司的型号,请按型号直接向我司销售部订购。
三、当使用的场合非常重要或环境比较复杂时,请您尽量提供设计图纸和详细参数,由我们的阀门公司专家为您审核把关。如有疑问:请:我们一定会尽心尽力为您提供优质的服务。提供全面、“阀门系统解决方案",也十分愿意帮助用户解决生产中所遇到的难题。 -
联系方式
- 联系人:申弘阀门
- 电 话:021-59260058
- 手 机:15901754341
- 传 真:86-021-31662735
- 邮 箱:494522509@qq.com
- 邮 编:201718
- 地 址:上海市青浦区金泽工业园区
- 网 址: https://bengye.cn.goepe.com/
http://www.021-fm.com
-
产品搜索







