-
OF型氧气专用过滤器申弘
详细信息| 询价留言OF型氧气专用过滤器产品说明
过滤设备附近安顿磁性材料。这样,能够在过滤之前,将混在氧气气流中的铁质颗粒吸附在磁铁上,从而既有利于净化氧气,防止铁质颗粒堵塞或损坏过滤设备,更重要的是能够有用防止这些铁质颗粒与过滤面撞击冲突,从而确保氧气过滤器的运用安全。
设计有防静电,各零部件在装配中严格进行脱脂处理。阀体等部件选用优质不锈钢并经酸洗、纯化,检查和试验用不含任何油脂的纯净自来水进行高压密封试验,用0.6Mpa气体做泄漏试验,阀门无泄漏;经上述特殊工艺处理。

OF型氧气专用过滤器特点:
1、本商品适用于易燃、易爆、含尘气体的管道过滤。
2、本商品具有确保设备安全运转、正常供气的效果,因此已被冶金、化工、机械加工等职业广泛选用。
3、本商品的滤筒(内管)和外筒与管道在同一直线,因此气流能较陡峭地进入滤筒内,基本上无紊流发生,压损小于0.02MPa。
4、根据技术需求可选用不一样的过滤精度,通常以60~100目/英寸为宜。
5、本商品在出厂时严格按脱脂技术清洁除油除锈,用户可直接将其与管道装置后投运。

氧气过滤器,包括过滤体和滤网,所述过滤体上设置有进气口和出气口,所述出气口连接有端盖,所述滤网置于过滤体内,所述过滤体上设置有排气阀.本实用新型的有益效果:结构简单,使用方便,使用寿命长.

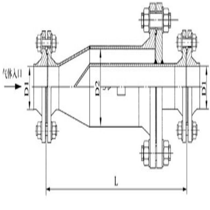
OF型氧气专用过滤器外形尺寸
氧气专用过滤器公称通径 D1 D2 布局长度 L 1.6 1.6 ~ 4.0 40 45 76 350 400 50 57 89 380 420 65 76 108 450 500 80 89 133 550 600 100 108 159 700 750 125 133 219 850 900 150 159 219 1000 1050 200 219 273 1150 1250 250 273 325 1250 1400 300 325 426 1400 1600 350 377 478 1500 1700 400 426 529 1600 1800 OF型氧气专用过滤器技术参数
设计标准
HG/T 21627-91、GB/T 14382-93、SH/T 3411-99
法兰标准
GB/T 9112-2000、HG 20592-97、HG 20615-97
设计压力
PN0.6~25.0MPa、ANSI 150~800Lb
工作温度
-40℃~650℃
阀体材质
WCB、LCB、A105、Q235、CF8、CF8M、CF3、CF3M
滤网材质
SS304、SS316、纤维烧结毡、金属烧结网
过滤精度
一般固体1~20目、一般液体30~80目、一般气体100~400目
订货须知:
OF型氧气专用过滤器安装使用维护事项如下:
1.氧气过滤器在运输,保管过程中,应注意防雨防潮和禁油。
2.与氧气专用管道过滤器连接的管路或附件法兰垫片应选用退火软化的铝片,铜片或铜丝。
3.为防止着火,工作压力大于0.6MPa的氧气过滤器前后,杰一阀门应连接一节铜基合金(或不锈钢)管道,长度不小于5倍管径,且不小于1.5m,并不得装设一切管件。
4.氧气过滤器安装在管道上后,应按系统设计规定进行系统强度严密型性及泄漏量试验,并进行特殊的洁扫处理。
5.手动阀门旁应设固定平台,以便操作和检修,口径大于70mm的手动球阀,只有在阀前后压差为0.3MPa以内.才允许操作,操作时,站在阀门侧面,缓慢操作,氧气过滤器不能做调节使用。
6.氧气过滤器在长期停用后,再使用时应重新彻底进行特殊的清扫处理。

一、①产品名称与型号②口径③是否带附件以便我们的为您正确选型④的使用压力⑤的使用介质的温度。
二、若已经由设计单位选定公司的型号,请按型号直接向我司销售部订购。
三、当使用的场合非常重要或环境比较复杂时,请您尽量提供设计图纸和详细参数,由我们的阀门公司专家为您审核把关。如有疑问:请:我们一定会尽心尽力为您提供优质的服务。提供全面、*的“阀门系统解决方案",也十分愿意帮助用户解决生产中所遇到的难题。 -
联系方式
- 联系人:申弘阀门
- 电 话:021-59260058
- 手 机:15901754341
- 传 真:86-021-31662735
- 邮 箱:494522509@qq.com
- 邮 编:201718
- 地 址:上海市青浦区金泽工业园区
- 网 址: https://bengye.cn.goepe.com/
http://www.021-fm.com
-
产品搜索





