-
SBZ45X锁闭式暗杆弹性座封闸阀申弘
详细信息| 询价留言SBZ45X锁闭式暗杆弹性座封闸阀 产品说明
本实用新型的工作原理是:当阀杆顺时针转动时,通过阀杆内部的衬套带动阀板向下移动,并且压缩阀板表面的密封橡胶层和阀体内的阀孔表面产生密封效果。当阀杆逆时针转动时,通过阀杆内部的衬套带动阀板向上移动,并且压缩阀板表面的密封橡胶层脱离阀体内的阀孔表面,从而打开阀孔。锁闭式暗杆弹性座封闸阀(SBZ45X-16)是在原基础上加装磁性专用锁,应用于供热、供水等收费管网,可随时对用户进行停水、停热,防止因用户故意拖欠水、热费给造成不 的损失。在重要管网系统或重要设备上安装此阀,可避免非操作人员误开或误关阀门,造成事故发生。

锁闭式暗杆弹性座封闸阀(SBZ45X-16)整体包胶产生变形补偿作用达到良好的密封效果,克服了一般闸阀密封不良、漏水和生锈的现象, 的节约安装空间。锁闭式暗杆弹性座封闸阀(SBZ45X-16)可广泛用于自来水、污水、建筑、石油、化工、食品、医药、轻纺、电力、船舶、治金、能源系统等流体管线上作为调节和截流装置使用。
对于软密封的漏气方式,常见的有以下几种:
1.汽缸上的电磁阀漏气,可能是由于减压阀中的气压过高。
2.汽缸的排气孔漏气,这是因为汽缸内部的两个活动部件与缸体的密封处的密封圈出现老化现象。
3.汽缸的上下部漏气,这是由于执行机构与气缸的密封处的密封圈由于其执行机构的频繁活动而没有达到密封的效果。
4.除上面的3种情况以外,还有另外一种情况也可能使汽缸漏气,即汽缸中的弹簧损坏,由于力到不到位造成的,这也可能造成关不到位。
本实用新型涉及一种闸阀,具体的说是一种软密封闸阀,属于密封设备技术领域。其包括阀盖、阀体、阀杆、阀盘和阀板,阀体内设有阀盘,阀盘上端支撑连接阀杆,阀杆下端内侧固接衬套,衬套内侧通过螺纹连接阀板,阀板下端穿过阀盘伸入阀体下端的阀孔中,阀孔内侧下端面为光滑表面;所述阀板表面包覆密封橡胶层;阀体上端通过螺栓连接阀盖,阀盖和阀杆之间设有阀杆导向块,阀杆的上端伸出阀盖。本实用新型阀孔内侧下端面为光滑表面,光滑表面使得流体更流畅,不容易产生杂物淤积;阀板表面包覆密封橡胶层,密封橡胶层采用食品级橡胶材料制作,不会出现锈水或腐蚀现象,可供生饮。

SBZ45X锁闭式暗杆弹性座封闸阀结构特点
1.整体阀盖暗杆设计,结构紧凑;阀杆螺母与闸板两体结构,无卡阻现象发生;直通道,无泄留凹腔;阀杆密封采用“O”形密封圈。
2.有优秀的防腐性能,壳体内,外表面喷涂环氧树脂,需要时内表面衬搪瓷;连接螺栓采用内六角螺栓,顶部胶封。
3.可靠的卫生性环氧树脂符合卫生标准GB/T17219-1998,闸板整体包覆符合卫生检验的橡胶;阀杆、阀杆螺母等零件采用不受水腐蚀的不锈钢或青铜等到材料。 适用饮用水、给排水、污水处理、天然气与煤气、工业以及食品等行业。

SBZ45X锁闭式暗杆弹性座封闸阀压力试验
公称压力
PN (MPa)强度试验 水密封/上密封试验 气密封试验 1.5 PN (MPa) 1.1 PN (MPa) 0.5-0.7 (MPa) 1.0 1.5 1.1 0.6 MPa 1.6 2.4 1.8 2.5 3.8 2.8 SBZ45X锁闭式暗杆弹性座封闸阀主要零部件材料明细表
序 号 零件名称 材质 1 阀体 灰铸铁、球墨铸铁、铸钢 2 闸板 球墨铁铁外覆三元乙丙或丁腈橡胶 3 内六角螺栓 碳化处理 4 密封圈 丁腈橡胶、三元乙丙 5 阀盖 灰铸铁、球墨铸铁、铸钢 6 阀杆 不锈钢 7 “O”形密封圈 丁睛橡胶、三元乙丙 8 止推轴承 锡青钢 9 螺栓 不锈钢 10 压盖 球墨铸铁、铸钢 11 防尘罩 丁腈橡胶 12 手轮(传动帽) 铸铁 技术参数
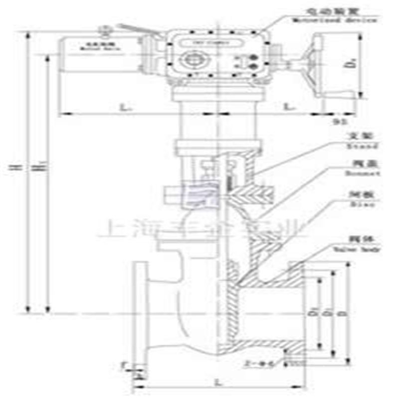
公称压力:1.0~2.5MPa 工作温度:0~120℃ 法兰标准:GB/T17241.6 GB9113 公称通径:50~400mm 适用介质:水、油、气等 试验标准:GB/T13927 API598 外形结构图
SBZ45X锁闭式暗杆弹性座封闸阀主要连接外型尺寸:(单位:mm)
DN 50 65 80 100 125 150 200 250 300 350 400 450 500 600 L 178 190 203 229 254 267 292 330 356 381 406 432 457 508 Hmin(全关) 313 332 372 424 497 562 680 837 948 1010 1220 1280 1480 1665 Hmax(全开) 355 375 415 476 540 600 720 875 990 1050 1245 1310 1560 1750 常见的闸阀,包括阀体、阀盖及闸板,在阀体和阀盖内设置有阀杆,阀杆的一端伸 出阀盖;手轮固定在阀杆伸出端,阀杆螺母连接在阀杆的另一端,阀杆螺母置于闸板槽内, 在阀盖与阀杆之间设置有起密封作用的阀盖螺母。目前所使用的软密封闸阀阀盖螺母上 没有加任何隔离措施,因此阀盖螺母有部分裸露在阀盖外部,易与空气中水分接触,产生锈 蚀,降低使用寿命,而且螺母与阀杆间存在间隙,易使灰尘落入阀体内。

订货须知:
一、①产品名称与型号②口径③是否带附件以便我们的为您正确选型④的使用压力⑤的使用介质的温度。
二、若已经由设计单位选定公司的型号,请按型号直接向我司销售部订购。三、当使用的场合非常重要或环境比较复杂时,请您尽量提供设计图纸和详细参数,由我们的阀门公司专家为您审核把关。如有疑问:请:我们一定会尽心尽力为您提供优质的服务。提供全面、*的“阀门系统解决方案",也十分愿意帮助用户解决生产中所遇到的难题。
-
联系方式
- 联系人:申弘阀门
- 电 话:021-59260058
- 手 机:15901754341
- 传 真:86-021-31662735
- 邮 箱:494522509@qq.com
- 邮 编:201718
- 地 址:上海市青浦区金泽工业园区
- 网 址: https://bengye.cn.goepe.com/
http://www.021-fm.com
-
产品搜索





