-
Z545X伞齿轮暗杆弹性座封闸阀申弘
详细信息| 询价留言Z545X伞齿轮暗杆弹性座封闸阀产品说明
本实用新型涉及一种阀门,尤其是一种闸阀。本软密封闸阀采用无凹腔结构,阀体阀盖内外表面喷涂环氧树脂,闸板表面包覆橡胶,这样从根本上了腐蚀发生的可能性,阀杆密封处舍弃填料而采用“O”形密封圈,使得蜜蜂 加。根据需要,本闸阀可以采用操作杆、手轮、电动及气动等方式操作。
Z545X伞齿轮暗杆弹性座封闸阀结构特点:
1、整体阀盖暗杆设计,结构紧凑;阀杆螺母与闸板两体结构,无卡阻现象发生;直通道,无泄留凹腔;阀杆密封采用“O”形密封圈。
2、有好的的性能,壳体内,外表面喷涂环氧树脂,需要时内表面衬搪瓷;连接螺栓采用内六角螺栓,顶部胶封。
3、的卫生性环氧树脂符合卫生标准GB/T17219-1998,闸板整体包覆符合卫生检验的橡胶;阀杆、阀杆螺母等零件采用不受水腐蚀的不锈钢或青铜等到材料。适用饮用水、给排水、污水处理、 气与煤气、工业以及食品等行业。

Z545X伞齿轮暗杆弹性座封闸阀背景技术:
目前,市场上出售的大部分闸阀是闸板两面均是倒置斜面的楔型闸阀,这种闸阀利用楔型原理,依靠闸板斜面与阀体斜面的紧密配合来达到密封效果。在该种闸阀的实际生产过程中,由于阀体斜面的斜度与闸板斜面的斜度存在一定的误差,会导致闸阀密封不严,出现渗漏。
市场上还出现了一种软密封闸阀,“一种闸阀”,其闸板正面为一垂直平面,背面为倒置斜面,阀体内是与闸板相对应的直面和斜面,在阀体内的直面上设置有密封圈。很显然,这种闸阀的不足之处正在密封圈设置于其垂直平面这一侧,使得闸阀在使用过程中,密封圈始终处于与闸板紧密接触中,密封圈易磨损,影响了闸阀的使用寿命。

Z545X伞齿轮暗杆弹性座封闸阀发明内容
本实用新型的目的是提供一种能有效防止密封圈磨损、延长密封圈使用寿命的软密封闸阀。本实用新型的目的是这样实现的将闸板的正面设计成斜面、背面设计为垂直平面,阀体内腔设计为与闸板相对应的斜面和直面,在闸板的斜面上设置有软密封圈。
主要技术参数
公称压力:1 0~2 5MPa
工作温度:0~80"C
法兰标准:GB/T l7241.6 GB9113
公称通径:500~1 200mm
适用介质:水、油、气等
Z545X伞齿轮暗杆弹性座封闸阀主要零邵件材料
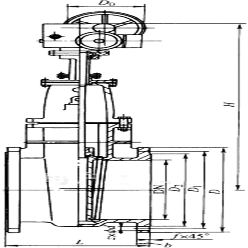
名称 材质 阀体 灰铸铁、球墨铸铁、铸钢 闸板 球墨铸铁外覆三元乙丙或丁腈橡胶脏 内六角螺栓 碳化处理 密封圈 三元乙丙或丁腈橡胶 阀盖 灰铸铁、球墨铸铁、铸钢 阀杆 不锈钢 “O”形密封圈 丁腈橡胶 止推轴承 锡青铜 螺栓 碳钢、合金钢 压盖 球墨铸铁、铸钢 防尘罩 丁腈橡胶 手轮 可锻铸铁 Z545X伞齿轮暗杆弹性座封闸阀主要外形连接尺寸 单位mm
DN 500 600 700 800 900 1000 1200 L 457 508 660 720 780 840 960 H(手轮) 1480 1665 2200 2800 2800 300 3000 H(伞齿轮) 1650 1900 2350 2950 2950 3150 3150 H(电动) 电动装置可由用户指 由于采用了上述技术方案,在阀门开启或关闭时,由于压力腔与非压力腔存在压差,压差将闸板的斜面推离阀体内腔的斜面,使闸板始终沿着直面上下运动,而不是沿着设置有密封圈的斜面运动,这样就减少了密封圈的磨损,有效地延长了密封圈的使用寿命,延长了闸阀的使用寿命。

采用*优质的球墨铸铁或碳钢铸造而成,除具有弹性座封闸阀的优点之外,还具有强度高、重量轻,几何尺寸精确的特点,闸板具有互换的功能,加装螺旋伞齿轮省力机构,一人可非常轻松自如地开关,也可根据用尸的要求加装开闭指示柱,或电动、气动执行机构。密封、防锈功能极佳,安全可靠,使用寿命长。可立式或卧式安装,广泛应用于给排水系统、污水处理系统、市政建设及矿山、冶金、电厂等行业。
订货须知:
一、①产品名称与型号②口径③是否带附件以便我们的为您正确选型④的使用压力⑤的使用介质的温度。
二、若已经由设计单位选定公司的型号,请按型号直接向我司销售部订购。三、当使用的场合非常重要或环境比较复杂时,请您尽量提供设计图纸和详细参数,由我们的阀门公司专家为您审核把关。如有疑问:请:我们一定会尽心尽力为您提供优质的服务。提供全面、*的“阀门系统解决方案",也十分愿意帮助用户解决生产中所遇到的难题。
-
联系方式
- 联系人:申弘阀门
- 电 话:021-59260058
- 手 机:15901754341
- 传 真:86-021-31662735
- 邮 箱:494522509@qq.com
- 邮 编:201718
- 地 址:上海市青浦区金泽工业园区
- 网 址: https://bengye.cn.goepe.com/
http://www.021-fm.com
-
产品搜索







