-
RREX电动弹性座封闸阀申弘
详细信息| 询价留言RREX电动弹性座封闸阀 产品说明
本实用新型涉及密封阀技术领域,具体为一种楔式弹性软密封闸阀。本实用新型采用新颖的结构设计、严格的制造技术和高性能的新型材料,克服了传统闸阀密封不良、内件特别是闸板易锈蚀、橡胶弹性疲乏易老化等缺陷,密封性能可靠,操作轻快,维护简单便利,使用寿命长,适用于燃气系统。水行业等。以上述依据本实用新型的理想实施例为启示,通过上述的说明内容,相关工作人员完全可以在不偏离本项实用新型技术思想的范围内,进行多样的变更以及修改。本项实用新型的技术性范围并不局限于说明书上的内容,必须要根据权利要求范围来确定其技术性范围。

RREX电动弹性座封闸阀备注:
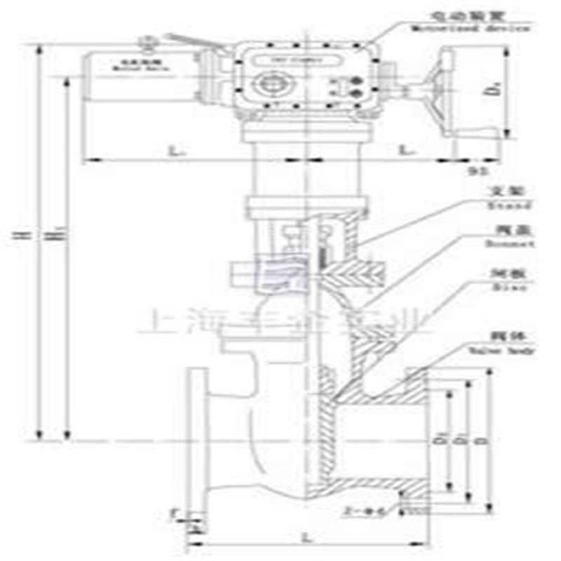
DN50-600mm法兰钻孔GB/T17241.6标准制造.
DN50-200mm法兰外径(D3)依PN10/16标准制造,DN250-500mm则符合PN16标准。
DN600mm法兰外径(D3)1.0Mpa符合JISG5527-7标准,1.6Mpa标准。
两端面距(结构长度L)符合GB12221之短体型标准。
RVXX表示非明杆式闸阀,RVXP表示附省力装置。
RRXX表示明杆式闸阀。
RRHX表示明杆式附手轮。
RREX表示明杆式附电动操作装置。
RVCX表示非明杆式附传动帽。
RVHX表示非明杆式附手轮。
RVHS表示非明杆式附信号显示器。
RCEX表示非明杆式附电动操作装置。
RVCH表示非明杆式附传动帽卧式操作装置。
PN25级另行订制。阀门供应网若有变更尺寸,恕不另行通知。
楔式闸阀的闸板可以做成一个整体,叫做钢性闸板,也可以做成能产生微量变形的闸板,以改善其工艺性,弥补软密封闸阀软密封闸阀密封面角度在加工过程中产生的偏差,这种闸板叫做弹性闸板。软密封闸阀软密封闸阀分为明杆软密封闸阀和暗杆软密封闸阀两种。通常在升降杆上有梯形螺纹,通过闸板中间的螺母以及阀体上的导槽,将旋转运动变为直线运动,也就是将操作转矩变为操作推力。开启阀门时,当闸板提升高度等于阀门通径的1:1倍时,流体的通道完全畅通,但在运行时,此位置是无法监视的。实际使用时,是以阀杆的顶点作为标志,即开不动的位置,作为它的全开位置。为考虑温度变化出现锁死现象,通常在开到顶点位置上,再倒回1/2 — 1圈,作为全开阀门的位置。因此,阀门的全开位置,按闸板的位置来确定,本类阀门在管道中一般应当水平安装。现有的软密封闸阀关闭力矩大,密封性能不够好,容易因为温度的变化而造成楔死,大大缩短了使用寿命,且流动阻力大,为此我们设计一种楔式弹性软密封闸阀,用来解决上述问题。本实用新型的目的在于提供一种楔式弹性软密封闸阀,以解决上述中提出的问题。

RREX电动弹性座封闸阀执行器主要技术参数:
1、功能强劲:智能型、调节型、开关式。
2、体积小巧:体积仅相当于同类产品的35%左右。
3、使用方便:采用单相电源,接线简单;采用*的球型凸出结构,使观察更方便;免加油免点检、防水防锈、任意角度安装。
4、保护装置有双重限位、过热保护、过载保护。全行程时间15秒、30秒、45秒、60秒。及带手动功能。
5、智能数控:内置模块采用先进计算机单片及智能控制软件直接接收计算机或工业仪表等输出的标准信号(4-20mA DC /1-5VDC)实现阀门开度的智能控制和精确定位。

为实现上述目的,
本实用新型提供如下技术方案:一种楔式弹性软密封闸阀,包括阀体,所述阀体的左下端设有阀座,所述阀座的内腔设有密封阀,所述密封阀的上端设有密封压板,所述密封压板与阀座通过内六角螺钉固定,所述阀座的左端设有闸板,所述阀体的内腔中穿插有阀杆,所述阀体的上端设有阀盖,所述阀盖与阀体通过*紧固件连接,所述阀盖的内侧设有上密封座,所述上密封座的上端设有填料层,所述填料层的上端安装有填料压套,所述填料压套的上端安装有填料压板,所述填料压板中穿插有第二紧固件,且第二紧固件的底端连接有圆柱销,所述阀盖的上端外侧设有支架,所述之间的上端安装有单向推力球轴承,所述单向推力球轴承的上端安装有油杯,所述油杯的上端安装有轴承压盖,所述轴承压盖的上端安装有手轮。优选的,所述阀体与阀盖的连接处安装有复合垫片。
优选的,所述*紧固件包括六角螺母和等长双头螺柱。
优选的,所述第二紧固件包括平垫圈、活节螺栓和六角螺母。
优选的,所述手轮的左端安装有圆螺母。
优选的,所述填料层为柔性石墨或石墨编织绳。
RREX电动弹性座封闸阀主要技术参数
公称通经 50~1200mm 公称压力 1.0~2.5MPa 法兰标准 GB/T 17241.6、GB9113 工作温度 0~80℃ 试验标准 GB13927 AP1598 适用介质 水、油、气等 四、RREX电动弹性座封闸阀 主要零件材料
名称 材料 阀体 灰铸铁、球墨铸铁、铸钢 闸板 球墨铸铁外覆三元乙丙或丁腈橡胶 内六角螺栓 碳化处理 密封圈 丁腈橡胶 阀盖 灰铸铁、球墨铸铁、铸钢 阀杆 不锈钢 "O"形密封圈 丁腈橡胶 止推轴承 锡青铜 螺栓 不锈钢 压盖 球墨铸铁、铸钢 防尘罩 丁腈橡胶 手轮(传动帽) 可锻铸铁 RREX电动弹性座封闸阀外形尺寸
产品代号
公称口径
D
D1
N-φd
L
H
1.0MPa
1.6MPa
1.0MPa
1.6MPa
1.0MPa
1.6MPa
RVC(H)X-0050
50
165
125
4-19
178
340
RVC(H)X-0065
65
185
145
4-19
190
370
RVC(H)X-0080
80
200
160
8-19
203
410
RVC(H)X-00100
100
220
180
8-19
229
450
RVC(H)X-00125
125
250
210
8-19
254
480
RVC(H)X-00150
150
285
240
8-23
267
550
RVC(H)X-00200
200
340
295
8-23
12-23
292
630
RVC(H)X-00250
250
405
350
355
12-23
12-28
330
750
RVC(H)X-00300
300
460
400
410
12-23
12-28
356
820
RVC(H)X-00350
350
520
460
470
16-23
16-28
381
980
RVC(H)X-00400
400
580
515
525
16-28
16-31
406
1010
RVC(H)X-00450
450
640
565
585
20-28
20-31
432
1270
RVC(H)X-00500
500
715
620
650
20-28
20-34
457
1270
RVC(H)X-00600
600
840
725
770
20-31
20-37
508
与现有技术相比,本实用新型的有益效果是:该密封闸阀具有结构紧凑,采用楔式弹性闸板,关闭力矩小,易密封,不易因温度变化而造成楔死,操作轻便灵活,密封面采用不锈钢堆焊硬质合金,使用寿命长,密封圈采用RPTFE密封材料,阀座采用堆焊硬质合金,具有软硬密封的双重密封功能密封可靠,提高使用寿命,阀体内部介质通道是直通的,介质成直线流动,流动阻力小。
RREX电动弹性座封闸阀安装与维护
1、 安装:
(1) 安装前须检查产品型号、位号及规格是否吻合,检查整机零件是否缺损与松动。
(2) 在安装前,对管道应进行清洗,阀门入口处要有足够的直管段,并配有过滤器。阀体与管道的法兰连接,要注意同轴度。
(3) 切断阀安装前,应先彻底清洗管道。
(4) 安装场地应考虑到人员设备的安全,既便于操作,又有利于拆装与维护。
(5) 阀门应正立垂直安装在水平管道上,不得已时可倾斜安装,尽量避免水平安装,阀自重量较大或有振动的场合,要用支撑架。
(6) 介质流动方向应与阀体上的箭头指向一致。气源应干燥、无油。阀门应在环境温度-20~55℃场所使用。

2、RREX电动弹性座封闸阀 维护:
(1) 清洗阀门:对清洗一般介质,只要用水洗净就可以。但对清洗有害健康的介质,首先要了解其性质,再选用相应的清洗办法。
(2) 阀门的拆卸:将外露表面生锈的零件先除锈,但在除锈前,要保护好阀座、阀芯、阀杆与推杆等精密零件的加工表面。拆装阀座时应使用专用工具。
(3) 阀座:密封面有较小的锈斑与磨损,可用机械加工的方法进行,如损坏严重必须换新。但不管修理或更换后的硬密封面,都必须进行研磨。
(4) 阀杆:表面损坏,只能换新。
(5) 推杆、导向与密封表面的损坏:对反作用执行机构必须换新,而对正作用执行机构,可用适当的修理后使用。
(6) 压缩弹簧:如有裂纹等影响强度的缺陷,必须换新。
(7) 易损零件:填料、密封垫片与O型圈,每次检修时,全部换新。阀芯、膜片必须检查是否有预示将来可能发生的裂纹、老化与腐蚀痕迹,根据检查结果,决定是否更换,但膜片使用期一般*多2-3年。
(8) 阀门组装要注意对中,螺栓要在对角线上拧紧,滑动部分要加润滑油。组装后应按产品出厂测试项目与方法调试,并在这期间,可准确地调整填料压紧力、阀芯关闭位置。

下面将结合本实用新型实施例中的附图,对本实用新型实施例中的技术方案进行清楚、完整地描述,显然,所描述的实施例仅仅是本实用新型一部分实施例,而不是全部的实施例。基于本实用新型中的实施例,本领域普通技术人员在没有做出创造性劳动前提下所获得的所有其他实施例,都属于本实用新型保护的范围。
订货须知:
一、①产品名称与型号②口径③是否带附件以便我们的为您正确选型④的使用压力⑤的使用介质的温度。
二、若已经由设计单位选定公司的型号,请按型号直接向我司销售部订购。三、当使用的场合非常重要或环境比较复杂时,请您尽量提供设计图纸和详细参数,由我们的阀门公司专家为您审核把关。如有疑问:请:我们一定会尽心尽力为您提供优质的服务。提供全面、*的“阀门系统解决方案",也十分愿意帮助用户解决生产中所遇到的难题。
-
联系方式
- 联系人:申弘阀门
- 电 话:021-59260058
- 手 机:15901754341
- 传 真:86-021-31662735
- 邮 箱:494522509@qq.com
- 邮 编:201718
- 地 址:上海市青浦区金泽工业园区
- 网 址: https://bengye.cn.goepe.com/
http://www.021-fm.com
-
产品搜索







