-
Z641F46气动波纹管衬氟闸阀申弘
详细信息| 询价留言Z641F46气动波纹管衬氟闸阀产品说明
包括阀体、闸板、阀盖、阀杆、执行机构,闸板包括连接部和封口部,连接部上端与阀杆联动配合,在连接部外套接有波纹管,波纹管上端固定在阀盖与阀体之间,波纹管下端固定在闸板上。闸阀是一种*常见的启闭阀门,利用两侧面密封呈楔状的闸板来接通或截断管路中介质,楔式闸阀不允许微量开启在管路中作节流装置用,以免因高速流动的介质冲蚀而加快密封面的损坏。FEP(F46)、PCTFE(F3)衬氟闸阀适用在-50℃~150℃的各种浓度的王水、硫酸、盐酸、氢氟酸和各种有机酸、强酸、强氧化剂,FEP还适用于各种浓度的强碱有机溶剂以及其它腐蚀性气体、液体介质的管路上使用。

Z641F46气动波纹管衬氟闸阀的特点
1.阀体有扁体和圆体两种形状:GB阀门采用圆体,ANSI磅级阀门DN≤300Lb采用扁体,DN≥400Lb采用圆体,阀体、阀盖的内腔和闸板、阀杆外表面等直接与介质接触的部件,全部名衬FEP(F46)等氟塑料;
2.密封副为FPF(F46)/ FEP(F46)或其它材料组合,摩擦系数小,启闭力矩低;
3.填料采用PTFE(F4)标准填料,密封性能好,维修更换方便;
4.带有弹性的闸板,可补偿闸板密封面与阀座密封面之间楔角偏差,吻合度好,密封效果理想;
5.介质可从两侧任意方向通过闸阀,适用于介质方向可能改变的管路上作用启闭装置。
二,基本型号
Z41F3型、Z41F46型和Z40F3、Z40F46型。
三、设计规范
遵循GB 12234/API6000标准
四、驱动方式
手动、电动、下齿轮、伞齿轮传动。以上显示和描述了本实用新型的基本原理、主要特征和本实用新型的优点。本行业的技术人员应该了解,本实用新型不受上述实施例的限制,上述实施例和说明书中描述的只是说明本实用新型的原理,在不脱离本实用新型精神和范围的前提下,本领域内普通的技术人员的简单更改和替换都是本实用新型的保护范围之内。

所述的连接部截面为圆形或椭圆形。
在闸板的外部包覆有衬氟层。
所述的衬氟层为可熔性聚四氟乙烯或氟化乙烯丙烯共聚物或改性聚烯烃材质制成。
在阀体内壁包覆有内衬层,在阀盖的内壁包覆有内衬层。
所述的内衬层为可熔性聚四氟乙烯或氟化乙烯丙烯共聚物或改性聚烯烃材质制成。
所述的波纹管采用聚四氟乙烯材质制成。
在闸板连接部与阀盖之间间隙内填充有聚四氟乙烯材质的填料,并在阀盖上设有压紧调料的填料压盖。
所述的闸板与阀杆之间通过圆柱销固定连接。
在阀盖与阀体之间设有将波纹管端部压紧在阀盖与阀体之间的垫片。
1、 本阀主要由阀体、阀盖、闸板、阀杆、密封圈、双层气缸及其活塞、活塞杆、隔板连同缓冲机构、手动机构、气动-手动转换装置和阀盖填料装置等部分组成。
2、上活塞行至行程上端可顶上上回讯器,使之发讯;下活塞行之行程下端可顶下下回讯器,使之发讯,以作为闸阀开闭信息在中央操作室的模拟仪表盘上进行显示。
3、手轮上部的外伸指示杆的上升和下降,标志着该阀的闸板是处于提升状态还是下降状态。闸阀关闭时,外伸指示杆位于*低位置;反之,闸阀全开时,外伸指示杆位于*高位置。此即为本阀启闭状态的现场指示。
4、气缸盖上部装有气动-手动转换装置。将转换手柄顺时针方向提转到“气动”定位孔定位,闸阀处于气动操作状态;反之,将转换手柄逆时针方向提转到“手动”定于孔处定位,闸阀即可进行手动操作。带锥齿轮的手柄转换方向相反。手动操作闸阀时,手轮旋向和普通手动阀一样,即顺时针转为关,逆时针转为开。带锥齿轮转动的相反。

Z641F46气动波纹管衬氟闸阀 基本型号
手动 Z41F3 Z40F3 蜗轮 Z441F3 Z440F3 Z41F46 Z40F46 Z541F46 Z540F46 气动 Z641F3 Z640F3 电动 Z941F3 Z940F3 Z641F46 Z640F46 Z941F46 Z940F46 三、Z641F46气动波纹管衬氟闸阀技术规范
设计标准 GB12234 结构长度 GB12221 法兰标准 JB/T79-94 GB9113.1-26 检验试验 GB/T13927 驱动方式 手动、电动、气动 四、Z641F46气动波纹管衬氟闸阀主要零部件材料表
序号 零件名称 灰铸铁 铸钢 不锈耐酸铸钢 超低碳不锈耐酸铸阀 Z C P R PL RL 1 阀体/端盖/闸板 HT250 WCB CF8 CF8M CF3 CF3M 2 阀杆 1Cr13 2Cr13 1Cr18Ni9 1Cr18Ni12Mo2Ti 00Cr18Ni10 00Cr17Ni14Mo2 3 衬里/阀座 PTFE(F4)、PCTFE(F3)、FEP(F46)、PFA(可溶性4) 4 填料/压盖 WCB CF8 CF8M CF3 CF3M 5 填料 PTFE(F4) PTFE(F4) PTFE(F4) 6 活节螺栓 35 1Cr17Ni2 1Cr17Ni2 7 阀杆螺母 ZCuAI10Fe3 ZCuAI10Fe3 ZCuAI10Fe3 8 紧固螺母 45 1Cr17Ni2 1Cr18Ni9Ti 9 螺母 0Cr18Ni9 0Cr18Ni9 10 手轮 WCB WCB WCB 
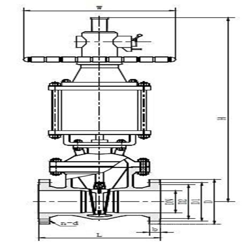
五、Z641F46气动波纹管衬氟闸阀 外型和连接尺寸公称通径 标准值 参考值 DN(mm) NPS(inch) L D D1 D2 f b Z-Фd W D0 H WT(Kg) PN0.6MPa 15 1/2 130 80 55 40 2 12 4-Ф12 100 100 120 5 20 3/4 150 90 65 50 2 14 4-Ф12 100 120 140 6 25 1 160 100 75 60 2 14 4-Ф12 120 130 150 7 32 11/4 180 120 90 70 2 16 4-Ф14 120 156 185 10 40 11/2 240 130 100 80 3 16 4-Ф14 160 165 205 18 50 2 250 140 110 90 3 16 4-Ф14 160 350 400 25 65 21/2 270 160 130 110 3 16 4-Ф14 180 370 435 30 80 3 280 185 150 125 3 18 4-Ф18 180 430 510 43 100 4 300 205 170 145 3 18 4-Ф18 220 495 595 58 125 5 325 235 200 175 3 20 8-Ф18 220 610 735 100 150 6 350 260 225 200 3 20 8-Ф18 240 670 820 115 200 8 400 315 280 255 3 22 8-Ф18 240 815 1015 145 250 10 450 370 335 310 3 24 12-Ф18 240 965 1215 230 300 12 500 435 395 362 4 24 12-Ф23 280 1140 1440 335 350 14 550 485 445 412 4 26 12-Ф23 280 1275 1625 540 400 16 600 535 495 462 4 28 16-Ф23 320 1445 1845 670 450 18 650 590 550 518 4 28 16-Ф23 320 1530 1980 780 500 20 700 640 600 568 4 30 16-Ф23 360 1725 2225 850
Z641F46气动波纹管衬氟闸阀技术总结
本实用新型提供一种波纹管衬氟闸阀,包括阀体、闸板、阀盖、阀杆、执行机构,闸板包括连接部和封口部,连接部上端与阀杆联动配合,在连接部外套接有波纹管,波纹管上端固定在阀盖与阀体之间,波纹管下端固定在闸板上。在闸板上加装了PTFE波纹管,强化了阀门内腔的密封性能,在开关时通过波纹管的伸缩性能,使闸板上下滑动时可调,从而达到了一定范围内可调节流量的作用,阀盖支架上加装了轴承组件,使阀门在开闭时扭矩减轻,开闭速度更快,介质流向不受限制,不扰流、不降低压力,阀前阀后压差变化不大,结构相对简单,更换零部件或维护成本更低。
Z641F46气动波纹管衬氟闸阀安装使用及维修保养注意事项
1、阀在安装前应仔细核对型号是否与使用要求符合。
2、本阀可安装在任何工作位置,但应考虑检修和操作的方便。
3、阀在安装前应对阀体进行密封性试验;阀在安装前还应进行三次以上的空载启闭试验,气动闸阀的闸板开关应灵活,各种轴件不得有卡阻现象。
4、安装过程中应**孔内、密封面及接合面的污垢,检查连接螺栓是否均匀拧紧。
5、安装完毕要进行密封试验及气动和手动操作试验。同时检查回讯器在阀门全开或全关状态下能否正确发讯。
6、本阀在使用中,要求将闸板全开全关,不允许将闸阀打开一部分作为调节流量的节流阀使用。否则,在介质流速的冲刷下使密封面损坏。
7、阀在使用过程中,应定期(18个月)在气缸内壁加注少量润滑油。
8、阀在使用期间,应视其动作频繁程度进行定期检查和维护。
9、气动-手动转换装置上的转换手柄在手动的位置,优良不允许进动操作。

订货须知:
一、①产品名称与型号②口径③是否带附件以便我们的为您正确选型④的使用压力⑤的使用介质的温度。
二、若已经由设计单位选定公司的型号,请按型号直接向我司销售部订购。三、当使用的场合非常重要或环境比较复杂时,请您尽量提供设计图纸和详细参数,由我们的阀门公司专家为您审核把关。如有疑问:请:我们一定会尽心尽力为您提供优质的服务。提供全面、*的“阀门系统解决方案",也十分愿意帮助用户解决生产中所遇到的难题。
-
联系方式
- 联系人:申弘阀门
- 电 话:021-59260058
- 手 机:15901754341
- 传 真:86-021-31662735
- 邮 箱:494522509@qq.com
- 邮 编:201718
- 地 址:上海市青浦区金泽工业园区
- 网 址: https://bengye.cn.goepe.com/
http://www.021-fm.com
-
产品搜索






