-
Z945W电动暗杆楔式闸阀申弘
详细信息| 询价留言Z945W电动暗杆楔式闸阀 产品说明
本实用新型涉及阀门技术领域,特别是涉及一种暗杆闸阀。采用多回转电动装置,用以驱动和控制阀门的开启和关闭,操作人员可以在控制室内远距离对电动暗杆闸阀进行控制,也可以现场手动操作,也可以与计算机配合实现计算机自动控制。

Z945W电动暗杆楔式闸阀背景技术:
闸阀(gate valve)的启闭件是闸板,闸板的运动方向与流体方向相垂直,闸阀只能作全开和全关,不能作调节和节流。按密封面配置闸阀可分为楔式闸板式闸阀和平行闸板式闸阀,楔式闸板式闸阀又可分为单闸极式、双闸板式和弹性闸板式;平行闸板式闸阀可分为单闸板式和双闸板式。楔式闸阀的闸板可以做成一个整体,叫做刚性闸板;也可以做成能产生微量变形的闸板,以改善其工艺性,弥补密封面角度在加工过程中产生的偏差,这种闸板叫做弹性闸板。 按阀杆的螺纹位置划分,闸阀可分为明杆闸阀和暗杆闸阀两种。明杆闸阀(亦叫升降杆)闸阀的闸板随阀杆一起作直线运动,通常在升降杆上有梯形螺纹,通过阀门顶端的螺母以及阀体上的导槽,将旋转运动变为直线运动,也就是将操作转矩变为操作推力。手动明杆闸阀工作原理转动手轮,通过手轮与阀杆的螺纹的进、退,提升或下降与阀杆连接的阀板,达到开启和关闭的作用。暗
Z945W电动暗杆楔式闸阀特点:
1.全中文显示:一体化多回转电动执行器视窗采用高清晰LCD数字、全中文及标示符液晶显示屏。
2. 相序自动纠正:执行机构旋向可自由设定,也可自由校正电源相序。
3. 缺相保护:具有电源缺相保护功能。
4. 控制模式:常规远方控制信号采用4~20mA模拟量信号控制或者开关量控制 ,提供4~20mA信号反馈(可提供特殊量控制)。远方信号、反馈信号均与内 部实现电气隔离 。
5. 禁动延时保护:避免或减少了机械部分由于惯性承受的反作用力。 此保护功能同时适 用于现场控制方式和远控控制方式。
6. 电子互锁保护:在一个指令正在执行且保持有效,再施加另一个反向控制指令时(即两个令同时存 在并有效),此时电动执行器将停执行完*个指令后再执行下一个指令
7. 瞬间过力矩保护:当开或关向力矩瞬间被顶开,阀门将停下不动作,即使力矩开关瞬间顶开后闭合 ,阀门仍不会动作,只有向反向动作一下,即可解除过力矩保护。
8. 现场远控切换:现场远控可自由切换,使用户调试、维护方便快捷。

一种暗杆闸阀,包括阀体、阀盖、阀杆和闸板,上述阀盖上端设有一环形凸台,上述阀杆可转动地穿设于阀盖并延伸至阀体内部,且阀杆与环形凸台之间装配有用于限制阀杆沿轴向滑动的限位件。
进一步,上述限位件包括若干个钢珠。
进一步,上述环形凸台的内侧壁设有*环形凹部,上述阀杆的外侧壁设有第二环形凹部,上述*环形凹部和第二环形凹部构成用于存放钢珠的安装槽。
更进一步,上述环形凸台设有一与上述安装槽相通的螺纹通孔,且该螺纹通孔内配设有螺钉。
进一步,上述阀盖与阀杆之间装配有若干个密封圈。
进一步,上述阀盖与阀体之间通过内六角螺栓连接。
和现有技术相比,本实用新型产生的有益效果在于:
1、本实用新型对现有暗杆闸阀进行优化设计,改进后的结构设计巧妙,无需压盖便可实现对阀杆的限位和固定,减少了不必要的装配间隙,能够有效避免出现泄漏现象,并且具有结构简单和拆装方便等优点。
2、本实用新型采用钢珠作为限位件,一方面可实现对阀杆的限位作用,有效防止其沿轴向滑动,另一方面可保证阀杆顺畅地转动,确保其操作灵敏性。
阀门类型代号:Z表示闸阀;
连接方式代号:4表示法兰式;
结构形式代号:5表示楔式暗杆闸板;
密封面材料代号:W表示阀体直接加工、H表示合金钢;
阀体压力代号:16表示压力十六公斤;
Z945W电动暗杆楔式闸阀技术标准
执行标准 设计制造 结构长度 法兰面尺寸 试验-检验 GB/T12234-89 GB/T12221-89 JB79 GB/T9113 JB/T9092-99 GB/T13927-92 ■ 主要性能规范
型号 公称压力 (MPa) 试验压力 (MPa) 工作温度 使用介质 密封 强度 Z945H-10 1.0 1.1 1.5 ≤200 ℃ 水、蒸汽、油 Z945W-10 Z945T-10 ≤100 ℃ 油品、煤气 ■ Z945W电动暗杆楔式闸阀主要零件材料
1 阀体 灰铸铁、铸钢 2 闸板 碳钢+合金钢、灰铸铁、灰铸铁+黄铜 3 阀杆 碳钢、不锈钢、黄铜 4 垫片 四氟垫片、金属石墨垫片 5 大阀盖 灰铸铁、铸钢 6 小阀盖 灰铸铁、铸钢 7 填料 句四氟乙烯、柔性石墨、浸油石棉盘根 8 支架 灰铸铁、铸钢 9 电动执行器 壳体(HT200、WCB) 
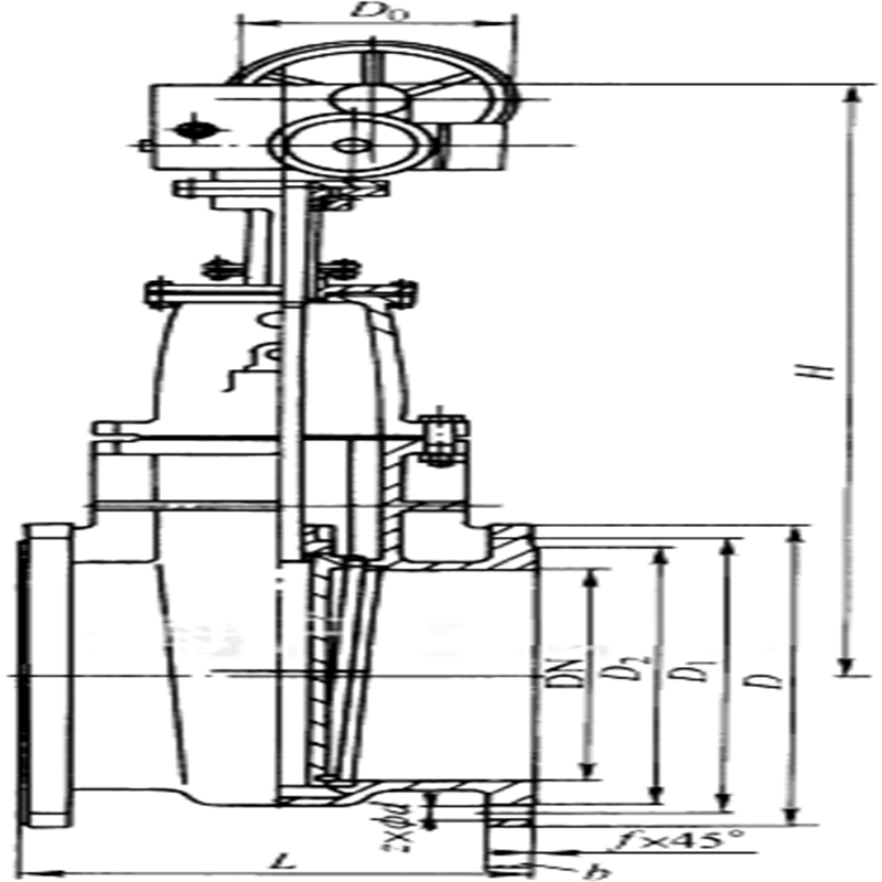
■ Z945W电动暗杆楔式闸阀主要外形及连接尺寸
本实用新型公开了一种暗杆闸阀,涉及闸阀领域,包括阀体、阀盖、阀杆和闸板,阀盖上端设有一环形凸台,阀杆可转动地穿设于阀盖并延伸至阀体内部,且阀杆与环形凸台之间装配有用于限制阀杆沿轴向滑动的限位件。本实用新型对现有暗杆闸阀进行优化设计,改进后的结构设计巧妙,无需压盖便可实现对阀杆的限位和固定,减少了不必要的装配间隙,能够有效避免出现泄漏现象,并且具有结构简单和拆装方便等优点。此外,本实用新型采用钢珠作为限位件,一方面可实现对阀杆的限位作用,有效防止其沿轴向滑动,另一方面可保证阀杆顺畅地转动,确保其操作灵敏性。公称通径DN L H W D D1 D2 b 50 180 根据客户
所要求配
置电动执
行器而定160 125 100 20 65 195 180 145 120 20 80 210 195 160 135 22 100 230 215 180 155 22 125 255 245 210 185 24 150 280 280 240 210 24 200 330 335 295 265 26 250 380 390 350 320 28 300 420 440 400 368 28 350 450 500 460 428 30 400 480 565 515 482 32 450 510 615 565 538 32 500 540 670 620 585 34 600 600 780 725 685 36 700 660 895 840 800 40
Z945W电动暗杆楔式闸阀安装与维护应注意以下事项:
1.手轮、手柄及传动机构均不允许作起吊用,并严禁碰撞。
2.双闸板闸阀应垂直安装(即阀杆处于垂直位置,手轮在顶部 )。
3.带有旁通阀的闸阀在开启前应先打开旁通阀(以平衡进出口的压差及减小开启力 )。
4.带传动机构的闸阀,按产品使用说明书的规定安装。
5.如果阀门经常开关使用,每月至少润滑一次。
Z945W电动暗杆楔式闸阀日常保养工作:
1、电动阀门存放环境需注意,应存放在干燥通风的室内,且堵塞通路两端。
2、电动阀门应定期检查,并清除其上的污物,涂抹涂防锈油在其表面。
3、安装应用后的电动阀门,应对其进行定期检修,以确保其正常工作。
4、应查看电动阀门密封面是否磨损,并根据情况进行维修或更换。
5、检查阀杆和阀杆螺母的梯形螺纹磨损情况、填料是否过时失效等,并进行必要的更换。
6、应对电动阀门的密封性能进行试验,确保其性能。
7、运行中的电动阀门应完好,法兰和支架上的螺栓,螺纹无损,没有松动现象。
8、如手轮丢失,应及时配齐,而不能够用活扳手代替。
9、填料压盖不允许歪斜或无预紧间隙。
10、如果电动阀门使用环境较为恶劣,易受雨雪、灰尘、风沙等污物沾染,则应该为阀杆安装保护罩。
11、电动阀门上的标尺应保持完整、准确、清晰,电动阀门的铅封、盖帽。
12、保温夹套应无凹陷、裂纹。
13、运行中的电动阀门,避免对其敲打,或者支撑重物等。 订货须知:一、①产品名称与型号②口径③是否带附件以便我们的为您正确选型④的使用压力⑤的使用介质的温度。
二、若已经由设计单位选定公司的型号,请按型号直接向我司销售部订购。三、当使用的场合非常重要或环境比较复杂时,请您尽量提供设计图纸和详细参数,由我们的阀门公司专家为您审核把关。如有疑问:请:我们一定会尽心尽力为您提供优质的服务。提供全面、*的“阀门系统解决方案",也十分愿意帮助用户解决生产中所遇到的难题。
-
联系方式
- 联系人:申弘阀门
- 电 话:021-59260058
- 手 机:15901754341
- 传 真:86-021-31662735
- 邮 箱:494522509@qq.com
- 邮 编:201718
- 地 址:上海市青浦区金泽工业园区
- 网 址: https://bengye.cn.goepe.com/
http://www.021-fm.com
-
产品搜索










