-
ZZY自力式高压调节阀申弘
详细信息| 询价留言ZZY自力式高压调节阀 产品说明
本实用新型涉及阀门技术领域,具体涉及一种利于防腐的自力式调节阀。本实用新型涉及阀门设备技术领域,具体为一种超高压型自力式压力调节阀。背景技术调节阀又名控制阀,在工业自动化过程控制领域中,通过接受调节控制单元输出的控制信号,借助动力操作去改变介质流量、压力、温度、液位等工艺参数的*终控制元件。现有的调节阀与管道的连接不便捷,难以有效的进行安装,同时在需要对调节阀进行检测维修时,因其拆卸不便,降低了工作人员的检测维修效率,为此,提出了一种超高压型自力式压力调节阀。实用新型内容解决的技术问题针对现有技术的不足,本实用新型提供了一种超高压型自力式压力调节阀,

ZZY自力式高压调节阀背景技术:
自力式压力调节阀无需外加能源,能在无电无气的场所工作,既方便又节约了能源。压力分段范围细且互相交叉,调节精度高。压力设定值在运行期间可连续设定。橡胶膜片式检测,执行机构检测精度高、动作灵敏。采用压力平衡机构,使调节阀反应灵敏、控制精确。
自力式压力调节阀是一种无需外加驱动能源,依靠被调介质自身的压力为动力及其压力变化,按预定设定值,进行自动调节的节能型控制装置。它集检测、控制、执行诸多功能于一阀,自成一个独立的仪表控制系统。该产品由平衡式套筒阀体、波纹管(套筒)平衡件及执行机构组成。是符合国家标准的新一代阀门产品。
特点:
1. 无需外加驱动能源的节能型自控系统,设备费用低,适用于各种工况环境;
2. 结构简单,维护工作量小;
3. 设定点可调且范围宽,便于用户在设定范围内连续调整;
4. 气缸式机构检测耐压范围大,动作灵敏可靠;
5. 阀内采用压力平衡机构,使调节阀反应灵敏、控制精确、允许压差大;
该产品由于无需外来能源,产品结构简单,使用方便,维护工作量少等优点,特别适用于城市供热、供暖及无外界供电、供气且又需控制液体及气体压力的场合。据国外报道,城市供热、供暖系统采用该产品,节能效率比以前提高30%-40%,效果显著。现有的弹簧薄膜式内取压自力阀门,采用柱形弹簧,实现阀内部取压,无需外部引入压管,具有良好的市场应用价值,但是现有的阀杆往往通过密封填料密封设置,动作灵活度较低,且阀杆较长运行稳定性较差,使用寿命较短。本实用新型涉及调节阀领域,具体涉及一种高压自力式调节阀。
背景技术:
高压自力式调节阀是一种在阀门流出介质压力过大时降低流量的阀门,其通常包括阀体、阀盖、阀杆、阀芯及复位机构,阀体内设置有流道,流道包括阀体中腔及与阀体中腔联通的进流侧及出流侧,阀盖固定阀体上方,阀盖设置有活塞腔及活塞,活塞将活塞腔分隔为上下分布的*腔和第二腔,*腔与出流侧联通设置有取压管,阀杆设置于活塞与阀芯之间构成两者的联动配合,复位机构安装于阀体上方并将阀杆进行复位。
上述结构的高压自力式调节阀存在一定弊端,一方面,在介质流过阀芯时会产生噪音,另一方面,需要不仅需要在取压管上安装压力表时刻监控压力变化,还要安装控制取压管通断的控制阀,导致取压管的结构过于复杂,给加工及装配带来不便。

ZZY自力式高压调节阀主要性能指标
设定值偏差 ±8%
允许泄露量
(在规定实验条件下) 硬密封 4×0.01%阀额定容量
软密封 DN15~50 DN65~125 DN150~250
10气泡/min 20气泡/min 40气泡/min
允许工作温度
公称通径 15~125mm 150~250mm
密封型式 硬密封 ≤150℃ ≤140℃
冷却罐≤200℃ 冷却罐和加长件≤200℃
冷却罐和散热片≤350℃ ※ 冷却罐和加长件≤300℃ ※
软密封 ≤150℃
注:※表示该阀允许工作温度,仅当介质为蒸汽时有效,且耐温至350℃需选用PN40的阀体。

ZZY自力式高压调节阀主要零部件材质:
材料代号
C(WCB)
P(304)
R(316)
主要
零部件
阀体
WCB(ZG230-450)
ZG1Cr18Ni9Ti(304)
ZG1Cr18Ni12Mo2Ti(316)
阀芯、阀座
1Cr18Ni9Ti(304)
1Cr18Ni9Ti(304)
1Cr18Ni12Mo2Ti(316)
阀杆
1Cr18Ni9Ti
1Cr18Ni9Ti
1Cr18Ni12Mo2Ti
膜片
丁睛橡胶、乙丙橡胶、氯丁胶、耐油橡胶
膜盖
A3、A4钢涂四氟乙烯
填料
聚四氟乙烯、柔性石墨
弹簧
60Si2Mn
导向套
HPb59-1
【三】ZZY自力式高压调节阀主要技术参数
注:压力调节范围可根据用户要求进行制做公称通径DN(mm)
20
25
32
40
50
65
80
100
125
150
200
额定流量系数Kv
7
11
20
30
48
75
120
190
额定行程(mm)
8
10
14
20
25
40
50
允许压差(MPa)
2.5
2.0
1.6
1.0
公称压力(MPa)
1.6 4.0 6.4
流量特性
快开
压力调节范围(KPa)
15~50、40~80、60~100、80~140、120~180、160~220、200~260、240~300、
280~350、330~400、380~450、430~500、480~560、540~620、600~700、680~800 780~900、880~1000、600~1500、1000~2500调节精度(%)
±5
工作温度℃
液体≤120;气体≤80;带冷凝器和散热片≤350(适用于高温工况)
适用介质
执水、气体、蒸汽、低粘度介质
允许泄漏量
硬密封(L/h)
单座≤10-4×阀额定容量(IV级);双座、套筒≤5×10-3阀额定容量(II级
软密封(ml/min)
0.15
0.30
0.45
0.60
0.90
1.7
4.0
6.75
减压比
*大
10
*小
1.25
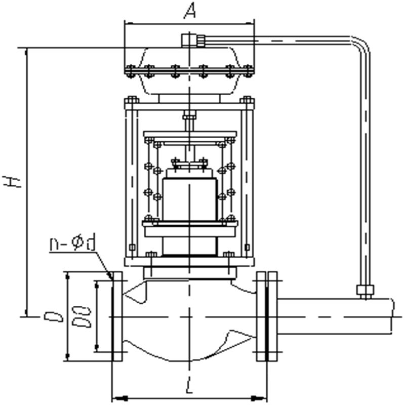
【四】ZZY自力式高压调节阀外形连接尺寸:
公称通径(DN)
20
25
32
40
50
65
80
100
125
150
200
L
PN16、40
150
160
180
200
230
290
310
350
400
480
600
PN64
230
230
260
260
300
340
380
430
500
550
650
B
383
512
603
862
1023
1380
1800
H
压力
调节
范围
MPa15~140
475
520
540
710
780
840
880
915
130~300
455
500
520
690
760
800
870
880
280~500
450
490
510
680
750
790
860
870
480~1000
445
480
670
740
780
850
860
600~1500
445
570
600
820
890
950
1000
1000~2500
445
570
600
820
890
950
1000
A
压力
调节
范围
MPa15~140
φ280
φ308
130~300
φ230
280~1000
φ176
φ194
φ280
600~2500
φ85
φ96
导压管接口螺纹
M16×15
针对现有技术存在的不足,本实用新型的目的在于提供一种降低噪音的高压自力式调节阀。为实现上述目的,本实用新型提供了如下技术方案:包括阀体、阀盖、阀杆、阀芯及复位机构,所述的阀体内设置有流道,所述的流道包括阀体中腔及与阀体中腔联通的进流侧及出流侧,所述的阀盖固定阀体上方,所述的阀盖设置有活塞腔及活塞,所述的活塞将活塞腔分隔为上下分布的*腔和第二腔,所述的*腔与出流侧联通设置有取压管,所述的阀杆设置于活塞与阀芯之间构成两者的联动配合,所述的复位机构安装于阀体上方并将阀杆向上复位,其特征在于:所述的阀体中腔设置有阀笼,所述的阀笼竖向设置有供阀芯升降并与出流侧相对的阀笼通道,所述的阀笼位于阀笼通道侧面设置有将阀笼通道与进流侧联通的侧通道,所述的侧通道的直径小于阀笼通道直径,所述的阀芯下降时将阀笼通道与侧通道的联通处封闭。

ZZY自力式高压调节阀使用注意事项
1、高压自力式压力调节阀可以安装在空间任意位置管路上。
2、高压自力式压力调节阀的安装位置应保证使用、维修和更换的方便。
3、高压自力式压力调节阀安装时可以不考虑管路介质流动的方向,即允许双向流动。
4、高压自力式压力调节阀安装前应存放在室内干燥处,阀板微开4°~5°。
5、高压自力式压力调节阀安装前应进行以下工作:
a、仔细核对使用情况是否与本ZZYP高压自力式压力调节阀性能规范相符合。
b、清洁内腔和密封面,不允许有污物附着,未清洁前勿启闭蝶板。
c、检查传动装置是否与ZZYP高压自力式压力调节阀上法兰连接可靠。
6、高压自力式压力调节阀在管路夹紧时,注意连接力是否均匀可靠。
7、高压自力式压力调节阀安装后,进行管路强度试压时,阀板必须处于开启位置。
8、高压自力式压力调节阀安装后,应定期检查,其检查的主要项目如下:
a、高压自力式压力调节阀阀座及o型密封圈是否损伤。
b、阀板密封面的密封性能。
c、高压自力式压力调节阀检修装配后,启闭旋转时不得有卡阻现象。
d、高压自力式压力调节阀检修装配后,应按要求进行密封性能试验。
f、每次检修后,应将情况详细记录以备查考。高压自力式压力调节阀蜗轮传动装置使用调整及接线方法

ZZY自力式高压调节阀维护1、打开电器开关箱罩,根据电器控制要求把电缆的芯线接到相应的端子,并密封好电缆进口,同时把电缆固定,以防止外力牵动时损坏电缆接线。
2、当阀门在“全关”位置时,顺时针转动下面的关向凸轮,是凸轮刚好触动微动开关(可以听到咔哒声),然后旋紧凸轮上的螺钉固定凸轮。
3、当阀门在“全开”位置时,逆时针转动上面的开向凸轮,用与上述相同的方法调整好开向凸轮。
4、调整限位螺钉,当阀门在“全关”或“全开”位置时,不应使限位螺钉刚好顶在蜗轮的限位平面,而应留有一定的间隙,然后旋紧限位螺钉上的锁紧螺母。
5、盖上电器开关箱罩,当阀门在“全关”位置时,使开度指示器的指针指向刻度盘上的“0”刻度,并旋紧螺钉固定指针。

订货须知:
一、①产品名称与型号②口径③是否带附件以便我们的为您正确选型④的使用压力⑤的使用介质的温度。
二、若已经由设计单位选定公司的型号,请按型号直接向我司销售部订购。三、当使用的场合非常重要或环境比较复杂时,请您尽量提供设计图纸和详细参数,由我们的阀门公司专家为您审核把关。如有疑问:请:我们一定会尽心尽力为您提供优质的服务。提供全面、*的“阀门系统解决方案",也十分愿意帮助用户解决生产中所遇到的难题。
-
联系方式
- 联系人:申弘阀门
- 电 话:021-59260058
- 手 机:15901754341
- 传 真:86-021-31662735
- 邮 箱:494522509@qq.com
- 邮 编:201718
- 地 址:上海市青浦区金泽工业园区
- 网 址: https://bengye.cn.goepe.com/
http://www.021-fm.com
-
产品搜索








