-
ZZYN自力式双座调节阀申弘
详细信息| 询价留言ZZYN自力式双座调节阀产品说明
本实用新型针对现有的平板型和柱塞型单座阀阀芯的上述不足,提供 一种具有优异的调节特性、阀芯与阀座形成线密封的自力式调节阀。自力式调节阀都利用阀输出端的反馈信号(压力、压差、温度)通过信号管传递到执行机构驱动阀瓣改变阀门的开度,达到调节压力、流量、温度的目的。

ZZYN自力式双座调节阀优点
自力式调节阀是一个新的调节阀种类。相对于手动调节阀,它的优点是能够自动调节;相对于电动调节阀,它的优点是不需要外部动力。应用实践证明,在闭式水循环系统(如热水供暖系统、空调冷冻水系统)中,正确使用这种阀门,可以很方便地实现系统的流量分配;可以实现系统的动态平衡;可以大大简化系统的调试工作;可以稳定泵的工作状态等。
本实用新型技术解决方案是自力式调节阀,包括阀芯和阀座;其特
征在于所述阀芯为球型结构,阀芯与阀座之间的配合为线接触。
进一步的特征是阀芯与阀座之间的配合密封是线密封。本实用新型的自力式调节阀,相对于现有技术,具有如下特点-
1、 阀芯为球型结构,阀芯与阀座形成线密封,解决了平板型结构和调 节特性过快的问题,克服了柱塞型结构调节特性过慢的缺点,具有优异的 调节特性。
2、 阀芯与阀座形成线密封,密封效果更好,更可靠。
3、 提供了界于快开调节特性和直接调节特性之间的一种流量特性,解 决了快开特性调节过快和直线特性调节过慢的问题,本发明的流量特性界 于快开和直线之间,中和效果较好。
4、 因阀芯是球形,所以它不象平板型和柱塞型单座阀阀芯那样只有在 阀芯与阀座同心的情况下才能保证节流处密封可靠。而球形结构却可保证 只要密封面接触就能密封,且可以自动调整对准中心。
摘要本实用新型公开了自力式调节阀,包括阀芯和阀座;其特征在于所述阀芯为球型结构,阀芯与阀座之间的配合为线接触。本实用新型的自力式调节阀,阀芯为球型结构,阀芯与阀座形成线密封,解决了平板型结构和调节特性过快的问题,克服了柱塞型结构调节特性过慢的缺点,具有优异的调节特性;阀芯与阀座形成线密封,密封效果更好,更可靠;因阀芯是球形,所以它不象平板型和柱塞型单座阀阀芯那样只有在阀芯与阀座同心的情况下才能保证节流处密封可靠。而球形结构却可保证只要密封面接触就能密封,且可以自动调整对准中心。

ZZYN自力式双座调节阀主要特点:
1、自力式压力调节阀无需外加能源,能在无电无气的场所工作,既方便又节约了能源。
2、压力分段范围细且互相交叉,调节精度高。
3、压力设定值在运行期间可连续设定。
4、对阀后压力调节,阀前压力与阀后压力之比可为10:1~10:8。
5、橡胶膜片式检测,执行机构测精度高、动作灵敏。
6、采用压力平衡机构,使调节阀反应灵敏、控制精确。

ZZYN自力式双座调节阀主要材质
ZZYN自力式双座调节阀主要技术参数材料代号 C(WCB) P(304) R(316) 主要
零件阀体 WCB(ZG230-450) ZG1Cr18Ni9Ti(304) ZG1Cr18Ni12Mo2Ti(316) 阀芯,阀座 1Cr18Ni9Ti(304) 1Cr18Ni9Ti(304) 1Cr18Ni12Mo2Ti(316) 阀杆 1Cr18Ni9Ti 1Cr18Ni9Ti 1Cr18Ni12Mo2Ti 膜片 丁睛橡胶,乙丙橡胶,氯丁胶,耐油橡胶 膜盖 A3,A4钢涂四氟乙烯 填料 聚四氟乙烯,柔性石墨 弹簧 60Si2Mn 导向套 HPb59-1 公称通径DN(mm) 20 25 32 40 50 65 80 100 125 150 200 额定流量系数Kv 额定行程(mm) 8 10 14 20 25 40 50 允许压差(MPa) 2.5 2.0 1.6 1.0 公称压力(MPa) 1.6 4.0 6.4 流量特性 快开 压力调节范围(KPa) 15∼50,40∼80,60∼100,80∼140,120∼180,160∼220,200∼260,240∼300,
280∼350,330∼400,380∼450,430∼500,480∼560,540∼620,600∼700,680∼800 780∼900,880∼1000,600∼1500,1000∼2500调节精度(%) ±5 工作温度℃ 液体≤120;气体≤80;带冷凝器和散热片≤350(适用于高温工况) 适用介质 执水,气体,蒸汽,低粘度介质 允许泄漏量 硬密封(L/h) 单座≤10-4×阀额定容量(IV级);双座,套筒≤5×10-3阀额定容量(II级 软密封(ml/min) 0.15 0.30 0.45 0.60 0.90 1.7 4.0 6.75 减压比 *大 10 *小 1.25
注:压力调节范围可根据用户要求进行制做.
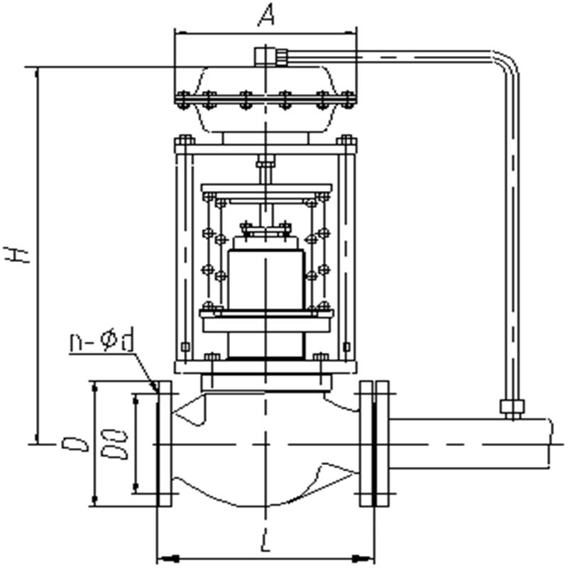
ZZYN自力式双座调节阀外形连接尺寸
自力式调节阀是一个新的调节阀种类。相对于手动调节阀,它的优点是能够自动调节;相对于电动调节阀,它的优点是不需要外部动力。应用实践证明,在闭式水循环系统(如热水供暖系统、空调冷冻水系统)中,正确使用这种阀门,可以很方便地实现系统的流量分配;可以实现系统的动态平衡;可以大大简化系统的调试工作;可以稳定栗的工作状态等。在目前市面上的双座活塞式自力式压力调节阀中,阀杆伸出阀体后与压力调节装置中的活塞连接在一起,另外活塞在于其上方的弹簧座连接在一起。 ZZYN自力式双座调节阀安装要求:公称通径(DN) 20 25 32 40 50 65 80 100 125 150 200 L PN16,40 150 160 180 200 230 290 310 350 400 480 600 PN64 230 230 260 260 300 340 380 430 500 550 650 B 383 512 603 862 1023 1380 1800 H 压力
调节
范围
MPa15∼140 475 520 540 710 780 840 880 915 130∼300 455 500 520 690 760 800 870 880 280∼500 450 490 510 680 750 790 860 870 480∼1000 445 480 670 740 780 850 860 600∼1500 445 570 600 820 890 950 1000 1000∼2500 445 570 600 820 890 950 1000 A 压力
调节
范围
MPa15∼140 φ280 φ308 130∼300 φ230 280∼1000 φ176 φ194 φ280 600∼2500 φ85 φ96 导压管接口螺纹 M16×15
1.自力式调节阀在现场开箱后,在搬运和安装过程中,禁止用手或其他工具拉、压、吊自力式调节阀的压力导管,以免损坏阀门的使用性能。必须检查外观是否损坏,紧固件是否松动,流道中是否有污染物等。仔细检查产品的型号、位置号和规格是否匹配。
2.安装现场必须保证自力式调节阀的安装空间,便于操作、拆卸和维护。
3.安装时,取压点应在远离自力式调节阀的适当位置。压力开启调节阀应大于管径的2倍,压力关闭调节阀应大于管径的6倍。取压接头(取压点)应在管道的顶部或侧面,不应安装在底部,从而有效防止杂质进入致动器。
4.安装冷凝器时,应注意冷凝器的位置,使其高于膜头,低于工艺管道,以确保冷凝器充满冷凝水。投产后应注意维护。
5.安装调节阀前,先清洗管道,因为管道中的异物可能会损坏自力式调节阀的密封面,甚至会阻碍阀芯和执行机构推杆的运动,从而导致阀门不能正常关闭和开启。确认管道污垢、金属碎屑、焊渣和其他异物已被清除后,检查管道法兰,确保垫圈表面光滑。如果自力式调节阀有螺纹连接端,在管道的阳螺纹上涂抹优质的管道密封胶,不要在阴螺纹上涂抹密封胶,因为阴螺纹上多余的密封胶会被挤入阀体,多余的密封胶会导致阀芯堵塞或污垢积聚,从而导致阀门不能正常工作。 ZZYN自力式双座调节阀的安装规则:
1、首次启动和维护后启动
1.1投入运行前,检查阀门前的设计压力、温度和流量是否与实际工况相符。
1.2 .*次起动和大修后起动时,确认自力式压力调节阀的阀芯处于初始全开位置(B型)或全闭位置(K型)后,如果有旁通,先关闭旁通手动阀,然后在阀后打开手动截止阀,然后打开压力导管上的截止阀(B型)或阀后的先导压力管上的截止阀(K型),*后慢慢打开阀前的手动截止阀。
2.1 .产品出厂时已根据用户要求进行了调试,到货后即可使用。但是,如果工艺参数发生变化,阀门的背压(类型B)或前压力(类型K)可能无法达到规定值。在这种情况下,阀门的背压(类型B)或前压力(类型K)可以通过手动调节和设置来改变。(见表4)使用专用扳手工具旋转压力调节盘6,以调节弹簧的预紧力,并改变背压(类型B)或前压力(类型K)。观察阀门后面的压力表(类型B)或阀门前面的压力表(类型K)的显示值,并将其投入正常运行,直到阀门后面的压力(类型B)或阀门前面的压力(类型K)的调节满足要求。
2.2、投入正常运行后,通常只需观察阀门压力指示器压力是否稳定,阀门压力表显示值是否符合要求后(B型);或者只是观察阀门前压力表的显示值是否稳定,是否符合要求(k型)。
在正常停机期间,首先关闭阀门前面的手动截止阀,然后关闭阀门后面的先导压力管(b型)或先导压力管(k型)上的截止阀,*后关闭阀门后面的手动截止阀。
如果故障停机,应首先关闭阀门前的手动截止阀,然后关闭自力式调节阀后的先导压力管(b型)或先导压力管(k型)上的截止阀,然后关闭阀门后的手动截止阀,*后打开旁通阀。订货须知:
一、①产品名称与型号②口径③是否带附件以便我们的为您正确选型④的使用压力⑤的使用介质的温度。
二、若已经由设计单位选定公司的型号,请按型号直接向我司销售部订购。三、当使用的场合非常重要或环境比较复杂时,请您尽量提供设计图纸和详细参数,由我们的阀门公司专家为您审核把关。如有疑问:请:我们一定会尽心尽力为您提供优质的服务。提供全面、*的“阀门系统解决方案",也十分愿意帮助用户解决生产中所遇到的难题。
-
联系方式
- 联系人:申弘阀门
- 电 话:021-59260058
- 手 机:15901754341
- 传 真:86-021-31662735
- 邮 箱:494522509@qq.com
- 邮 编:201718
- 地 址:上海市青浦区金泽工业园区
- 网 址: https://bengye.cn.goepe.com/
http://www.021-fm.com
-
产品搜索










