-
ZZYP自力式单座减压阀申弘
详细信息| 询价留言ZZYP自力式单座减压阀 产品说明
一种自力式减压阀,包括阀体、阀座、阀瓣,阀座固定在阀体内,其特征在于所述的阀体内还有一驱动缸,驱动缸通过托架与阀体联结,驱动缸内装有一活塞,阀瓣通过活塞杆与活塞联结成一整体,驱动缸被活塞分成左腔与右腔,左腔通过管件伸出阀体与阀门的进口相连,管件上装有一节流阀,右腔通过管件伸出阀体与阀门的出口相连,管件上也装有一节流阀。是一种利用介质自身的压力变化进行自我控制而保持流经该被控系统介质压差不变的节能产品, 现以安装在回水管道上的自力式减压阀压差控制阀为例说明工作原理。当供水压力P1增大或减小时,信号由连接管传入膜片上腔,带动阀芯下移或上移,使阀座的流通面积减小或增大。P2-P3 也增大或减小, 直至P1-P2 保持原值恒定。当回水压力P3增大或减小的瞬间同阀座流向出口的流速降低或升高,膜片下压力P2也在这个瞬间增高或降低,带动阀芯上移或下移,直至膜片的受力重新平衡,P2恢复原值,P1-P2 保护原值恒定,从而保证了被控系统的供回水间压差基本不变。
自力式减压阀是不需要任何外加能源,利用被调介质自身能量而实现自动调节的执行器产品。该产品的特点,能在无电、无气的场所工作,同时又节约了能源,压力设定值在运行中可随意调整。采用快开流量特征,动作灵敏、密封性能好,因而它应用广泛。
ZZYP自力式单座减压阀其特点有:
1.减压阀无需外加驱动能源的节能型自控系统,设备费用低,适用于危险性环境;
2.减压阀结构简单,维护工作量小;
3.设定点可调且范围宽,便于用户在设定范围内连续调整;
4.膜片式执行机构较气缸式机构检测精度高,动作灵敏;
5.阀内采用压力平衡机构,使调节阀反应灵敏、控制准确、允许压差大;
自力式减压阀由于无需外来能源,产品结构简单,使用方便,维护工作量少等优点,特别适用于城市供热、供暖及无外界供电、供气且又需控制液体及气体压力的场合。据国外报道,城市供热、供暖系统采用该产品,节能效率比以前提高,效果显著。

ZZYP自力式单座减压阀产品型号
类别 型号 类别 型号 单座压闭型 ZZYP-16~64B 单座压闭型 ZZYP-16~64K 双座压闭型 ZZYN-16~64B 双座压闭型 ZZYN-16~64K 套筒压闭型 ZZYM-16~64B 套筒压闭型 ZZYM-16~64K
注:1.压闭型用于阀后压力调节,当阀后压力升高,阀门关闭,以达到减压,稳压的目的。
2.压开型用于阀后压力调节,当阀后压力升高,阀门打开,以达到泄压,稳压的目的。
ZZYP自力式单座减压阀主要技术参数
ZZYP自力式单座减压阀主要性能指标注公称通径DN(mm) 20 25 32 40 50 65 80 100 125 150 200 阀座直径DN(mm) 10 12 15 20 额定流量系数Kv 1.8 2.4 4.4 4 11 20 30 48 75 120 190 300 480 760 允许压差(MPa) 2.5 2.0 1.6 1.0 公称压力(MPa) 1.6 4.0 6.4 固有流量特性 快开 保证调压阀正常工作
的最小压差P(MPa)0.05 压力分段范围
(KPa)15~50 40~80 60~100 80~140 120~80
160~220 200~260 240~300 280~350 330~400
380~450 430~500 480~560 540~620 600~700
680~800 780~900 800~1000 900~2000工作温度℃ 液体≤140;气体≤80;配冷凝器和散热片≤350 适合介质 气体、蒸汽、低粘度液体 法兰尺寸、型式 PN10、16、40GB9113-88、PN64JB/T7-94;PN10,16凸式,PN40,64凹式
或根据用户要求选配其它标准型式的法兰(如:ANSI、JIS、DIN等标准) 结构长度 按GB12221-89标准 可配附件 冷凝器(用于介质为蒸汽的场合)、散热片等。 执行机构信号接口 内螺纹M16×1.5
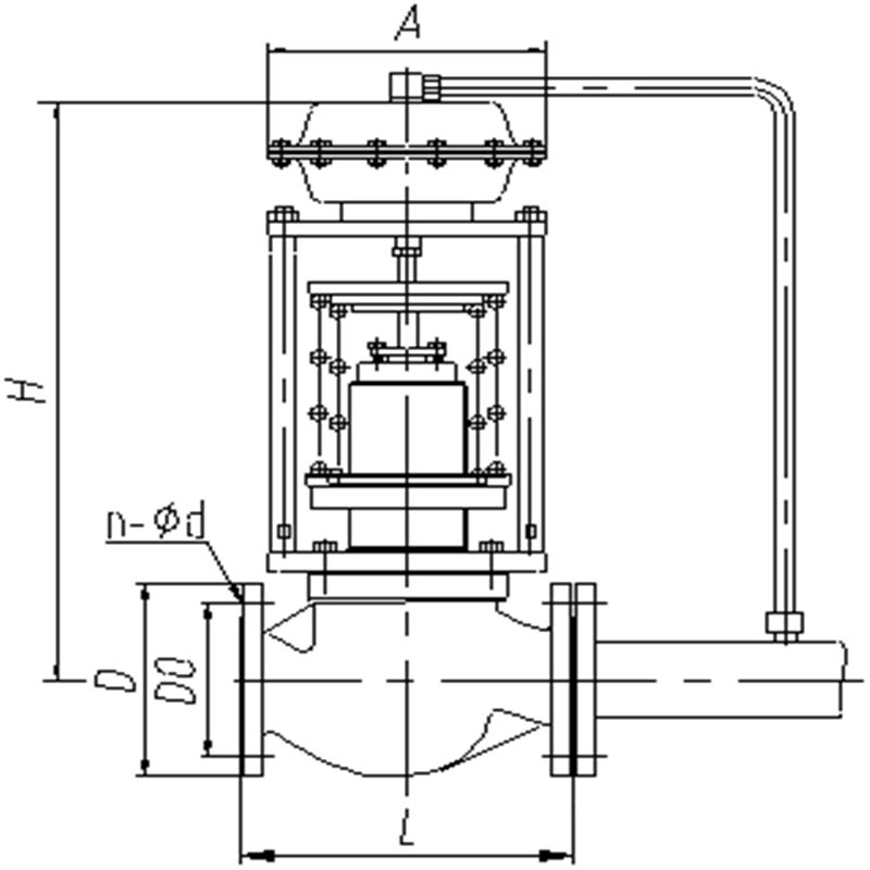
ZZYP自力式单座减压阀外形尺寸及重量控制精度% ±8 允许泄
漏量硬密封(L/H) 单座(Ⅳ级):≤10-4阀额定容量:双座、套筒(Ⅱ级)、≤5×10-3×阀额定容量 软密封(ml/min) DN(mm) 20 25 32 40 50 65 80 100 125 150 200 0.15 0.3 0.45 0.6 0.9 1.7 4.0 6.75 公称通径(DN) 20 25 32 40 50 65 80 100 125 150 200 L PN16、40 150 160 180 200 230 290 310 350 400 480 600 PN64 230 230 260 260 300 340 380 430 500 550 650 B 233 332 373 522 673 980 1200 H 压
力
调
节
范
围
MPa15~140 475 520 540 710 780 840 880 915 120~300 455 500 520 690 760 800 870 880 280~500 450 490 510 680 750 790 860 870 480~1000 445 480 670 740 780 850 860 600~1500 445 570 600 820 890 950 950 1000 1000~2500 445 570 600 820 890 950 950 1000 A 压
力
调
节
范
围
MPa15~140 φ282 φ308 120~300 φ232 280~1000 φ196 φ196 φ282 600~2500 φ85 φ96 大约重量(Kg) 26 37 42 72 90 114 130 144 180 导压管接口螺纹 M16×15 
本发明提供了一种自力式减压阀,包括阀体、阀座、阀瓣,阀座固定在阀体内,阀体内还装有一驱动缸,驱动缸通过托架与阀体联结,驱动缸内装有一活塞,阀瓣通过活塞杆与活塞联结成一整体,驱动缸被活塞分成左腔与右腔,左腔通过管件伸出阀体与阀门的进口相连,管件上装有一节流阀,右腔通过管件伸出阀体与阀门的出口相连,管件上也装有一节流阀。本发明的有益效果是结构简单紧凑,成本低,维护方便,靠介质的压力差来驱动阀瓣往返运动来实现系统流量和压力的调节。1.自力式减压阀过滤器的设置
该系统中的过滤器在工艺介质干净、没杂质的情况下,可以省略。
当介质中有杂质或用带指挥器的自力式压力调节阀时应装过滤器,以防阻塞引压管路或指挥器、卡死气缸执行机构及阀芯等。
若限于管路安装空间或经费,可将过滤网装在阀前的截止阀上游处。取代过滤器。
2、自力式减压阀直管段的设置
自力式压力调节阀前、后应尽量保持一定的直管段(一般为6D(管径)左右)。阀前取压点距阀的距离应大于2D;阀后取压应大于6D。阀前、后还应装有压力表,压力表应靠近取压点,以便使设定值与取压值真实一致。
3、自力式减压阀旁路系统的设置
为保证检修及出故障时生产能继续运行,设置旁路系统。
4.自力式减压阀安装方式与介质、温度的关系
1)自力式压力调节阀安装方式原则上宜采用,气体介质正立安装(执行机构在上、阀体在下),液体与蒸汽介质倒装。
2)气体介质温度高于70℃低于140℃时.若仍采用正立安装,应在设计文件(设备表)中注明采用高温膜片(如乙丙橡胶膜片、硅橡胶膜片等),否则会造成普通膜片老化。
3)气体介质温度高于70℃低于140℃、液体介质温度高于140℃时,自力式压力调节阀除采用倒装外,还应在引压管路上加装隔离罐,并应在引压管路、隔离罐、膜头处注满冷媒,以防膜片受高温老化。

订货须知:
一、①产品名称与型号②口径③是否带附件以便我们的为您正确选型④的使用压力⑤的使用介质的温度。
二、若已经由设计单位选定公司的型号,请按型号直接向我司销售部订购。三、当使用的场合非常重要或环境比较复杂时,请您尽量提供设计图纸和详细参数,由我们的阀门公司专家为您审核把关。如有疑问:请:我们一定会尽心尽力为您提供优质的服务。提供全面、专业的“阀门系统解决方案",也十分愿意帮助用户解决生产中所遇到的难题。
-
联系方式
- 联系人:申弘阀门
- 电 话:021-59260058
- 手 机:15901754341
- 传 真:86-021-31662735
- 邮 箱:494522509@qq.com
- 邮 编:201718
- 地 址:上海市青浦区金泽工业园区
- 网 址: https://bengye.cn.goepe.com/
http://www.021-fm.com
-
产品搜索











